Скачать Типовой проект 4.407-134 Рабочие чертежи проводок в трубах для магистралей, питающих цеховые потребители малой мощностиДата актуализации: 10.08.2017 Типовой проект 4.407-134
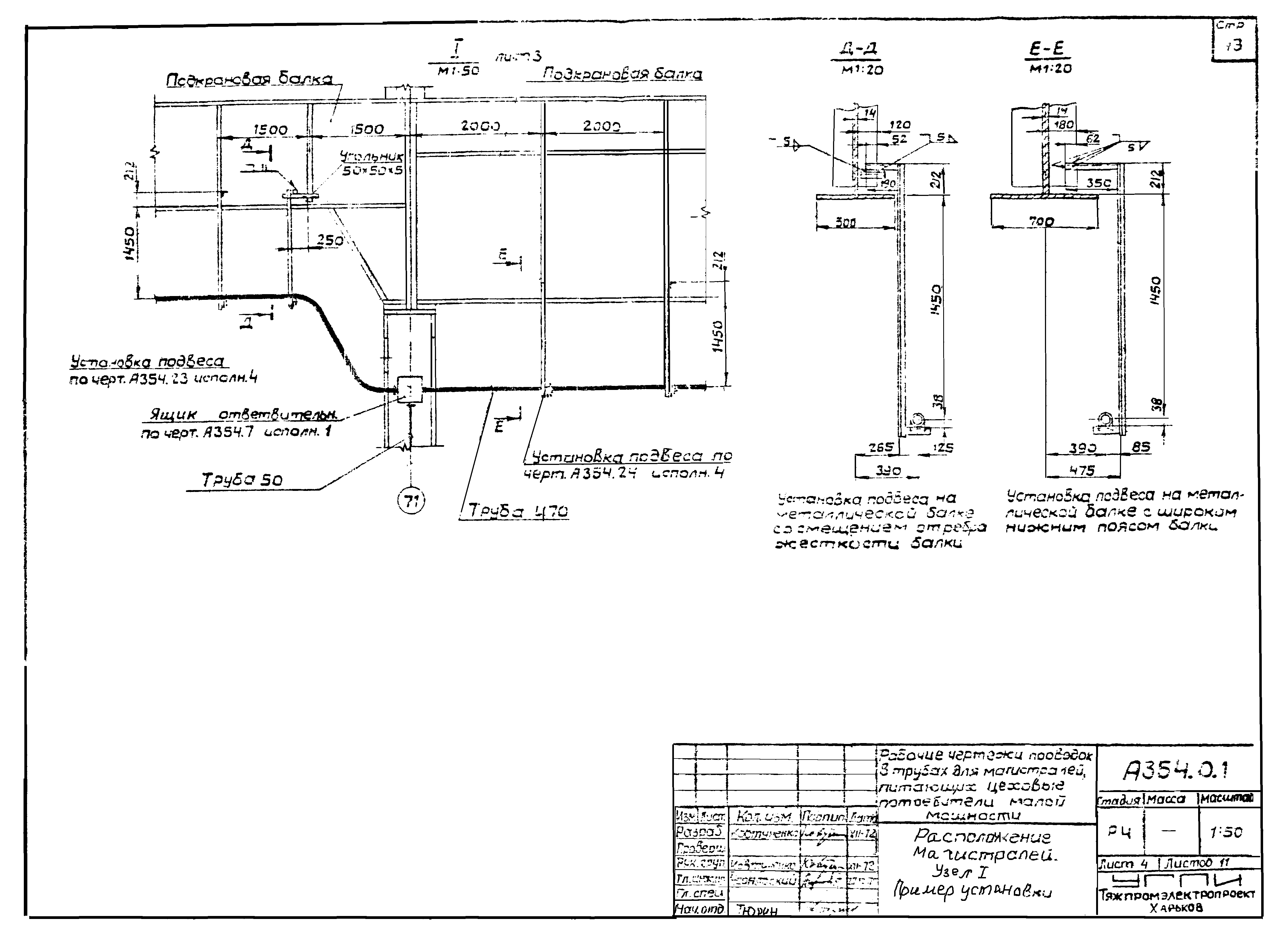
Рабочие чертежи проводок в трубах для магистралей, питающих цеховые потребители малой мощностиОбозначение: | Типовой проект 4.407-134 | Обозначение англ: | 4.407-134 | Статус: | не действует | Название рус.: | Рабочие чертежи проводок в трубах для магистралей, питающих цеховые потребители малой мощности | Дата добавления в базу: | 01.09.2013 | Дата актуализации: | 05.05.2017 | Дата введения: | 01.01.1972 | Дата окончания срока действия: | 01.06.1984 | Оглавление: | ТП 4.407-134 А354 Обложка ТП 4.407-134 А354 Титульный лист ТП 4.407-134 А354 Содержание ТП 4.407-134 А354 Пояснительная записка ТП 4.407-134 А354 Таблица выбора ответвительных ящиков ТП 4.407-134 А354 Таблица выбора подвесов и кронштейнов ТП 4.407-134 А354.0.1 Расположение магистралей. План и разрезы. (Пример установки). ТП 4.407-134 А354 Раздел I ТП 4.407-134 А354 Монтажные чертежи ТП 4.407-134 А354.1 Ящик ответвительный для магистрали сеч. 50, 70 кв.мм. ТП 4.407-134 А354.2 Ящик ответвительный для магистрали сеч. 50, 70 кв.мм. ТП 4.407-134 А354.3 Ящик ответвительный для магистрали сеч. 50, 70 кв.мм. ТП 4.407-134 А354.4 Ящик ответвительный для магистрали сеч. 95 кв.мм. ТП 4.407-134 А354.5 Ящик ответвительный для магистрали сеч. 95 кв.мм. ТП 4.407-134 А354.6 Ящик ответвительный для магистрали сеч. 95 кв.мм. ТП 4.407-134 А354.7 Ящик ответвительный для магистрали сеч. 120, 150 кв.мм. ТП 4.407-134 А354.8 Ящик ответвительный для магистрали сеч. 120, 150 кв.мм. ТП 4.407-134 А354.9 Ящик ответвительный для магистрали сеч. 120, 150 кв.мм. ТП 4.407-134 А354.21 Установка подвеса для магистрали с трубой 50 (на стальных балках) ТП 4.407-134 А354.22 Установка подвеса для магистрали с трубой 50 (на стальных балках) ТП 4.407-134 А354.23 Установка подвеса для магистрали с трубой 70 (на стальных балках) ТП 4.407-134 А354.24 Установка подвеса для магистрали с трубой 70 (на стальных балках) ТП 4.407-134 А354.25 Установка кронштейна для магистрали с трубой 50, 70 (вдоль нижнего пояса металлической формы). ТП 4.407-134 А354.31 Установка подвеса для магистрали с трубой 50 (на железобетонных балках) ТП 4.407-134 А354.32 Установка подвеса для магистрали с трубой 70 (на железобетонных балках) ТП 4.407-134 А354.33 Установка подвеса для магистрали с трубой 50, 70 (на железобетонных балках на троллейных конструкциях) ТП 4.407-134 А354.34 Установка кронштейна для магистрали с трубой 50, 70 (вдоль нижнего пояса железобетонной фермы). ТП 4.407-134 А354 Раздел 2 ТП 4.407-134 А354 Узлы и детали. (Изделия МЗУ) ТП 4.407-134 А354.41 Подвес для магистрали с трубой 50 (для стальных балок) ТП 4.407-134 А354.42 Подвес для магистрали с трубой 50 (для стальных балок) ТП 4.407-134 А354.43 Подвес для магистрали с трубой 70 (для стальных балок) ТП 4.407-134 А354.44 Подвес для магистрали с трубой 70 (для стальных балок) ТП 4.407-134 А354.45 Кронштейн для магистрали с трубой 50,70 (вдоль нижнего пояса металлической фермы) ТП 4.407-134 А354.51 Шпилька для крепления подвеса к железобетонным балкам ТП 4.407-134 А354.51.0.1 Шпилька ТП 4.407-134 А354.51.0.2 Шайба ТП 4.407-134 А354.52 Подвес для магистрали с трубой 50, 70 (для железобетонных балок) ТП 4.407-134 А354.53 Подвес для магистрали с трубой 50, 70 (на железобетонных балках на троллейных конструкциях) ТП 4.407-134 А354.54 Кронштейн для магистрали с трубой 50,70 (вдоль нижнего пояса железобетонной фермы) ТП 4.407-134 А354.54.1 Шпилька ТП 4.407-134 А354.54.1.1 Шпилька ТП 4.407-134 А354.61 Ящик ответвительный по черт. А354.1. Разметка отверстий. ТП 4.407-134 А354.62 Ящик ответвительный по черт. А354.3, А354.4. Разметка отверстий. ТП 4.407-134 А354.63 Ящик ответвительный по черт. А354.5, А354.6. Разметка отверстий. ТП 4.407-134 А354.64 Ящик ответвительный по черт. А354.7, А354.8. Разметка отверстий. ТП 4.407-134 А354.65 Ящик ответвительный по черт. А354.9. Разметка отверстий. ТП 4.407-134 А354.66 Ящик протяжной (без сжимов). Разметка отверстий. | Разработан: | Тяжпромэлектропроект
| Утверждён: | 01.01.1972 Тяжпромэлектропроект
| Расположен в: |
|
                                              
|