| ||||||||||||||||||||||||||||||
Скачать Серия 3.904-15 Выпуск 1-15. Конструкции камер. Рабочие чертежи. Секция фильтра с развитой поверхностьюДата актуализации: 10.08.2017
|
| Обозначение: | Серия 3.904-15 |
| Обозначение англ: | Series 3.904-15 |
| Статус: | не действует |
| Название рус.: | Выпуск 1-15. Конструкции камер. Рабочие чертежи. Секция фильтра с развитой поверхностью |
| Дата добавления в базу: | 01.09.2013 |
| Дата актуализации: | 05.05.2017 |
| Дата введения: | 15.03.1978 |
| Дата окончания срока действия: | 01.10.1982 |
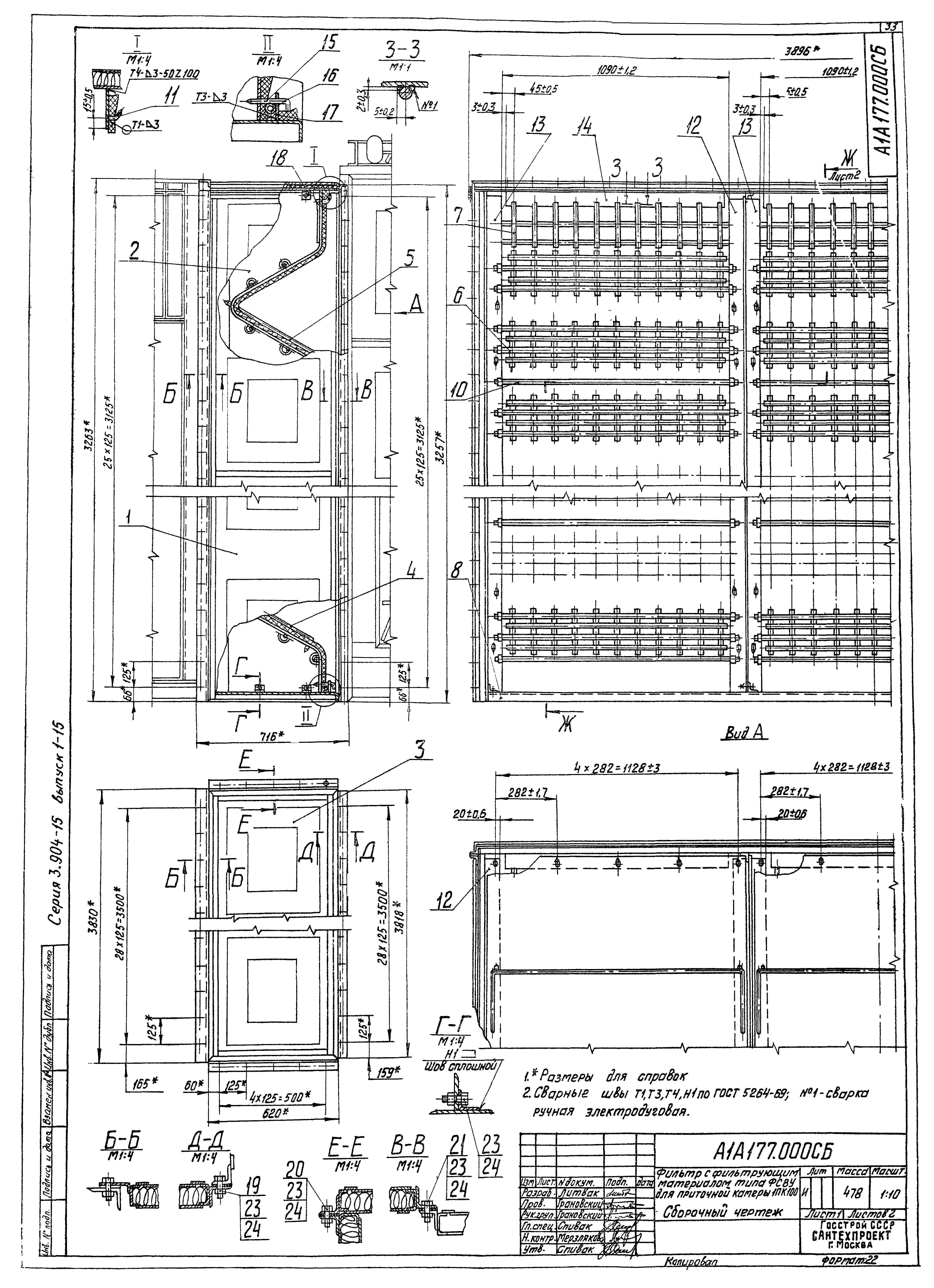
| Оглавление: | 3.904-15 Содержание 3.904-15 А1А179.000ТО Фильтр с развитой поверхностью для приточных камер 1ПК10-1ПК100. Техническое описание 3.904-15 А1А169.000 Секция приемная с фильтром для приточной камеры 1ПК10 3.904-15 А1А169.010 Панель передняя 3.904-15 А1А169.000 СБ Секция приемная с фильтром для приточной камеры 1ПК10. Сборочный чертеж 3.904-15 А1А169.010 СБ Панель передняя. Сборочный чертеж 3.904-15 А1А169.020 Панель задняя 3.904-15 А1А169.020 СБ Панель задняя. Сборочный чертеж 3.904-15 А1А169.030 Прижим 3.904-15 А1А169.040 Решетка опорная 3.904-15 А1А169.030 СБ Решетка опорная 3.904-15 А1А169.040 СБ Решетка опорная 3.904-15 А1А169.002 Днище 3.904-15 А1А169.013 Лист 3.904-15 А1А169.027 Направляющая 3.904-15 А1А169.021 Бобышка 3.904-15 А1А169.029 Направляющая 3.904-15 А1А169.035 Лист 3.904-15 А1А170.000 Секция приемная с фильтром для приточной камеры 1ПК10 3.904-15 А1А170.010 Решетка опорная 3.904-15 А1А170.017 Уголок 3.904-15 А1А170.000 СБ Секция приемная с фильтром для приточной камеры 1ПК10. Сборочный чертеж 3.904-15 А1А171.000 Фильтр с фильтрующим материалом типа ФСВУ для приточной камеры 1ПК25 3.904-15 А1А171.019 Профиль 3.904-15 А1А171.000 СБ Фильтр с фильтрующим материалом типа ФСВУ для приточной камеры 1ПК25. Сборочный чертеж 3.904-15 А1А171.010 Панель боковая 3.904-15 А1А171.010 СБ Панель боковая. Сборочный чертеж 3.904-15 А1А171.004 Направляющая 3.904-15 А1А171.006 Днище 3.904-15 А1А171.018 Профиль 3.904-15 А1А171.021 Лист 3.904-15 А1А171.020 Панель верхняя 3.904-15 А1А171.020 СБ Панель верхняя. Сборочный чертеж 3.904-15 А1А171.030 Прижим 3.904-15 А1А171.030 СБ Прижим. Сборочный чертеж 3.904-15 А1А171.040 Решетка опорная 3.904-15 А1А171.040 СБ Решетка опорная. Сборочный чертеж 3.904-15 А1А172.003 Направляющая 3.904-15 А1А172.000 Фильтр с фильтрующим материалом типа ФРНК для приточной камеры 1ПК25 3.904-15 А1А171.010 Решетка опорная 3.904-15 А1А171.010 СБ Решетка опорная. Сборочный чертеж 3.904-15 А1А172.000 СБ Фильтр с фильтрующим материалом типа ФРНК для приточной камеры 1ПК25. Сборочный чертеж 3.904-15 А1А173.000 Фильтр с фильтрующим материалом типа ФСВУ для приточной камеры 1ПК50 3.904-15 А1А173.003 Направляющая 3.904-15 А1А173.005 Лист 3.904-15 А1А173.000 СБ Фильтр с фильтрующим материалом типа ФСВУ для приточной камеры 1ПК50. Сборочный чертеж 3.904-15 А1А174.000 Фильтр с фильтрующим материалом типа ФРНК для приточной камеры 1ПК50 3.904-15 А1А174.000 СБ Фильтр с фильтрующим материалом типа ФРНК для приточной камеры 1ПК50. Сборочный чертеж 3.904-15 А1А175.000 Фильтр с фильтрующим материалом типа ФСВУ для приточной камеры 1ПК70 3.904-15 А1А174.003 Направляющая 3.904-15 А1А175.000 СБ Фильтр с фильтрующим материалом типа ФСВУ для приточной камеры 1ПК70. Сборочный чертеж 3.904-15 А1А176.000 Фильтр с фильтрующим материалом типа ФРНК для приточной камеры 1ПК70 3.904-15 А1А176.000 СБ Фильтр с фильтрующим материалом типа ФРНК для приточной камеры 1ПК70. Сборочный чертеж 3.904-15 А1А177.000 Фильтр с фильтрующим материалом типа ФСВУ для приточной камеры 1ПК100 3.904-15 А1А175.004 Направляющая 3.904-15 А1А176.003 Направляющая 3.904-15 А1А177.003 Направляющая 3.904-15 А1А177.010 Решетка опорная 3.904-15 А1А177.000 СБ Фильтр с фильтрующим материалом типа ФСВУ для приточной камеры 1ПК100. Сборочный чертеж 3.904-15 А1А178.000 Фильтр с фильтрующим материалом типа ФРНК для приточной камеры 1ПК100 3.904-15 А1А178.003 Направляющая 3.904-15 А1А178.000 СБ Фильтр с фильтрующим материалом типа ФРНК для приточной камеры 1ПК100. Сборочный чертеж |
| Разработан: | ГПИ Сантехпроект Госстроя СССР |
| Утверждён: | 14.02.1978 Главпромстройпроект Госстроя СССР (7) |
| Расположен в: | |
| Чем заменён: |



































