Информационная система
«Ёшкин Кот»

Скачать базу одним архивом
Скачать обновления
История создания базы
Карта сайта

Скачать Типовой проект 902-2-289 Альбом III. Аэробные минерализаторы осадка сточных вод длиной секции 60 - 84 м (тип II). Технологическая и строительные части

Дата актуализации: 10.08.2017

Типовой проект 902-2-289

Альбом III. Аэробные минерализаторы осадка сточных вод длиной секции 60 - 84 м (тип II). Технологическая и строительные части

Обозначение: Типовой проект 902-2-289
Обозначение англ: 902-2-289
Статус:действует
Название рус.:Альбом III. Аэробные минерализаторы осадка сточных вод длиной секции 60 - 84 м (тип II). Технологическая и строительные части
Дата добавления в базу:01.09.2013
Дата актуализации:05.05.2017
Дата введения:25.03.1977
Оглавление:ТП 902-2-289-КГ-1 Заглавный лист
ТП 902-2-289-КГ-2 План по верху. Разрез 1-1
ТП 902-2-289-КГ-3 План по днищу. Разрезы 2-2,3-3
ТП 902-2-289-КГ-4 Схемы воздуховодов
ТП 902-2-289-КГ-5 Схемы трубопроводы для подогрева осадка в минерализаторе
ТП 902-2-289-КГ-6 Монтажные схемы теплофикационных камер №№1,2
ТП 902-2-289-КГ-7 Узлы и детали
ТП 902-2-289-КГ-8 Ведомость материалов, трубопроводной арматуры и оборудования
ТП 902-2-289-КЖ-1 Выборка материалов
ТП 902-2-289-КЖ-2 Общий вид. План. Разрезы. Спецификация
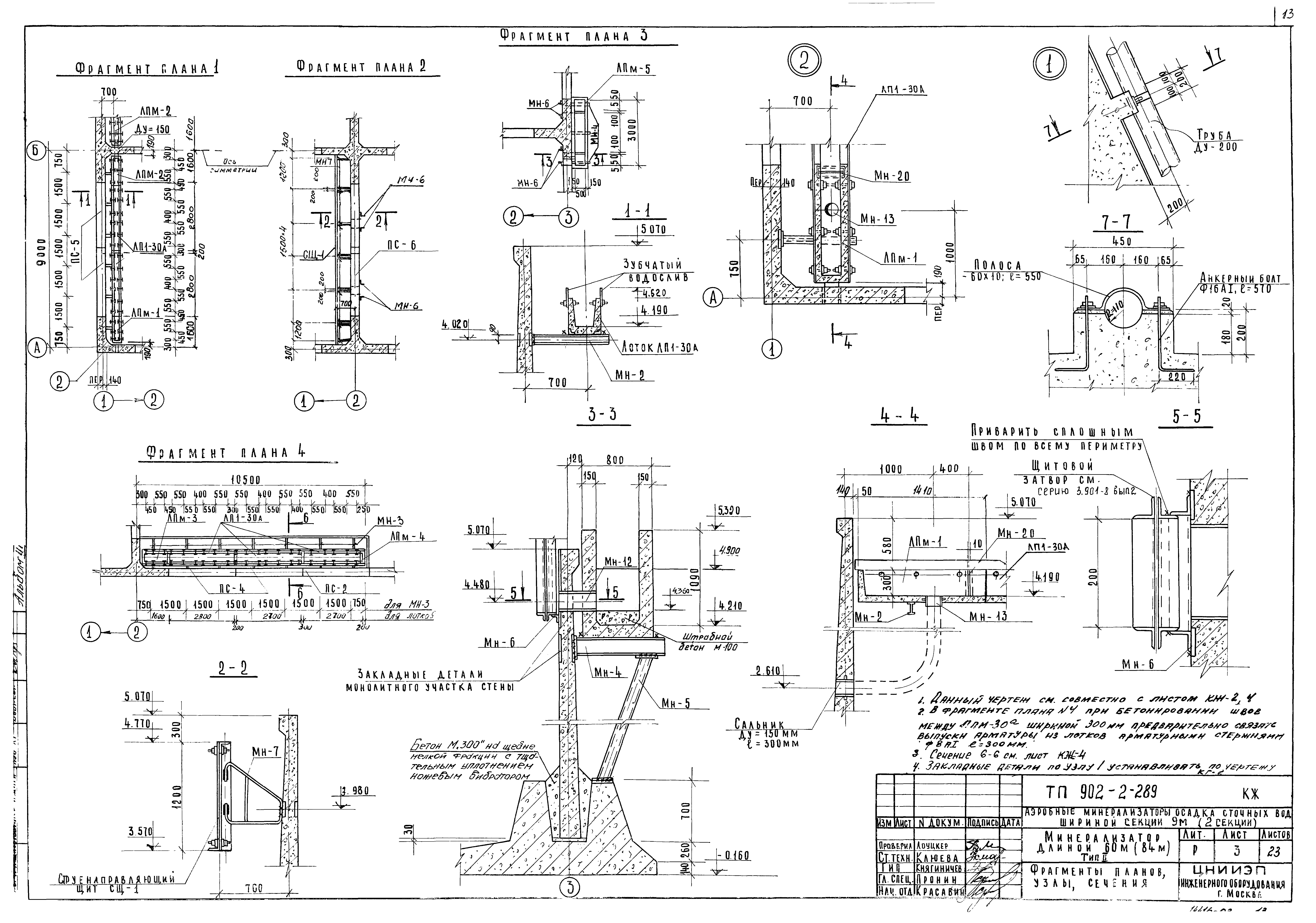
ТП 902-2-289-КЖ-3 Фрагменты планов. Узлы. Сечения
ТП 902-2-289-КЖ-4 Маркировочная схема перекрытия мостиков. Сечения
ТП 902-2-289-КЖ-5 Опалубка днища. План. Разрезы. Армирование
ТП 902-2-289-КЖ-6 Армирование днища. Планы раскладки сеток и каркасов
ТП 902-2-289-КЖ-7 Армирование днища. Узлы
ТП 902-2-289-КЖ-8 Сетки арматурные и каркасы. Ведомость стержней
ТП 902-2-289-КЖ-9 Детали стыков панелей
ТП 902-2-289-КЖ-10 Развертки монолитных участков по осям 1,2
ТП 902-2-289-КЖ-11 Развертки монолитных участков по оси 3АВ
ТП 902-2-289-КЖ-12 Армирование УМ-1÷УМ-6
ТП 902-2-289-КЖ-13 Армирование УМ-7÷УМ-11
ТП 902-2-289-КЖ-14 Армирование УМ-11
ТП 902-2-289-КЖ-15 Армирование монолитных участков стен. Сетки С-1÷С-10
ТП 902-2-289-КЖ-16 Монолитные участки стен. Спецификации
ТП 902-2-289-КЖ-17 Монолитные участки стен, выборки и спецификации
ТП 902-2-289-КЖ-18 Опалубка стеновых панелей. Плиты ПЖ1-3А. Армирование балки БМ-1. Спецификации
ТП 902-2-289-КЖ-19 Опалубка и армирование монолитных лотков и участков УМ-12;13. Опалубка лотка ЛП-1-30а
ТП 902-2-289-КЖ-20 Струенаправляющий щит СЩ-1. Водосливы из оргстекла
ТП 902-2-289-КЖ-21 Струенаправляющий щит СЩ-2
ТП 902-2-289-КЖ-22 Закладные детали
ТП 902-2-289-КЖ-23 Вставка
Разработан: ЦНИИЭП иженерного оборудования
Утверждён:22.07.1974 Госгражданстрой (Gosgrazhdanstroy 164)
Расположен в:Техническая документация Строительство Справочные документы Типовые строительные конструкции, изделия и узлы Общероссийский строительный каталог Промышленные предприятия, здания и сооружения Здания и сооружения санитарно-технические Канализация Сооружения для очистки производственных сточных вод Сооружения для обработки осадка
Типовой проект 902-2-289Типовой проект 902-2-289Типовой проект 902-2-289Типовой проект 902-2-289Типовой проект 902-2-289Типовой проект 902-2-289Типовой проект 902-2-289Типовой проект 902-2-289Типовой проект 902-2-289Типовой проект 902-2-289Типовой проект 902-2-289Типовой проект 902-2-289Типовой проект 902-2-289Типовой проект 902-2-289Типовой проект 902-2-289Типовой проект 902-2-289Типовой проект 902-2-289Типовой проект 902-2-289Типовой проект 902-2-289Типовой проект 902-2-289Типовой проект 902-2-289Типовой проект 902-2-289Типовой проект 902-2-289Типовой проект 902-2-289Типовой проект 902-2-289Типовой проект 902-2-289Типовой проект 902-2-289Типовой проект 902-2-289Типовой проект 902-2-289Типовой проект 902-2-289Типовой проект 902-2-289Типовой проект 902-2-289Типовой проект 902-2-289Типовой проект 902-2-289

© 2013 Ёшкин Кот :-) Карта сайта