Скачать Типовой проект 902-2-281 Альбом II. Технологическая, строительная и электротехническая частиДата актуализации: 10.08.2017 Типовой проект 902-2-281
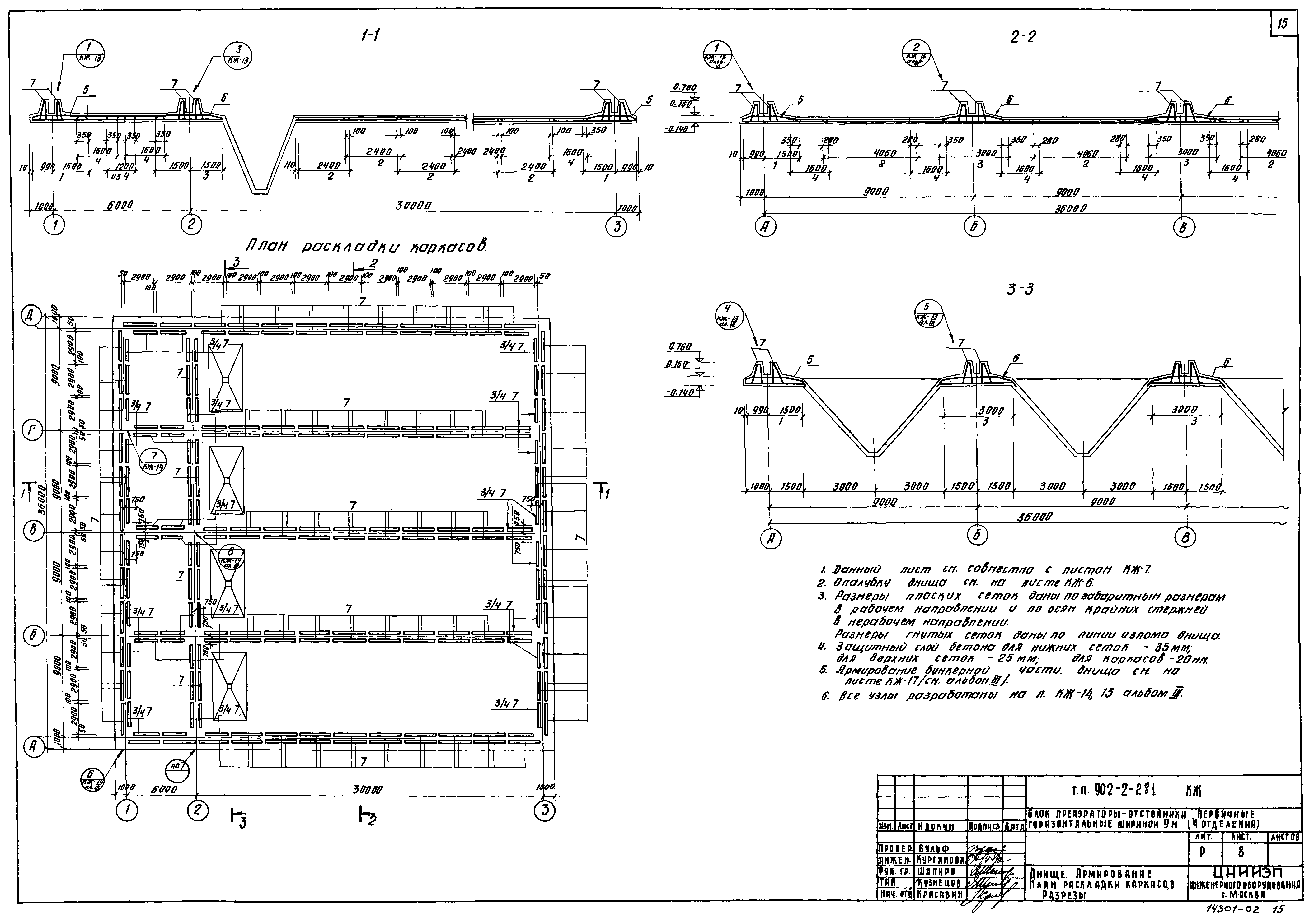
Альбом II. Технологическая, строительная и электротехническая частиОбозначение: | Типовой проект 902-2-281 | Обозначение англ: | 902-2-281 | Статус: | действует | Название рус.: | Альбом II. Технологическая, строительная и электротехническая части | Дата добавления в базу: | 01.09.2013 | Дата актуализации: | 05.05.2017 | Дата введения: | 15.12.1976 | Оглавление: | ТП 902-2-281-КГ-1 Содержание альбома. Заглавный лист ТП 902-2-281-КГ-2 План. Экспликация оборудования ТП 902-2-281-КГ-3 Разрезы 1-1;2-2. Ведомость материалов ТП 902-2-281-КГ-4 Узлы ТП 902-2-281-КГ-5 Профиль трубопровода плавающих веществ. Камера насосов плавающих веществ ТП 902-2-281-КГ-6 Схема установки скребкового механизма ТП 902-2-281-КЖ-1 Общие данные ТП 902-2-281-КЖ-2 Общий вид. План. Разрезы ТП 902-2-281-КЖ-3 Маркировочная схема панелей. Маркировочная схема лотков ТП 902-2-281-КЖ-4 Сводная спецификация бетонных и железобетонных элементов ТП 902-2-281-КЖ-5 Набетонка по днищу. План. Разрезы ТП 902-2-281-КЖ-6 Днище. Опалубка. Разрезы ТП 902-2-281-КЖ-7 Днище. Армирование. Планы раскладки нижних и верхних сеток ТП 902-2-281-КЖ-8 Днище. Армирование. Планы раскладки каркасов. Разрезы ТП 902-2-281-КЖ-9 Монолитные участки стен. Выборка и спецификации ТП 902-2-281-КЖ-10 Лоток ЛТМ-1. Опалубка ТП 902-2-281-КЖ-11 Лоток ЛТМ-1. Армирование ТП 902-2-281-АК-1 Схема подключения электрооборудования ТП 902-2-281-АК-2 Кабельный журнал ТП 902-2-281-АК-3 План блока преаэраторов отстойников. Размещение электрооборудования и прокладка кабеля | Разработан: | ЦНИИЭП иженерного оборудования
| Утверждён: | 22.07.1974 Госгражданстрой (Gosgrazhdanstroy 164)
| Расположен в: |
|
                    
|