Информационная система
«Ёшкин Кот»

Скачать базу одним архивом
Скачать обновления
История создания базы
Карта сайта

Скачать Типовой проект 902-2-410.86 Альбом III. Часть I. Нестандартизированное оборудование (из ТП 902-2-409.86)

Дата актуализации: 10.08.2017

Типовой проект 902-2-410.86

Альбом III. Часть I. Нестандартизированное оборудование (из ТП 902-2-409.86)

Обозначение: Типовой проект 902-2-410.86
Обозначение англ: 902-2-410.86
Статус:не определен законодательством
Название рус.:Альбом III. Часть I. Нестандартизированное оборудование (из ТП 902-2-409.86)
Дата добавления в базу:01.09.2013
Дата актуализации:05.05.2017
Дата введения:01.08.1986
Оглавление:Часть 1
ТП-902-2-409.86 Содержание альбома
ТП-902-2-409.86 4Х.387.00.000 СБ Устройство скребковое для сбора мазута
ТП-902-2-409.86 4Х.387.00.000 Устройство скребковое для сбора мазута. Спецификация
ТП-902-2-409.86 4Х.387.01.000 Привод. Спецификация
ТП-902-2-409.86 4Х.387.01.000 СБ Привод
ТП-902-2-409.86 4Х.387.01.100 СБ Стойка
ТП-902-2-409.86 4Х.387.01.100 Стойка. Спецификация
ТП-902-2-409.86 4Х.387.01.110 Рама. Спецификация
ТП-902-2-409.86 4Х.387.01.110 СБ Рама
ТП-902-2-409.86 4Х.387.01.111 Уголок
ТП-902-2-409.86 4Х.387.01.112 Уголок
ТП-902-2-409.86 4Х.387.01.113 Уголок
ТП-902-2-409.86 4Х.387.01.114 Косынка
ТП-902-2-409.86 4Х.387.01.101 Пружина
ТП-902-2-409.86 4Х.387.01.200 Стойка. Спецификация
ТП-902-2-409.86 4Х.387.01.200 СБ Стойка
ТП-902-2-409.86 4Х.387.01.210 СБ Стойка
ТП-902-2-409.86 4Х.387.01.210 Стойка. Спецификация
ТП-902-2-409.86 4Х.387.01.211 Скоба
ТП-902-2-409.86 4Х.387.01.300 СБ Колесо замерное
ТП-902-2-409.86 4Х.387.01.300 Колесо замерное. Спецификация
ТП-902-2-409.86 4Х.387.01.301 Лента мерная
ТП-902-2-409.86 4Х.387.01.302 Диск
ТП-902-2-409.86 4Х.387.01.400 Барабан. Спецификация
ТП-902-2-409.86 4Х.387.01.400 СБ Барабан
ТП-902-2-409.86 4Х.387.01.401 Диск
ТП-902-2-409.86 4Х.387.01.402 Поводок
ТП-902-2-409.86 4Х.387.01.001 Вал
ТП-902-2-409.86 4Х.387.01.002 Козырек
ТП-902-2-409.86 4Х.387.01.003 Полукольцо
ТП-902-2-409.86 4Х.387.02.000 СБ Скребок
ТП-902-2-409.86 4Х.387.02.000 Скребок. Спецификация
ТП-902-2-409.86 4Х.387.02.100 Щит. Спецификация
ТП-902-2-409.86 4Х.387.02.100 СБ Щит
ТП-902-2-409.86 4Х.387.02.101 Труба
ТП-902-2-409.86 4Х.387.02.102 Подвеска
ТП-902-2-409.86 4Х.387.02.103 Уголок
ТП-902-2-409.86 4Х.387.02.103-01 Уголок
ТП-902-2-409.86 4Х.387.02.200 Ползун. Спецификация
ТП-902-2-409.86 4Х.387.02.200 СБ Ползун
ТП-902-2-409.86 4Х.387.02.201 Ребро
ТП-902-2-409.86 4Х.387.02.202 Основание
ТП-902-2-409.86 4Х.387.02.203 Ось
ТП-902-2-409.86 4Х.387.02.204 Пластина
ТП-902-2-409.86 4Х.387.02.300 Рычаг. Спецификация
ТП-902-2-409.86 4Х.387.02.300 СБ Рычаг
ТП-902-2-409.86 4Х.387.02.301 Пластина
ТП-902-2-409.86 4Х.387.02.302 Втулка
ТП-902-2-409.86 4Х.387.02.303 Пластина
ТП-902-2-409.86 4Х.387.02.001 Колесо храповое
ТП-902-2-409.86 4Х.387.02.002 Пружина
ТП-902-2-409.86 4Х.387.03.000 СБ Блок поддерживающий
ТП-902-2-409.86 4Х.387.03.000 Блок поддерживающий. Спецификация
ТП-902-2-409.86 4Х.387.03.100 Кронштейн. Спецификация
ТП-902-2-409.86 4Х.387.03.100 СБ Кронштейн
ТП-902-2-409.86 4Х.387.03.101 Основание
ТП-902-2-409.86 4Х.387.03.102 Стойка
ТП-902-2-409.86 4Х.387.03.001 Ось
ТП-902-2-409.86 4Х.387.03.002 Держатель
ТП-902-2-409.86 4Х.387.03.003 Ролик
ТП-902-2-409.86 4Х.387.04.000 Блок отклоняющий. Спецификация
ТП-902-2-409.86 4Х.387.04.000 СБ Блок отклоняющий
ТП-902-2-409.86 4Х.387.04.100 Кронштейн. Спецификация
ТП-902-2-409.86 4Х.387.04.100 СБ Кронштейн
ТП-902-2-409.86 4Х.387.04.101 Основание
ТП-902-2-409.86 4Х.387.04.102 Стойка
ТП-902-2-409.86 4Х.387.04.103 Ограничитель
ТП-902-2-409.86 4Х.387.05.000 Блок боковой. Спецификация
ТП-902-2-409.86 4Х.387.05.000 СБ Блок боковой
ТП-902-2-409.86 4Х.387.05.100 Кронштейн. Спецификация
ТП-902-2-409.86 4Х.387.05.100 СБ Кронштейн
ТП-902-2-409.86 4Х.387.05.101 Стойка
ТП-902-2-409.86 4Х.387.06.000 Талреп. Спецификация
ТП-902-2-409.86 4Х.387.06.000 СБ Талреп
ТП-902-2-409.86 4Х.387.06.100 Стяжка. Спецификация
ТП-902-2-409.86 4Х.387.06.100 СБ Стяжка
ТП-902-2-409.86 4Х.387.06.101 Патрубок
ТП-902-2-409.86 4Х.387.06.102 Втулка
ТП-902-2-409.86 4Х.387.06.102-01 Втулка
ТП-902-2-409.86 4Х.387.06.001 Винт
ТП-902-2-409.86 4Х.387.06.001-01 Винт
ТП-902-2-409.86 4Х.387.07.000 Упор. Спецификация
ТП-902-2-409.86 4Х.387.07.000 СБ Упор
ТП-902-2-409.86 4Х.387.07.001 Уголок
ТП-902-2-409.86 4Х.387.07.002 Планка
ТП-902-2-409.86 4Х.387.08.000 Струбцина. Спецификация
ТП-902-2-409.86 4Х.387.08.000 СБ Струбцина
ТП-902-2-409.86 4Х.387.08.001 Планка верхняя
ТП-902-2-409.86 4Х.387.00.001 Упор
ТП-902-2-409.86 4Х.387.00.002 Кольцо
ТП-902-2-409.86 4И.551.00.000 СБ Установка фильтров
ТП-902-2-409.86 4И.551.00.000 Установка фильтров. Спецификация
ТП-902-2-409.86 4И.551.01.000 Каркас. Спецификация
ТП-902-2-409.86 4И.551.01.000 СБ Каркас
ТП-902-2-409.86 4И.551.01.001 Балка продольная
ТП-902-2-409.86 4И.551.01.002 Балка поперечная
ТП-902-2-409.86 4И.551.01.003 Связка
ТП-902-2-409.86 4И.551.01.004 Стойка
ТП-902-2-409.86 4И.551.01.005 Шпилька
ТП-902-2-409.86 4И.551.02.000 Каркас. Спецификация
ТП-902-2-409.86 4И.551.02.001 Балка поперечная
ТП-902-2-409.86 4И.551.02.002 Стойка
ТП-902-2-409.86 4И.551.02.000 СБ Каркас
ТП-902-2-409.86 4И.551.02.003 Стойка
ТП-902-2-409.86 4И.551.03.000 Фильтр
ТП-902-2-409.86 4И.551.03.100 Короб. Спецификация
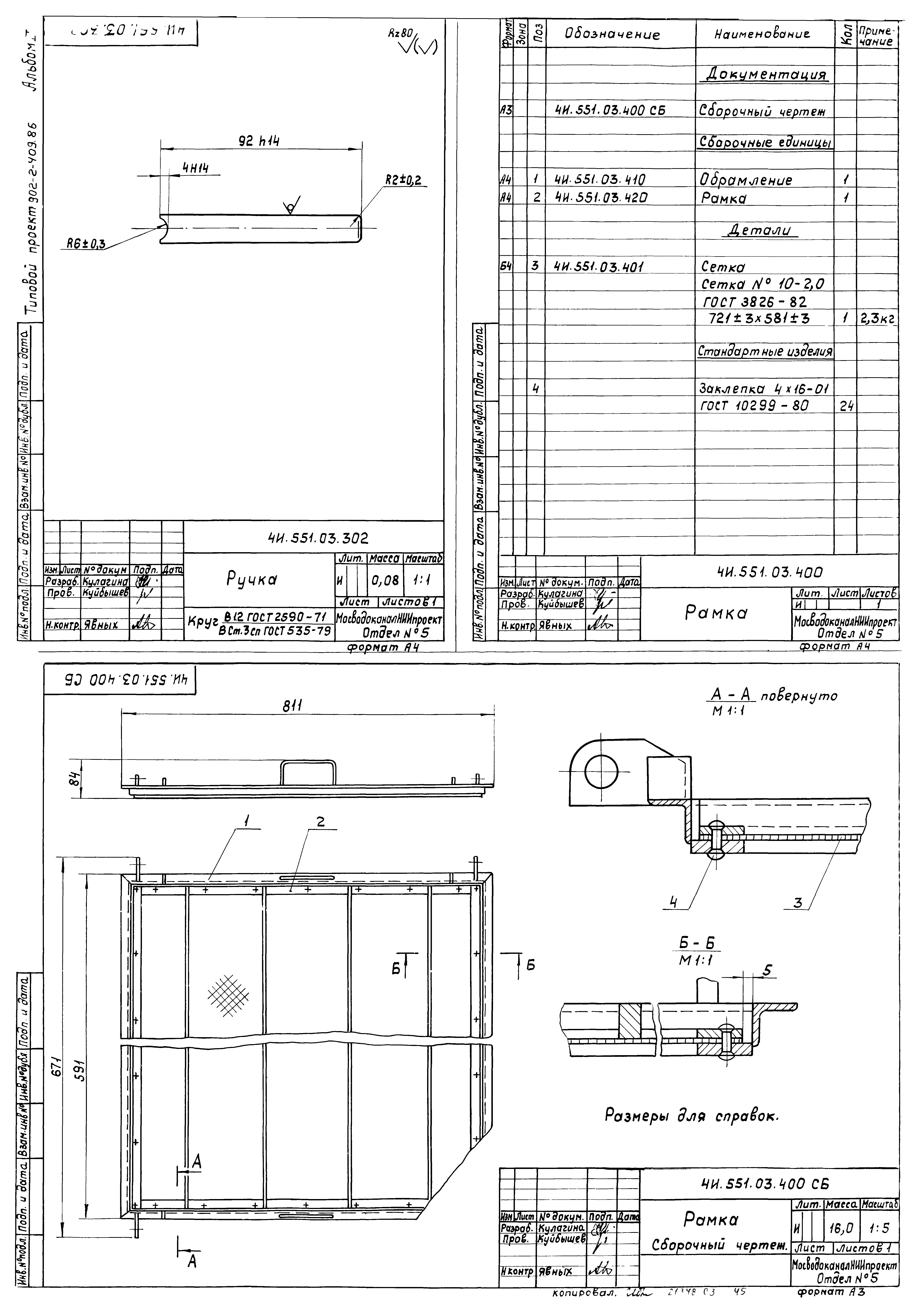
ТП-902-2-409.86 4И.551.03.101 Ручка
ТП-902-2-409.86 4И.551.03.000 СБ Фильтр
ТП-902-2-409.86 4И.551.03.100 СБ Короб
ТП-902-2-409.86 4И.551.03.102 Прокладка
ТП-902-2-409.86 4И.551.03.103 Уголок
ТП-902-2-409.86 4И.551.03.103-01 Уголок
ТП-902-2-409.86 4И.551.03.103-02 Уголок
ТП-902-2-409.86 4И.551.03.103-03 Уголок
ТП-902-2-409.86 4И.551.03.104 Прокладка
ТП-902-2-409.86 4И.551.03.105 Упор
ТП-902-2-409.86 4И.551.03.106 Петля
ТП-902-2-409.86 4И.551.03.106-01 Петля
ТП-902-2-409.86 4И.551.03.107 Проушина
ТП-902-2-409.86 4И.551.03.200 СБ Поддон
ТП-902-2-409.86 4И.551.03.200 Поддон. Спецификация
ТП-902-2-409.86 4И.551.03.210 Обрамление. Спецификация
ТП-902-2-409.86 4И.551.03.210 СБ Обрамление
ТП-902-2-409.86 4И.551.03.211 Уголок
ТП-902-2-409.86 4И.551.03.220 Рамка. Спецификация
ТП-902-2-409.86 4И.551.03.220 СБ Рамка
ТП-902-2-409.86 4И.551.03.221 Ребро
ТП-902-2-409.86 4И.551.03.221-01 Ребро
ТП-902-2-409.86 4И.551.03.300 Затвор. Спецификация
ТП-902-2-409.86 4И.551.03.300 СБ Затвор
ТП-902-2-409.86 4И.551.03.301 Шпингалет
ТП-902-2-409.86 4И.551.03.302 Ручка
ТП-902-2-409.86 4И.551.03.400 Рамка. Спецификация
ТП-902-2-409.86 4И.551.03.400 СБ Рамка
ТП-902-2-409.86 4И.551.03.410 СБ Обрамление
ТП-902-2-409.86 4И.551.03.410 Обрамление. Спецификация
ТП-902-2-409.86 4И.551.03.411 Уголок
ТП-902-2-409.86 4И.551.03.411-01 Уголок
ТП-902-2-409.86 4И.551.03.412 Петля
ТП-902-2-409.86 4И.551.03.413 Ручка
ТП-902-2-409.86 4И.551.03.420 Рамка. Спецификация
ТП-902-2-409.86 4И.551.03.500 Фиксатор. Спецификация
ТП-902-2-409.86 4И.551.03.420 СБ Рамка
ТП-902-2-409.86 4И.551.03.500 СБ Фиксатор
ТП-902-2-409.86 4И.551.03.501 Ручка
ТП-902-2-409.86 4И.551.03.502 Хомуток
ТП-902-2-409.86 4И.551.00.001 Стяжка
ТП-902-2-409.86 9Б.108.00.000 Контейнер для отработанной загрузки. Спецификация
ТП-902-2-409.86 9Б.108.00.100 Бункер. Спецификация
ТП-902-2-409.86 9Б.108.00.000 СБ Контейнер для отработанной загрузки
ТП-902-2-409.86 9Б.108.00.100 СБ Бункер
ТП-902-2-409.86 9Б.108.00.101 Угольник
ТП-902-2-409.86 9Б.108.00.101-01 Угольник
ТП-902-2-409.86 9Б.108.00.102 Скоба
ТП-902-2-409.86 9Б.108.00.103 Косынка
ТП-902-2-409.86 9Б.108.00.104 Патрубок
ТП-902-2-409.86 9Б.108.00.105 Обечайка
ТП-902-2-409.86 9Б.108.00.106 Стяжка
ТП-902-2-409.86 9Б.108.00.107 Вкладыш
ТП-902-2-409.86 9Б.108.00.200 Платформа. Спецификация
ТП-902-2-409.86 9Б.108.00.200 СБ Платформа
Разработан: МосводоканалНИИпроект
Утверждён:15.01.1986 Главстройпроект Госстроя СССР (АЧ-4)
Расположен в:Техническая документация Строительство Справочные документы Типовые строительные конструкции, изделия и узлы Общероссийский строительный каталог Промышленные предприятия, здания и сооружения Здания и сооружения санитарно-технические Канализация Сооружения для очистки производственных сточных вод Станции физико-химической очистки
Типовой проект 902-2-410.86Типовой проект 902-2-410.86Типовой проект 902-2-410.86Типовой проект 902-2-410.86Типовой проект 902-2-410.86Типовой проект 902-2-410.86Типовой проект 902-2-410.86Типовой проект 902-2-410.86Типовой проект 902-2-410.86Типовой проект 902-2-410.86Типовой проект 902-2-410.86Типовой проект 902-2-410.86Типовой проект 902-2-410.86Типовой проект 902-2-410.86Типовой проект 902-2-410.86Типовой проект 902-2-410.86Типовой проект 902-2-410.86Типовой проект 902-2-410.86Типовой проект 902-2-410.86Типовой проект 902-2-410.86Типовой проект 902-2-410.86Типовой проект 902-2-410.86Типовой проект 902-2-410.86Типовой проект 902-2-410.86Типовой проект 902-2-410.86Типовой проект 902-2-410.86Типовой проект 902-2-410.86Типовой проект 902-2-410.86Типовой проект 902-2-410.86Типовой проект 902-2-410.86Типовой проект 902-2-410.86Типовой проект 902-2-410.86Типовой проект 902-2-410.86Типовой проект 902-2-410.86Типовой проект 902-2-410.86Типовой проект 902-2-410.86Типовой проект 902-2-410.86Типовой проект 902-2-410.86Типовой проект 902-2-410.86Типовой проект 902-2-410.86Типовой проект 902-2-410.86Типовой проект 902-2-410.86Типовой проект 902-2-410.86Типовой проект 902-2-410.86Типовой проект 902-2-410.86Типовой проект 902-2-410.86Типовой проект 902-2-410.86Типовой проект 902-2-410.86Типовой проект 902-2-410.86Типовой проект 902-2-410.86Типовой проект 902-2-410.86Типовой проект 902-2-410.86Типовой проект 902-2-410.86Типовой проект 902-2-410.86Типовой проект 902-2-410.86

© 2013 Ёшкин Кот :-) Карта сайта