Информационная система
«Ёшкин Кот»

Скачать базу одним архивом
Скачать обновления
История создания базы
Карта сайта

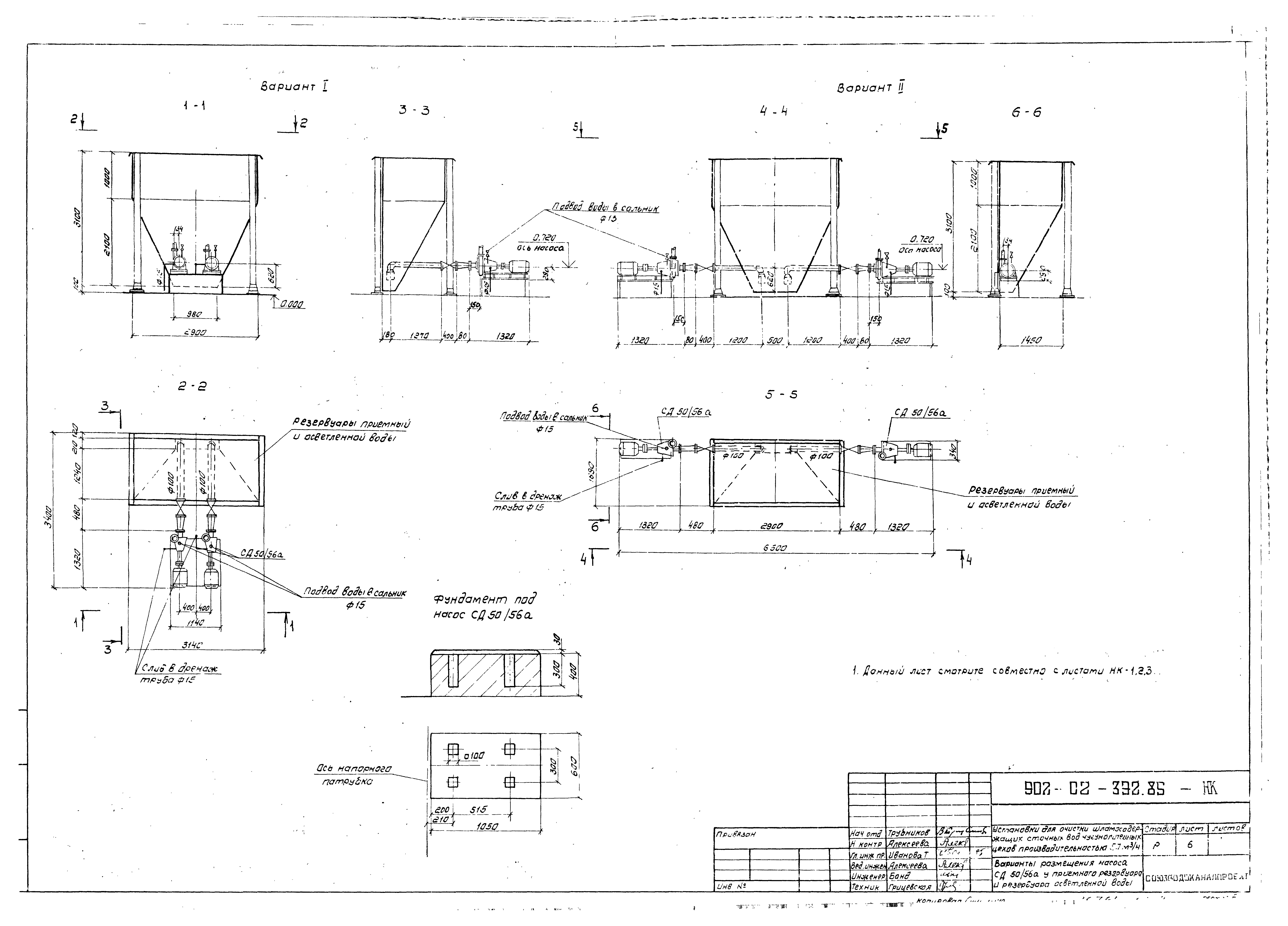
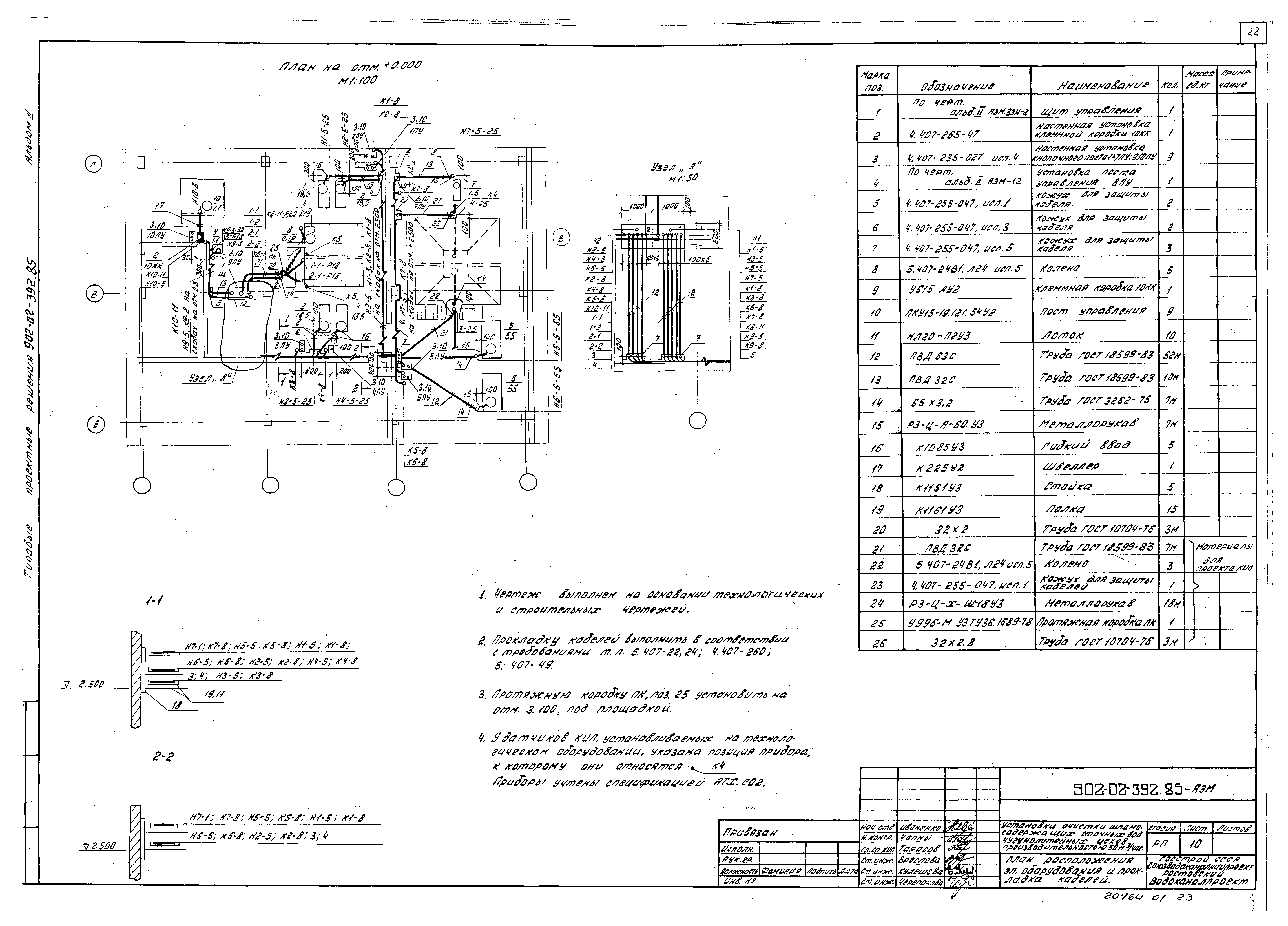
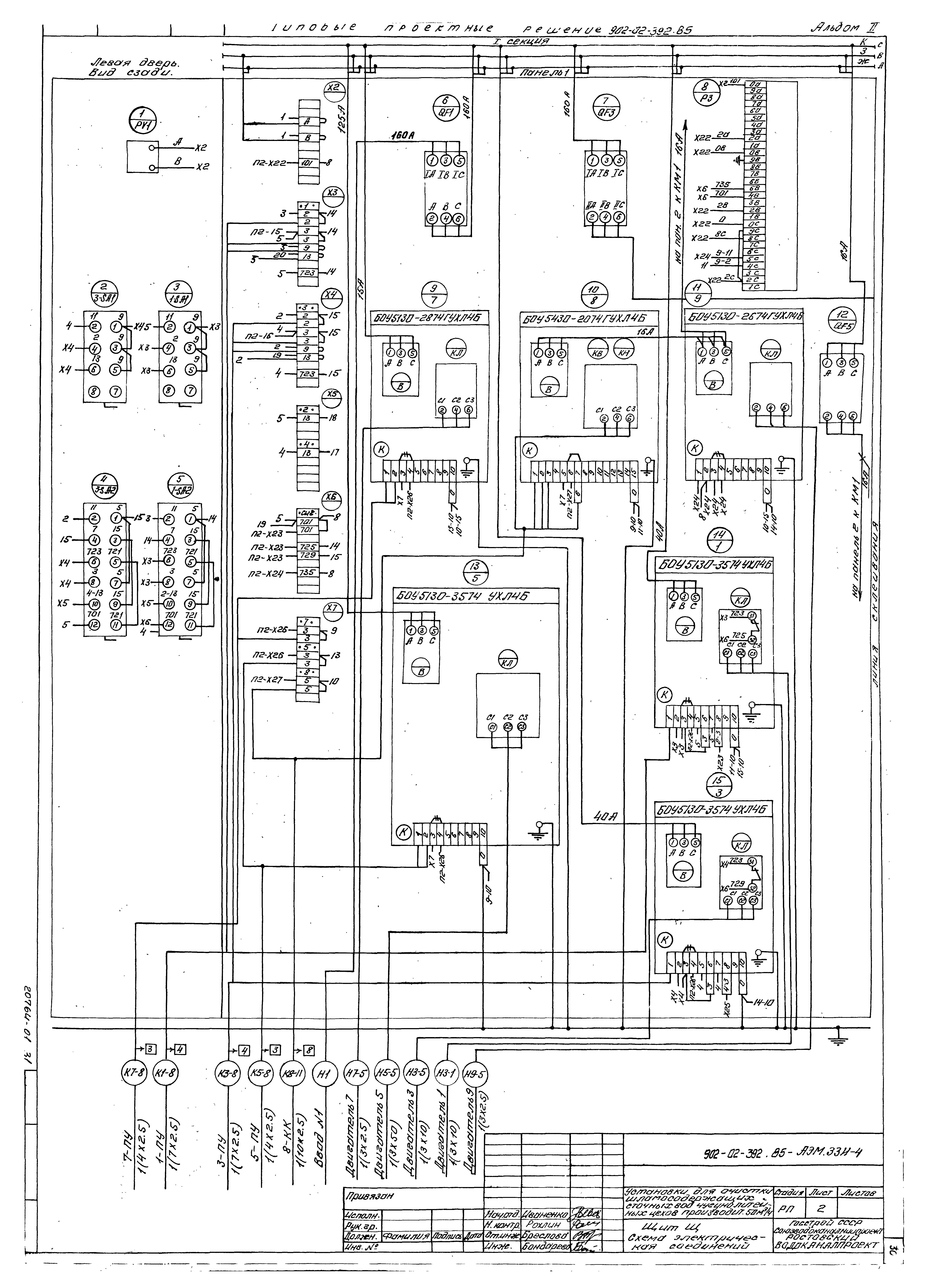
Скачать Типовые проектные решения 902-02-392.85 Альбом II. Технологические и электротехнические решения. Ведомости потребности в материалах. Задание заводу-изготовителю на электротехнические щиты

Дата актуализации: 10.08.2017

Типовые проектные решения 902-02-392.85

Альбом II. Технологические и электротехнические решения. Ведомости потребности в материалах. Задание заводу-изготовителю на электротехнические щиты

Обозначение: Типовые проектные решения 902-02-392.85
Обозначение англ: 902-02-392.85
Статус:заменен
Название рус.:Альбом II. Технологические и электротехнические решения. Ведомости потребности в материалах. Задание заводу-изготовителю на электротехнические щиты
Дата добавления в базу:01.09.2013
Дата актуализации:05.05.2017
Дата введения:26.04.1988
Разработан: Союзводоканалниипроект
Утверждён:22.07.1985 Главстройпроект Госстроя СССР (АЧ-27)
Расположен в:Техническая документация Строительство Справочные документы Типовые строительные конструкции, изделия и узлы Общероссийский строительный каталог Промышленные предприятия, здания и сооружения Здания и сооружения санитарно-технические Канализация Сооружения для очистки производственных сточных вод Станции физико-химической очистки
Чем заменён:
  • Типовые проектные решения 406-8-05.88 «Установка для очистки шламсодержащих сточных вод чугунолитейных цехов производительностью 50 куб. м/ч в блоках агрегированного оборудования "АКВАШЛАМ-50"»
Типовые проектные решения 902-02-392.85Типовые проектные решения 902-02-392.85Типовые проектные решения 902-02-392.85Типовые проектные решения 902-02-392.85Типовые проектные решения 902-02-392.85Типовые проектные решения 902-02-392.85Типовые проектные решения 902-02-392.85Типовые проектные решения 902-02-392.85Типовые проектные решения 902-02-392.85Типовые проектные решения 902-02-392.85Типовые проектные решения 902-02-392.85Типовые проектные решения 902-02-392.85Типовые проектные решения 902-02-392.85Типовые проектные решения 902-02-392.85Типовые проектные решения 902-02-392.85Типовые проектные решения 902-02-392.85Типовые проектные решения 902-02-392.85Типовые проектные решения 902-02-392.85Типовые проектные решения 902-02-392.85Типовые проектные решения 902-02-392.85Типовые проектные решения 902-02-392.85Типовые проектные решения 902-02-392.85Типовые проектные решения 902-02-392.85Типовые проектные решения 902-02-392.85Типовые проектные решения 902-02-392.85Типовые проектные решения 902-02-392.85Типовые проектные решения 902-02-392.85Типовые проектные решения 902-02-392.85Типовые проектные решения 902-02-392.85Типовые проектные решения 902-02-392.85Типовые проектные решения 902-02-392.85Типовые проектные решения 902-02-392.85Типовые проектные решения 902-02-392.85Типовые проектные решения 902-02-392.85

© 2013 Ёшкин Кот :-) Карта сайта