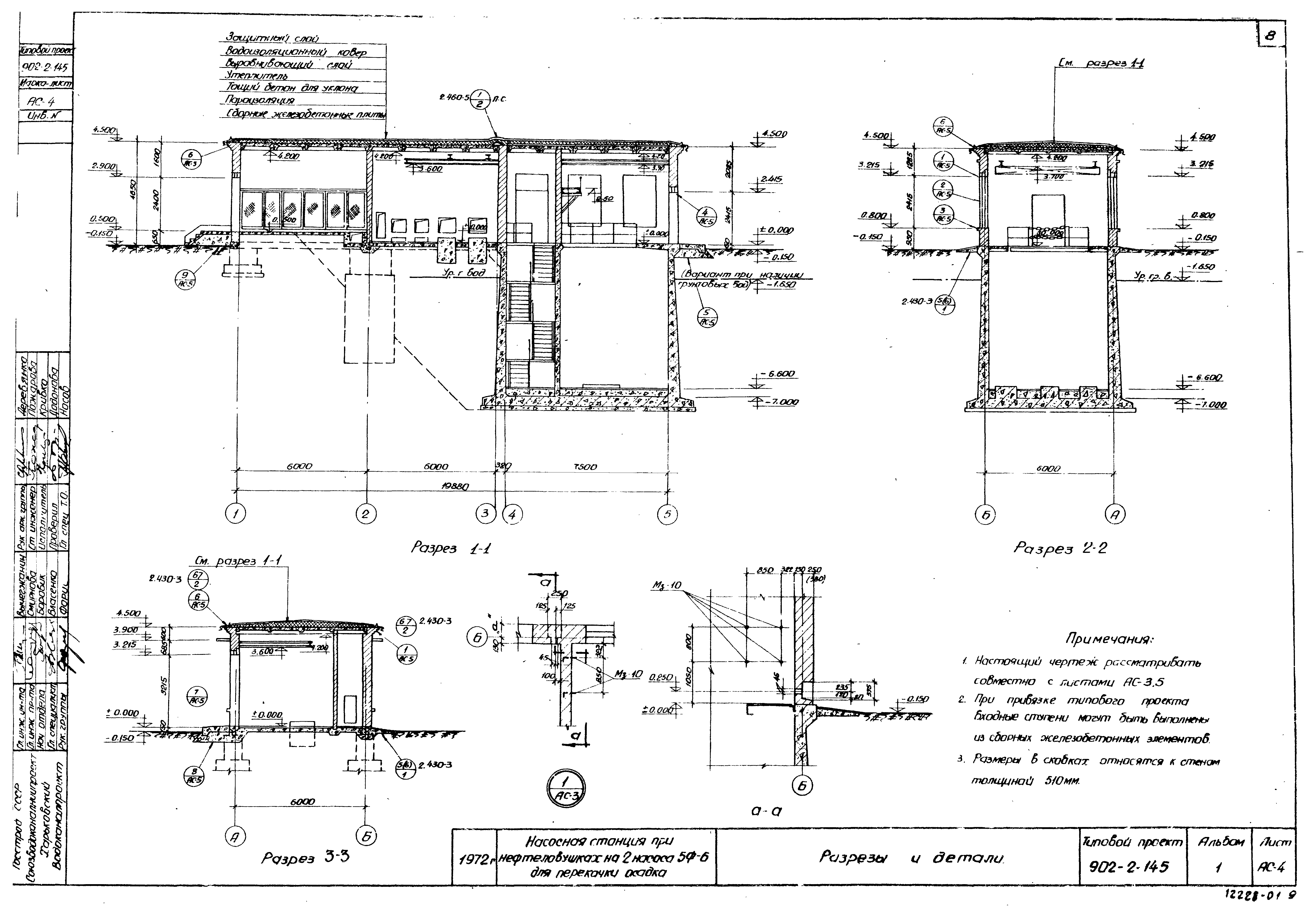
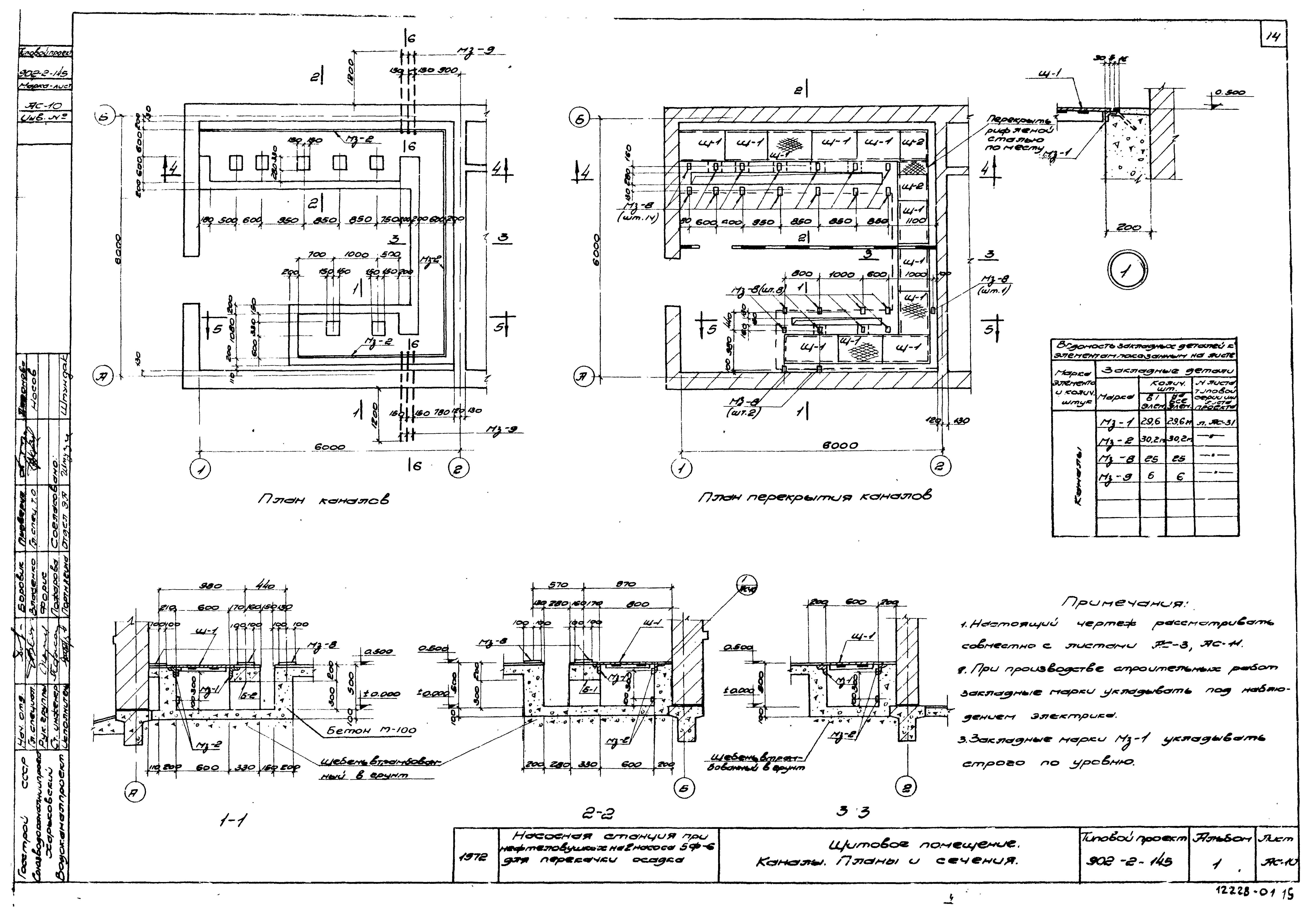
Скачать Типовой проект 902-2-145 Альбом 1. Архитектурно-строительная часть при открытом способе производства работДата актуализации: 10.08.2017 Типовой проект 902-2-145
Альбом 1. Архитектурно-строительная часть при открытом способе производства работОбозначение: | Типовой проект 902-2-145 | Обозначение англ: | 902-2-145 | Статус: | не действует | Название рус.: | Альбом 1. Архитектурно-строительная часть при открытом способе производства работ | Дата добавления в базу: | 01.09.2013 | Дата актуализации: | 05.05.2017 | Дата введения: | 01.02.1984 | Разработан: | Харьковский Водоканалпроект
| Утверждён: | 23.04.1973 СоюзводоканалНИИпроект (SoyuzvodokanalNIIproject 95)
| Расположен в: |
|
                                    
|