Скачать Типовой проект 903-1-153 Альбом I. Архитектурно-строительные решения, конструкции железобетонные и металлическиеДата актуализации: 10.08.2017 Типовой проект 903-1-153
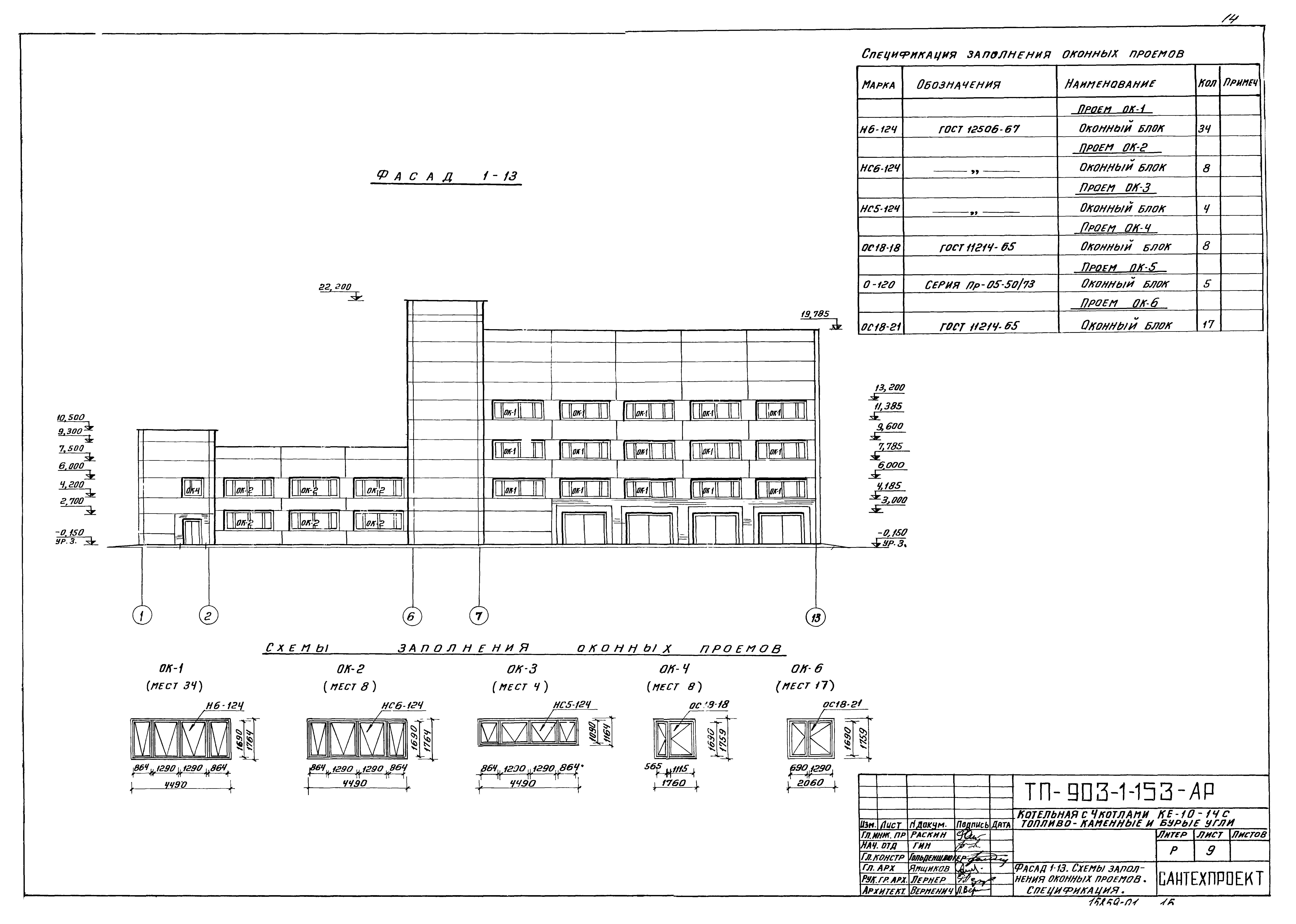
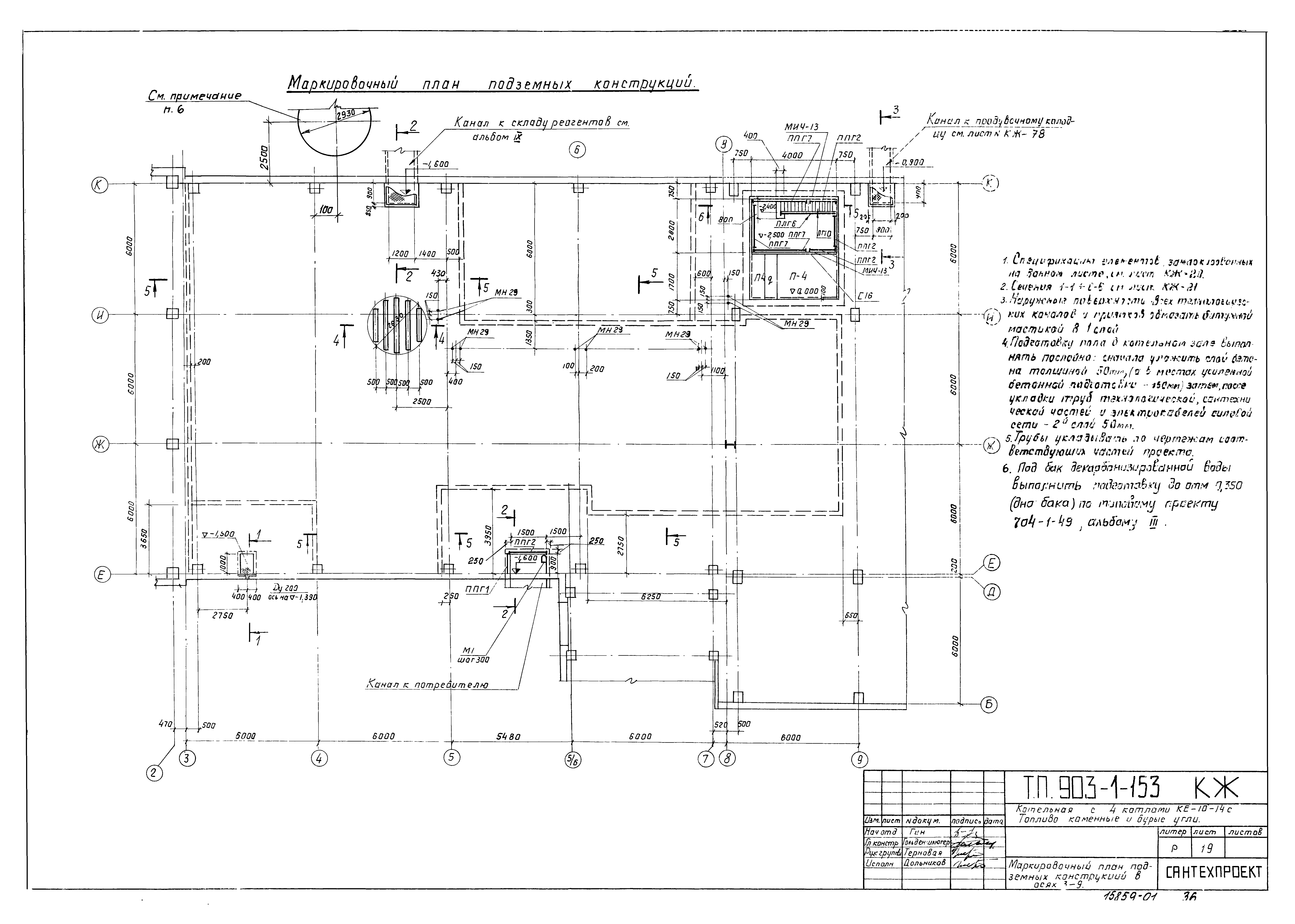
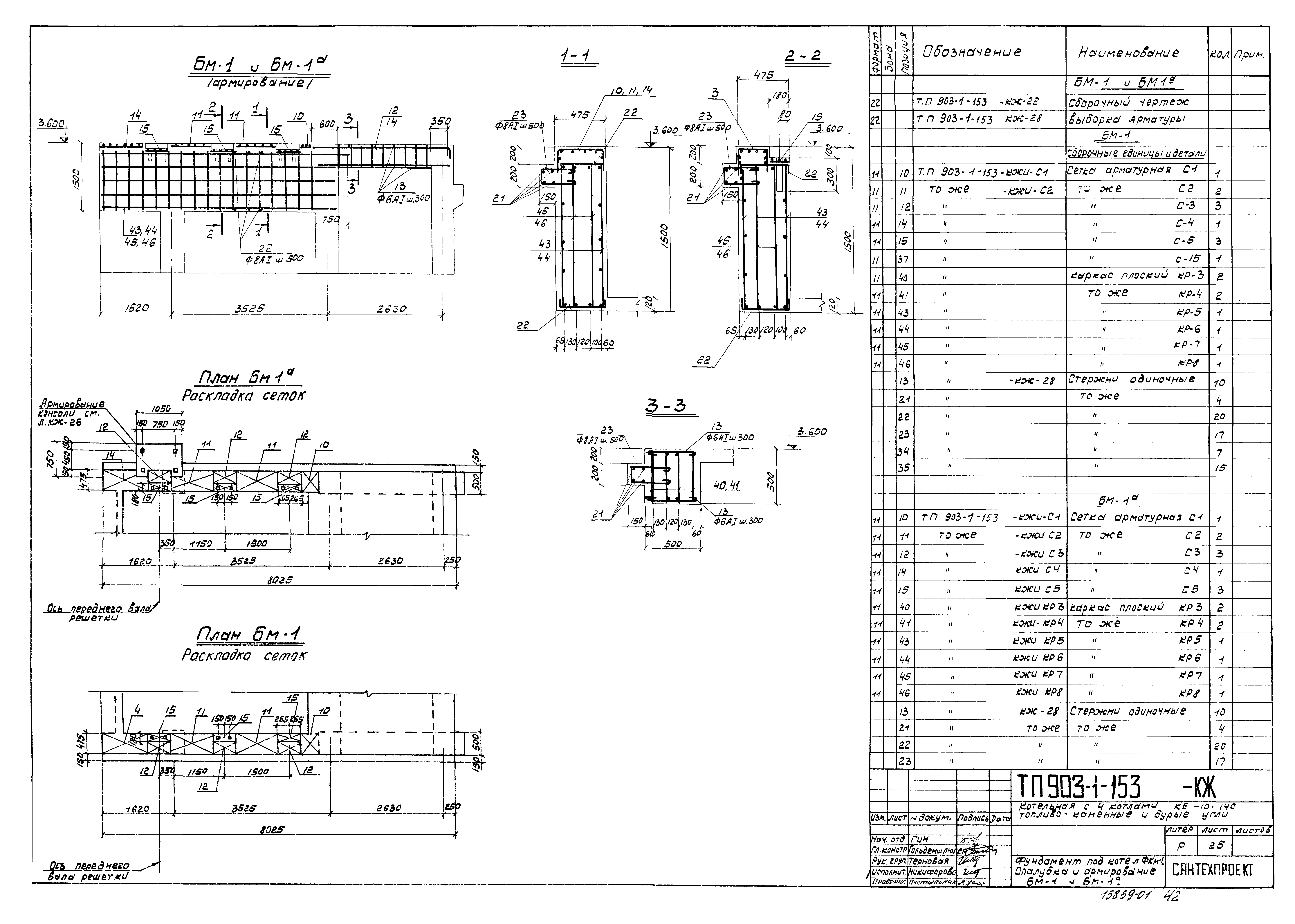
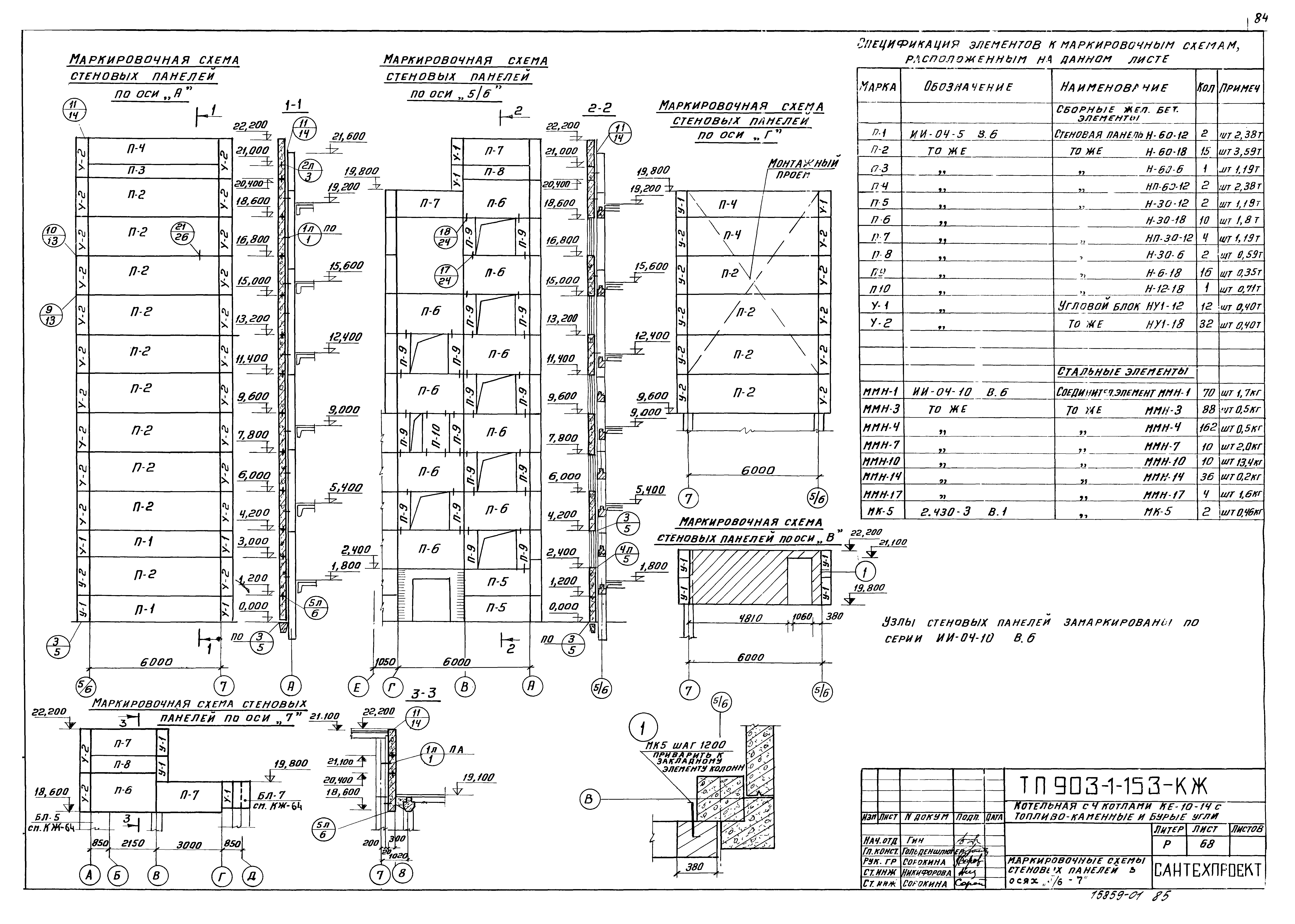
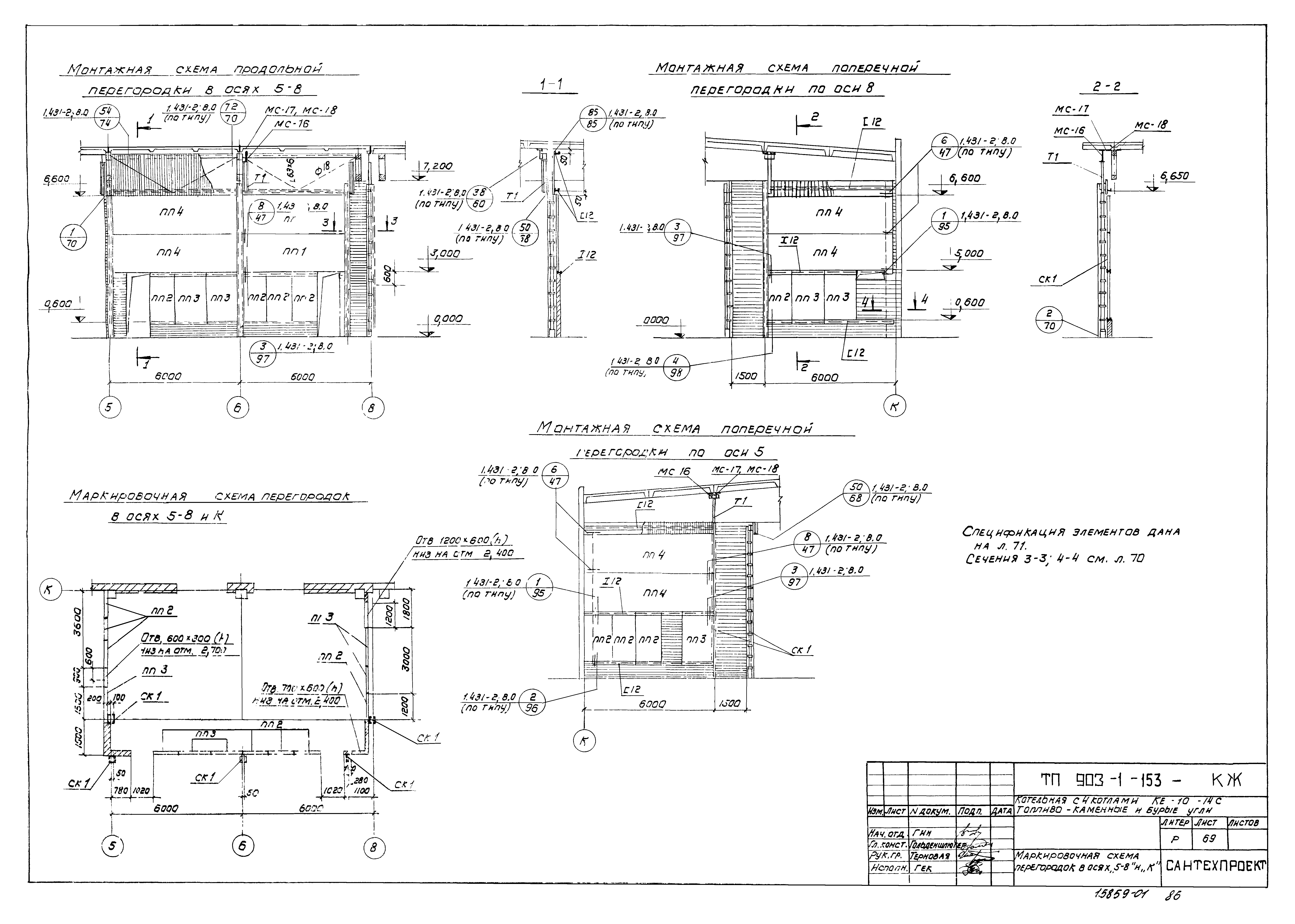
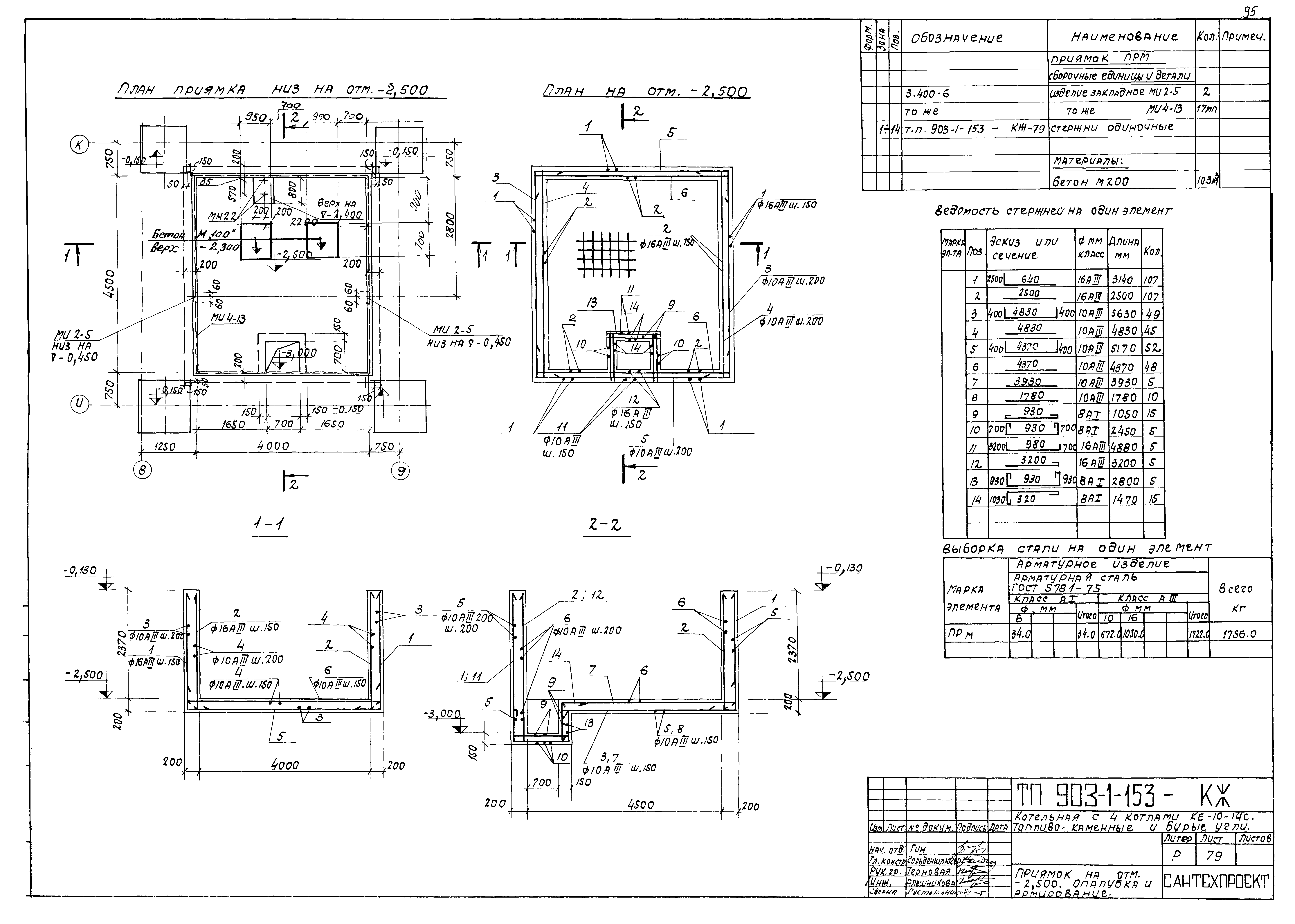
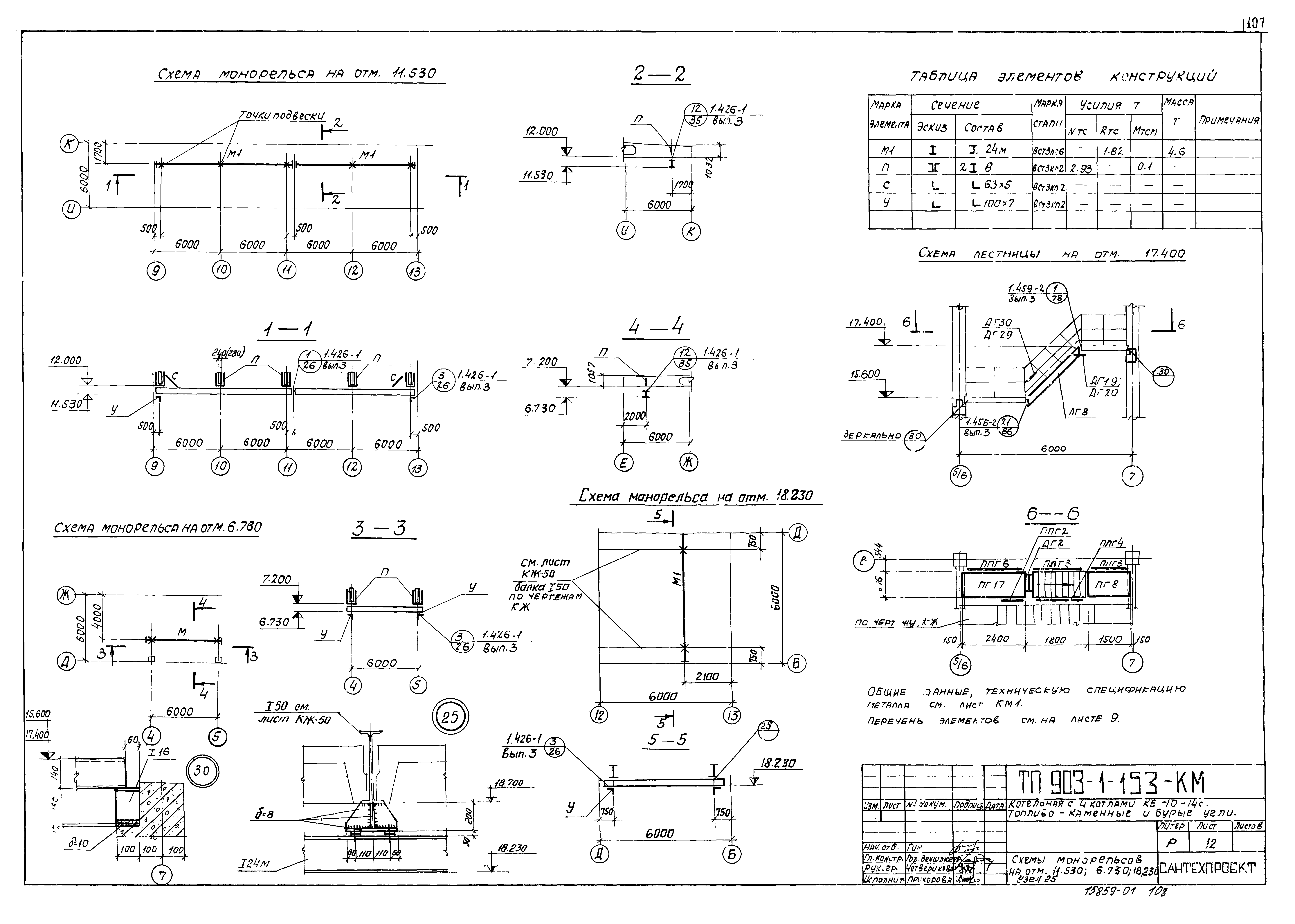
Альбом I. Архитектурно-строительные решения, конструкции железобетонные и металлическиеОбозначение: | Типовой проект 903-1-153 | Обозначение англ: | 903-1-153 | Статус: | заменен | Название рус.: | Альбом I. Архитектурно-строительные решения, конструкции железобетонные и металлические | Дата добавления в базу: | 01.09.2013 | Дата актуализации: | 05.05.2017 | Дата введения: | 13.08.1982 | Оглавление: | ТП 903-1-153 Титульный лист ТП 903-1-153 Содержание альбома ТП 903-1-153-ПЗ1-2 Пояснительная записка ТП 903-1-153-ПЗ-3 Схема генерального плана ТП 903-1-153-АР-1 Общие данные (начало) ТП 903-1-153-АР-2 Общие данные (окончание) ТП 903-1-153-АР-3 План на отм. 0.000. Спецификация ТП 903-1-153-АР-4 План на отм. 3.300 и 3.600. Спецификация ТП 903-1-153-АР-5 Фрагменты плана 1,2. План на отм. 6.600 ТП 903-1-153-АР-6 Фрагменты плана 3. План на отм. 7.200,11.400,15.600 и 19.200 ТП 903-1-153-АР-7 Разрезы 1-1÷3-3. Узлы 1 и 2 ТП 903-1-153-АР-8 Разрез 4-4. Узел 3 ТП 903-1-153-АР-9 Фасад 1-13. Схемы заполнения оконных проемов. Спецификация ТП 903-1-153-АР-10 Фасады К-А,Б-К,13-1 ТП 903-1-153-АР-11 Планы полов ТП 903-1-153-КЖ Железобетонные конструкции ТП 903-1-153-КЖ-1 Общие данные (начало) ТП 903-1-153-КЖ-2 Общие данные (продолжение) ТП 903-1-153-КЖ-3 Общие данные (продолжение) ТП 903-1-153-КЖ-4 Общие данные (продолжение) ТП 903-1-153-КЖ-5 Общие данные (продолжение) ТП 903-1-153-КЖ-6 Общие данные (продолжение) ТП 903-1-153-КЖ-7 Общие данные (продолжение) ТП 903-1-153-КЖ-8 Общие данные (окончание) ТП 903-1-153-КЖ-9 Маркировочная схема фундаментов и фундаментных балок. Фрагменты 1,1а ТП 903-1-153-КЖ-10 Фрагменты 2,3. Узел 8 ТП 903-1-153-КЖ-11 Узлы 1-7 ТП 903-1-153-КЖ-12 Узлы 9,10 ТП 903-1-153-КЖ-13 Монолитные ж.б. фундаменты ФМ1,1а,1б,1в,1г,ФМ2,ФМ4,4а,4б. Схемы армирования ТП 903-1-153-КЖ-14 Монолитные ж.б. фундаменты ФМ3,ФМ3в,ФМ5,ФМ5а ТП 903-1-153-КЖ-15 Монолитные ж.б. фундаменты ФМ6,6а,ФМ7,ФМ7а,ФМ8 ТП 903-1-153-КЖ-16 Монолитные ж.б. фундаменты ФМ10,ФМ13 ТП 903-1-153-КЖ-17 Монолитные ж.б. фундаменты ФМ11,ФМ12 ТП 903-1-153-КЖ-18 Монолитный ж.б. фундамент ФМ9 ТП 903-1-153-КЖ-19 Маркировочный план подземных конструкций в осях 3-9 ТП 903-1-153-КЖ-20 Маркировочный план подземных конструкций в осях 9-13 ТП 903-1-153-КЖ-21 Узел 1. Сечения 1-1÷8-8 ТП 903-1-153-КЖ-22 Фундамент под котел ФКМ-1. Маркировочный план фундамента ФКМ-1 на отм. 3.600. Разрезы ТП 903-1-153-КЖ-23 Фундамент под котел ФКМ-1. Схема нагрузок. Маркировочная схема опор колонн ТП 903-1-153-КЖ-24 Фундамент под котел ФКМ-1, опалубка и армирование ОПМ1,ОПМ2,КМ1-КМ3 ТП 903-1-153-КЖ-25 Фундамент под котел ФКМ-1, опалубка и армирование БМ1 и БМ1а ТП 903-1-153-КЖ-26 Фундамент под котел ФКМ-1, опалубка и армирование БМ2-БМ4 ТП 903-1-153-КЖ-27 Фундамент под котел ФКМ-1, опалубка и армирование БМ5 и ПМ1а ТП 903-1-153-КЖ-28 Фундамент под котел ФКМ-1. Ведомость стержней. Выборка стали ТП 903-1-153-КЖ-29 Маркировочный план КТП 2х400,КВА и ЩСУ. Разрез 1-1 ТП 903-1-153-КЖ-30 КТП 2х400 кВА и ЩСУ. Сечения 2-2÷9-9 ТП 903-1-153-КЖ-31 КТП 2х400 кВА и ЩСУ. Балки БМ6-БМ9 ТП 903-1-153-КЖ-32 Канал шлакоудаления БТМ1 ТП 903-1-153-КЖ-33 Канал шлакоудаления БТМ1. Схема армирования ТП 903-1-153-КЖ-34 Маркировочная схема колонн, ригелей и связей ТП 903-1-153-КЖ-35 Маркировочная схема элементов каркаса. Разрезы 1-1÷4-4. Маркировочная схема связей ТП 903-1-153-КЖ-36 Маркировочная схема элементов каркаса. Спецификация ТП 903-1-153-КЖ-37 Маркировочная схема элементов каркаса в осях "1-2" ТП 903-1-153-КЖ-38 Разрезы 1-1÷6-6 каркаса в осях "1-2" ТП 903-1-153-КЖ-39 Маркировочные планы каркаса в осях "5/6" и "А-Г" ТП 903-1-153-КЖ-40 Маркировочные разрезы каркаса в осях "5/6-7" "А-Г" ТП 903-1-153-КЖ-41 Маркировочные планы конструкций на отм. 3.600. Фундаменты ФОМ1,ФОМ2 ТП 903-1-153-КЖ-42 Маркировочные схемы перекрытий на отм. 3.600 ТП 903-1-153-КЖ-43 Армирование плит ПМ1-ПМ4 на отм. 3.600 ТП 903-1-153-КЖ-44 Маркировочная схема плит перекрытия на отм. 3.600. Армирование ПМ5,ПМ6 ТП 903-1-153-КЖ-45 Маркировочные схемы на отм. 7.200 ТП 903-1-153-КЖ-46 Фрагменты планов №1,№2. Разрезы 1-1÷3-3 ТП 903-1-153-КЖ-47 Монолитные плиты ПМ7,ПМ8. Армирование ТП 903-1-153-КЖ-48 Балки монолитные БМ10-БМ15. Схемы армирования ТП 903-1-153-КЖ-49 Маркировочная схема закладных деталей на отм. 15.600 ТП 903-1-153-КЖ-50 Маркировочные схемы перекрытия и покрытия на отм. 15.600 ТП 903-1-153-КЖ-51 Армирование монолитных плит ПМ9,ПМ10 на отм. 15.600 ТП 903-1-153-КЖ-52 Маркировочные схемы плит перекрытия и покрытия в осях "1-2" ТП 903-1-153-КЖ-53 Маркировочные схемы плит перекрытия и покрытия в осях "5/6-7" и "А-В". Маркировочные планы накладных проступей ТП 903-1-153-КЖ-54 Бункер шлакозолоудаления БУМ1 ТП 903-1-153-КЖ-55 Бункер шлакозолоудаления БУМ1. Схема армирования ТП 903-1-153-КЖ-56 Бункер шлакозолоудаления БУМ1. Узлы и детали ТП 903-1-153-КЖ-57 Маркировочная схема лестницы в осях "5/6-7" по оси "А" ТП 903-1-153-КЖ-58 Маркировочная схема лестницы в осях "Е-Ж" по оси "1" ТП 903-1-153-КЖ-59 Маркировочные схемы стеновых панелей ТП 903-1-153-КЖ-60 Маркировочные схемы стеновых панелей. Фрагменты 1-7 ТП 903-1-153-КЖ-61 Маркировочные схемы стеновых панелей. Фрагменты 8-14 ТП 903-1-153-КЖ-62 Маркировочные схемы стеновых панелей. Фрагменты 15-22 ТП 903-1-153-КЖ-63 Маркировочная схема стеновых панелей по оси 8. Маркировочная схема стальных стоек. Фрагменты 1-4 ТП 903-1-153-КЖ-64 Маркировочные схемы стеновых панелей по оси "Е","А-Б","Е-Г". Узлы 1-3 ТП 903-1-153-КЖ-65 Узлы 1-5 ТП 903-1-153-КЖ-66 Спецификация стеновых панелей и соединительных элементов ТП 903-1-153-КЖ-67 Маркировочные схемы стеновых панелей и перегородок в осях 1-2 ТП 903-1-153-КЖ-68 Маркировочные схемы стеновых панелей в осях "5/6-7" ТП 903-1-153-КЖ-69 Маркировочная схема перегородок в осях "5-8" и "К" ТП 903-1-153-КЖ-70 Узлы 1,2. Сечения 3-3÷4-4 ТП 903-1-153-КЖ-71 Маркировочная схема перегородок на отм. 0.000. Спецификация ТП 903-1-153-КЖ-72 План газоходов на отм. 4.000. Разрезы 1-1÷5-5. Узлы 1,2 ТП 903-1-153-КЖ-73 Маркировочные схемы фундаментов и колонн газоходов. Сечение 1-1 ТП 903-1-153-КЖ-74 Фундаменты газоходов ФГМ1,ФГМ2,ФГМ6 ТП 903-1-153-КЖ-75 Фундаменты ФГМ3-ФГМ5. Опалубка и армирование ТП 903-1-153-КЖ-76 Маркировочные схемы плит перекрытия и покрытия газоходов ТП 903-1-153-КЖ-77 Армирование монолитных участков УМ1-УМ12. Узел 1 ТП 903-1-153-КЖ-78 Маркировочные схемы лотков, плит покрытия и опор под трубопроводы. Продувочный колодец ТП 903-1-153-КЖ-79 Приямок на отм. -2.500. Опалубка и армирование ТП 903-1-153-КМ Металлические конструкции ТП 903-1-153-КМ-1 Общие данные ТП 903-1-153-КМ-2 Техническая спецификация металла ТП 903-1-153-КМ-3 Схема балок перекрытия на отм. 3.600 ТП 903-1-153-КМ-4 Схема балок перекрытия на отм. 3.600 ТП 903-1-153-КМ-5 Разрезы 2-2÷12-12 ТП 903-1-153-КМ-6 Схема балок перекрытия на отм. 7.200. Схема балок на отм. 11.900 ТП 903-1-153-КМ-7 Схема балок перекрытия на отм 15.600 ТП 903-1-153-КМ-8 Схема балок площадки и ограждений на отм. 10.000. Узлы 14-18 ТП 903-1-153-КМ-9 Схема балок и ограждений на отм. 3.600. Схема лестницы на отм. 7.150 ТП 903-1-153-КМ-10 Схема стоек фахверка на отм. 0.000. Схема оконных переплетов в осях 13-8 ТП 903-1-153-КМ-11 Схема стоек и балок на отм. 4.000;11.400. Узлы 19,20 ТП 903-1-153-КМ-12 Схема монорельсов на отм. 11.530;6.730;18.230. Узел 25 ТП 903-1-153-КМ-13 Схема наружной лестницы на отм. 15.500. Стремянки на отм. 10.485;14.385 ТП 903-1-153-КМ-14 Газоходы. Схемы балок, площадок и ограждений. Узлы 21-24 ТП 903-1-153-КМ-15 Узлы 1-5 ТП 903-1-153-КМ-16 Узлы 6-8;26-28 ТП 903-1-153-КМ-17 Узлы 9-13 | Разработан: | ГПИ Сантехпроект Госстроя СССР Минтяжмаш СССР Союзпроммеханизация
| Утверждён: | 23.03.1979 ГПИ Сантехпроект (47)
| Расположен в: |
| Заменяет собой: | | Чем заменён: | |
                                                                                                                
|