Информационная система
«Ёшкин Кот»

Скачать базу одним архивом
Скачать обновления
История создания базы
Карта сайта

Скачать Типовой проект 902-2-417.86 Альбом II. Технология производства. Конструкции железобетонные. Конструкции металлические. Силовое электрооборудование

Дата актуализации: 10.08.2017

Типовой проект 902-2-417.86

Альбом II. Технология производства. Конструкции железобетонные. Конструкции металлические. Силовое электрооборудование

Обозначение: Типовой проект 902-2-417.86
Обозначение англ: 902-2-417.86
Статус:не действует
Название рус.:Альбом II. Технология производства. Конструкции железобетонные. Конструкции металлические. Силовое электрооборудование
Дата добавления в базу:01.09.2013
Дата актуализации:05.05.2017
Оглавление:ТП 902-2-417.86 Титульный лист
ТП 902-2-417.86 Содержание альбома
ТП 902-2-417.86-ТХ Технология производства ТХ
ТП 902-2-417.86-ТХ-1 Общие данные
ТП 902-2-417.86-ТХ-2 Схемы расположения очистных сооружений в системе оборотного водоснабжения мойки автомобилей. Технологическая схема очистки сточных вод
ТП 902-2-417.86-ТХ-3 Планы на отм. 0.000;3.740. Разрезы 1-1;2-2;3-3;4-4
ТП 902-2-417.86-КЖ Конструкции железобетонные КЖ
ТП 902-2-417.86-КЖ-1 Общие данные
ТП 902-2-417.86-КЖ-2 Очистные сооружения. План на отметке 3.600. Сечения 1-1...4-4. Узел 1
ТП 902-2-417.86-КЖ-3 Схема расположения щитов перекрытия. Сечения 5-5...6-6. Узлы 2...5
ТП 902-2-417.86-КЖ-4 Схемыа армирования очистных сооружений
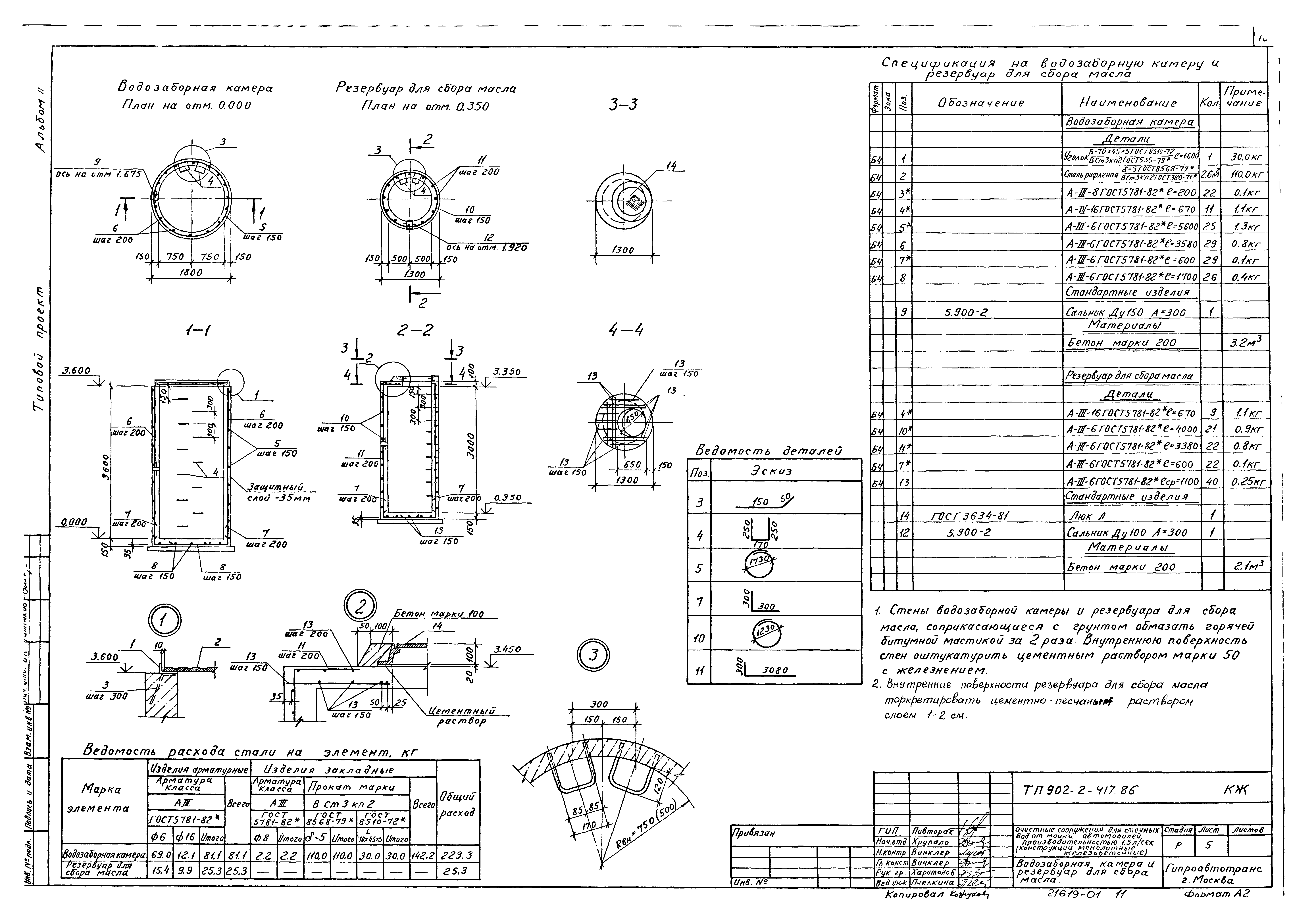
ТП 902-2-417.86-КЖ-5 Водозаборная камера и резервуар для масла
ТП 902-2-417.86-КЖИ.000 Изделие закладное МН-1
ТП 902-2-417.86-КЖИ.010 Изделие закладное МН-2
ТП 902-2-417.86-КЖИ.020 Изделие закладное МН-3,МН-4
ТП 902-2-417.86-КЖИ.030 Изделие закладное МН-5
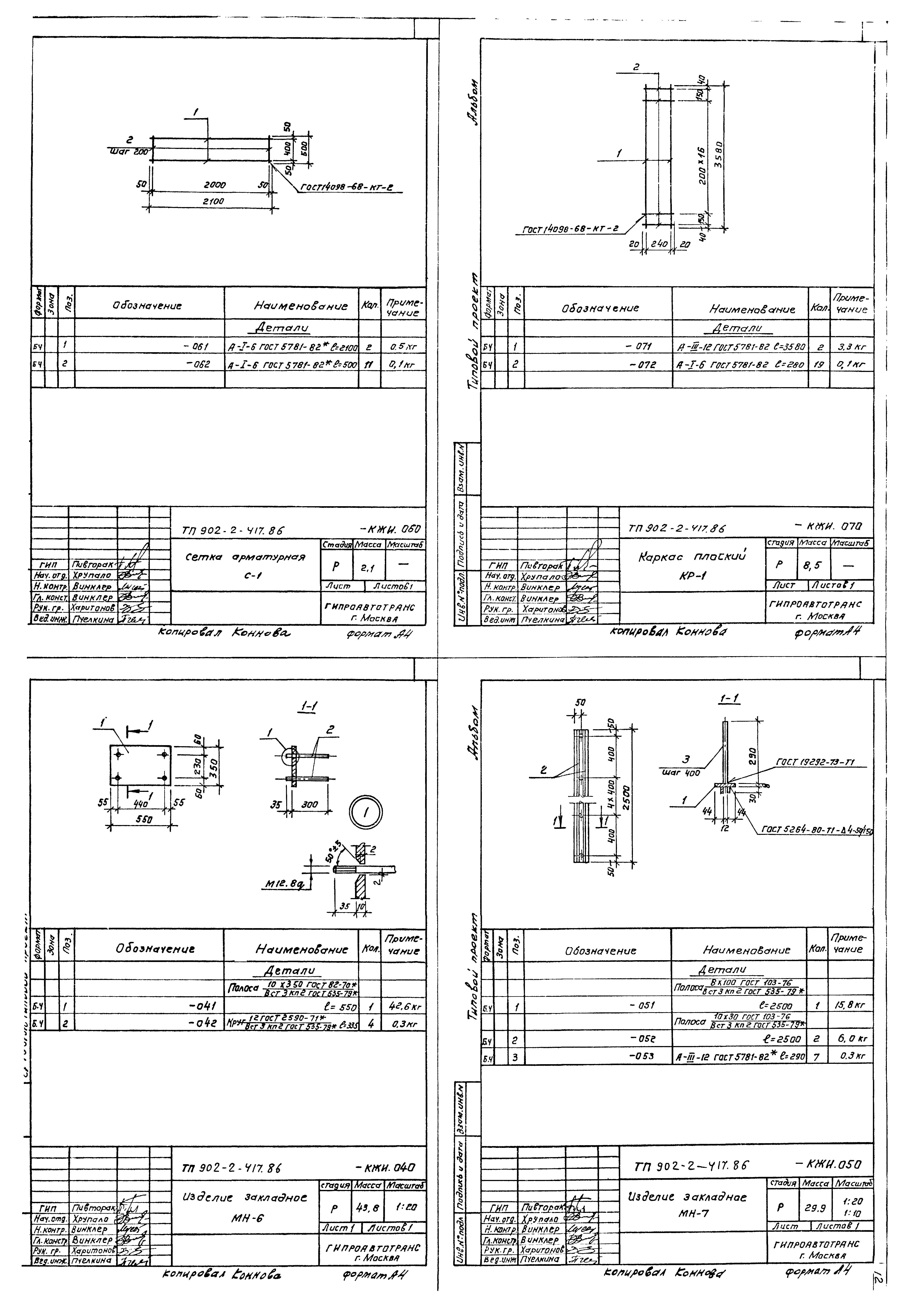
ТП 902-2-417.86-КЖИ.040 Изделие закладное МН-6
ТП 902-2-417.86-КЖИ.050 Изделие закладное МН-7
ТП 902-2-417.86-КЖИ.060 Сетка арматурная С-1
ТП 902-2-417.86-КЖИ.070 Каркас плоский КР-1
ТП 902-2-417.86-КЖИ.080 Решетка Р-1
ТП 902-2-417.86-КЖИ.090 Щит деревянный ЩД-1
ТП 902-2-417.86-КЖИ.100 Изделие закладное МН-8
ТП 902-2-417.86-КЖИ.110 Щит деревянный ЩД-2
ТП 902-2-417.86-КМ Конструкции металлические КМ
ТП 902-2-417.86-КМ-1 Общие данные (начало)
ТП 902-2-417.86-КМ-2 Общие данные (продолжение)
ТП 902-2-417.86-КМ-3 Общие данные (продолжение)
ТП 902-2-417.86-КМ-4 Общие данные (окончание)
ТП 902-2-417.86-КМ-5 Схема расположения подвесного транспорта. Разрезы. Узел 1
ТП 902-2-417.86-КМ-6 Схема расположения подвесного транспорта. Узлы 2-7
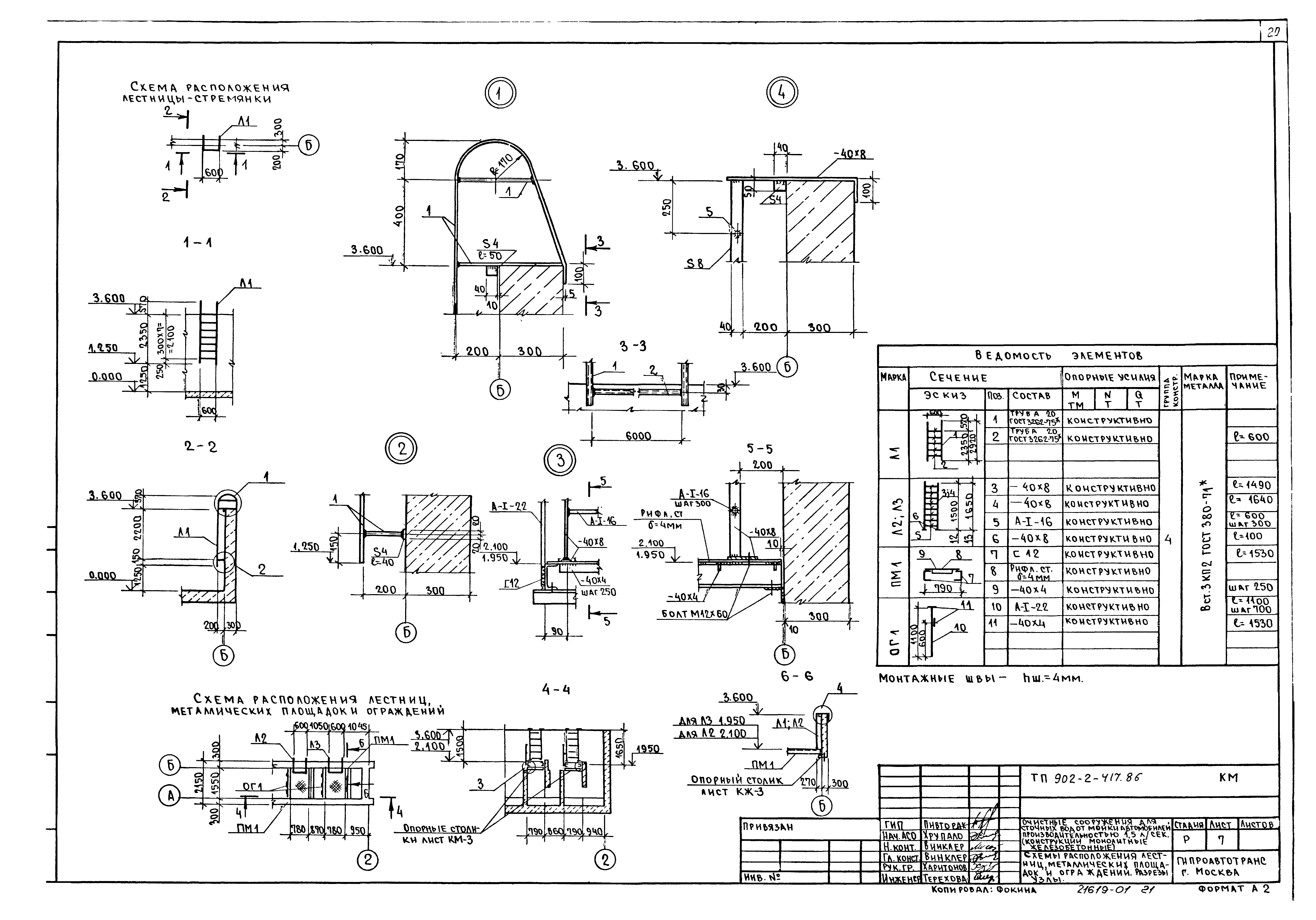
ТП 902-2-417.86-КМ-7 Схемы расположения лестниц, металлических площадок и ограждений. Разрезы. Узлы
ТП 902-2-417.86-ЭМ Силовое электрооборудование ЭМ
ТП 902-2-417.86-ЭМ-1 Общие данные. Схема принципиальная однолинейная. План
Разработан: Гипроавтотранс
Утверждён:10.06.1986 Минавтотранс РСФСР (Russian Federation Minavtotrans 13)
Расположен в:Техническая документация Строительство Справочные документы Типовые строительные конструкции, изделия и узлы Общероссийский строительный каталог Промышленные предприятия, здания и сооружения Здания и сооружения санитарно-технические Канализация Сооружения для очистки производственных сточных вод Сооружения для очистки сточных вод от мойки автомобилей
Типовой проект 902-2-417.86Типовой проект 902-2-417.86Типовой проект 902-2-417.86Типовой проект 902-2-417.86Типовой проект 902-2-417.86Типовой проект 902-2-417.86Типовой проект 902-2-417.86Типовой проект 902-2-417.86Типовой проект 902-2-417.86Типовой проект 902-2-417.86Типовой проект 902-2-417.86Типовой проект 902-2-417.86Типовой проект 902-2-417.86Типовой проект 902-2-417.86Типовой проект 902-2-417.86Типовой проект 902-2-417.86Типовой проект 902-2-417.86Типовой проект 902-2-417.86Типовой проект 902-2-417.86Типовой проект 902-2-417.86Типовой проект 902-2-417.86Типовой проект 902-2-417.86Типовой проект 902-2-417.86

© 2013 Ёшкин Кот :-) Карта сайта