| ||||||||||||||||||||||||||
Скачать ЛЭП98.10 Двухцепные железобетонные опоры ВЛ 0,4 кВ с самонесущими изолированными проводамиДата актуализации: 10.08.2017
|
| Обозначение: | ЛЭП98.10 |
| Обозначение англ: | ЛЭП98.10 |
| Статус: | не определен законодательством |
| Название рус.: | Двухцепные железобетонные опоры ВЛ 0,4 кВ с самонесущими изолированными проводами |
| Дата добавления в базу: | 01.09.2013 |
| Дата актуализации: | 05.05.2017 |
| Дата введения: | 01.01.2000 |
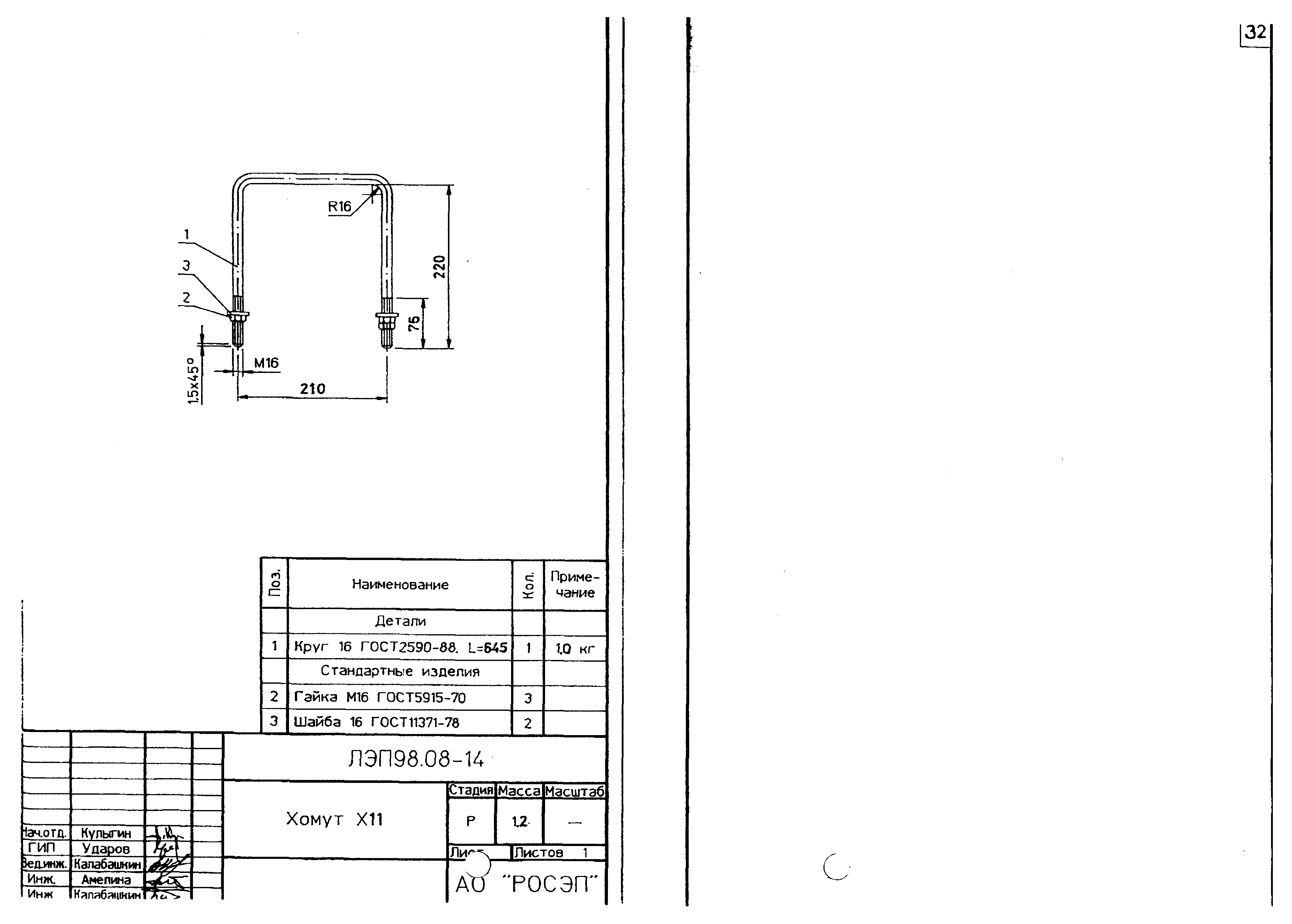
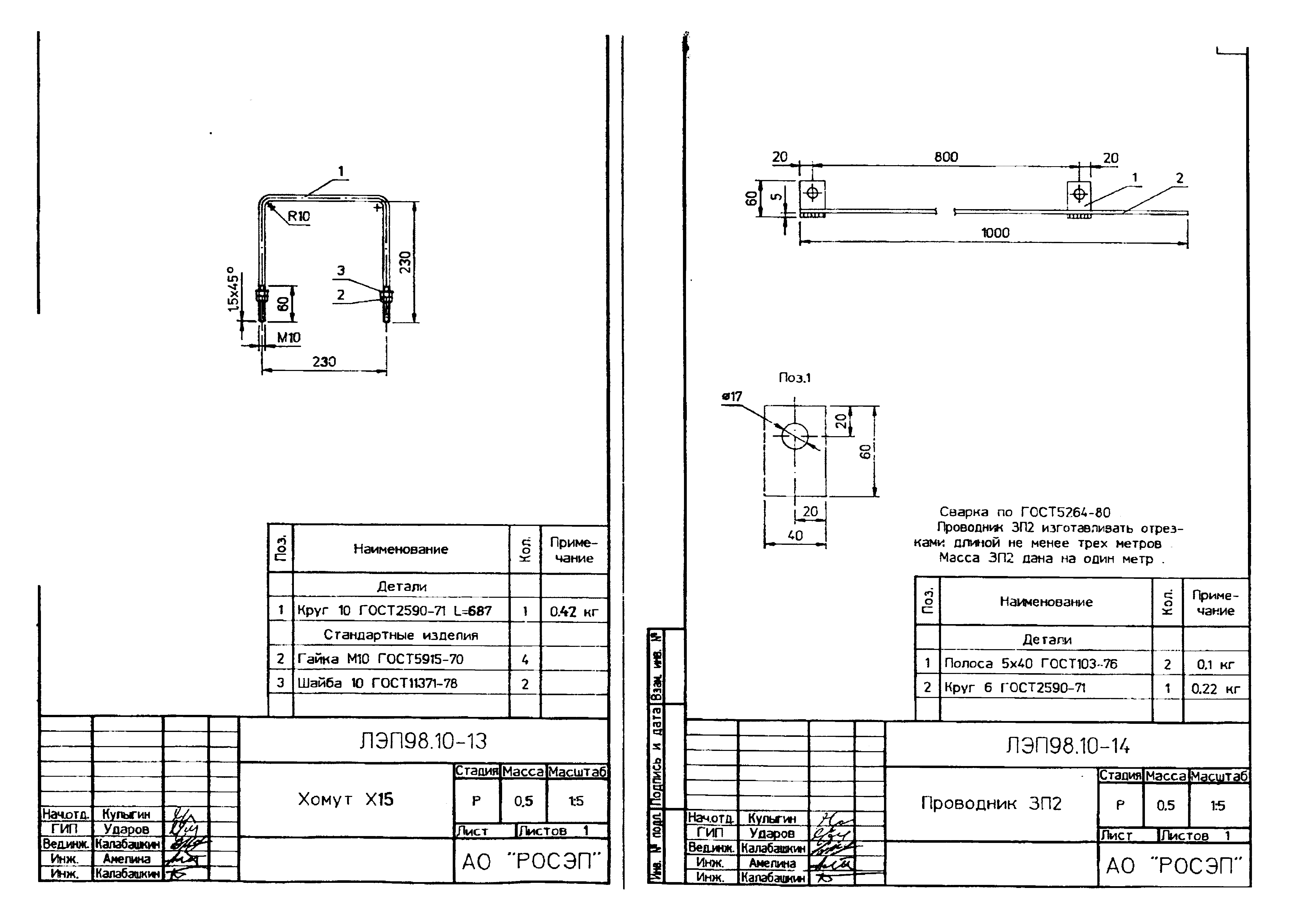
| Оглавление: | ЛЭП98.10-00 Содержание . ЛЭП98.10-ПЗ Пояснительная записка ЛЭП98.10-01 Номенклатура опор ЛЭП98.10-02 Промежуточная опора П12 ЛЭП98.10-02.1 Промежуточная опора П16 . ЛЭП98.10-03 Угловая промежуточная опора УП12 . ЛЭП98.10-04 Анкерная (концевая) опора А12 . ЛЭП98.10-05 Угловая анкерная опора УA12 . ЛЭП98.10-06 Анкерная ответвительная опора АО12 . ЛЭП98.00-07 СБ Железобетонная стойка СВ95-3. Сборочный чертеж ЛЭП98.09-07 Железобетонная стойка СВ95-3. Спецификация ЛЭП98.08-08 СБ Железобетонная стоика СВ95-2с.СВ95-3с. Сборочный чертеж ЛЭП98.08-08 Железобетонная стоика СВ95-2с.СВ95-3с. Спецификация ЛЭП98.10-07 Опорно-анкерные плиты П3и, П-4 . ЛЭП98.10-08 Стяжка Г11 . ЛЭП98.08-09 Проводник 3П6 . ЛЭП98.08-10 Болт М16 . ЛЭП98.08-14 Хомут X11 ЛЭП98.10-09 Траверса ТН18 ЛЭП98.10-10 Траверса ТН19 . ЛЭП98.08-15 Кронштейн У4 . ЛЭП98.10-11 Траверса ТН27 . ЛЭП98.10-12 Кронштейн КС1 . ЛЭП98.10-13 Хомут Х15 ЛЭП98.10-14 Проводник ЗП2 . ЛЭП98.08-17 Траверса ТН28 |
| Разработан: | АО РОСЭП |
| Утверждён: | 01.01.2000 АО РОСЭП |
| Расположен в: |







































