| ||||||||||||||||||||||||||
Скачать Серия ТДК-Н-1-70 Часть II Раздел VII. Альбом 10. Санузлы и станции перекачкиДата актуализации: 10.08.2017
|
| Обозначение: | Серия ТДК-Н-1-70 Часть II |
| Обозначение англ: | Series ТДК-Н-1-70 Часть II |
| Статус: | не определен законодательством |
| Название рус.: | Раздел VII. Альбом 10. Санузлы и станции перекачки |
| Дата добавления в базу: | 01.09.2013 |
| Дата актуализации: | 05.05.2017 |
| Дата введения: | 01.12.1971 |
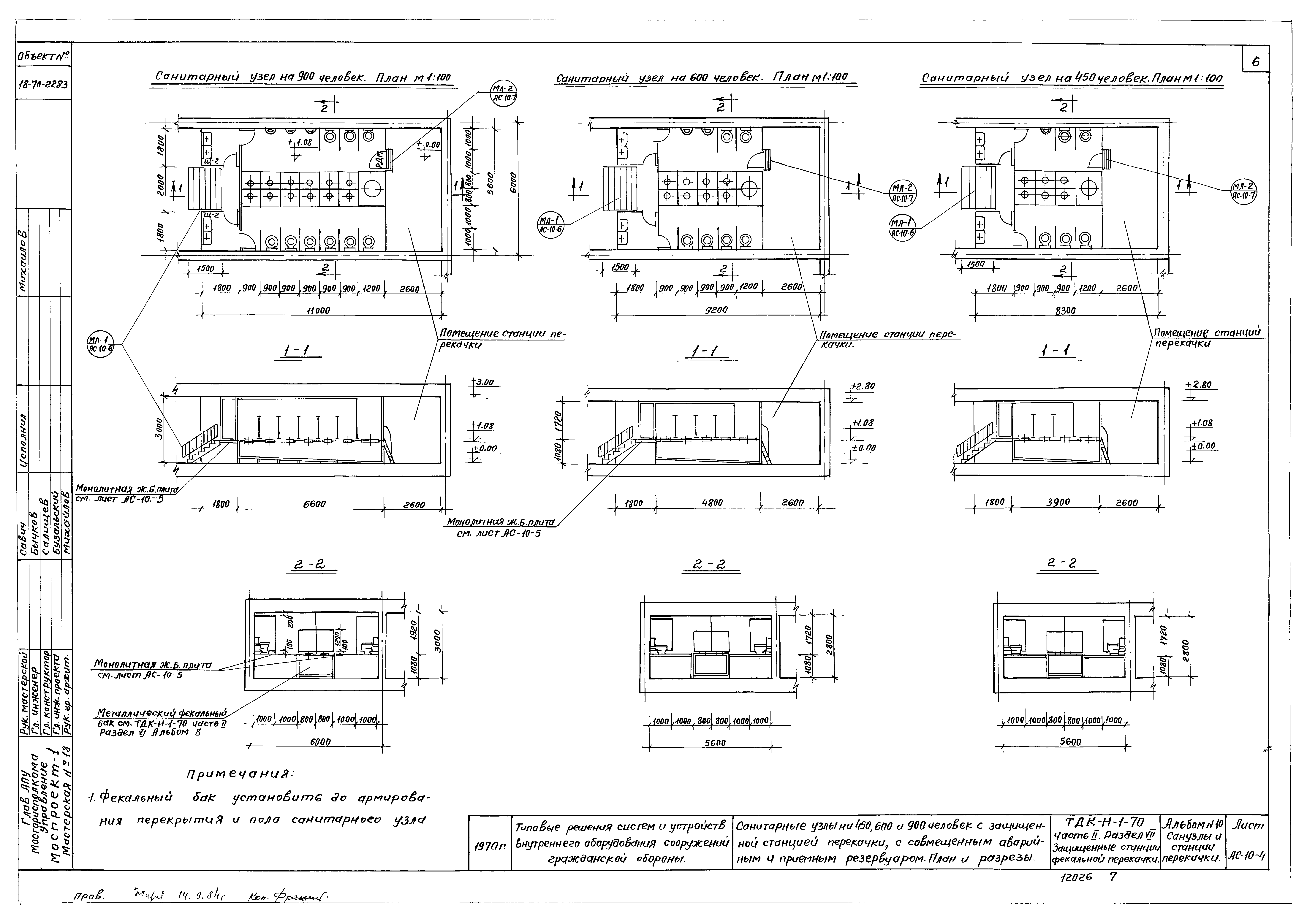
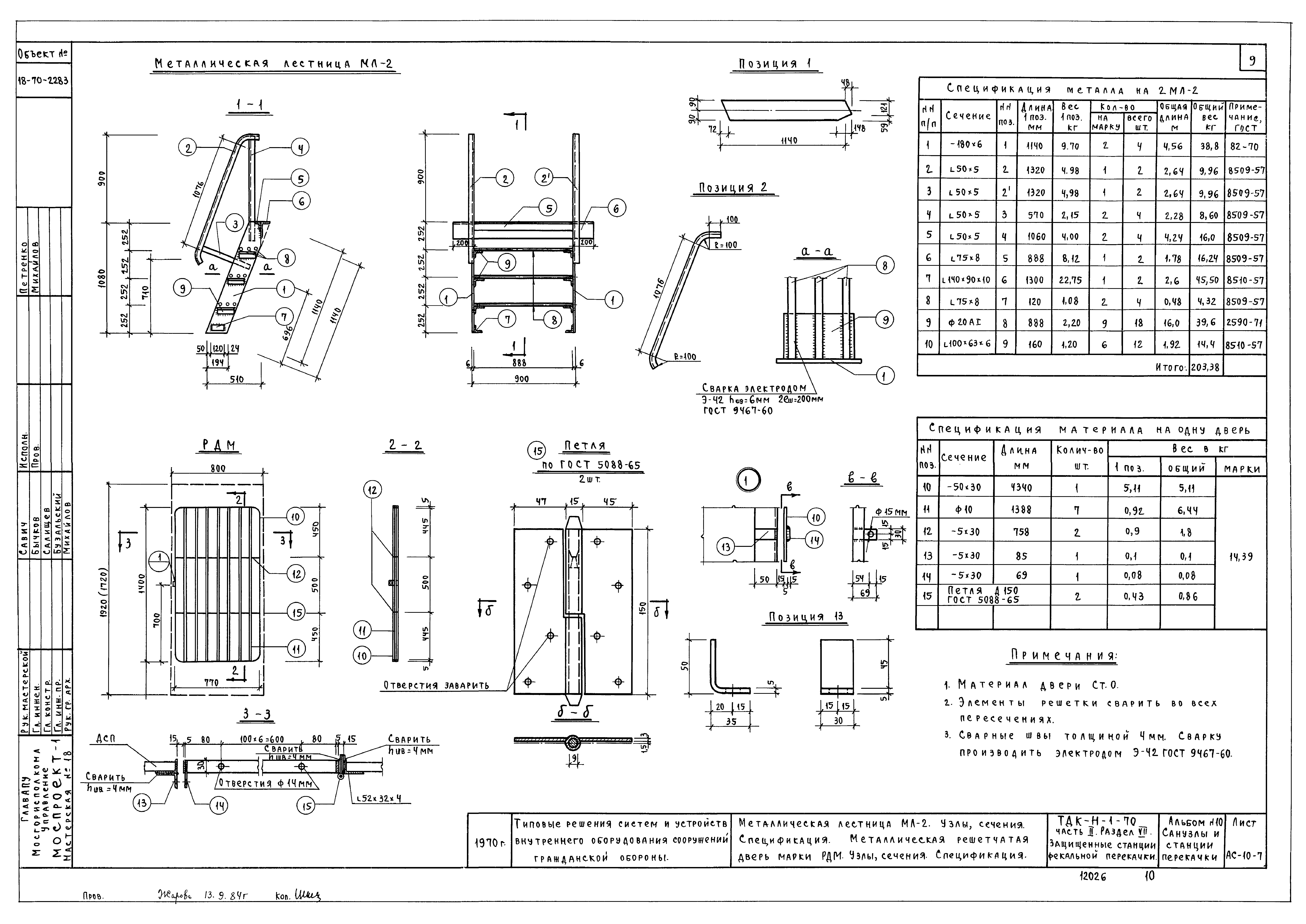
| Оглавление: | Заглавный лист Содержание альбома Санузел на 150 человек с пудр-клозетом. Санузел на 150 человек с самотечной канализацией и пудр-клозетом. Санузел на 300 человек с самотечной канализацией и аварийной емкостью. Планы, разрезы Щиты и детали крепления кабин и перегородок санитарных узлов на 150 и 300 человек, узлы, спецификация Санитарные узлы на 450, 600 и 900 человек с защищенной станцией перекачки с совмещенным аварийным и приемным резервуаром. План и разрезы План армирования плиты пола для санитарных узлов на 450, 600 и 900 человек. Сечения, узлы, детали, спецификация, выборка Металлическая лестница МЛ-1, сечения, деталировка. Спецификация Металлическая лестница МЛ-2, сечения, деталировка. Спецификация. Металлическая решетчатая дверь РДМ. Узлы, сечения. Спецификация План размещения щитов кабин и перегородок в санитарных узлах на 400, 600 и 900 человек. Разрезы, узлы, детали, спецификация щитов, дверей и металла Размещение закладных деталей и фундаментов под оборудование в санитарных узлах на 450, 600 и 900 человек. План на отм. 0.000 и перекрытия, развертка стены, сечения Ячейка санитарного узла для установки инвентарных фекальных баков. Общий вид, узлы, деталировка, спецификация металла Санузел на 150 и 300 человек. Планы с сетями канализации. Разрезы по канализации Санузлы на 450, 600 и 900 человек с защищенной станцией перекачки. Планы, разрезы по канализации, схемы обвязки насосов 1 1/2 К-6 и 2 1/2 НФ Сводная спецификация |
| Разработан: | Моспроект-1 |
| Утверждён: | 07.12.1971 Моспроект-1 (274-Р) |
| Расположен в: |















