| ||||||||||||||||||||||||||||
Скачать Серия ТДК-Н-1-70 Часть II Раздел III. Альбом 4. Установка дверей, противопожарных устройств. Герметизирующие устройства и компенсация вводовДата актуализации: 10.08.2017
|
| Обозначение: | Серия ТДК-Н-1-70 Часть II |
| Обозначение англ: | Series ТДК-Н-1-70 Часть II |
| Статус: | не определен законодательством |
| Название рус.: | Раздел III. Альбом 4. Установка дверей, противопожарных устройств. Герметизирующие устройства и компенсация вводов |
| Дата добавления в базу: | 01.09.2013 |
| Дата актуализации: | 05.05.2017 |
| Дата введения: | 01.12.1971 |
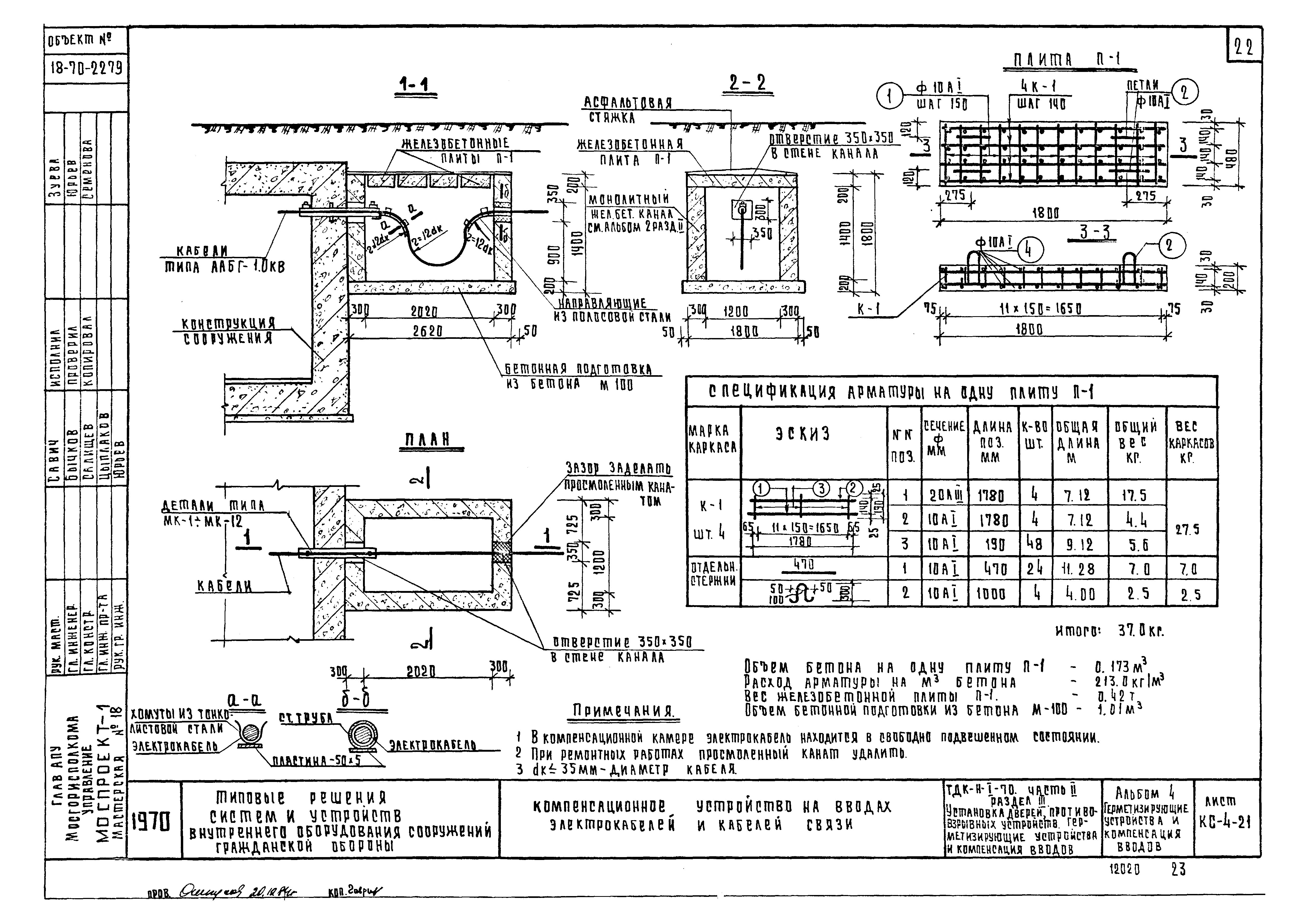
| Оглавление: | Содержание альбома Заглавный лист Детали с МК-1 по МК-6 для пропуска кабелей через железобетонные стены по линии герметизации Детали с МК-7 по МК-12 для пропуска кабелей через железобетонные стены с оклеечной гидроизоляцией Детали с МК-13 по МК-18 для пропуска кабелей через железобетонные стены по линии герметизации Детали с МК-19 по МК-24 для пропуска кабелей через железобетонные стены с оклеечной гидроизоляцией Позиции 1 - 6 к деталям МК13 по МК-24 Позиции с МК-25 по МК-33 для пропуска электрокабелей через железобетонные стены по линии герметизации Деталь МК-34 для пропуска кабелей через железобетонные перекрытия Детали с МК-35 по МК-53 для пропуска трубопроводов через железобетонные стены по линии герметизации Детали с МК-54 по МК-72 для пропуска трубопроводов через железобетонные стены с оклеечной гидроизоляцией Детали с МК-73 по МК-84 для пропуска трубопроводов через железобетонные стены по линии герметизации Детали с МК-73 по МК-84, позиции 1, 2, 3, 4, 5, 6 Детали с МК-73 по МК-84, позиция 7. Спецификация Детали с МК-85 по МК-96 для пропуска трубопроводов через железобетонные стены с оклеечной гидроизоляцией Детали с МК-85 по МК-96. Позиции 1, 2, 3, 4, 5, 6, 11, 12 Детали с МК-85 по МК-96. Позиция 7. Спецификация Деталь МК-97 на газовыхлопе в перекрытии Деталь МК-98 на газовыхлопе в стене Примеры установки герметизирующих устройств для пропуска кабелей и трубопроводов через стены Компенсационное устройство на вводах электрокабелей и кабелей связи Компенсационное устройство на воздухозаборных и воздуховыбросных трубопроводах Компенсационное устройство на вводе водопровода Компенсационное устройство на газовыхлопе Компенсационное устройство на устье артскважины при наличии грунтовых вод. Общий вид. Спецификация металла Компенсационное устройство на устье артскважины. Позиции 1, 2, 3, 4, 5 Компенсационное устройство на устье артскважины. Позиции 6, 7, 8, 9, 10 Компенсационное устройство на устье артскважины. Позиции 11, 12, 13, 14, 16 Компенсационное устройство на устье артскважины при отсутствии грунтовых вод. Общий вид. Спецификация металла Компенсационное устройство на устье артскважины при отсутствии грунтовых вод. Позиции 1, 2, 3, 4, 5, 6 |
| Разработан: | Моспроект-1 |
| Утверждён: | 07.12.1971 Моспроект-1 (274-р) |
| Издан: | ГУП ЦПП (CPP GUP 1997 г. ) |
| Расположен в: |































