| ||||||||||||||||||||||||||
Скачать Серия ТДК-Н-1-70 Часть II Раздел III. Альбом 3. Установка дверей и противовзрывных устройствДата актуализации: 10.08.2017
|
| Обозначение: | Серия ТДК-Н-1-70 Часть II |
| Обозначение англ: | Series ТДК-Н-1-70 Часть II |
| Статус: | не определен законодательством |
| Название рус.: | Раздел III. Альбом 3. Установка дверей и противовзрывных устройств |
| Дата добавления в базу: | 01.09.2013 |
| Дата актуализации: | 05.05.2017 |
| Дата введения: | 07.12.1971 |
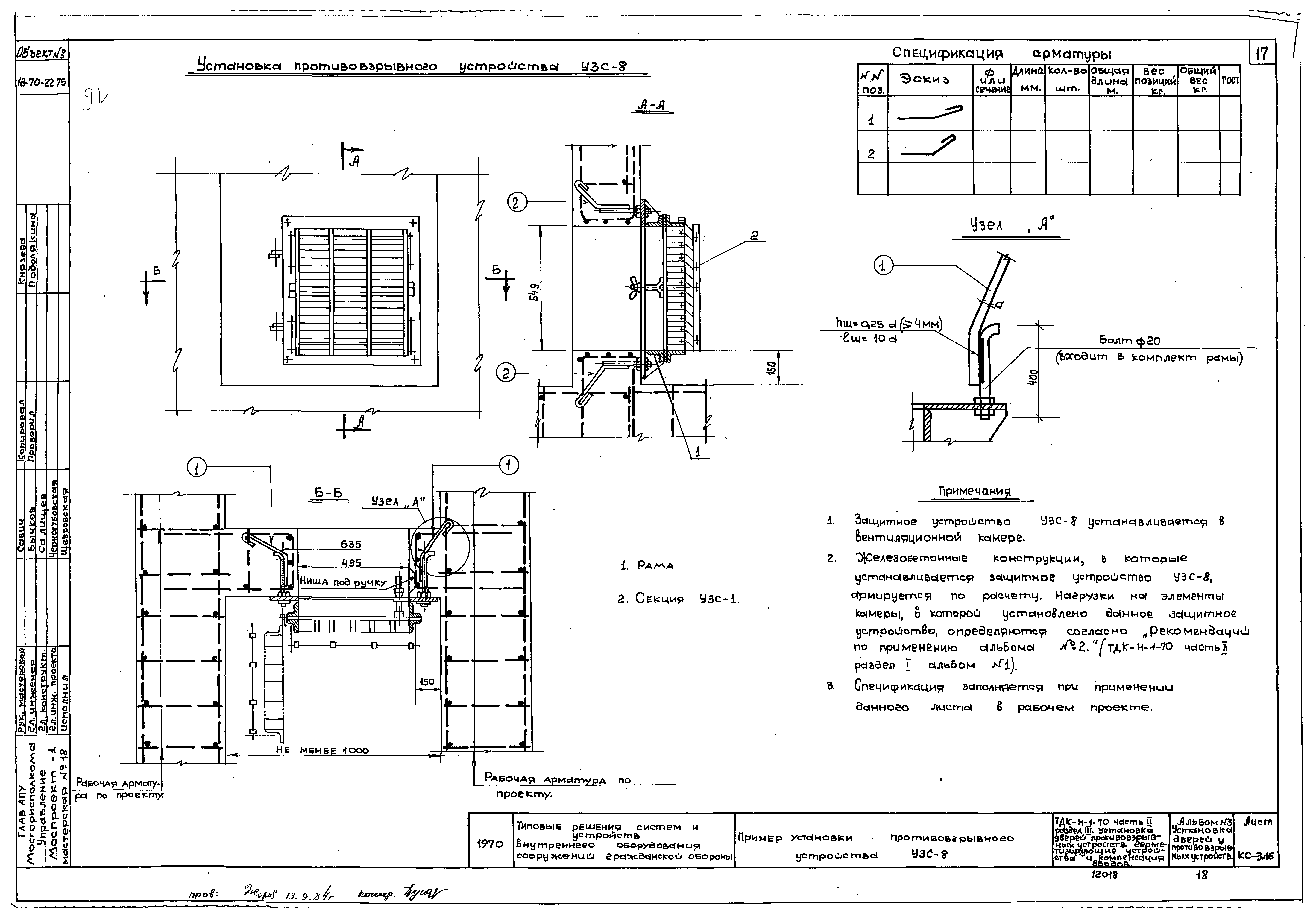
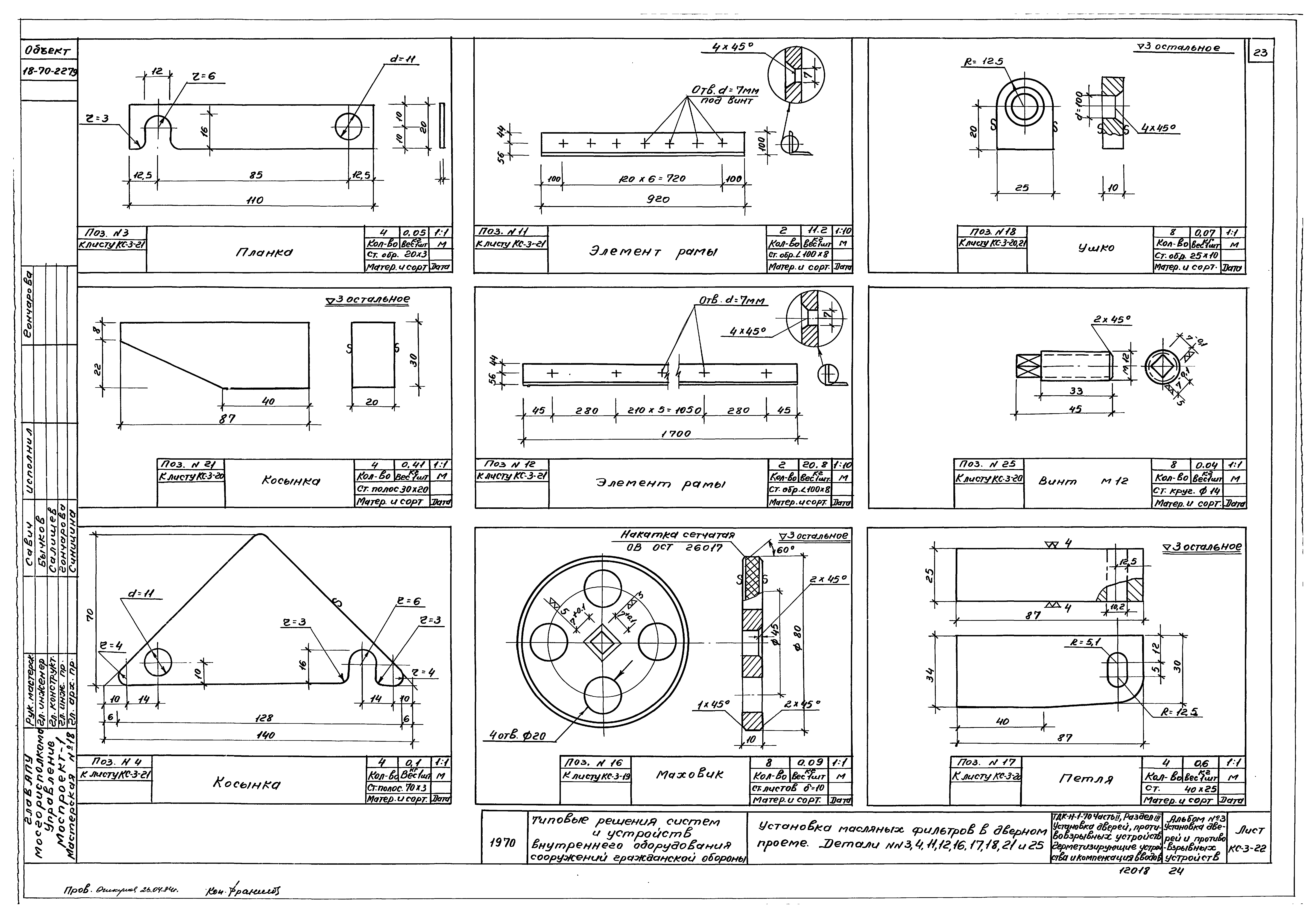
| Оглавление: | Содержание альбома Заглавный лист Примеры установок металлических дверей ДУ-I-1, ДУ-II-1, ДУ-III-1, ДУ-IV-1 и ставней СУ-II-1, СУ-III-1, СУ-IV-1 в монолитных железобетонных стенах Примеры установок металлических дверей ДУ-I-2, ДУ-I-3 Примеры установок дверей ДУ-III-2, ДУ-IV-2, ДУ-III-3, ДУ-IV-3 Пример установки дверей ДУ-I-4 и ДУ-III-4. Общий вид Пример установки дверей ДУ-I-4 и ДУ-III-4. Арматурные разрезы Пример установки дверей ДУ-I-4 и ДУ-III-4. Сечения. Спецификация арматуры. Порядок производства работ Пример установки двери ДУ-I-5. Общий вид. Спецификация арматуры Пример установки двери ДУ-I-6. Общий вид. Спецификация арматуры Пример установки дверей ДУ-I-5 и ДУ-I-6. Арматурные резервы. Эскизы каркасов и стержней Пример установки дверей ДУ-I-5 и ДУ-I-6. Планы перекрытия с раскладкой арматуры. Порядок производства работ Примеры компоновки защитных устройств на приточных и вытяжных системах вентиляции Пример установки коробки М31 в железобетонных конструкциях Пример установки коробки У32 в железобетонных конструкциях Пример установки противовзрывного устройства УЗС-8 Пример установки противовзрывного устройства УЗС-25 Пример установки противовзрывного устройства УЗС-50 Установка масляных фильтров в дверном проеме. Общий вид. Спецификация Установка масляных фильтров в дверном проеме. Узлы А, Б и В Установка масляных фильтров в дверном проеме. Узлы Д, Е и Ж. Закладная коробка. Выборка металла Установка масляных фильтров в дверном проеме. Детали №№3, 4, 11, 12, 16, 17, 18, 21 и 25 Установка масляных фильтров в дверном проеме. Детали №№19, 20, 22, 23, 24, 26 Металлические расширительные камеры на 2,0 куб. м и 0,5 куб. м |
| Разработан: | Моспроект-1 |
| Утверждён: | 07.12.1971 Моспроект-1 (274-р) |
| Расположен в: |

























