| 
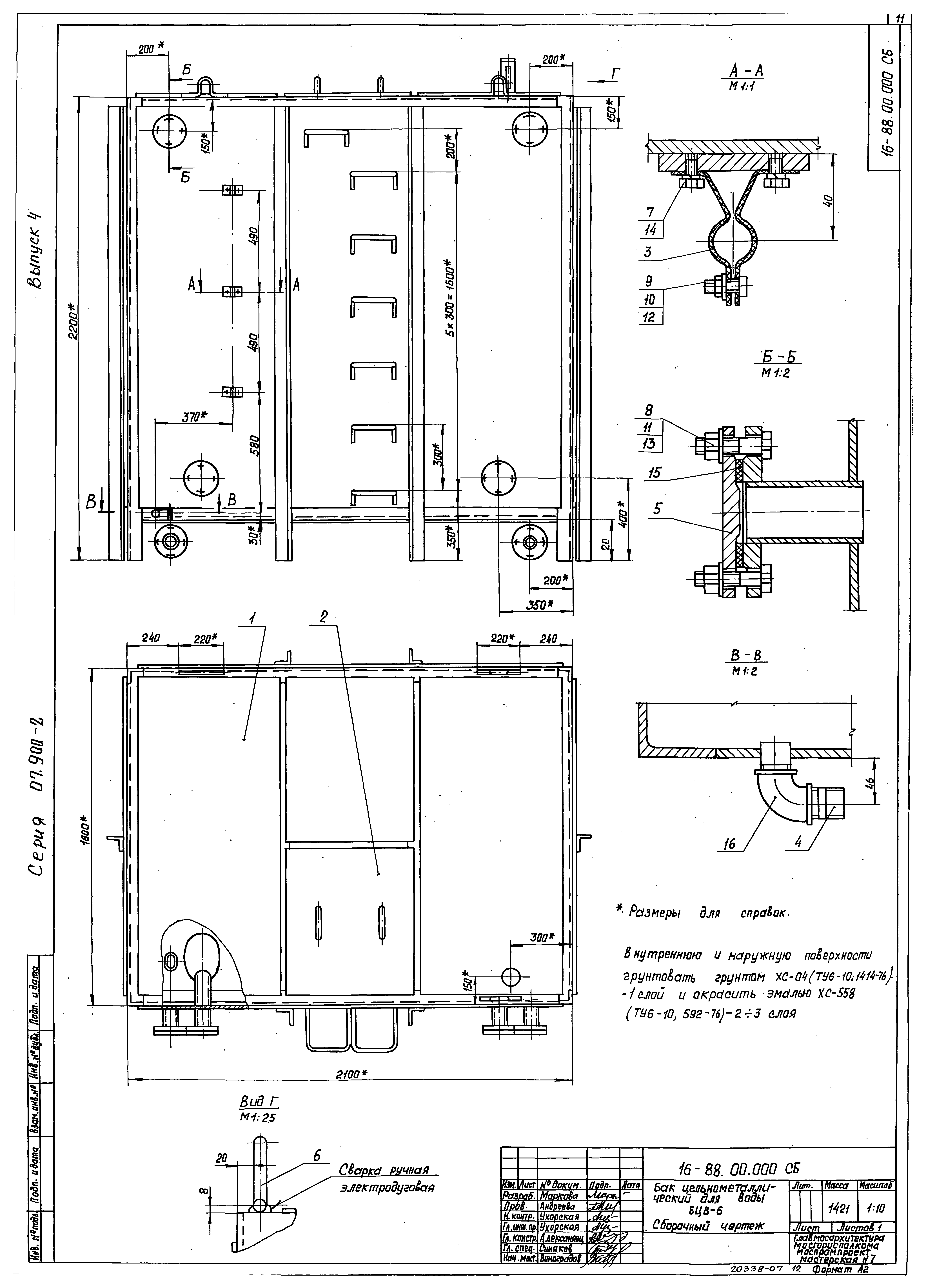
 Скачать Серия 07.900-2 Выпуск 4. Баки водяные цельнометаллические БЦВ-4, БЦВ-6, БЦВ-8, БЦВ-10. Рабочие чертежиДата актуализации: 10.08.2017   Серия 07.900-2
Выпуск 4. Баки водяные цельнометаллические БЦВ-4, БЦВ-6, БЦВ-8, БЦВ-10. Рабочие чертежи| Обозначение: |  Серия 07.900-2 |  | Обозначение англ: |  Series 07.900-2 |  | Статус: | не определен законодательством |  | Название рус.: | Выпуск 4. Баки водяные цельнометаллические БЦВ-4, БЦВ-6, БЦВ-8, БЦВ-10. Рабочие чертежи |  | Дата добавления в базу: | 01.09.2013 |  | Дата актуализации: | 05.05.2017 |  | Дата введения: | 19.04.1989 |  | Разработан: | Моспромпроект 
 |  | Утверждён: | 12.12.1988 НГО СССР (46) 
 |  | Расположен в: | 
 | 
                        |