Информационная система
«Ёшкин Кот»

Скачать базу одним архивом
Скачать обновления
История создания базы
Карта сайта

Скачать Типовой проект 213-2-183 Альбом I. Общая пояснительная записка

Дата актуализации: 10.08.2017

Типовой проект 213-2-183

Альбом I. Общая пояснительная записка

Обозначение: Типовой проект 213-2-183
Обозначение англ: 213-2-183
Статус:действует
Название рус.:Альбом I. Общая пояснительная записка
Дата добавления в базу:01.09.2013
Дата актуализации:05.05.2017
Дата введения:27.11.1979
Оглавление:213-2-183 Титульный лист
213-2-183 Опись альбома
213-2-183 СП Состав проекта (комплектация)
213-2-183 ПЗ Пояснительная записка
213-2-183 ПЗ 1 Общая часть
213-2-183 ПЗ 2 Архитектурно-строительная часть
213-2-183 ПЗ 3 Инженерное оборудование
213-2-183 ПЗ 4 Указания по производству работ
213-2-183 ПЗ 5 Защита строительных конструкций
213-2-183 ПЗ 6 Указания по производству работ в зимних условиях
213-2-183 ПЗ 7 Указания по привязке проекта
213-2-183 АСО Генплан
213-2-183 АСО План 1 этажа
213-2-183 АСО План 2 этажа
213-2-183 АСО Фасады 1-12,12-1
213-2-183 АСО Фасады А-Е,Е-А
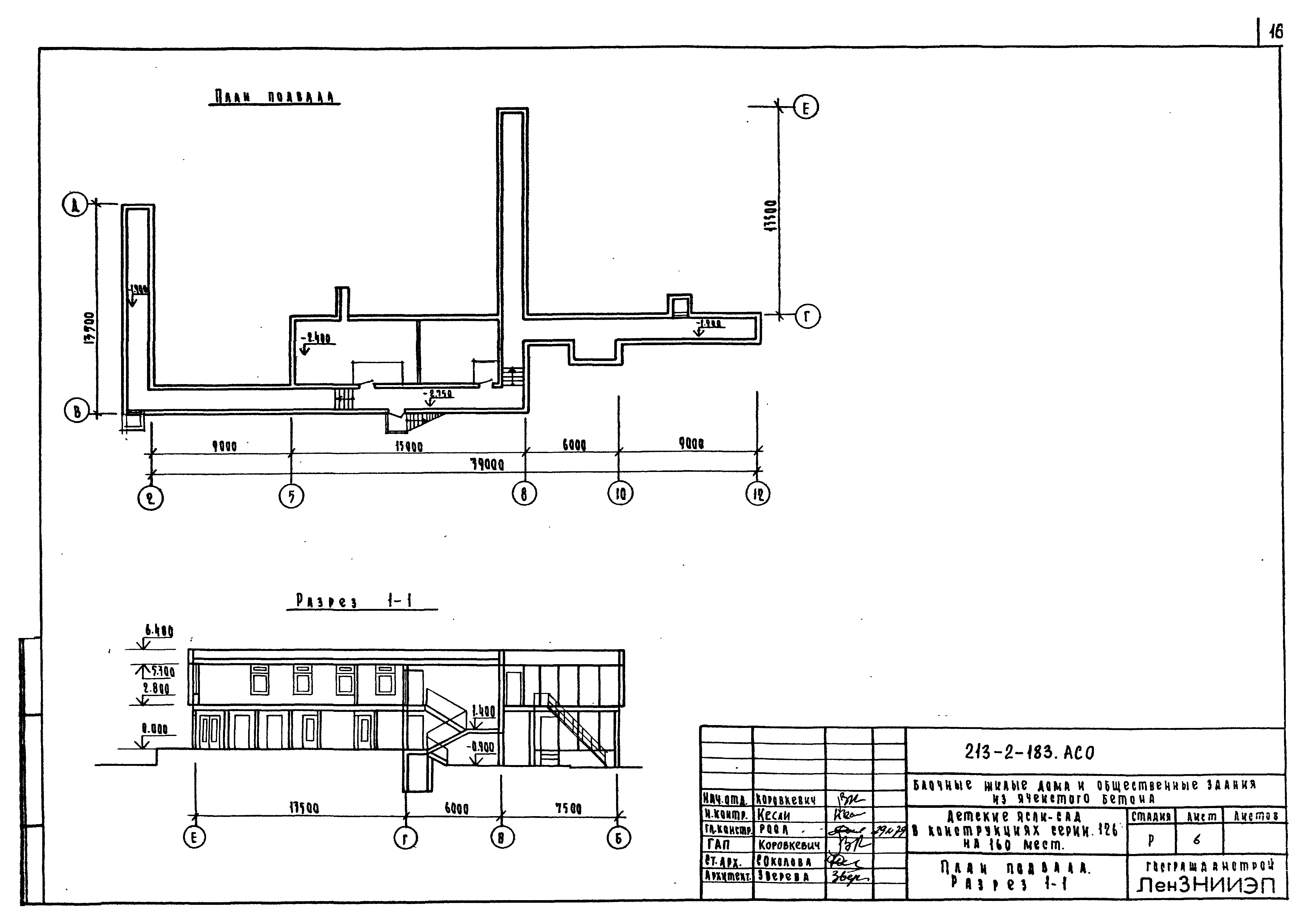
213-2-183 АСО План подвала. Разрез 1-1
213-2-183 ПД Ведомость примененных документов
213-2-183 С1 Спецификация на основной вариант
213-2-183 С2 Спецификация на варианты
Разработан: ЛенЗНИИЭП Госгражданстроя
Утверждён:03.05.1979 Госгражданстрой (Gosgrazhdanstroy 90)
Расположен в:Техническая документация Строительство Справочные документы Типовые строительные конструкции, изделия и узлы Общероссийский строительный каталог Общественные здания в городах и поселках городского типа Детские дошкольные учреждения Детские ясли-сады
Типовой проект 213-2-183Типовой проект 213-2-183Типовой проект 213-2-183Типовой проект 213-2-183Типовой проект 213-2-183Типовой проект 213-2-183Типовой проект 213-2-183Типовой проект 213-2-183Типовой проект 213-2-183Типовой проект 213-2-183Типовой проект 213-2-183Типовой проект 213-2-183Типовой проект 213-2-183Типовой проект 213-2-183Типовой проект 213-2-183Типовой проект 213-2-183Типовой проект 213-2-183Типовой проект 213-2-183Типовой проект 213-2-183Типовой проект 213-2-183Типовой проект 213-2-183Типовой проект 213-2-183Типовой проект 213-2-183Типовой проект 213-2-183

© 2013 Ёшкин Кот :-) Карта сайта