Скачать Типовой проект 2БКТП-1000 Альбом 1В. Блокировка 1. Электрооборудование трансформаторной подстанции в габаритах строительной части 4,64х4,97 м с АВР в РУ-10 кВ (форма ЭЗОИС ЕС-Д)Дата актуализации: 10.08.2017 Типовой проект 2БКТП-1000
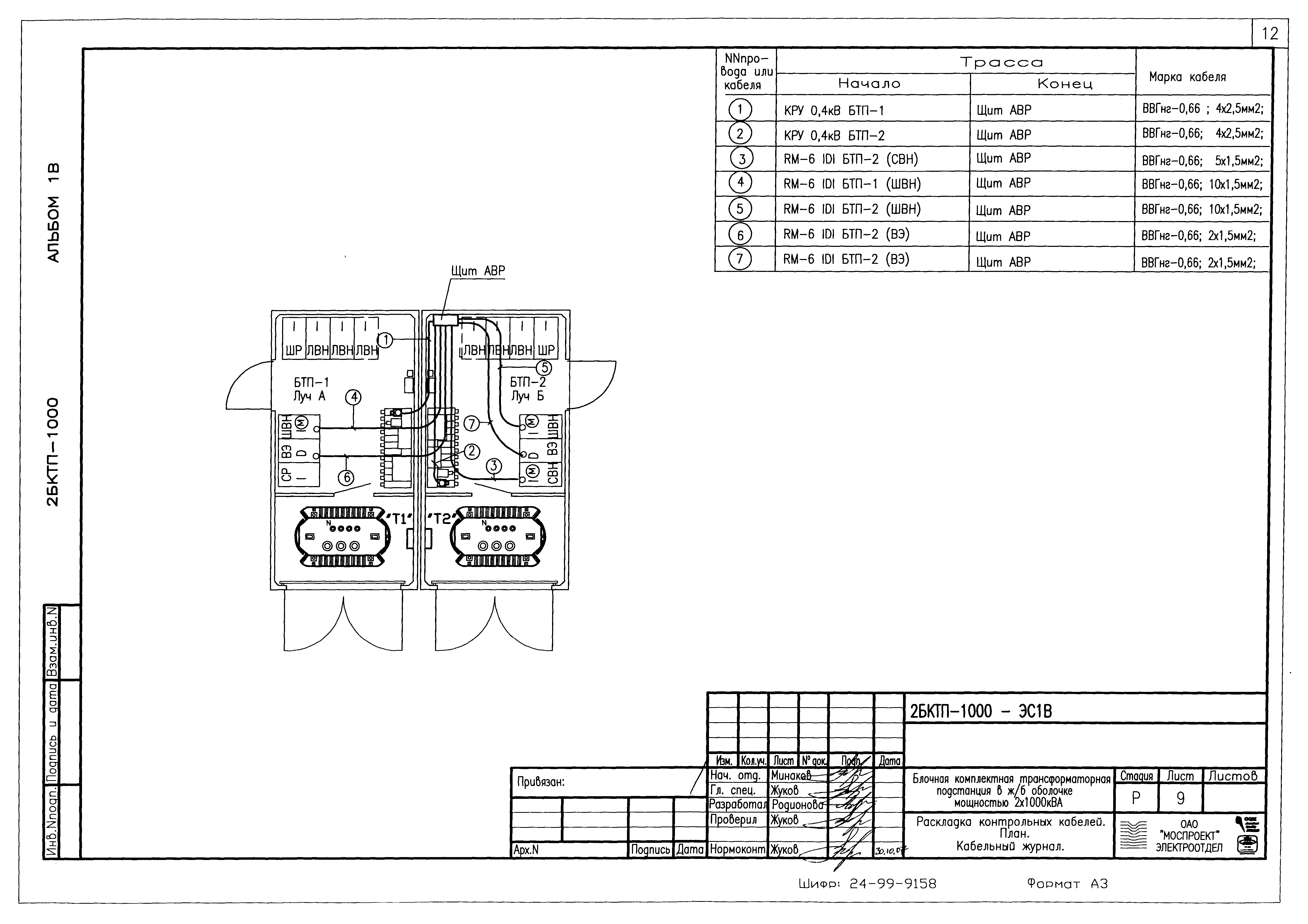
Альбом 1В. Блокировка 1. Электрооборудование трансформаторной подстанции в габаритах строительной части 4,64х4,97 м с АВР в РУ-10 кВ (форма ЭЗОИС ЕС-Д)Обозначение: | Типовой проект 2БКТП-1000 | Обозначение англ: | 2БКТП-1000 | Статус: | не определен законодательством | Название рус.: | Альбом 1В. Блокировка 1. Электрооборудование трансформаторной подстанции в габаритах строительной части 4,64х4,97 м с АВР в РУ-10 кВ (форма ЭЗОИС ЕС-Д) | Дата добавления в базу: | 01.09.2013 | Дата актуализации: | 05.05.2017 | Дата введения: | 12.12.2007 | Оглавление: | 2БКТП-1000 Заглавный лист 2БКТП-1000-ЭС1В-1 Общие данные (начало) 2БКТП-1000-ЭС1В-2 Общие данные (окончание) 2БКТП-1000-ЭС1В-3 Принципиальная схема 2БКТП-1000. Вариант 1. 2БКТП-1000-ЭС1В-3А Принципиальная схема 2БКТП-1000. Вариант 2. 2БКТП-1000-ЭС1В-4 План расположения оборудования. Вариант 1. 2БКТП-1000-ЭС1В-4А План расположения оборудования. Вариант 2. 2БКТП-1000-ЭС1В-5 Установка силового трансформатора. План. Узлы 2БКТП-1000-ЭС1В-6 Освещение. План. 2БКТП-1000-ЭС1В-7 Заземление. План. 2БКТП-1000-ЭС1В-8 Раскладка силовых кабелей. План. Кабельный журнал 2БКТП-1000-ЭС1В-9 Раскладка контрольных кабелей. План. Кабельный журнал 2БКТП-1000-ЭС1В-10 Обогрев приводов RM-6. План. 2БКТП-1000-ЭС1В.СО Спецификация оборудования 1711.00.00.00.Э3 Ящик собственных нужд ЯСН-В. Схема электрическая принципиальная 2БКТП-1000-ЭС1В.Э1 Конструкция глубинного электрода заземления 2БКТП-1000-ЭС1В.Э2 Щит устройства АВР в ТП 6-10 кВ. Схема подключения щита АВР | Разработан: | ОАО Моспроект
| Утверждён: | 12.12.2007 ОАО Моспроект (Mosproject OAO )
| Расположен в: |
|
                 
|