Скачать Типовой проект 903-1-51/70 Альбом XIV/2. Типы 1, 2, 3. Автоматизация и контроль. Общекотельные трубопроводыДата актуализации: 10.08.2017 Типовой проект 903-1-51/70
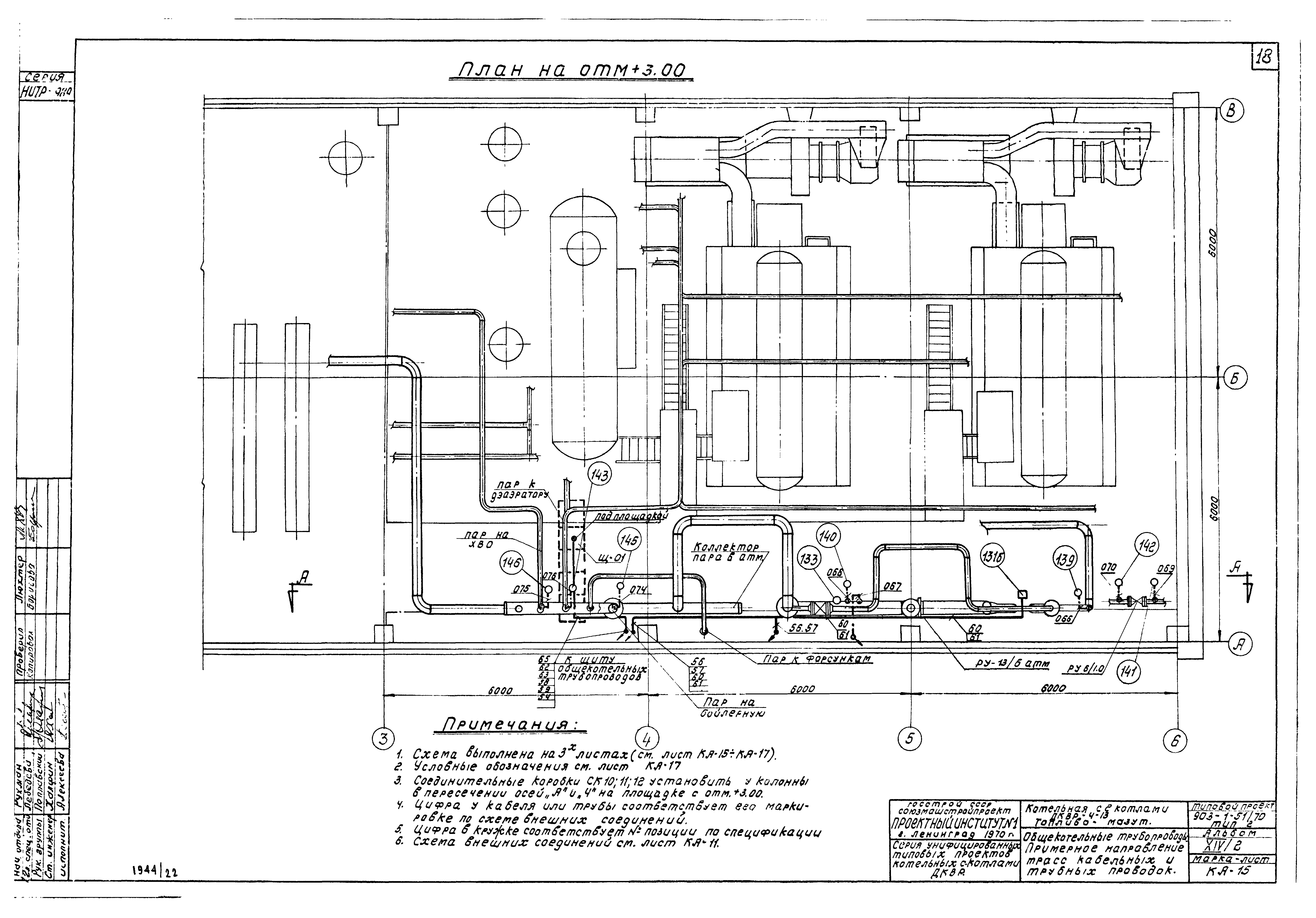
Альбом XIV/2. Типы 1, 2, 3. Автоматизация и контроль. Общекотельные трубопроводыОбозначение: | Типовой проект 903-1-51/70 | Обозначение англ: | 903-1-51/70 | Статус: | действует | Название рус.: | Альбом XIV/2. Типы 1, 2, 3. Автоматизация и контроль. Общекотельные трубопроводы | Дата добавления в базу: | 01.09.2013 | Дата актуализации: | 05.05.2017 | Дата введения: | 31.07.1970 | Оглавление: | ТП 903-1-51/70 I. Теплотехнический контроль и автоматическое регулирование ТП 903-1-51/70 Общекотельные трубопроводы. Содержание альбома ТП 903-1-51/70 Общекотельные трубопроводы. Пояснительная записка ТП 903-1-51/70-КА-1 Общекотельные трубопроводы. Принципиальная технологическая схема автоматизации ТП 903-1-51/70-КА-2 Общекотельные трубопроводы. Принципиальная технологическая схема автоматизации ТП 903-1-51/70-КА-3 Общекотельные трубопроводы. Схема технологической сигнализации ТП 903-1-51/70-КА-4 Общекотельные трубопроводы. Электрическая схема питания ТП 903-1-51/70-КА-5 Общекотельные трубопроводы. Общий вид щита Щ-03 ТП 903-1-51/70-КА-6 Общекотельные трубопроводы. Монтажная схема щита Щ-03 ТП 903-1-51/70-КА-7 Общекотельные трубопроводы. Монтажная схема щита Щ-03 ТП 903-1-51/70-КА-8 Общекотельные трубопроводы. Монтажная схема щита Щ-03 ТП 903-1-51/70-КА-9 Общекотельные трубопроводы. Монтажная электрическая схема регуляторов ТП 903-1-51/70-КА-10 Общекотельные трубопроводы. Схема внешних соединений приборов и регуляторов ТП 903-1-51/70-КА-11 Общекотельные трубопроводы. Схема внешних соединений приборов и регуляторов ТП 903-1-51/70-КА-12 Общекотельные трубопроводы. Примерное направление трасс электрических и трубных проводок ТП 903-1-51/70-КА-13 Общекотельные трубопроводы. Примерное направление трасс электрических и трубных проводок ТП 903-1-51/70-КА-14 Общекотельные трубопроводы. Примерное направление трасс электрических и трубных проводок ТП 903-1-51/70-КА-15 Общекотельные трубопроводы. Примерное направление трасс электрических и трубных проводок ТП 903-1-51/70-КА-16 Общекотельные трубопроводы. Примерное направление трасс электрических и трубных проводок ТП 903-1-51/70-КА-17 Общекотельные трубопроводы. Примерное направление трасс электрических и трубных проводок ТП 903-1-51/70-КА-18 Общекотельные трубопроводы. Спецификации ТП 903-1-51/70-КА-19 Общекотельные трубопроводы. Спецификации ТП 903-1-51/70-КА-20 Общекотельные трубопроводы. Спецификации ТП 903-1-51/70-КА-21 Общекотельные трубопроводы. Опросный лист ТП 903-1-51/70-КА-22 Общекотельные трубопроводы. Опросный лист ТП 903-1-51/70-КА-23 Общекотельные трубопроводы. Опросный лист ТП 903-1-51/70 II. Сочленение ТП 903-1-51/70-КА-24 Общекотельные трубопроводы. Сочленение ГИМ-Д с регулирующим клапаном 9С-2-2 на мазутопроводе из котельной ТП 903-1-51/70-КА-25 Общекотельные трубопроводы. Сочленение ГИМ-1 с регулирующим клапаном 6С-1-2 редукционной установки | Разработан: | Проектный институт № 1 Госстроя СССР
| Утверждён: | 31.07.1970 Госстрой СССР (Государственный комитет Совета Министров СССР по делам строительства) (USSR Gosstroy 255)
| Расположен в: |
|
                          
|