Информационная система
«Ёшкин Кот»

Скачать базу одним архивом
Скачать обновления
История создания базы
Карта сайта

Скачать Типовой проект 902-2-349 Альбом I. Технологическая часть. Конструкции железобетонные. Антикоррозийная защита

Дата актуализации: 10.08.2017

Типовой проект 902-2-349

Альбом I. Технологическая часть. Конструкции железобетонные. Антикоррозийная защита

Обозначение: Типовой проект 902-2-349
Обозначение англ: 902-2-349
Статус:действует
Название рус.:Альбом I. Технологическая часть. Конструкции железобетонные. Антикоррозийная защита
Дата добавления в базу:01.09.2013
Дата актуализации:05.05.2017
Оглавление:ТП 902-2-349 Обложка
ТП 902-2-349 Титульный лист
ТП 902-2-349 Содержание альбома
ТП 902-2-349-НК Технологическая часть
ТП 902-2-349-НК-1 Общие данные (начало)
ТП 902-2-349-НК-2 Общие данные (продолжение)
ТП 902-2-349-НК-3 Общие данные (продолжение)
ТП 902-2-349-НК-4 Общие данные (продолжение)
ТП 902-2-349-НК-5 Общие данные (окончание)
ТП 902-2-349-НК-6 Схемы компоновок секций усреднителя
ТП 902-2-349-НК-7 Секция усреднителя. Блок из 2-х секций. План. Разрезы 1-1,2-2
ТП 902-2-349-НК-8 Разрезы 3-3÷9-9. Узлы А,Б,В
ТП 902-2-349-КЖ Конструкции железобетонные
ТП 902-2-349-КЖ-1 Общие данные (начало)
ТП 902-2-349-КЖ-2 Общие данные (продолжение)
ТП 902-2-349-КЖ-3 Общие данные (продолжение)
ТП 902-2-349-КЖ-4 Общие данные (продолжение)
ТП 902-2-349-КЖ-5 Общие данные (продолжение)
ТП 902-2-349-КЖ-6 Общие данные (продолжение)
ТП 902-2-349-КЖ-7 Общие данные (окончание)
ТП 902-2-349-КЖ-8 Планы. Разрезы
ТП 902-2-349-КЖ-9 Днище. Опалубочный чертеж
ТП 902-2-349-КЖ-10 Днище. Опалубочный чертеж. Узлы. Сечения
ТП 902-2-349-КЖ-11 Секция усреднителя. Днище. Арматурный чертеж
ТП 902-2-349-КЖ-12 Блок из 2-х секций. Днище. Арматурный чертеж
ТП 902-2-349-КЖ-13 Днище. Арматурный чертеж. Сечения. Узлы
ТП 902-2-349-КЖ-14 Днище. Ведомость стержней и выборка стали
ТП 902-2-349-КЖ-15 Монтажный чертеж стен. Планы. Виды
ТП 902-2-349-КЖ-16 Монтажный чертеж стен. Узлы
ТП 902-2-349-КЖ-17 Блок из 2-х секций. Монолитный участок УМ5. Опалубочный чертеж
ТП 902-2-349-КЖ-18 Блок из 2-х секций. Монолитный участок УМ5. Арматурный чертеж
ТП 902-2-349-КЖ-19 Монолитные участки стен УМ 1,2,3. Арматурно-опалубочный чертеж
ТП 902-2-349-КЖ-20 Блок из 2-х секций. Монолитный участок УМ4. Арматурно-опалубочный чертеж
ТП 902-2-349-КЖ-21 Монолитные участки стен . Сечения. Узлы
ТП 902-2-349-КЖ-22 Монолитные участки стен . Ведомость стержней и выборка стали
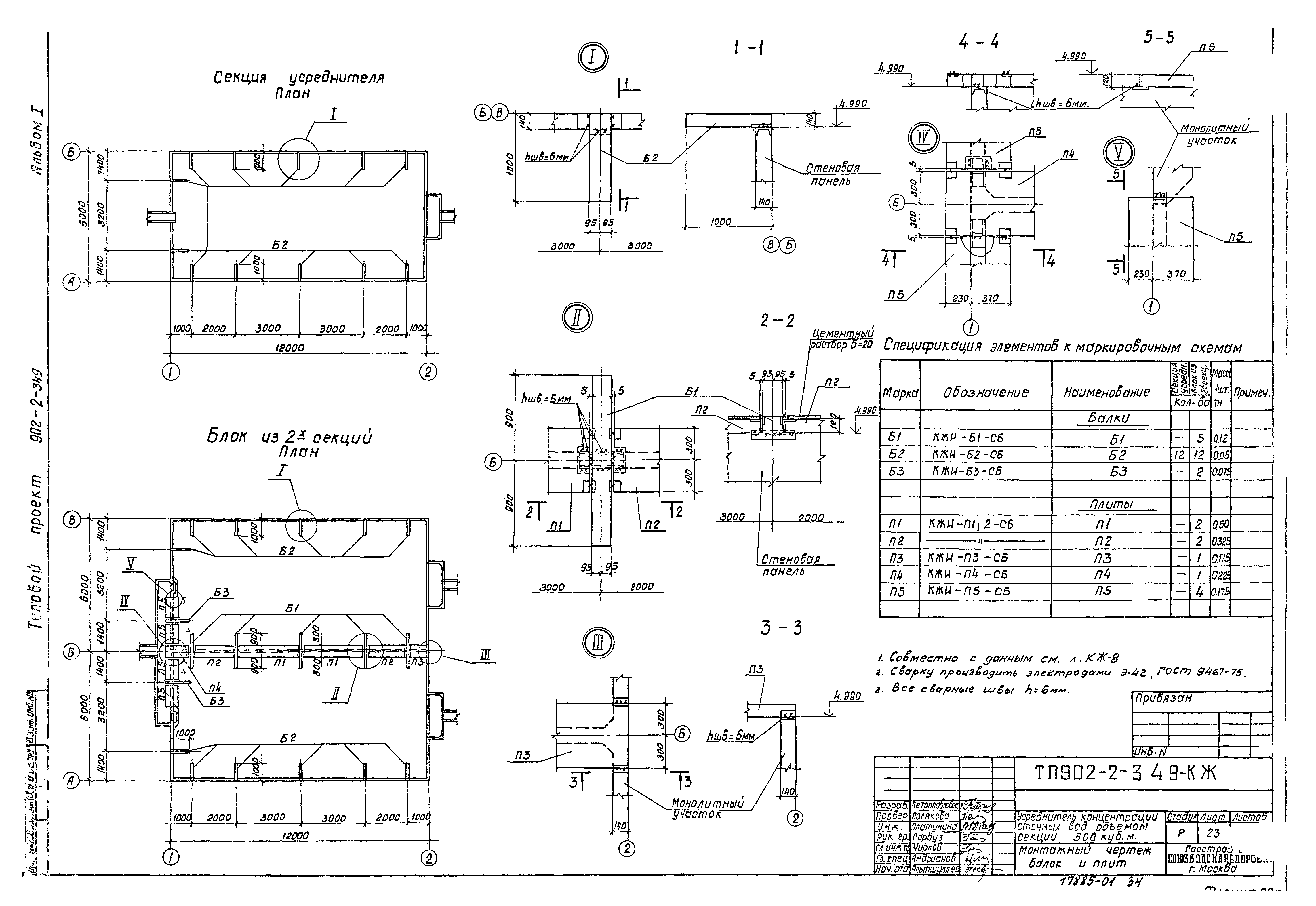
ТП 902-2-349-КЖ-23 Монтажный чертеж балок и плит
ТП 902-2-349-КЖ-24 Монтажный чертеж лотков
ТП 902-2-349-КЖ-25 Камера 1. Опалубочный чертеж. План. Разрезы. Узлы
ТП 902-2-349-КЖ-26 Камера 1. Опалубочный чертеж. План. Сечения. Узел
ТП 902-2-349-КЖ-27 Камера 2. Опалубочный чертеж. План. Разрезы. Узлы
ТП 902-2-349-КЖ-28 Камера 2. Опалубочный чертеж. План. Сечения. Узел
ТП 902-2-349-КЖ-29 Компоновки из 2-х,3-х,4-х секций. Монтажный чертеж подводящих лотков
ТП 902-2-349-КЖ-30 Компоновки из 5-и, 6-и секций. Монтажный чертеж подводящих лотков
ТП 902-2-349-АЗ Антикоррозионная защита
ТП 902-2-349-АЗ-1 Общие данные (начало)
ТП 902-2-349-АЗ-2 Общие данные (продолжение)
ТП 902-2-349-АЗ-3 Общие данные (продолжение)
ТП 902-2-349-АЗ-4 Общие данные (продолжение)
ТП 902-2-349-АЗ-5 Общие данные (продолжение)
ТП 902-2-349-АЗ-6 Общие данные (окончание)
ТП 902-2-349-АЗ-7 Секция усреднителя. Блок из 2х секций. Сечения 1-1,2-2,3-3
ТП 902-2-349-АЗ-8 Тип покрытия Т-1. Узлы 1-4. Сечение 4-4
ТП 902-2-349-АЗ-9 Тип покрытия Т-1. Узел 5. Сечения а-а,5-5,6-6,7-7
ТП 902-2-349-АЗ-10 Тип покрытия Т-2. Узлы 1-4. Сечение 4-4
ТП 902-2-349-АЗ-11 Тип покрытия Т-2. Узел 5. Сечения а-а,5-5,6-6,7-7
ТП 902-2-349-АЗ-12 Тип покрытия Т-3. Узлы 1-4. Сечение 4-4
ТП 902-2-349-АЗ-13 Тип покрытия Т-3. Узел 5. Сечения а-а,5-5,6-6,7-7
ТП 902-2-349-АЗ-14 Тип покрытия Т-4. Узлы 1-4. Сечение 4-4
ТП 902-2-349-АЗ-15 Тип покрытия Т-4. Узел 5. Сечения а-а,5-5,6-6,7-7
ТП 902-2-349-АЗ-16 Тип покрытия Т-5. Узлы 1-4. Сечение 4-4
ТП 902-2-349-АЗ-17 Тип покрытия Т-5. Узел 5. Сечения а-а,5-5,6-6,7-7
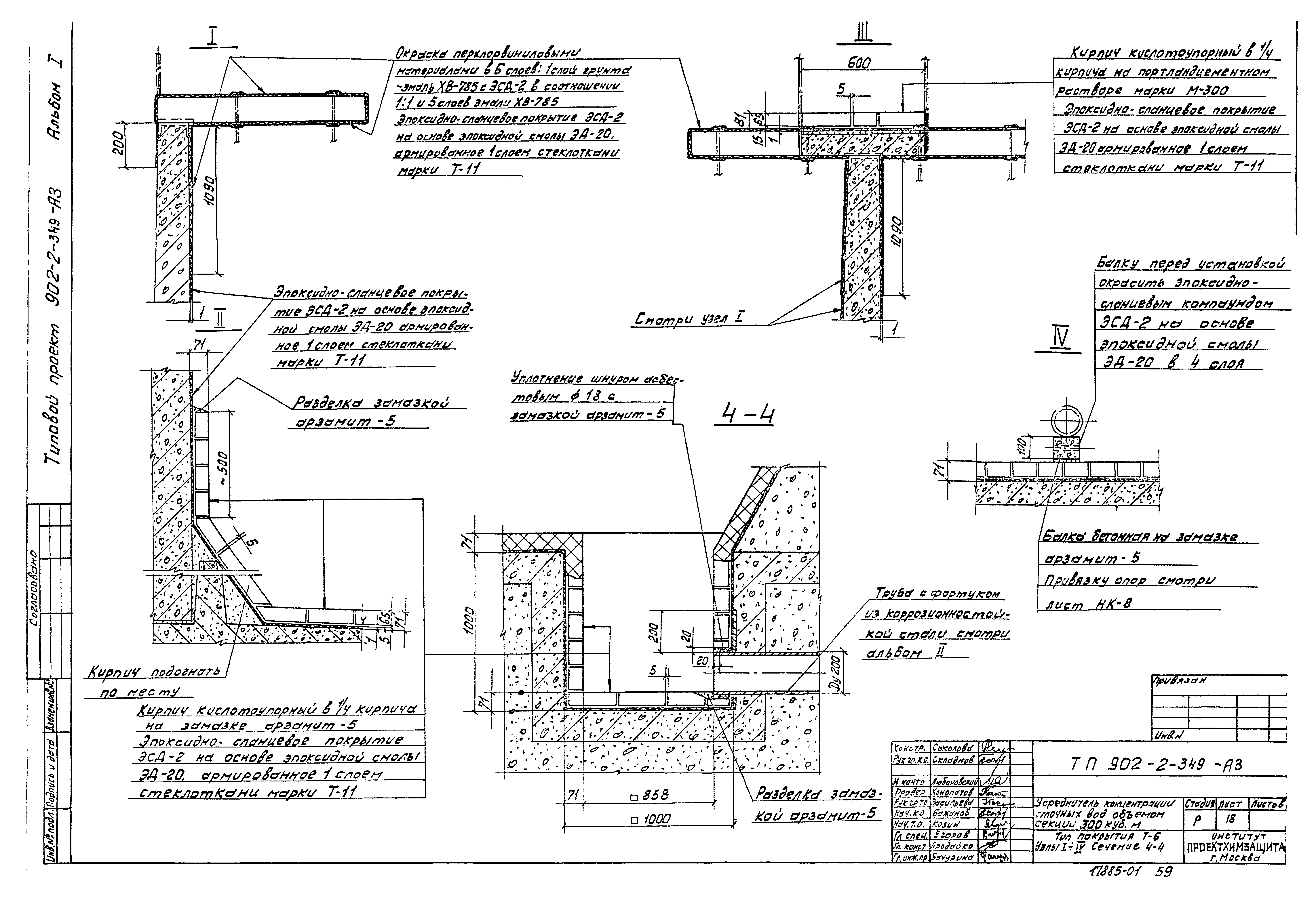
ТП 902-2-349-АЗ-18 Тип покрытия Т-6. Узлы 1-4. Сечение 4-4
ТП 902-2-349-АЗ-19 Тип покрытия Т-6. Узел 5. Сечения а-а,5-5,6-6,7-7
ТП 902-2-349-АЗ-20 Камера 1. Камера 2. Сечения 1-1,2-2
ТП 902-2-349-АЗ-21 Тип покрытия Т-1. Узлы 1-5. Сечение 3-3
ТП 902-2-349-АЗ-22 Тип покрытия Т-2. Узлы 1-5. Сечение 3-3
ТП 902-2-349-АЗ-23 Тип покрытия Т-3. Узлы 1-5. Сечение 3-3
ТП 902-2-349-АЗ-24 Тип покрытия Т-4. Узлы 1-5. Сечение 3-3
ТП 902-2-349-АЗ-25 Тип покрытия Т-5. Узлы 1-5. Сечение 3-3
ТП 902-2-349-АЗ-26 Тип покрытия Т-6. Узлы 1-5. Сечение 3-3
ТП 902-2-349-АЗ-27 Компоновка из 2-6 секций. Монолитный чертеж подводящих лотков
ТП 902-2-349-АЗ-28 Тип покрытия Т-7÷Т-12. Сечение 1-1
ТП 902-2-349-АЗ-29 Заказная спецификация на контрольно-измерительные приборы
ТП 902-2-349-АЗ-30 Заказная спецификация на трубопроводную арматуру
ТП 902-2-349-АЗ-31 Заказная спецификация на материалы
Разработан: Проектхимзащита Минмонтажспецстроя СССР
Союзводоканалниипроект
Утверждён:03.11.1981 СоюзводоканалНИИпроект (SoyuzvodokanalNIIproject )
Расположен в:Техническая документация Строительство Справочные документы Типовые строительные конструкции, изделия и узлы Общероссийский строительный каталог Промышленные предприятия, здания и сооружения Здания и сооружения санитарно-технические Канализация Сооружения для очистки производственных сточных вод Станции физико-химической очистки
Типовой проект 902-2-349Типовой проект 902-2-349Типовой проект 902-2-349Типовой проект 902-2-349Типовой проект 902-2-349Типовой проект 902-2-349Типовой проект 902-2-349Типовой проект 902-2-349Типовой проект 902-2-349Типовой проект 902-2-349Типовой проект 902-2-349Типовой проект 902-2-349Типовой проект 902-2-349Типовой проект 902-2-349Типовой проект 902-2-349Типовой проект 902-2-349Типовой проект 902-2-349Типовой проект 902-2-349Типовой проект 902-2-349Типовой проект 902-2-349Типовой проект 902-2-349Типовой проект 902-2-349Типовой проект 902-2-349Типовой проект 902-2-349Типовой проект 902-2-349Типовой проект 902-2-349Типовой проект 902-2-349Типовой проект 902-2-349Типовой проект 902-2-349Типовой проект 902-2-349Типовой проект 902-2-349Типовой проект 902-2-349Типовой проект 902-2-349Типовой проект 902-2-349Типовой проект 902-2-349Типовой проект 902-2-349Типовой проект 902-2-349Типовой проект 902-2-349Типовой проект 902-2-349Типовой проект 902-2-349Типовой проект 902-2-349Типовой проект 902-2-349Типовой проект 902-2-349Типовой проект 902-2-349Типовой проект 902-2-349Типовой проект 902-2-349Типовой проект 902-2-349Типовой проект 902-2-349Типовой проект 902-2-349Типовой проект 902-2-349Типовой проект 902-2-349Типовой проект 902-2-349Типовой проект 902-2-349Типовой проект 902-2-349Типовой проект 902-2-349Типовой проект 902-2-349Типовой проект 902-2-349Типовой проект 902-2-349Типовой проект 902-2-349Типовой проект 902-2-349Типовой проект 902-2-349Типовой проект 902-2-349Типовой проект 902-2-349Типовой проект 902-2-349Типовой проект 902-2-349Типовой проект 902-2-349Типовой проект 902-2-349Типовой проект 902-2-349Типовой проект 902-2-349Типовой проект 902-2-349

© 2013 Ёшкин Кот :-) Карта сайта