Информационная система
«Ёшкин Кот»

Скачать базу одним архивом
Скачать обновления
История создания базы
Карта сайта

Скачать Типовой проект 902-1-59 Альбом I. Технологические решения. Отопление и вентиляция. Внутренний водопровод и канализация

Дата актуализации: 10.08.2017

Типовой проект 902-1-59

Альбом I. Технологические решения. Отопление и вентиляция. Внутренний водопровод и канализация

Обозначение: Типовой проект 902-1-59
Обозначение англ: 902-1-59
Статус:действует
Название рус.:Альбом I. Технологические решения. Отопление и вентиляция. Внутренний водопровод и канализация
Дата добавления в базу:01.09.2013
Дата актуализации:05.05.2017
Дата введения:01.02.1981
Оглавление:ТП 902-1-59 Содержание альбома 1
ТП 902-1-59-МК Технологические решения
ТП 902-1-59-МК-1 Общие данные (начало)
ТП 902-1-59-МК-2 Общие данные (продолжение)
ТП 902-1-59-МК-3 Общие данные (окончание)
ТП 902-1-59-МК-4 Монтажный чертеж. План
ТП 902-1-59-МК-5 Монтажный чертеж. Разрез 1-1
ТП 902-1-59-МК-6 Монтажный чертеж. Разрез 2-2
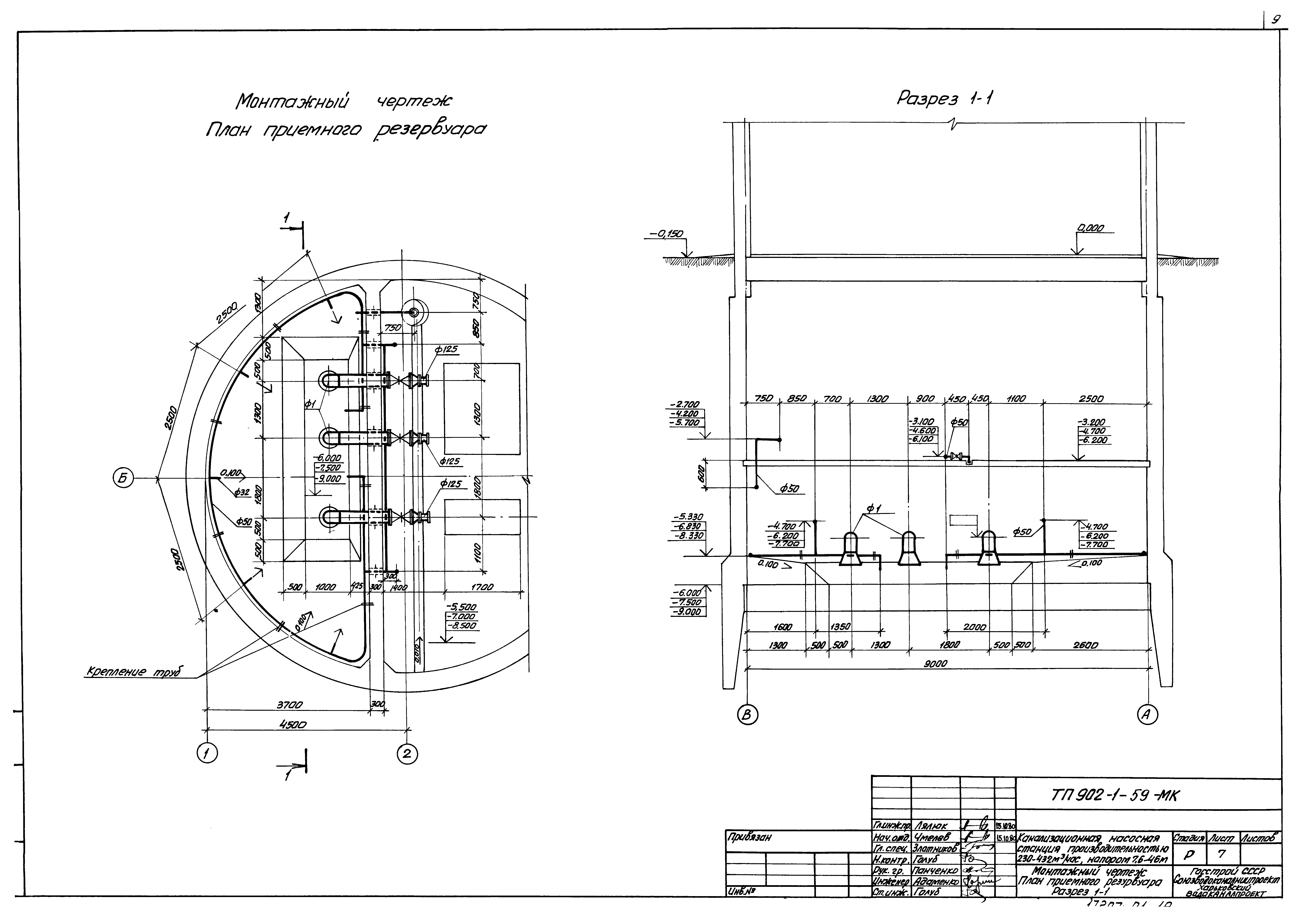
ТП 902-1-59-МК-7 Монтажный чертеж. План приемного резервуара. Разрез 1-1
ТП 902-1-59-МК-8 Схема технологических трубопроводов
ТП 902-1-59-МК-9 План подземной части. Схемы В3,К13
ТП 902-1-59-ОВ Отопление и вентиляция
ТП 902-1-59-ОВ-1 Общие данные (начало)
ТП 902-1-59-ОВ-2 Общие данные (продолжение)
ТП 902-1-59-ОВ-3 Общие данные (продолжение)
ТП 902-1-59-ОВ-4 Общие данные (окончание)
ТП 902-1-59-ОВ-5 Вентиляция. Планы на отметках 0.000;-4.700;-7.000;-6.200;-8.500. Разрезы 1-1;2-2
ТП 902-1-59-ОВ-6 Отопление. Планы на отм. 0.000 -4.700;-7.000;-6.200;-8.500. Узел управления
ТП 902-1-59-ОВ-7 Вентиляция. Схемы систем П1,П2,В1,В2,В4,В5,ВЕ1,ВЕ2,ВЕ3
ТП 902-1-59-ОВ-8 Отопление. Схемы систем отопления и теплоснабжения
ТП 902-1-59-ОВ-9 Вентиляция. Установки П1,П2,В2,В4
ТП 902-1-59-ВК Внутренний водопровод и канализация
ТП 902-1-59-ВК-1 Общие данные
ТП 902-1-59-ВК-2 Внутренний хозяйственно-питьевой водопровод В1 и бытовая канализация К1. Планы. Схемы В1,К1
Разработан: Харьковский Водоканалпроект
Утверждён:24.10.1980 Союзводоканалпроект (Soyuzvodokanalproject 65)
Расположен в:Техническая документация Строительство Справочные документы Типовые строительные конструкции, изделия и узлы Общероссийский строительный каталог Промышленные предприятия, здания и сооружения Здания и сооружения санитарно-технические Канализация Станции насосные Станции насосные для перекачки бытовых сточных вод
Типовой проект 902-1-59Типовой проект 902-1-59Типовой проект 902-1-59Типовой проект 902-1-59Типовой проект 902-1-59Типовой проект 902-1-59Типовой проект 902-1-59Типовой проект 902-1-59Типовой проект 902-1-59Типовой проект 902-1-59Типовой проект 902-1-59Типовой проект 902-1-59Типовой проект 902-1-59Типовой проект 902-1-59Типовой проект 902-1-59Типовой проект 902-1-59Типовой проект 902-1-59Типовой проект 902-1-59Типовой проект 902-1-59Типовой проект 902-1-59Типовой проект 902-1-59Типовой проект 902-1-59Типовой проект 902-1-59Типовой проект 902-1-59

© 2013 Ёшкин Кот :-) Карта сайта