Информационная система
«Ёшкин Кот»

Скачать базу одним архивом
Скачать обновления
История создания базы
Карта сайта

Скачать Типовой проект 705-1-143 Альбом II. Часть 2. Технолого-механические чертежи

Дата актуализации: 10.08.2017

Типовой проект 705-1-143

Альбом II. Часть 2. Технолого-механические чертежи

Обозначение: Типовой проект 705-1-143
Обозначение англ: 705-1-143
Статус:не действует
Название рус.:Альбом II. Часть 2. Технолого-механические чертежи
Дата добавления в базу:01.09.2013
Дата актуализации:05.05.2017
Оглавление:Часть 2
ТП 705-1-143 ТМ3-000.00 ВП Конвейер ленточный горизонтальный № 1. Ведомость покупных изделий
ТП 705-1-143 ТМ3-000.00 ВС Конвейер ленточный горизонтальный № 1. Ведомость спецификаций
ТП 705-1-143 ТМ3-000.00 СБ Конвейер ленточный горизонтальный № 1. Сборочный чертеж
ТП 705-1-143 ТМ3-000.00 Конвейер ленточный горизонтальный № 1. Спецификация
ТП 705-1-143 ТМ3-700.00 Рама привода. Спецификация
ТП 705-1-143 ТМ3-700.07 Связь
ТП 705-1-143 ТМ3-100.00 СБ Установка приводного барабана. Сборочный чертеж
ТП 705-1-143 ТМ3-100.00 Установка приводного барабана. Спецификация
ТП 705-1-143 ТМ3-110.00 СБ Рама приводного барабана. Сборочный чертеж
ТП 705-1-143 ТМ3-110.00 Рама приводного барабана. Спецификация
ТП 705-1-143 ТМ3-200.00 Рама головная. Спецификация
ТП 705-1-143 ТМ3-200.00 СБ Рама головная. Сборочный чертеж
ТП 705-1-143 ТМ3-000.01 Кронштейн
ТП 705-1-143 ТМ3-200.02 Уголок
ТП 705-1-143 ТМ3-300.00 Рама роликоопор концевая. Спецификация
ТП 705-1-143 ТМ3-300.07 Косынка
ТП 705-1-143 ТМ3-300.00 СБ Рама роликоопор концевая. Сборочный чертеж
ТП 705-1-143 ТМ3-400.00 Рама концевого барабана. Спецификация
ТП 705-1-143 ТМ3-400.05 Уголок
ТП 705-1-143 ТМ3-400.00 СБ Рама концевого барабана. Сборочный чертеж
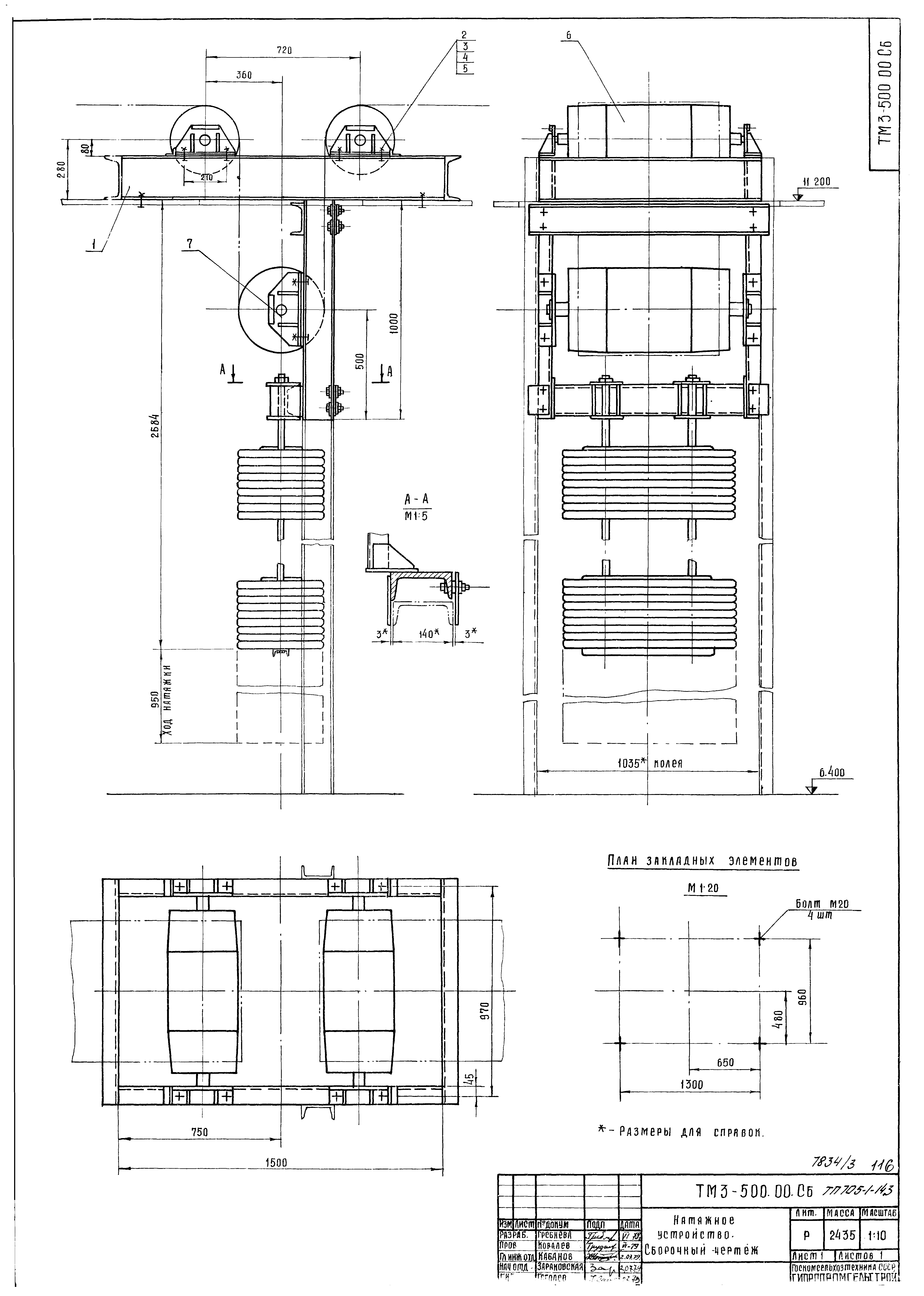
ТП 705-1-143 ТМ3-500.00 СБ Натяжное устройство. Сборочный чертеж
ТП 705-1-143 ТМ3-500.00 Натяжное устройство. Спецификация
ТП 705-1-143 ТМ3-510.00 Рама натяжного устройства. Спецификация
ТП 705-1-143 ТМ3-510.00 СБ Рама натяжного устройства. Сборочный чертеж
ТП 705-1-143 ТМ3-800.00 СБ Установка тросового выключающего устройства. Сборочный чертеж
ТП 705-1-143 ТМ3-800.00 Установка тросового выключающего устройства. Спецификация
ТП 705-1-143 ТМ3-900.01 Ограждение муфты
ТП 705-1-143 ТМ3-700.00 СБ Рама привода. Сборочный чертеж
Разработан: Гипропромсельстрой
Утверждён:28.09.1979 Госкомсельхозтехника СССР (82)
Расположен в:Техническая документация Строительство Справочные документы Типовые строительные конструкции, изделия и узлы Общероссийский строительный каталог Сельскохозяйственные предприятия, здания и сооружения Предприятия, здания и сооружения по ремонту, техническому обслуживанию, хранению и обеспечению горюче-смазочными материалами сельхозтехники Прирельсовые склады твердых минеральных удобрений
Типовой проект 705-1-143Типовой проект 705-1-143Типовой проект 705-1-143Типовой проект 705-1-143Типовой проект 705-1-143Типовой проект 705-1-143Типовой проект 705-1-143Типовой проект 705-1-143Типовой проект 705-1-143Типовой проект 705-1-143Типовой проект 705-1-143Типовой проект 705-1-143Типовой проект 705-1-143Типовой проект 705-1-143Типовой проект 705-1-143Типовой проект 705-1-143Типовой проект 705-1-143Типовой проект 705-1-143Типовой проект 705-1-143Типовой проект 705-1-143

© 2013 Ёшкин Кот :-) Карта сайта