Информационная система
«Ёшкин Кот»

Скачать базу одним архивом
Скачать обновления
История создания базы
Карта сайта

Скачать Типовой проект 705-1-143 Альбом I. Пояснительная записка. Технологические чертежи

Дата актуализации: 10.08.2017

Типовой проект 705-1-143

Альбом I. Пояснительная записка. Технологические чертежи

Обозначение: Типовой проект 705-1-143
Обозначение англ: 705-1-143
Статус:не действует
Название рус.:Альбом I. Пояснительная записка. Технологические чертежи
Дата добавления в базу:01.09.2013
Дата актуализации:05.05.2017
Оглавление:ТП 705-1-143-СА-1 Содержание альбома
ТП 705-1-143-0-1 Пояснительная записка
ТП 705-1-143-0-2 Пояснительная записка
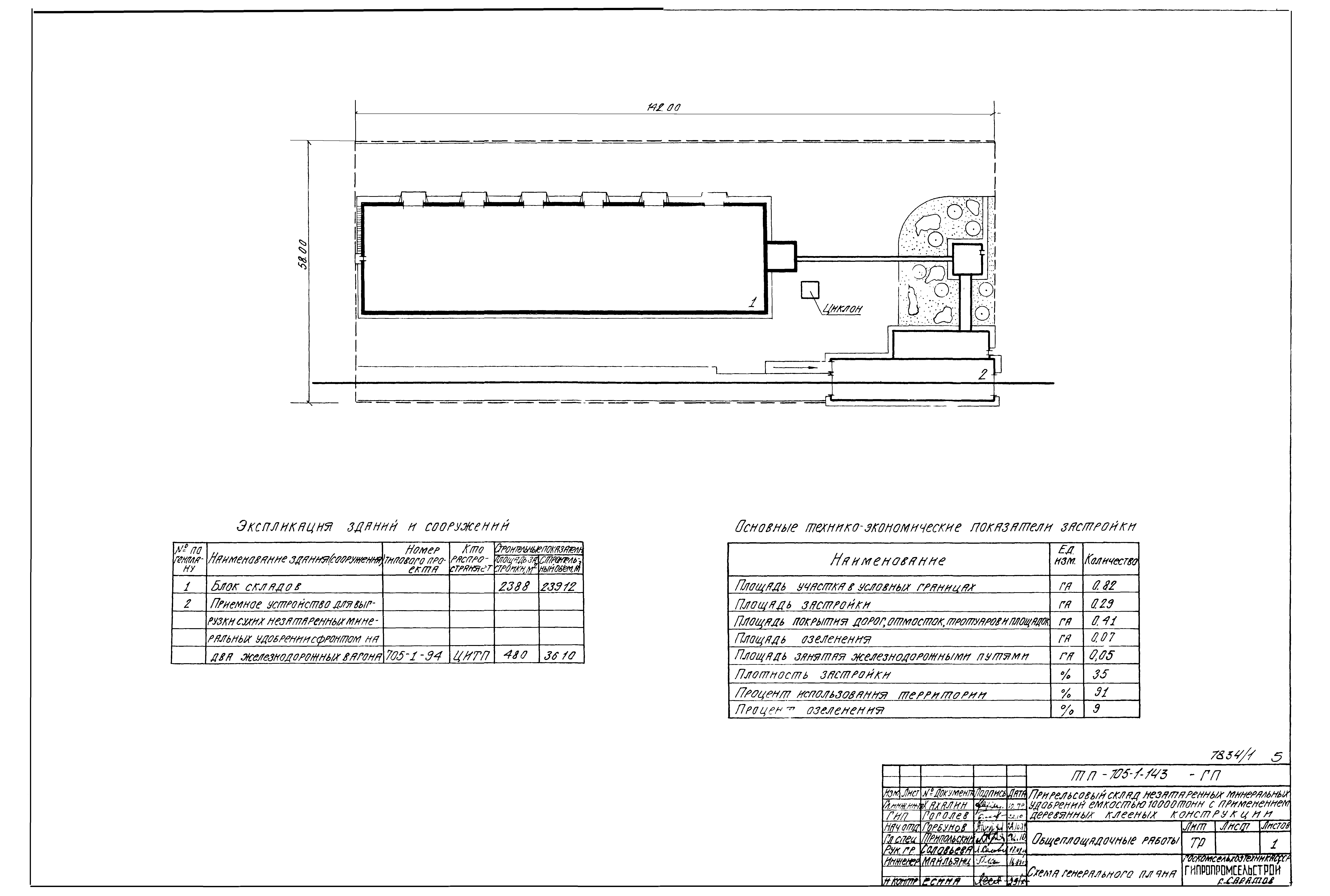
ТП 705-1-143-ГП-1 Схема генерального плана
ТП 705-1-143-Т Технологические решения
ТП 705-1-143-Т1 Общие данные (начало)
ТП 705-1-143-Т-4 Общие данные (окончание)
ТП 705-1-143-Т-5 Компоновочный план и спецификация технологического оборудования
ТП 705-1-143-Т-6-Т-7 План расположения технологического оборудования
ТП 705-1-143-Т-8 Разрез 1-1
ТП 705-1-143-Т-9 Разрез 2-2,3-3. Вид 4-4
Разработан: Гипропромсельстрой
Утверждён:28.09.1979 Госкомсельхозтехника СССР (82)
Расположен в:Техническая документация Строительство Справочные документы Типовые строительные конструкции, изделия и узлы Общероссийский строительный каталог Сельскохозяйственные предприятия, здания и сооружения Предприятия, здания и сооружения по ремонту, техническому обслуживанию, хранению и обеспечению горюче-смазочными материалами сельхозтехники Прирельсовые склады твердых минеральных удобрений
Типовой проект 705-1-143Типовой проект 705-1-143Типовой проект 705-1-143Типовой проект 705-1-143Типовой проект 705-1-143Типовой проект 705-1-143Типовой проект 705-1-143Типовой проект 705-1-143Типовой проект 705-1-143Типовой проект 705-1-143Типовой проект 705-1-143Типовой проект 705-1-143Типовой проект 705-1-143Типовой проект 705-1-143Типовой проект 705-1-143

© 2013 Ёшкин Кот :-) Карта сайта