Информационная система
«Ёшкин Кот»

Скачать базу одним архивом
Скачать обновления
История создания базы
Карта сайта

Скачать Типовой проект 705-1-142 Альбом III. Архитектурно-строительные чертежи. Чертежи по вентиляции

Дата актуализации: 10.08.2017

Типовой проект 705-1-142

Альбом III. Архитектурно-строительные чертежи. Чертежи по вентиляции

Обозначение: Типовой проект 705-1-142
Обозначение англ: 705-1-142
Статус:не действует
Название рус.:Альбом III. Архитектурно-строительные чертежи. Чертежи по вентиляции
Дата добавления в базу:01.09.2013
Дата актуализации:05.05.2017
Оглавление:ТП 705-1-142-СА-1 Содержание альбома
ТП 705-1-142-АР Архитектурно-строительные решения
ТП 705-1-142-АР-1-3 Общие данные
ТП 705-1-142-АР-4 Компоновочная схема склада
ТП 705-1-142 Блок складов ОВ
ТП 705-1-142-АР-5 План на отм. 0.000. Разрез 1-1
ТП 705-1-142-АР-6 Фасады 1-15,15-1,А-Б,Б-А
ТП 705-1-142-АР-7 Разрез 2-2. Узлы 1-6
ТП 705-1-142-АР-8 Узлы 7-11. Планы кровли и полов
ТП 705-1-142 Перегрузочная станция
ТП 705-1-142-АР-9 Фасады. План. Разрез. Планы полов, перемычек, кровли. План колодцев под анкерные болты
ТП 705-1-142 Галерея
ТП 705-1-142-АР-10 Фасады. План. Разрезы. Планы полов, перемычек, кровли. План колодцев под анкерные болты
ТП 705-1-142-КЖ Конструкции железобетонные
ТП 705-1-142-КЖ-1-2 Общие данные
ТП 705-1-142-КЖ-3 Маркировочная схема фундаментов в осях 1-13
ТП 705-1-142-КЖ-4 Маркировочная схема фундаментов в осях 13-17. Маркировочные схемы плит покрытия
ТП 705-1-142-КЖ-5 Фундаменты ФМ1-ФМ3
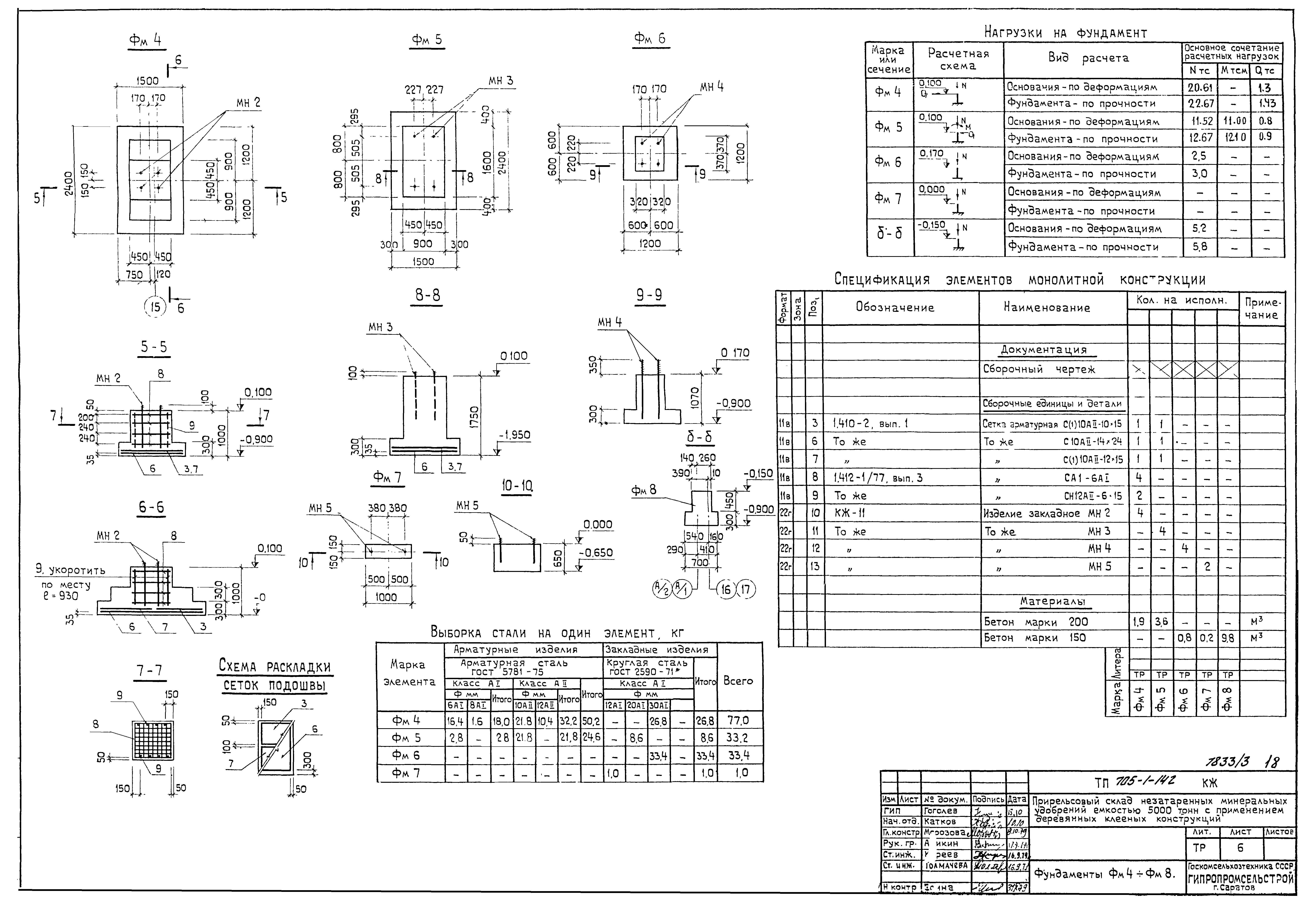
ТП 705-1-142-КЖ-6 Фундаменты ФМ4-ФМ8
ТП 705-1-142-КЖ-7 Фундамент ФМ9
ТП 705-1-142-КЖ-8 Маркировочная схема подпорно-разделительных стенок
ТП 705-1-142-КЖ-9 Маркировочная схема стоек подпорно-разделительных стенок
ТП 705-1-142-КЖ-10 Узлы 1-6
ТП 705-1-142-КЖ-11 Закладные изделия МН1-МН7
ТП 705-1-142-КМ Конструкции металлические
ТП 705-1-142-КМ-1-7 Общие данные
ТП 705-1-142-КМ-8 Отгрузочный бункер с транспортерной эстакадой под конвейер № 2
ТП 705-1-142-КМ-9 Маркировочные схемы элементов площадок, кровли, связей, фахверка
ТП 705-1-142-КМ-10 Маркировочные схемы бункеров и бункерных балок, элементов площадки на отм. 3.00, подвески монорельса
ТП 705-1-142-КМ-11 Пролетное строение ПС12
ТП 705-1-142-КМ-12 Опоры 01,02
ТП 705-1-142-КМ-13 Узлы 1-7
ТП 705-1-142-КМ-14 Узлы 8-18
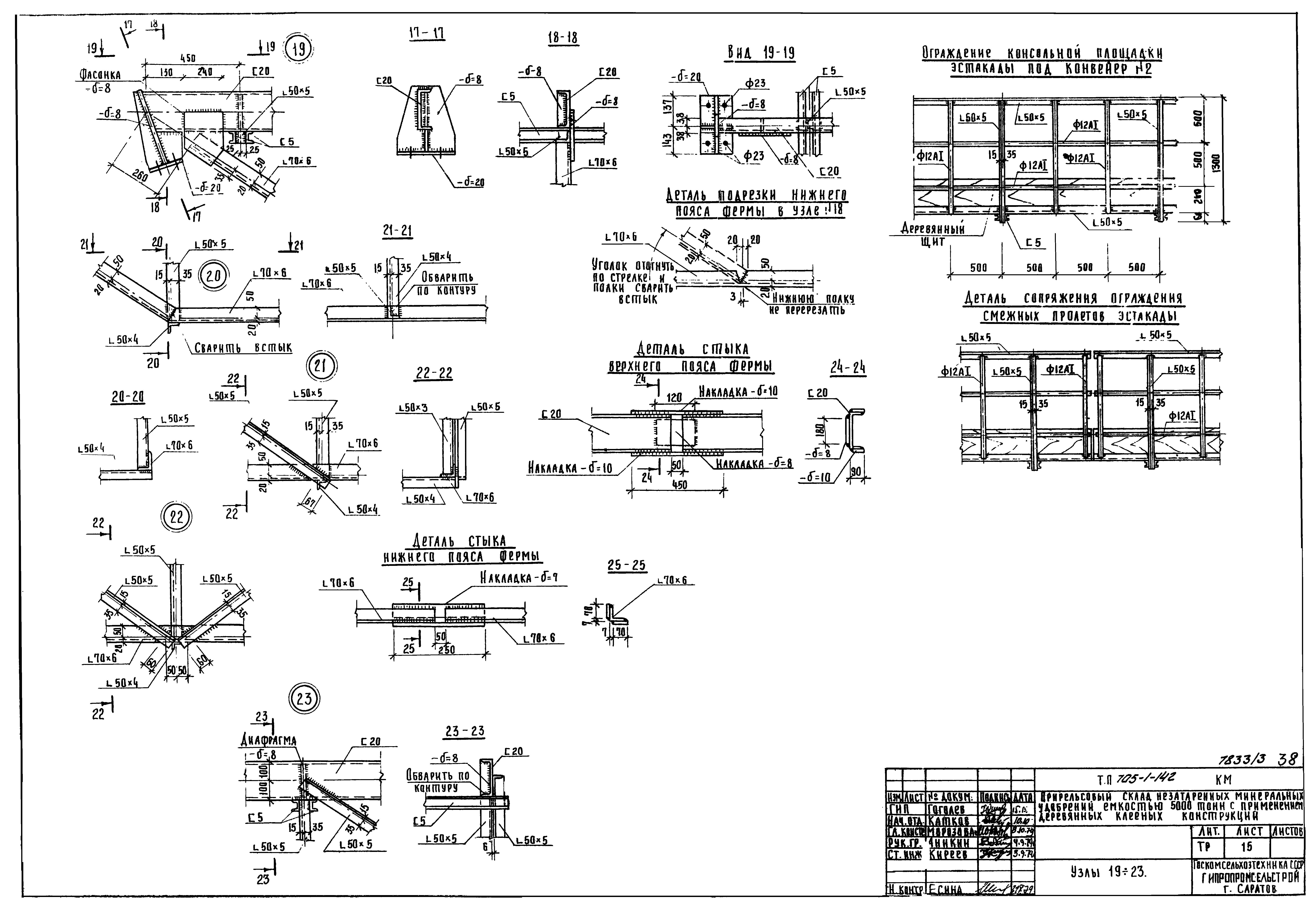
ТП 705-1-142-КМ-15 Узлы 19-23
ТП 705-1-142-КМ-16 Маркировочные схемы лестниц ЛМ1-ЛМ6. Решетка ОР1
ТП 705-1-142-КД Конструкции деревянные
ТП 705-1-142-КД-1-2 Общие данные
ТП 705-1-142-КД-3 Маркировочная схема каркаса. Разрез 1-1
ТП 705-1-142-КД-4 Разрезы 2-2 и 3-3. Сечение а-а. Узлы каркаса 1-5
ТП 705-1-142-КД-5 Узлы каркаса 6-14
ТП 705-1-142-КД-6 Узлы каркаса 15-20
ТП 705-1-142-КД-7 Маркировочные схемы прогонов и стоек
ТП 705-1-142-КД-8 Маркировочные схемы прогонов и стоек торцевых фахверков. Разрез 1-1. Узлы 1-4
ТП 705-1-142-КД-9 Узлы прогонов и стоек 5-13
ТП 705-1-142-КД-10 Узлы прогонов и стоек 14-22
ТП 705-1-142-КД-11 Узлы прогонов и стоек 23-31
ТП 705-1-142-КД-12 Узлы прогонов и стоек 32-35
ТП 705-1-142-КД-13 Маркировочная схема транспортерной галереи на отм. 11.200. Разрез 1-1. Узлы 1-5
ТП 705-1-142-КД-14 Узлы 6-13 к маркировочной схеме транспортерной галереи на отм. 11.200
ТП 705-1-142-КД-15 Заготовительные деревянные клееные изделия для маркировочной схемы каркаса
ТП 705-1-142-КД-16 Заготовительные деревянные клееные изделия для маркировочных схем прогонов и стоек
ТП 705-1-142-КД-17 Заготовительные деревянные клееные изделия для маркировочной схемы транспортерной галереи на отм 11.200
ТП 705-1-142-КД-18-20 Заготовительные стальные изделия для маркировочной схемы каркаса
ТП 705-1-142-КД-21-22 Заготовительные стальные изделия для маркировочных схем прогонов и стоек
ТП 705-1-142-КД-23-24 Заготовительные стальные изделия для маркировочной схемы транспортерной галереи на отм 11.200
ТП 705-1-142-ОВ Решения по вентиляции
ТП 705-1-142-ОВ-1 Общие данные (начало)
ТП 705-1-142-ОВ-2 Общие данные (окончание)
ТП 705-1-142-ОВ-3 План. Разрез 1-1. Сводная спецификация систем вентиляции
ТП 705-1-142-ОВ-4 План на отм. 6.400. Разрезы 2-2,3-3. Схему АТУ-1 выхлопной патрубок вентилятора. Местные отсосы от оборудования
Разработан: Гипропромсельстрой
Утверждён:28.09.1979 Госкомсельхозтехника СССР (82)
Расположен в:Техническая документация Строительство Справочные документы Типовые строительные конструкции, изделия и узлы Общероссийский строительный каталог Сельскохозяйственные предприятия, здания и сооружения Предприятия, здания и сооружения по ремонту, техническому обслуживанию, хранению и обеспечению горюче-смазочными материалами сельхозтехники Прирельсовые склады твердых минеральных удобрений
Типовой проект 705-1-142Типовой проект 705-1-142Типовой проект 705-1-142Типовой проект 705-1-142Типовой проект 705-1-142Типовой проект 705-1-142Типовой проект 705-1-142Типовой проект 705-1-142Типовой проект 705-1-142Типовой проект 705-1-142Типовой проект 705-1-142Типовой проект 705-1-142Типовой проект 705-1-142Типовой проект 705-1-142Типовой проект 705-1-142Типовой проект 705-1-142Типовой проект 705-1-142Типовой проект 705-1-142Типовой проект 705-1-142Типовой проект 705-1-142Типовой проект 705-1-142Типовой проект 705-1-142Типовой проект 705-1-142Типовой проект 705-1-142Типовой проект 705-1-142Типовой проект 705-1-142Типовой проект 705-1-142Типовой проект 705-1-142Типовой проект 705-1-142Типовой проект 705-1-142Типовой проект 705-1-142Типовой проект 705-1-142Типовой проект 705-1-142Типовой проект 705-1-142Типовой проект 705-1-142Типовой проект 705-1-142Типовой проект 705-1-142Типовой проект 705-1-142Типовой проект 705-1-142Типовой проект 705-1-142Типовой проект 705-1-142Типовой проект 705-1-142Типовой проект 705-1-142Типовой проект 705-1-142Типовой проект 705-1-142Типовой проект 705-1-142Типовой проект 705-1-142Типовой проект 705-1-142Типовой проект 705-1-142Типовой проект 705-1-142Типовой проект 705-1-142Типовой проект 705-1-142Типовой проект 705-1-142Типовой проект 705-1-142Типовой проект 705-1-142Типовой проект 705-1-142Типовой проект 705-1-142Типовой проект 705-1-142Типовой проект 705-1-142Типовой проект 705-1-142Типовой проект 705-1-142Типовой проект 705-1-142Типовой проект 705-1-142Типовой проект 705-1-142Типовой проект 705-1-142Типовой проект 705-1-142Типовой проект 705-1-142Типовой проект 705-1-142Типовой проект 705-1-142

© 2013 Ёшкин Кот :-) Карта сайта