Скачать Типовой проект 902-2-332 Альбом II. Технологическая, архитектурно-строительная и электротехническая частиДата актуализации: 10.08.2017 Типовой проект 902-2-332
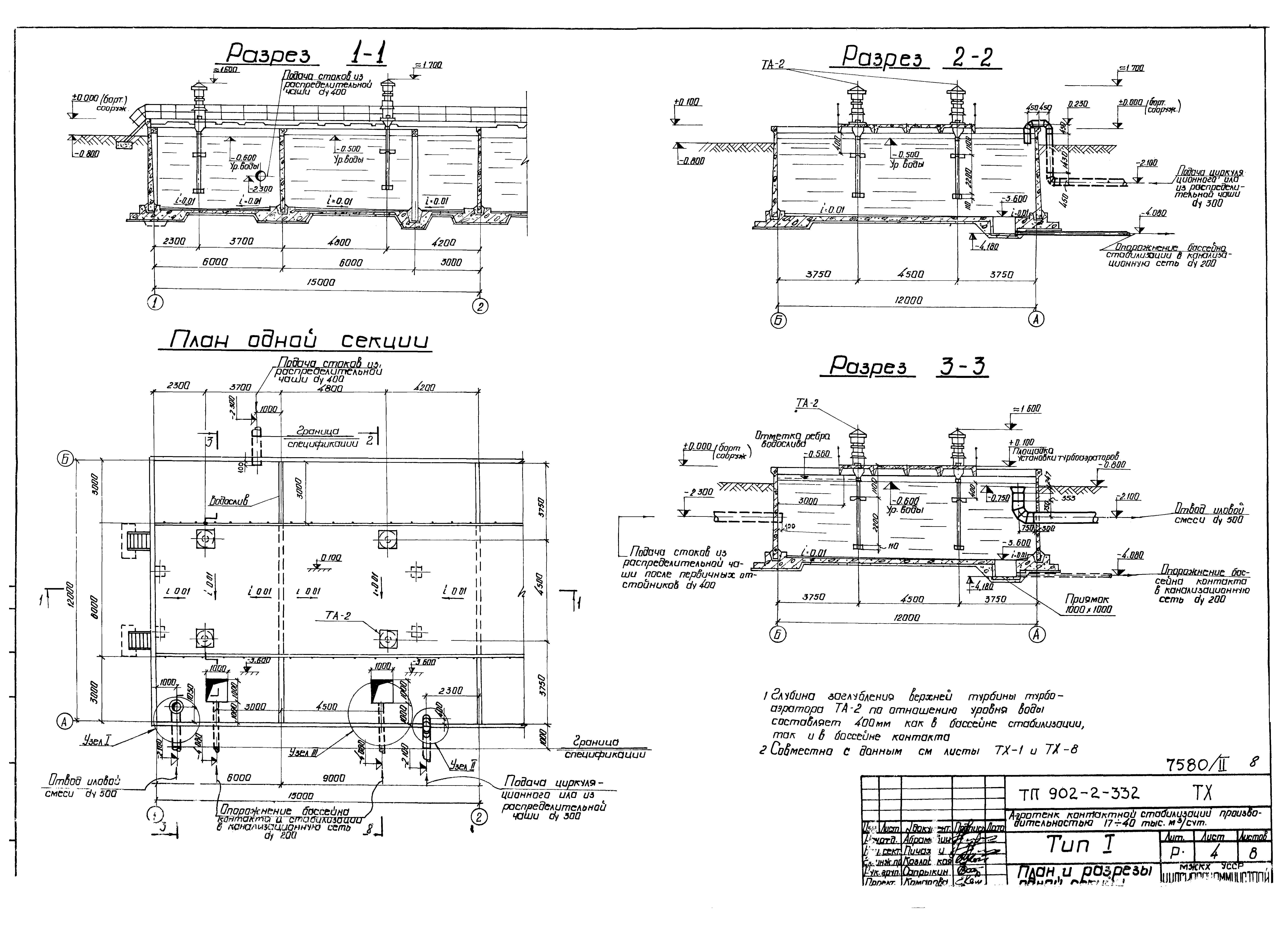
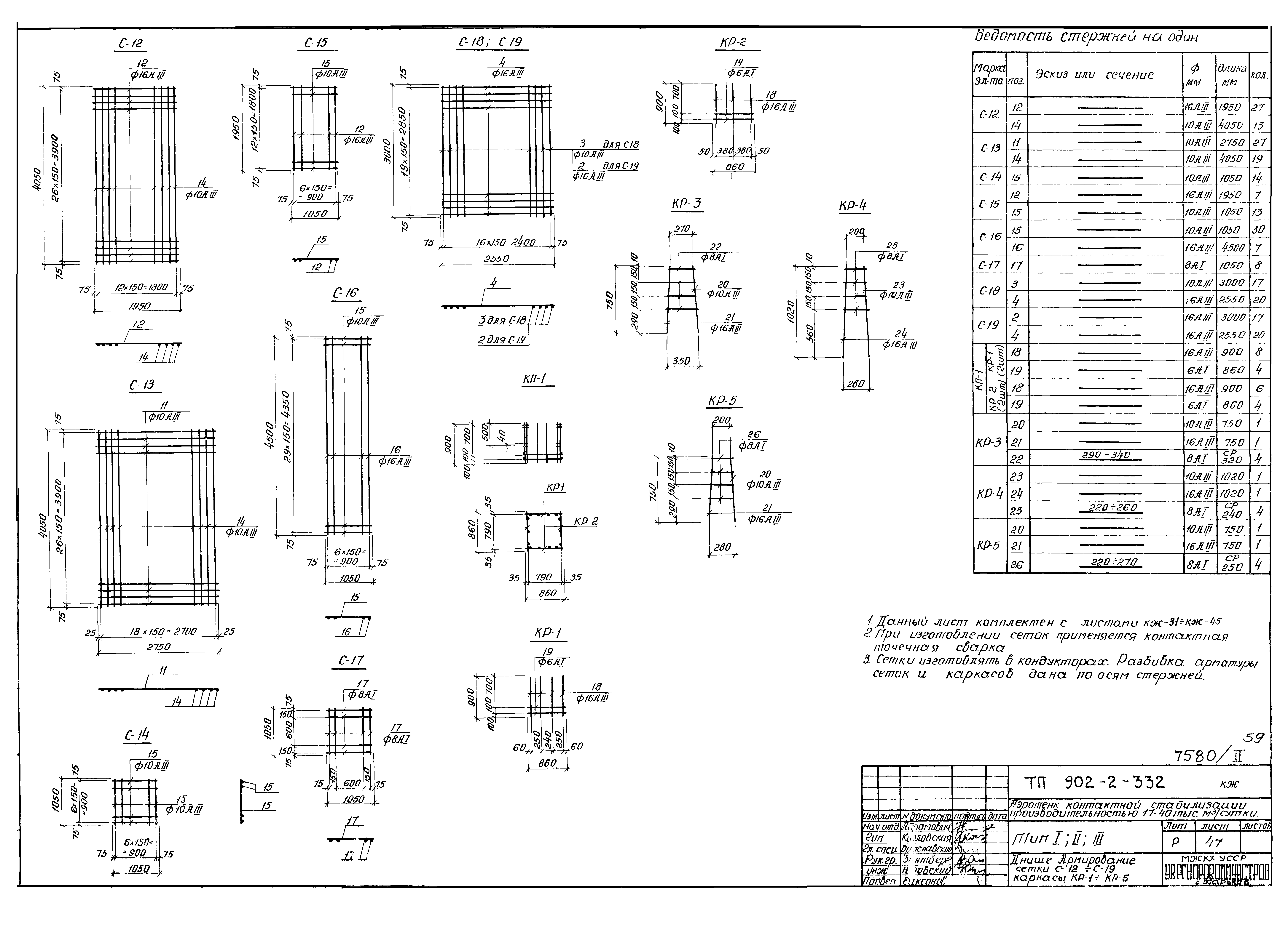
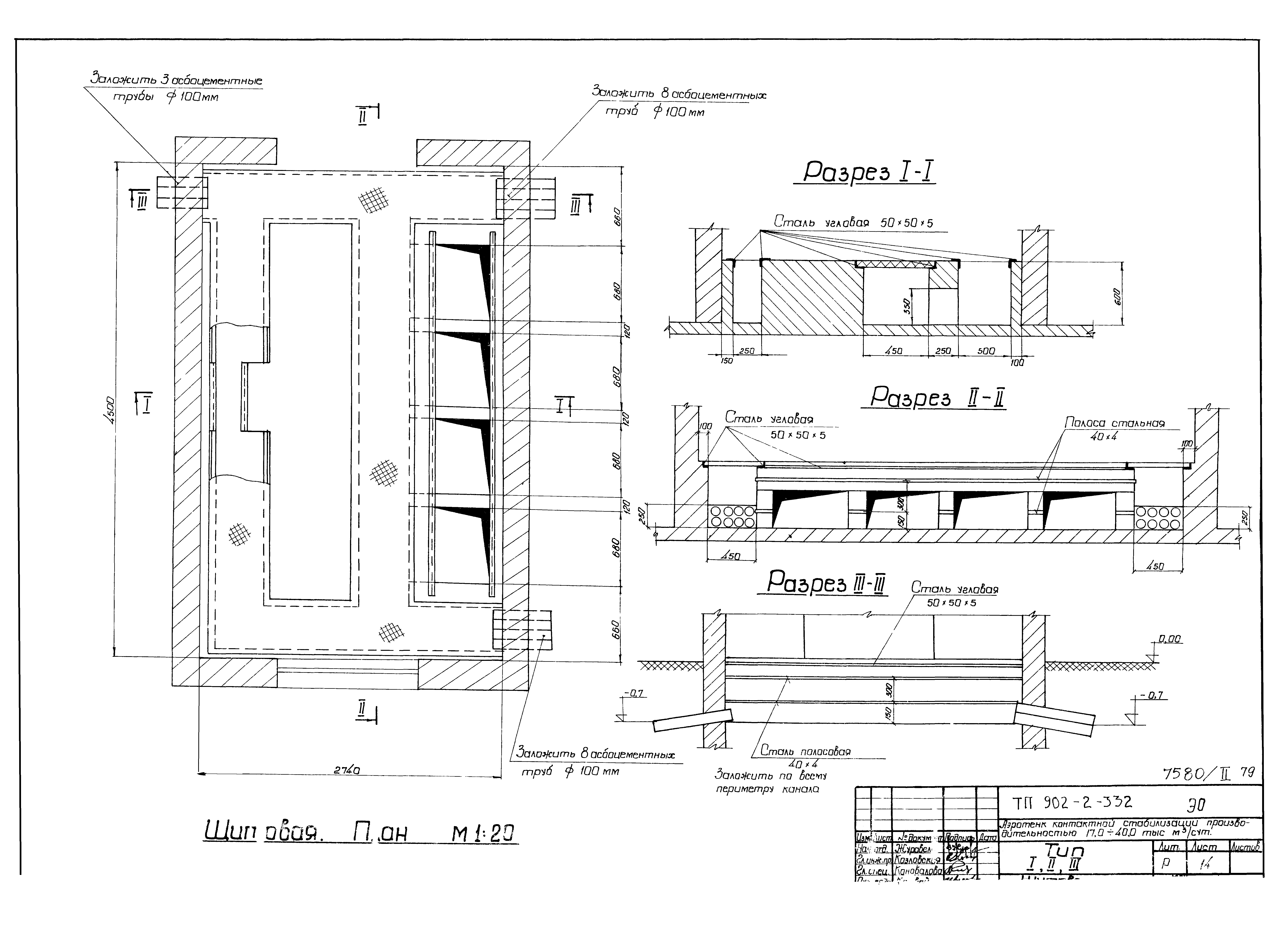
Альбом II. Технологическая, архитектурно-строительная и электротехническая частиОбозначение: | Типовой проект 902-2-332 | Обозначение англ: | 902-2-332 | Статус: | действует | Название рус.: | Альбом II. Технологическая, архитектурно-строительная и электротехническая части | Дата добавления в базу: | 01.09.2013 | Дата актуализации: | 05.05.2017 | Дата введения: | 29.03.1979 | Оглавление: | ТП 902-2-332 Титульный лист ТП 902-2-332 Содержание альбома (начало) ТП 902-2-332 Содержание альбома (окончание) ТП 902-2-332-ПЗ-1 Заглавный лист ТП 902-2-332-ТХ Технологическая часть ТП 902-2-332-ТХ-1 Тип 1. Схемы компоновок из 2,3 и 4 секций ТП 902-2-332-ТХ-2 Тип 2. Схемы компоновок из 2,3 и 4 секций ТП 902-2-332-ТХ-3 Тип 3. Схемы компоновок из 2,3 и 4 секций ТП 902-2-332-ТХ-4 Тип 1. План и разрезы одной секции ТП 902-2-332-ТХ-5 Тип 2. План и разрезы одной секции ТП 902-2-332-ТХ-6 Тип 3. План и разрезы одной секции ТП 902-2-332-ТХ-7 Тип 1-3. Разрезы 4х секций ТП 902-2-332-ТХ-8 Тип 1-3. Узлы 1-3 и спецификация ТП 902-2-332-КЖ Архитектурно-строительная часть ТП 902-2-332-КЖ-1 Тип 1. Сводные выборки материалов. Сборные железобетонные конструкции ТП 902-2-332-КЖ-2 Тип 1. Сводные выборки материалов. Монолитные железобетонные конструкции. Выборка металла ТП 902-2-332-КЖ-3 Тип 2. Сводные выборки материалов. Сборные железобетонные конструкции ТП 902-2-332-КЖ-4 Тип 2. Сводные выборки материалов. Монолитные железобетонные конструкции. Выборка металла ТП 902-2-332-КЖ-5 Тип 3. Сводные выборки материалов. Сборные железобетонные конструкции ТП 902-2-332-КЖ-6 Тип 3. Сводные выборки материалов. Монолитные железобетонные конструкции. Выборка металла ТП 902-2-332-КЖ-7 Тип 1. Планы на отм. 0.100 и -3.600. Разрезы 1-1,2-2,3-3 ТП 902-2-332-КЖ-8 Тип 2. План на отм. 0.100. Разрезы 2-2÷3-3 ТП 902-2-332-КЖ-9 Тип 2. План на отм. -3.600. Разрез 1-1 ТП 902-2-332-КЖ-10 Тип 3. План на отм. 0.100. Разрез 1-1 ТП 902-2-332-КЖ-11 Тип 3. План на отм. -3.600. Разрез 2-2;3-3 ТП 902-2-332-КЖ-12 Тип 1,2,3. Узлы 1-6 ТП 902-2-332-КЖ-13 Тип 1. Маркировочная схема панелей. Вид по 1-1÷5-5 ТП 902-2-332-КЖ-14 Тип 2. Маркировочная схема панелей. Вид по 1-1÷5-5 ТП 902-2-332-КЖ-15 Тип 3. Маркировочная схема панелей. Вид по 3-3÷5-5 ТП 902-2-332-КЖ-16 Тип 3. Маркировочная схема панелей. Вид по 1-1÷2-2 ТП 902-2-332-КЖ-17 Тип 1. Маркировочная схема плит покрытия мостика. Разрезы 1-1÷4-4 ТП 902-2-332-КЖ-18 Тип 2. Маркировочная схема плит покрытия мостика. Разрезы 1-1÷4-4 ТП 902-2-332-КЖ-19 Тип 3. Маркировочная схема плит покрытия мостика. Разрезы 1-1÷4-4 ТП 902-2-332-КЖ-20 Тип 1,2,3. Маркировочные схемы панелей и плит покрытия мостиков. Узлы "1"-"8" ТП 902-2-332-КЖ-21 Тип 1,2,3. Монолитные участки УМ-1,УМ-2,УМ-3. Опалубочный чертеж. Армирование ТП 902-2-332-КЖ-22 Тип 1,2,3. Монолитные участки УМ-4,УМ-5. Опалубочный чертеж. Армирование ТП 902-2-332-КЖ-23 Тип 1,2,3. Монолитные участки УМ-5,УМ-6,УМ-7. Опалубочный чертеж. Армирование ТП 902-2-332-КЖ-24 Тип 1,2,3. Армирование монолитных участков УМ-1÷УМ-7. Узлы 2-7 ТП 902-2-332-КЖ-25 Тип 1,2,3. Ведомость стержней на 1 элемент УМ-1÷УМ-5 ТП 902-2-332-КЖ-26 Тип 1,2,3. Ведомость стержней на 1 элемент УМ-6÷УМ-7. Выборка стали на 1 элемент. Спецификация марок арматурных изделий на 1 элемент ТП 902-2-332-КЖ-27 Тип 1. Днище РКМ-1. Опалубочный план. Разрезы 1-1;2-2. Сечения 3-3;8-8;10-10 ТП 902-2-332-КЖ-28 Тип 2. Днище РКМ-2. Опалубочный план. Разрезы 1-1÷3-3 ТП 902-2-332-КЖ-29 Тип 3. Днище РКМ-3. Опалубочный план. Разрезы 1-1÷3-3 ТП 902-2-332-КЖ-30 Тип 1,2,3. Днище. Опалубочный план. Узлы "1"-"3". Сечения 4-4÷7-7;11-11 ТП 902-2-332-КЖ-31 Тип 1. Днище РКМ-1. Армирование. Планы раскладки верхних и нижних арматурных сеток ТП 902-2-332-КЖ-32 Тип 1. Днище РКМ-1. Армирование. Разрезы 1-1÷5-5 ТП 902-2-332-КЖ-33 Тип 1. Днище РКМ-1. Армирование. Узлы 1;2;3;4. Разрез 6-6. Армирование приямка ТП 902-2-332-КЖ-34 Тип 1. Днище РКМ-1. Армирование. Спецификации (компоновка из 2х секций) ТП 902-2-332-КЖ-35 Тип 1. Днище РКМ-1. Армирование. Спецификация (компоновка из 4х и 3х секций) ТП 902-2-332-КЖ-36 Тип 2. Днище РКМ-2. Армирование. План раскладки верхних и нижних арматурных сеток ТП 902-2-332-КЖ-37 Тип 2. Днище РКМ-2. Армирование. Разрезы 1-1÷5-5 ТП 902-2-332-КЖ-38 Тип 2. Днище РКМ-2. Армирование. Узлы 1-4. Сечение 6-6. Армирование приямка ТП 902-2-332-КЖ-39 Тип 2. Днище РКМ-2. Армирование. Спецификации (компоновка из 2х секций) ТП 902-2-332-КЖ-40 Тип 2. Днище РКМ-2. Армирование. Спецификации (компоновка из 4х и 3х секций) ТП 902-2-332-КЖ-41 Тип 3. Днище РКМ-3. Армирование. План раскладки верхних арматурных сеток. Разрез 1-1 ТП 902-2-332-КЖ-42 Тип 3. Днище РКМ-3. Армирование. План раскладки нижних арматурных сеток. Разрез 2-2. Сечение 3-3 ТП 902-2-332-КЖ-43 Тип 3. Днище РКМ-3. Армирование. Узлы "1",2-3,"4". Разрезы 4-4;5-5. Армирование приямка ТП 902-2-332-КЖ-44 Тип 3. Днище РКМ-3. Армирование. Спецификация (компоновка из 2х секций) ТП 902-2-332-КЖ-45 Тип 3. Днище РКМ-3. Армирование. Спецификация (компоновка из 4х и 3х секций) ТП 902-2-332-КЖ-46 Тип 1,2,3. Днище. Армирование. Сетки С-1÷С-11 ТП 902-2-332-КЖ-47 Тип 1,2,3. Днище. Армирование. Сетки С-12÷С-19. Каркасы КР-1÷КР-5 ТП 902-2-332-КЖ-48 Тип 1,2,3. Стеновые панели ПС-2÷ПС-5. Опалубочные чертежи и армирование ТП 902-2-332-КЖ-49 Тип 1,2,3. Колонна. Траверса Б-1. Опалубочные чертежи и армирование ТП 902-2-332-КЖ-50 Тип 1,2,3. Плита покрытия мостиков П-2÷П-4. Опалубочные чертежи и армирование ТП 902-2-332-КЖ-51 Тип 1,2,3. Закладные детали МН-1÷МН-8. Соединительные элементы МС-1÷МС-6 ТП 902-2-332-КЖ-52 Тип 1,2,3. Маркировочные схемы лестницы и ограждений. Ограждения ОЛГ-1А,ОЛГ-2А ТП 902-2-332-КЖ-53 Тип 1,2,3. Щитовая. План. Разрезы. Фасады. План кровли. Спецификации ТП 902-2-332-КЖ-54 Тип 1,2,3. Щитовая. План фундаментов. План каналов. План перекрытия каналов. Разрезы. Развертки 6-1. Сечения ТП 902-2-332-ЭО Электротехническая часть ТП 902-2-332-ЭО-1 Схема электрических соединений 0,4 кВ ТП 902-2-332-ЭО-2 Принципиальная схема управления электродвигателем турбоаэратора ТП 902-2-332-ЭО-3 Тип 1;2. Кабельно-трубный журнал на 3х листах ТП 902-2-332-ЭО-4 Тип 1;2. Кабельно-трубный журнал на 3х листах ТП 902-2-332-ЭО-5 Тип 1;2. Кабельно-трубный журнал на 3х листах ТП 902-2-332-ЭО-6 Тип 3. Кабельно-трубный журнал на 3х листах ТП 902-2-332-ЭО-7 Тип 3. Кабельно-трубный журнал на 3х листах ТП 902-2-332-ЭО-8 Тип 3. Кабельно-трубный журнал на 3х листах ТП 902-2-332-ЭО-9 Схема присоединений ТП 902-2-332-ЭО-10 Щитовая. План расположения электрооборудования. Кабельная разводка, разрезы ТП 902-2-332-ЭО-11 Щитовая. Электроосвещение и зануление ТП 902-2-332-ЭО-12 Тип 1;2. Аэротенк. План расположения электрооборудования. Кабельная разводка и разрезы ТП 902-2-332-ЭО-13 Тип 3. Аэротенк. План расположения электрооборудования. Кабельная разводка и разрезы ТП 902-2-332-ЭО-14 Щитовая. Строительное задание ТП 902-2-332-ЭО-15 Шкаф управления электродвигателями турбоаэраторов. Общий вид ТП 902-2-332-ЭО-16 Шкаф управления электродвигателями турбоаэраторов. Общий вид ТП 902-2-332-ЭО-17 Шкаф управления электродвигателями турбоаэраторов. Перечень надписей ТП 902-2-332-ЭО-18 Шкаф управления электродвигателями турбоаэраторов. Технические данные электрооборудования ТП 902-2-332-ЭО-19 Шкаф управления электродвигателями турбоаэраторов. Схема соединений ТП 902-2-332-ЭО-20 Шкаф управления электродвигателями турбоаэраторов. Схема соединений | Разработан: | УкркоммунНИИпроект Минжилкомхоза УССР
| Утверждён: | 28.02.1979 МЖКХ УССР (67)
| Расположен в: |
|
                                                                                    
|