| ||||||||||||||||||||||||
Скачать Серия ПК-01-32 Выпуск II. Фермы из уголков по ГОСТ 1957 г., сталь марок МСт3 и низколегированная с расчетным сопротивлением R = 2900 кг/кв. cмДата актуализации: 10.08.2017
|
| Обозначение: | Серия ПК-01-32 |
| Обозначение англ: | Series ПК-01-32 |
| Статус: | не действует |
| Название рус.: | Выпуск II. Фермы из уголков по ГОСТ 1957 г., сталь марок МСт3 и низколегированная с расчетным сопротивлением R = 2900 кг/кв. cм |
| Дата добавления в базу: | 01.09.2013 |
| Дата актуализации: | 05.05.2017 |
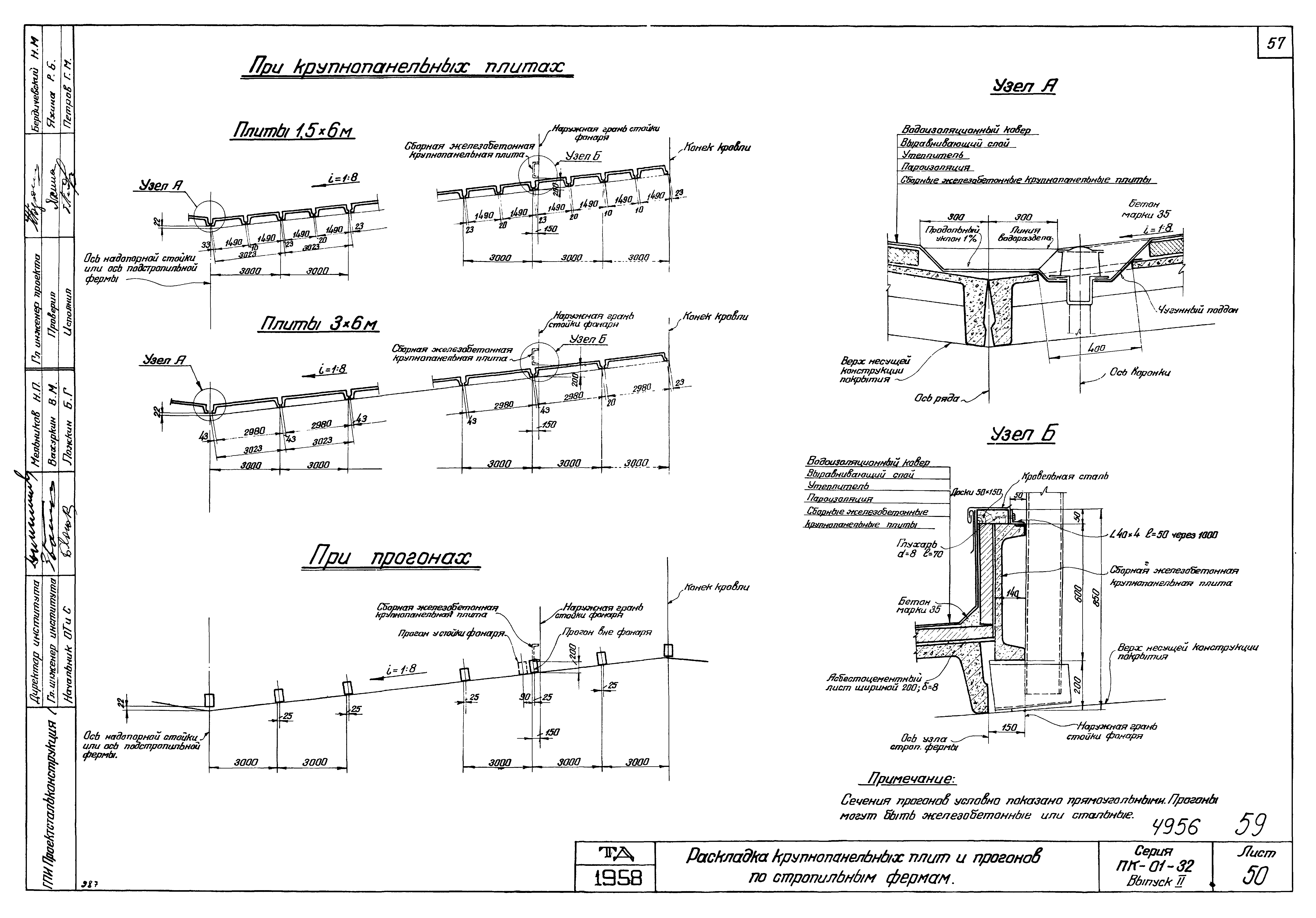
| Оглавление: | ПК-01-32 Пояснительная записка ПК-01-32 Схемы стропильных и подстропильных ферм ПК-01-32 Весовые показатели стропильных и подстропильных ферм. Сталь марки МСТЗ ПК-01-32 Весовые показатели стропильных и подстропильных ферм. Низколегированная сталь с расчетным сопротивлением R=2900 кг/см² и сталь марки МСТЗ ПК-01-32 Расчетные нагрузки на стропильные фермы ПК-01-32 Усилия в стержнях стропильных и подстропильных ферм ПК-01-32 Деление элементов стропильных ферм на отправочные марки ПК-01-32 Схемы сечения связей по фермам при плитах 1,5х6 м. Фермы без фонаря ПК-01-32 Схемы сечения связей по фермам при плитах 1,5х6 м. Фермы двускатные с фонарем ПК-01-32 Схемы сечения связей по фермам при плитах 1,5х6 м. Фермы односкатные с фонарем над колонной двухпролетного здания ПК-01-32 Схемы сечения связей по фермам при плитах 3х6 м. Фермы без фонаря ПК-01-32 Схемы сечения связей по фермам при плитах 3х6 м. Фермы двускатные с фонарем ПК-01-32 Схемы сечения связей по фермам при плитах 3х6 м. Фермы односкатные с фонарем над колонной двухпролетного здания ПК-01-32 Схемы сечения связей при прогонах. Фермы двускатные без фонаря ПК-01-32 Схемы сечения связей при прогонах. Фермы односкатные без фонаря ПК-01-32 Схемы сечения связей при прогонах. Фермы двускатные с фонарем ПК-01-32 Схемы сечения связей при прогонах. Фермы односкатные с фонарем над колонной двухпролетного здания ПК-01-32 Дополнительные и заменяющие связи по стропильным фермам для зданий с тяжелым режимом работы ПК-01-32 Схемы дополнительных продольных связей по строительным фермам при шаге средних колонн 12 м ПК-01-32 Сортамент шпренгельных стропильных ферм пролетом 24 м. Сталь марки МСТЗ ПК-01-32 Сортамент шпренгельных стропильных ферм пролетом 30 м. Сталь марки МСТЗ ПК-01-32 Сортамент шпренгельных стропильных ферм пролетом 36 м. Сталь марки МСТЗ ПК-01-32 Сортамент бесшпренгельных стропильных ферм пролетом 24 м. Сталь марки МСТЗ ПК-01-32 Сортамент бесшпренгельных стропильных ферм пролетом 30 м. Сталь марки МСТЗ ПК-01-32 Сортамент бесшпренгельных стропильных ферм пролетом 36 м. Сталь марки МСТЗ ПК-01-32 Сортамент шпренгельных стропильных ферм пролетом 24 м. Сталь низколегированная с расчетным сопротивлением R=2900 кг/см² и сталь марки МСТЗ ПК-01-32 Сортамент шпренгельных стропильных ферм пролетом 30 м. Сталь низколегированная с расчетным сопротивлением R=2900 кг/см² и сталь марки МСТЗ ПК-01-32 Сортамент шпренгельных стропильных ферм пролетом 36 м. Сталь низколегированная с расчетным сопротивлением R=2900 кг/см² и сталь марки МСТЗ ПК-01-32 Сортамент бесшпренгельных стропильных ферм пролетом 24 м. Сталь низколегированная с расчетным сопротивлением R=2900 кг/см² и сталь марки МСТЗ ПК-01-32 Сортамент бесшпренгельных стропильных ферм пролетом 30 м. Сталь низколегированная с расчетным сопротивлением R=2900 кг/см² и сталь марки МСТЗ ПК-01-32 Сортамент бесшпренгельных стропильных ферм пролетом 36 м. Сталь низколегированная с расчетным сопротивлением R=2900 кг/см² и сталь марки МСТЗ ПК-01-32 Сортамент подстропильных ферм пролетом 12 м. Сталь марки МСТЗ ПК-01-32 Сортамент подстропильных ферм пролетом 12 м. Низколегированная сталь с расчетным сопротивлением R=2900 кг/см² и сталь марки МСТЗ ПК-01-32 Сортамент надопорных стоек и подстропильных надколонников ПК-01-32 Нижние опорные узлы стропильных ферм при шаге колонн 6 м и узлы примыкания панели "ВО" к ферме ПК-01-32 Верхний опорный узел 1 при крупнопанельных плитах ПК-01-32 Узлы 2-8 крепления связей при крупнопанельных плитах и прогонах и инвентарная съемная распорка ПК-01-32 Узлы 9-16 крепления связей при крупнопанельных плитах ПК-01-32 Узлы 17-24 крепления связей при прогонах ПК-01-32 Узлы 25-26 крепления связей при прогонах ПК-01-32 Узлы 27-29 крепления связей при прогонах ПК-01-32 Детали опирания стропильных и подстропильных ферм и верхний узел ПК-01-32 Детали опирания подстропильных, стропильных ферм на стальные колонны и прогонов на подстропильную ферму ПК-01-32 Детали опирания стропильных ферм на подстропильные ПК-01-32 Детали монтажных стыков в стропильных фермах пролетом 30 и 36 м ПК-01-32 Детали монтажных стыков в стропильных фермах пролетом 24 м ПК-01-32 Детали опирания односкатных стропильных ферм на колонны среднего ряда ПК-01-32 Конструктивное решение опирания подстропильных ферм при шаге колонн 12 м и более ПК-01-32 Конструктивное решение опирания стропильных ферм на колонны крайнего ряда ПК-01-32 Разметка дыр в поясах стропильных ферм ПК-01-32 Раскладка крупнопанельных плит и прогонов по стропильным фермам ПК-01-32 Привязка ферм в местах перепадов ПК-01-32 Указания по расчету монтажных и заводских стыков поясных уголков в узлах ферм |
| Разработан: | Проектстальконструкция Госстроя СССР |
| Утверждён: | 21.08.1958 Госстрой СССР (Государственный комитет Совета Министров СССР по делам строительства) (USSR Gosstroy 324) |
| Расположен в: |




























































