Информационная система
«Ёшкин Кот»

Скачать базу одним архивом
Скачать обновления
История создания базы
Карта сайта

Скачать Типовой проект 507-63 Альбом I. Архитектурно-строительная и санитарно-техническая части

Дата актуализации: 10.08.2017

Типовой проект 507-63

Альбом I. Архитектурно-строительная и санитарно-техническая части

Обозначение: Типовой проект 507-63
Обозначение англ: 507-63
Статус:действует
Название рус.:Альбом I. Архитектурно-строительная и санитарно-техническая части
Дата добавления в базу:01.09.2013
Дата актуализации:05.05.2017
Оглавление:ТП 507-63 Содержание
ТП 507-63 Пояснительная записка
ТП 507-63-АР Архитектурно-строительные решения
ТП 507-63-АР-1 Общие данные (начало)
ТП 507-63-АР-2 Общие данные (окончание)
ТП 507-63-АР-3 План на отм. 0.000. Фрагмент плана 1. Узлы
ТП 507-63-АР-4 План на отм. 4.200. Фрагменты плана 2,3
ТП 507-63-АР-5 Разрезы 1-1÷3-3
ТП 507-63-АР-6 Разрезы 4-4÷5-5
ТП 507-63-АР-7 Фасады 1-9;9-1;А-В;В-А
ТП 507-63-АР-8 План кровли. Планы полов. Схема заполнения оконных проемов
ТП 507-63-КЖ Конструкции железобетонные
ТП 507-63-КЖ-1 Общие данные (начало)
ТП 507-63-КЖ-2 Общие данные (окончание)
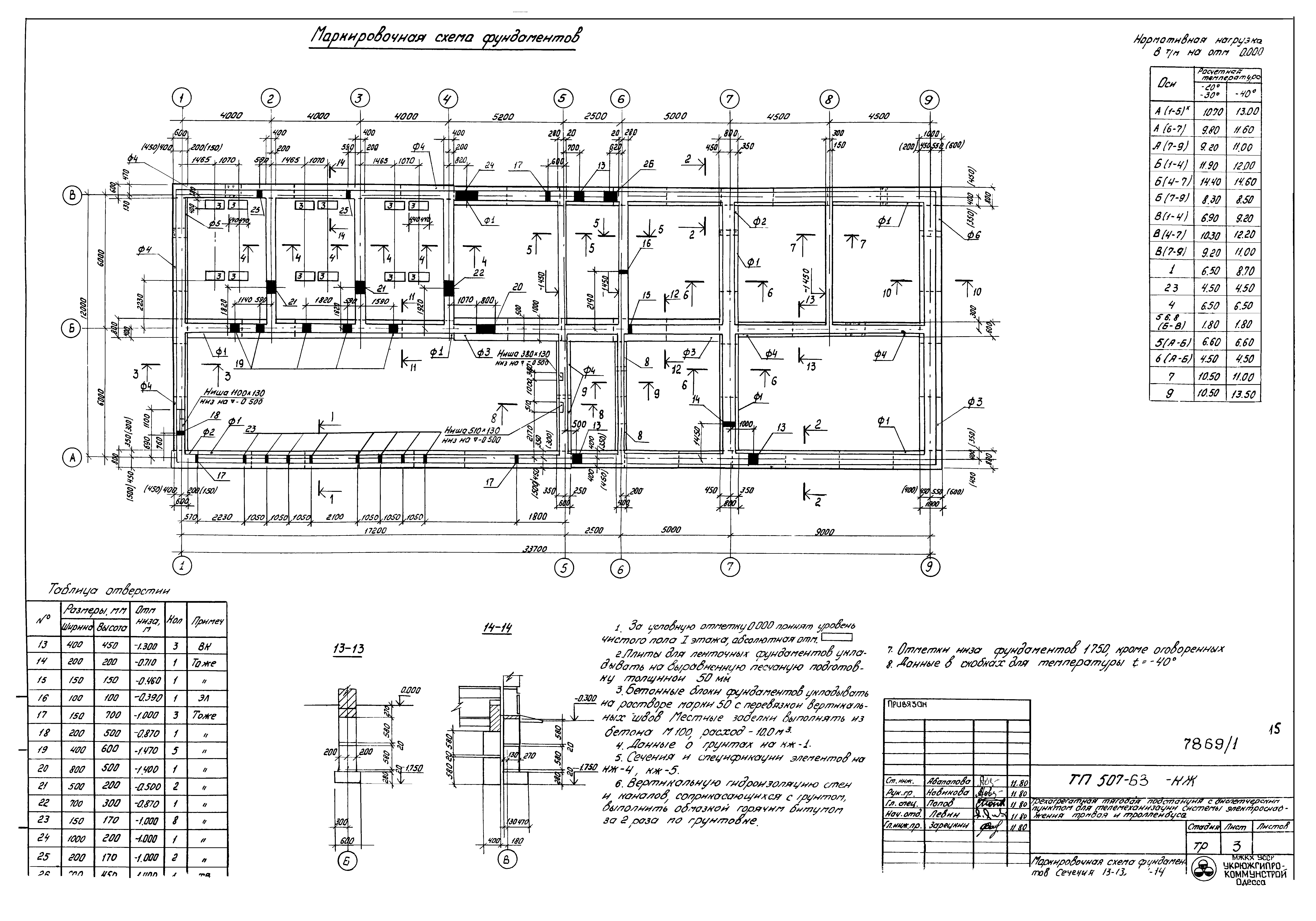
ТП 507-63-КЖ-3 Маркировочная схема фундаментов. Сечения 13-13;14-14
ТП 507-63-КЖ-4 Развертки фундаментов по осям А,Б,В,1,2,3,4
ТП 507-63-КЖ-5 Развертки фундаментов по осям 5,6,7,8,9. Сечения 1-1÷12-12
ТП 507-63-КЖ-6 План каналов на отм. 0.000
ТП 507-63-КЖ-7 План перекрытия каналов на отм. 0.000
ТП 507-63-КЖ-8 План каналов на отм. 4.200 в осях 1-5
ТП 507-63-КЖ-9 План каналов на отм. 4.200 в осях 7-9
ТП 507-63-КЖ-10 Сечение 1-1÷7-7
ТП 507-63-КЖ-11 Сечения 8-8÷13-13
ТП 507-63-КЖ-12 Маркировочная схема панелей перекрытия на отм. 4.200
ТП 507-63-КЖ-13 Маркировочная схема панелей покрытия
ТП 507-63-КЖ-14 Монолитные участки УМ-1,УМ-2,УМ-3
ТП 507-63-КЖ-15 Монолитные участки УМ-4,УМ-5,УМ-6
ТП 507-63-КЖ-16 Маркировочная схема лестницы в осях 5-6
ТП 507-63-КЖ-17 Маркировочная схемы лестниц Л-1,Л-2
ТП 507-63-КЖ-18 Маркировочная схема стальных площадок, балок, стремянок и лестниц в осях 1-4,Б-В
ТП 507-63-ВК Внутренний водопровод и канализация
ТП 507-63-ВК-1 Общие данные (начало)
ТП 507-63-ВК-2 Общие данные (окончание)
ТП 507-63-ВК-3 Планы на отм. 0.000 и 4.200 с сетями водопровода и канализации. Схемы систем В1,Т3,К1 и К2
ТП 507-63-ОВ Отопление и вентиляция
ТП 507-63-ОВ-1 Отопление и вентиляция. Общие данные
ТП 507-63-ОВ-2 Отопление и вентиляция. Планы на отм. 0.000 и 4.200
ТП 507-63-ОВ-3 Отопление. Схемы
ТП 507-63-ОВ-4 Отопление. Узел управления. Схема трубопроводов
ТП 507-63-ОВ-5 Отопление и вентиляция. Сводная спецификация
Разработан: Укрюжгипрокоммунстрой Минжилкомхоза УССР
Утверждён:05.12.1980 МЖКХ УССР (453)
Расположен в:Техническая документация Строительство Справочные документы Типовые строительные конструкции, изделия и узлы Общероссийский строительный каталог Промышленные предприятия, здания и сооружения Предприятия, здания и сооружения транспорта Транспорт городской, кроме автомобильного
Типовой проект 507-63Типовой проект 507-63Типовой проект 507-63Типовой проект 507-63Типовой проект 507-63Типовой проект 507-63Типовой проект 507-63Типовой проект 507-63Типовой проект 507-63Типовой проект 507-63Типовой проект 507-63Типовой проект 507-63Типовой проект 507-63Типовой проект 507-63Типовой проект 507-63Типовой проект 507-63Типовой проект 507-63Типовой проект 507-63Типовой проект 507-63Типовой проект 507-63Типовой проект 507-63Типовой проект 507-63Типовой проект 507-63Типовой проект 507-63Типовой проект 507-63Типовой проект 507-63Типовой проект 507-63Типовой проект 507-63Типовой проект 507-63Типовой проект 507-63Типовой проект 507-63Типовой проект 507-63Типовой проект 507-63Типовой проект 507-63Типовой проект 507-63Типовой проект 507-63Типовой проект 507-63Типовой проект 507-63Типовой проект 507-63Типовой проект 507-63

© 2013 Ёшкин Кот :-) Карта сайта