Скачать Серия 1.460.2-11 Выпуск 1. Покрытия пролетами 24, 30 и 36 м для зданий, возводимых в несейсмических районах с расчетными температурами минус 40 градусов Цельсия и выше. Чертежи КМДата актуализации: 10.08.2017 Серия 1.460.2-11
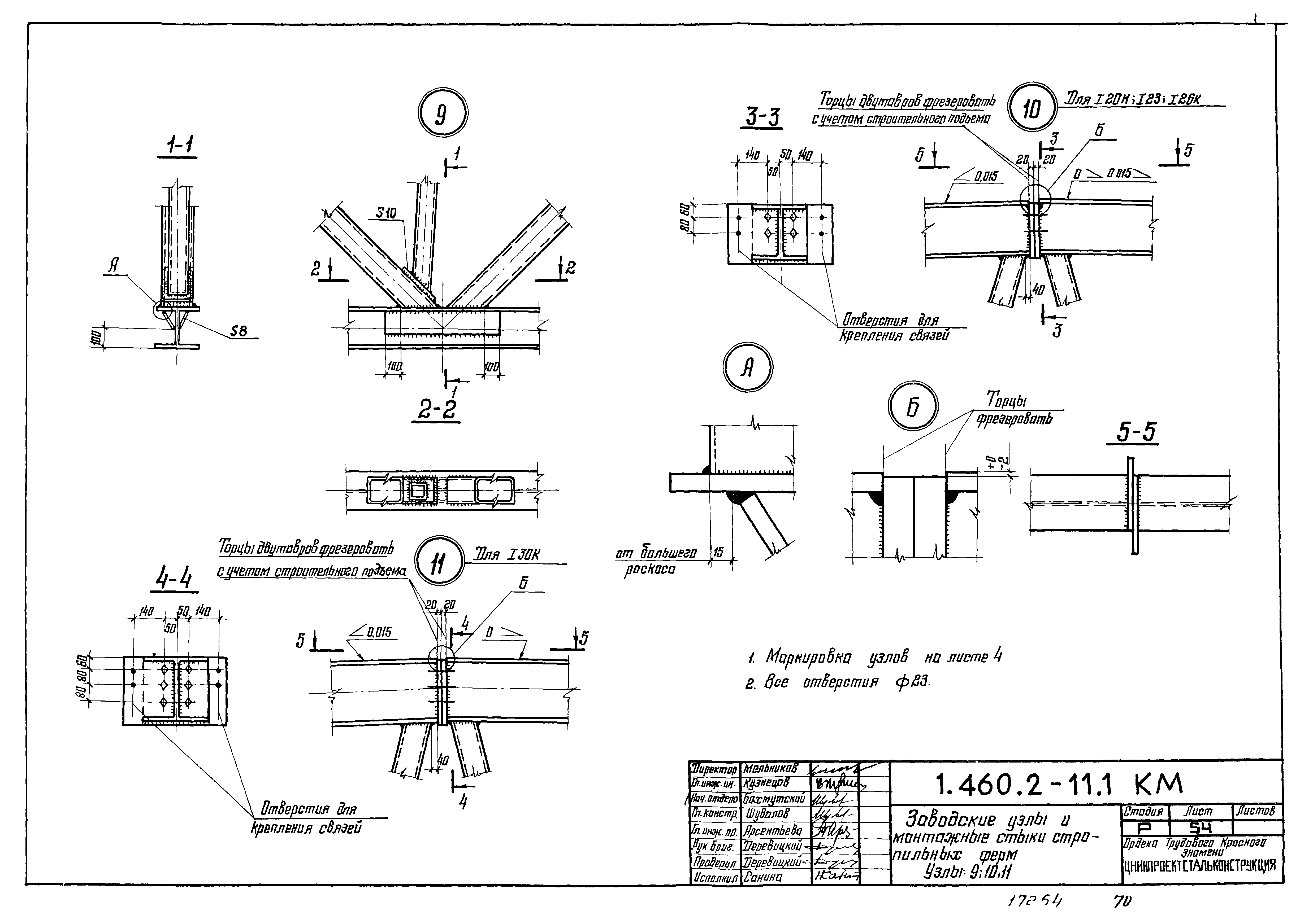
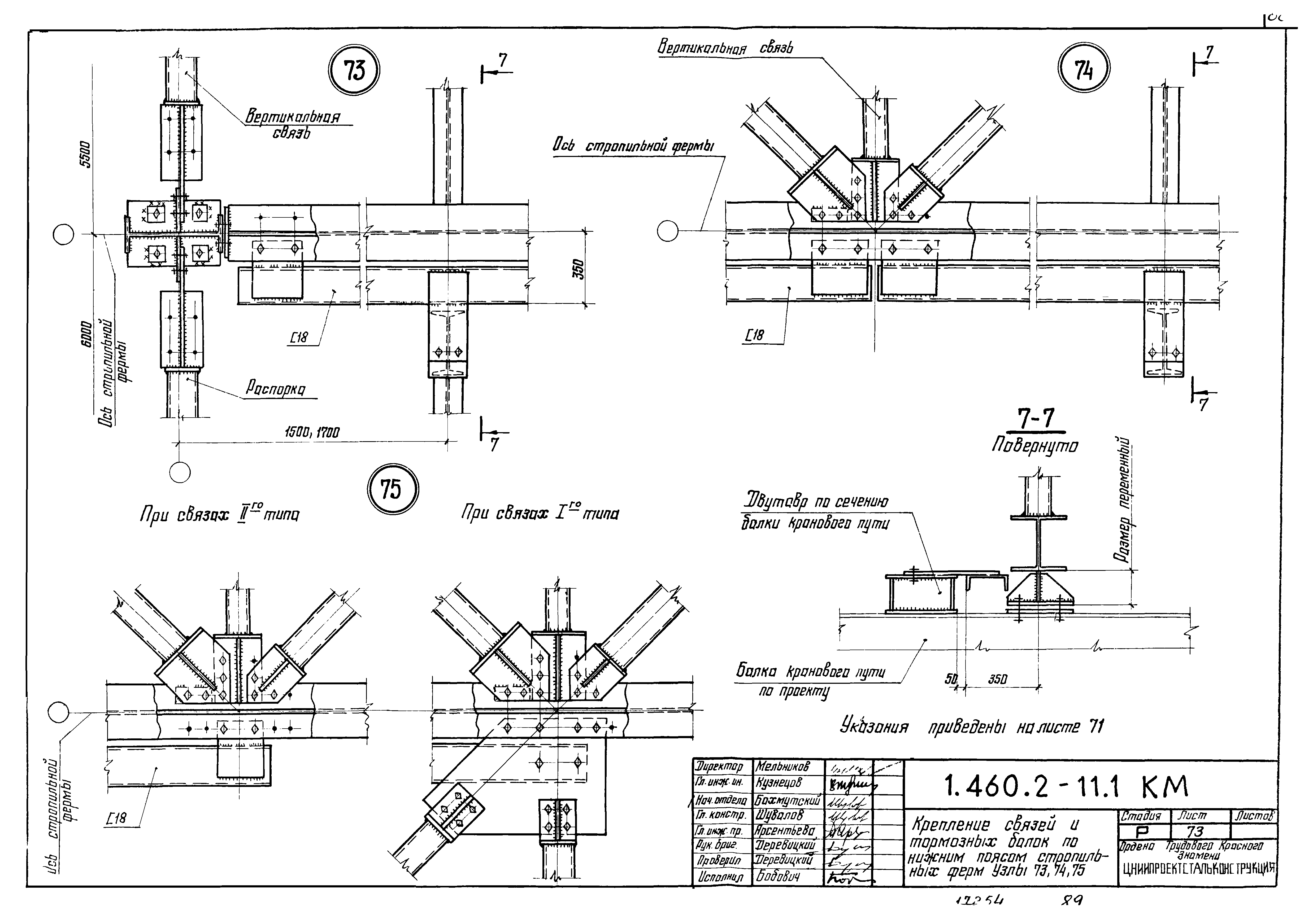
Выпуск 1. Покрытия пролетами 24, 30 и 36 м для зданий, возводимых в несейсмических районах с расчетными температурами минус 40 градусов Цельсия и выше. Чертежи КМОбозначение: | Серия 1.460.2-11 | Обозначение англ: | Series 1.460.2-11 | Статус: | заменен | Название рус.: | Выпуск 1. Покрытия пролетами 24, 30 и 36 м для зданий, возводимых в несейсмических районах с расчетными температурами минус 40 градусов Цельсия и выше. Чертежи КМ | Дата добавления в базу: | 01.09.2013 | Дата актуализации: | 05.05.2017 | Дата введения: | 01.01.1983 | Оглавление: | 1.460.2-11.1-КМ-1.1-1.7 Пояснительная записка 1.460.2-11.1-КМ-1.8-1.10 Пример пользования материалами данного выпуска 1.460.2-11.1-КМ-1-11 Указания для выбора марки стропильной фермы при наличии дополнительных узловых нагрузок 1.460.2-11.1-КМ-2 Эквивалентные нагрузки от подвесных кранов. Шаг стропильных ферм 6 м 1.460.2-11.1-КМ-3 Эквивалентные нагрузки на строительные фермы от снега в зданиях с пролетами одинаковой высоты и от фонаря 1.460.2-11.1-КМ-4 Схемы стропильных и подстропильных ферм с маркировкой заводских и монтажных узлов 1.460.2-11.1-КМ-5 Схемы стропильных ферм при наличии подвесного транспорта с маркировкой заводских узлов 1.460.2-11.1-КМ-6 Схемы расположения связей по верхним поясам стропильных ферм при железобетонных плитах в покрытии. Пролеты зданий 24 и 30 м. Шаг ферм 6 м 1.460.2-11.1-КМ-7 Схемы расположения связей по верхним поясам стропильных ферм при железобетонных плитах в покрытии. Пролеты зданий 36 м. Шаг ферм 6 м 1.460.2-11.1-КМ-8 Схемы расположения связей по верхним поясам стропильных ферм при железобетонных плитах в покрытии. Пролеты зданий 24 и 30 м. Шаг ферм 12 м 1.460.2-11.1-КМ-9 Схемы расположения связей по верхним поясам стропильных ферм при железобетонных плитах в покрытии. Пролеты зданий 36 м. Шаг ферм 12 м 1.460.2-11.1-КМ-10 Схемы расположения прогонов и связей по верхним поясам стропильных ферм при стальном профилированном настиле в покрытии. Пролеты зданий 24 и 30 м. Шаг ферм 6 м 1.460.2-11.1-КМ-11 Схемы расположения прогонов и связей по верхним поясам стропильных ферм при стальном профилированном настиле в покрытии. Пролеты зданий 36 м. Шаг ферм 6 м 1.460.2-11.1-КМ-12 Схемы расположения прогонов и связей по верхним поясам стропильных ферм при стальном профилированном настиле в покрытии. Пролеты зданий 24 и 30 м. Шаг ферм 12 м 1.460.2-11.1-КМ-13 Схемы расположения прогонов и связей по верхним поясам стропильных ферм при стальном профилированном настиле в покрытии. Пролеты зданий 36 м. Шаг ферм 12 м 1.460.2-11.1-КМ-14 Схемы расположения связей 1го типа по нижним поясам стропильных ферм. Пролеты зданий 24 и 30 м. Шаг ферм 6 м 1.460.2-11.1-КМ-15 Схемы расположения связей 1го типа по нижним поясам стропильных ферм. Пролеты зданий 36 м. Шаг ферм 6 м 1.460.2-11.1-КМ-16 Схемы расположения связей 1го типа по нижним поясам стропильных ферм. Пролеты зданий 24 и 30 м. Шаг ферм 12 м 1.460.2-11.1-КМ-17 Схемы расположения связей 1го типа по нижним поясам стропильных ферм. Пролеты зданий 36 м. Шаг ферм 12 м 1.460.2-11.1-КМ-18 Схемы расположения связей 2го типа по нижним поясам стропильных ферм. Пролеты зданий 24;30;36 м. Шаг ферм 12 м 1.460.2-11.1-КМ-19 Схемы расположения связей 2го типа по нижним поясам стропильных ферм. Пролеты зданий 24;30 и 36 м. Шаг ферм 12 м 1.460.2-11.1-КМ-20 Схемы расположения подвесных путей и тормозных балок "У" по нижним поясам стропильных ферм. Пролеты зданий 24 м 1.460.2-11.1-КМ-21 Схемы расположения подвесных путей и тормозных балок "У" по нижним поясам стропильных ферм. Пролеты зданий 30 м 1.460.2-11.1-КМ-22 Схемы расположения подвесных путей и тормозных балок "У" по нижним поясам стропильных ферм. Пролеты зданий 36 м 1.460.2-11.1-КМ-23 Продольные разрезы 2-2;5-5;7-7;9-9;11-11;14-14;17-17;19-19 в пролетах зданий 1.460.2-11.1-КМ-24 Продольные разрезы 3-3;4-4;8-8;12-12;13-13;18-18 по рядам колонн. Колонны стальные. Здания с мостовыми кранами 1.460.2-11.1-КМ-25 Продольные разрезы 3-3;4-4;8-8;12-12;13-13;18-18 по рядам колонн. Колонны стальные и железобетонные. Здания без мостовых кранов 1.460.2-11.1-КМ-26 Продольные разрезы 3-3;4-4;8-8;12-12;13-13;18-18 по рядам колонн. Колонны железобетонные. Здания с мостовыми и без мостовых кранов 1.460.2-11.1-КМ-27 Схема расположения связей по нижним поясам стропильных ферм с шагом 12 м при опирании фахверковых стоек. Указания к схемам расположения прогонов и связей 1.460.2-11.1-КМ-28 Сортамент стропильных ферм для пролетов зданий 24 м (начало) 1.460.2-11.1-КМ-29 Сортамент стропильных ферм для пролетов зданий 24 м (окончание) 1.460.2-11.1-КМ-30 Сортамент стропильных ферм для пролетов зданий 30 м (начало) 1.460.2-11.1-КМ-31 Сортамент стропильных ферм для пролетов зданий 30 м (окончание) 1.460.2-11.1-КМ-32 Сортамент стропильных ферм для пролетов зданий 36 м (начало) 1.460.2-11.1-КМ-33 Сортамент стропильных ферм для пролетов зданий 36 м (окончание) 1.460.2-11.1-КМ-34 Сортамент стропильных ферм пролетами 24;30 и 36 м для зданий с подвесными кранами 1.460.2-11.1-КМ-35 Схемы расположения распорок по верхним поясам стропильных ферм. Таблица для выбора схем 1.460.2-11.1-КМ-36 Схемы расположения растяжек по нижним поясам стропильных ферм 1.460.2-11.1-КМ-37 Таблица для выбора схем расположения растяжек по нижним поясам стропильных ферм 1.460.2-11.1-КМ-38 Сортамент подстропильных ферм 1.460.2-11.1-КМ-39 Сортамент распорок, раскосов, растяжек 1.460.2-11.1-КМ-40 Сортамент вертикальных связей пролетом 5,5 и 6 м 1.460.2-11.1-КМ-41 Сортамент вертикальных связей пролетом 11,5 и 12 м 1.460.2-11.1-КМ-42 Сортамент опорных стоек 1.460.2-11.1-КМ-43 Таблица для выбора марок поясов и раскосов горизонтальных связей по нижним поясам стропильных ферм в торце здания (начало) 1.460.2-11.1-КМ-44 Таблица для выбора марок поясов и раскосов горизонтальных связей по нижним поясам стропильных ферм в торце здания (окончание) 1.460.2-11.1-КМ-45 Таблица для выбора марок вертикальных связей и распорок, расположенных по рядам колонн 1.460.2-11.1-КМ-46 Таблица для выбора марок опорных стоек 1.460.2-11.1-КМ-47 Предельная расчетная равномерно-распределенная нагрузка на настил. Сортамент прогонов 1.460.2-11.1-КМ-48 Схемы раскладки настила. Таблица для выбора марок настила 1.460.2-11.1-КМ-49 Маркировочные схемы прогонов. Таблицы для выбора марок прогонов (начало) 1.460.2-11.1-КМ-50 Маркировочные схемы прогонов. Таблицы для выбора марок прогонов (окончание) 1.460.2-11.1-КМ-51 Заводские узлы стропильных ферм. Узлы 1;2;3 1.460.2-11.1-КМ-52 Заводские узлы стропильных ферм. Узлы 4;5;6 1.460.2-11.1-КМ-53 Заводские узлы стропильных ферм. Узлы 7;8 1.460.2-11.1-КМ-54 Заводские узлы и монтажные стыки стропильных ферм. Узлы 9;10;11 1.460.2-11.1-КМ-55 Узел 12 с соединением поясов на накладках 1.460.2-11.1-КМ-56 Заводской узел подстропильной фермы. Узел 13 1.460.2-11.1-КМ-57 Заводской узел подстропильной фермы. Узел 14 1.460.2-11.1-КМ-58 Узлы стропильных ферм при наличии подвесного транспорта. Узлы 15,16,17 1.460.2-11.1-КМ-59 Схемы вертикальных связей Р1 и Т1 с маркировкой заводских узлов 1.460.2-11.1-КМ-60 Схемы вертикальных связей ВС1,ВС2,ВС3,ВС6,ВС7,ВС8 с маркировкой заводских узлов 1.460.2-11.1-КМ-61 Крепление связей по верхним поясам стропильных ферм. Узлы 40,41,42 1.460.2-11.1-КМ-62 Крепление прогонов и связей по верхним поясам стропильных ферм. Узлы 44,45,46 1.460.2-11.1-КМ-63 Крепление прогонов и связей по верхним поясам стропильных ферм. Узлы 47,48,49 1.460.2-11.1-КМ-64 Крепление прогонов и связей по верхним поясам стропильных ферм. Узлы 50,51,52 1.460.2-11.1-КМ-65 Крепление прогонов и связей по верхним поясам стропильных ферм. Узлы 53,54,55 1.460.2-11.1-КМ-66 Крепление прогонов и связей по верхним поясам стропильных ферм. Узлы 56,57,58 1.460.2-11.1-КМ-67 Крепление прогонов и связей по верхним поясам стропильных ферм. Узлы 43,59,60 1.460.2-11.1-КМ-68 Крепление прогонов, связей и элементов фонарей по верхним поясам стропильных ферм. Узлы 61,62,63 1.460.2-11.1-КМ-69 Крепление прогонов, связей и элементов фонарей по верхним поясам стропильных ферм. Узлы 39,64,65 1.460.2-11.1-КМ-70 Крепление связей по нижним поясам стропильных ферм. Узел 66 1.460.2-11.1-КМ-71 Крепление связей по нижним поясам стропильных ферм. Узлы 67,68 1.460.2-11.1-КМ-72 Крепление связей по нижним поясам стропильных ферм. Узлы 69,70,71,72 1.460.2-11.1-КМ-73 Крепление связей и тормозных балок по нижним поясам стропильных ферм. Узлы 73,74,75 1.460.2-11.1-КМ-74 Крепление стропильных и подстропильных ферм к опорным стойкам и опорных стоек к колоннам. Узел 76 1.460.2-11.1-КМ-75 Крепление стропильных ферм к подстропильным фермам. Узел 77 1.460.2-11.1-КМ-76 Опорные стойки: СК-1,СК-2,СК-4 1.460.2-11.1-КМ-77 Опорные стойки: СК-5,СК-6,СК-7,СК-9 1.460.2-11.1-КМ-78 Опорные стойки: СК-10,СК-11,СК-12 1.460.2-11.1-КМ-79 Расположение отверстий в верхних и нижних поясах стропильных ферм L=24 м 1.460.2-11.1-КМ-80 Расположение отверстий в верхних и нижних поясах стропильных ферм L=30 м 1.460.2-11.1-КМ-81 Расположение отверстий в верхних и нижних поясах стропильных ферм L=36 м 1.460.2-11.1-КМ-82 Схемы раскладки профилированного настила. Узлы крепления профилированного настила к прогонам 1.460.2-11.1-КМ-83 Узлы профилированного настила к прогонам 1.460.2-11.1-КМ-84 Спецификация стали стропильных ферм пролетом 24 м 1.460.2-11.1-КМ-85 Спецификация стали стропильных ферм пролетом 30 м 1.460.2-11.1-КМ-86 Спецификация стали стропильных ферм пролетом 36 м (начало) 1.460.2-11.1-КМ-87 Спецификация стали стропильных ферм пролетом 36 м (окончание) 1.460.2-11.1-КМ-88 Спецификация стали подстропильных ферм пролетом 12 м 1.460.2-11.1-КМ-89 Усилия в стержнях стропильной фермы пролетом 24 м от единичных нагрузок 1.460.2-11.1-КМ-90 Усилия в стержнях стропильных ферм пролетом 30 и 36 м от единичных нагрузок (начало) 1.460.2-11.1-КМ-91 Усилия в стержнях стропильных ферм пролетом 30 и 36 м от единичных нагрузок (окончание) 1.460.2-11.1-КМ-92 Усилия от единичных нагрузок в элементах связей по нижним поясам стропильных ферм 1.460.2-11.1-КМ-93 Несущая способность раскосов стропильных ферм 1.460.2-11.1-КМ-94 Несущая способность стержней поясов и стоек стропильных ферм 1.460.2-11.1-КМ-95 Нагрузка от ветра с торца одного пролета здания с фонарями 1.460.2-11.1-КМ-96 Узел 12 с фланцевым соединением поясов 1.460.2-11.1-КМ-97 Узел 17 с фланцевым соединением поясов 1.460.2-11.1-КМ-98 Варианты крепления: распределительной балки, пешеходных мостиков, трубопроводов | Разработан: | ЦНИИпроектстальконструкция ВНИКТИстальконструкция Минмонтажспецстроя СССР
| Утверждён: | 30.12.1980 Госстрой СССР (Государственный комитет Совета Министров СССР по делам строительства) (USSR Gosstroy 211)
| Расположен в: |
| Чем заменён: | |
                                                                                                               
|