Скачать Серия 1.442.1-1 Выпуск 3. Плиты шириной 0,75 м. Рабочие чертежиДата актуализации: 10.08.2017 Серия 1.442.1-1
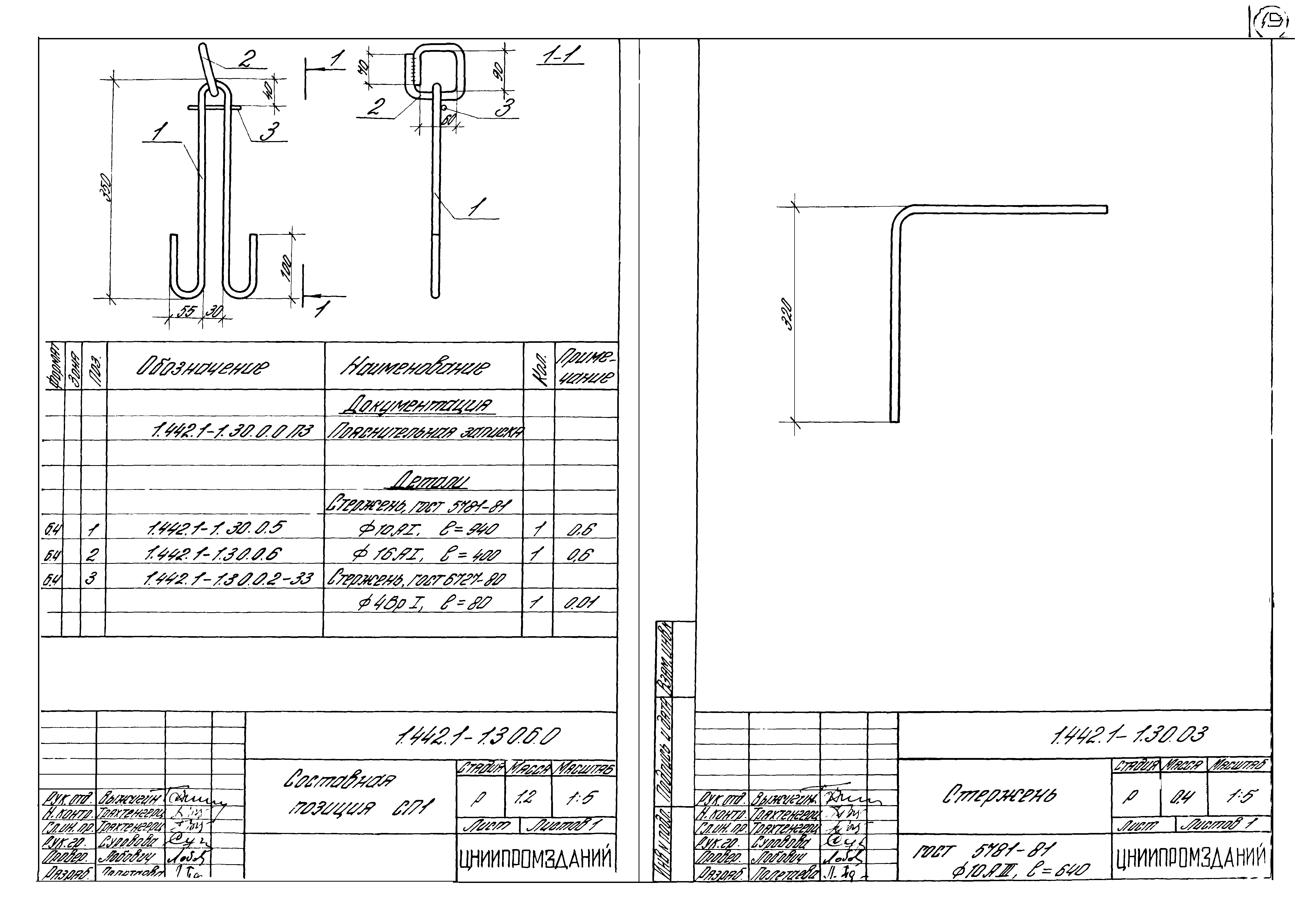
Выпуск 3. Плиты шириной 0,75 м. Рабочие чертежиОбозначение: | Серия 1.442.1-1 | Обозначение англ: | Series 1.442.1-1 | Статус: | не действует | Название рус.: | Выпуск 3. Плиты шириной 0,75 м. Рабочие чертежи | Дата добавления в базу: | 01.09.2013 | Дата актуализации: | 05.05.2017 | Дата введения: | 01.01.1983 | Дата окончания срока действия: | 01.12.1991 | Оглавление: | 1.442.1-1.3 Содержание 1.442.1-1.3 0.0.0 ПЗ Пояснительная записка 1.442.1-1.3 0.0.0 Н Номенклатура 1.442.1-1.3 1.0.0 Плита 1П7,1П8 1.442.1-1.3 1.0.0 СБ Плита 1П7,1П8. Сборочный чертеж 1.442.1-1.3 0.0.0 ВМС Ведомость расхода стали на плиту 1.442.1-1.3 1.0.0 СМ Плита 1П7 с квадратными отверстиями (пример) 1.442.1-1.3 0.1.0 Каркас плоский 1.442.1-1.3 0.1.0 СБ Каркас плоский. Сборочный чертеж 1.442.1-1.3 0.2.0 Каркас плоский КР13 1.442.1-1.3 0.3.0 Каркас плоский КР14 1.442.1-1.3 0.4.0 Сетка 1.442.1-1.3 0.4.0 СБ Сетка. Сборочный чертеж 1.442.1-1.3 0.5.0 Сетка 1.442.1-1.3 0.5.0 СБ Сетка. Сборочный чертеж 1.442.1-1.3 0.6.0 Составная позиция СП1 1.442.1-1.3 0.0.3 Стержень | Разработан: | ЦНИИпромзданий
| Утверждён: | 22.10.1982 Госстрой СССР (Государственный комитет Совета Министров СССР по делам строительства) (USSR Gosstroy 262)
| Расположен в: |
| Заменяет собой: | |
                 
|