Информационная система
«Ёшкин Кот»

Скачать базу одним архивом
Скачать обновления
История создания базы
Карта сайта

Скачать Типовой проект 503-4-70.13.91 Альбом 6. Строительные изделия

Дата актуализации: 10.08.2017

Типовой проект 503-4-70.13.91

Альбом 6. Строительные изделия

Обозначение: Типовой проект 503-4-70.13.91
Обозначение англ: 503-4-70.13.91
Статус:не определен законодательством
Название рус.:Альбом 6. Строительные изделия
Дата добавления в базу:01.09.2013
Дата актуализации:05.05.2017
Дата введения:22.11.1991
Оглавление:ТП 503-4-70.13.91-КЖ.И Содержание альбома (начало)
ТП 503-4-70.13.91-КЖ.И Содержание альбома (окончание)
ТП 503-4-70.13.91-КЖ.И Технические требования
ТП 503-4-70.13.91-КЖ.И.К1...К4 Колонна К1...К4
ТП 503-4-70.13.91-КЖ.И.К5...К7 Колонна К5...К7
ТП 503-4-70.13.91-КЖ.И.К8...К9 Колонна К8...К9
ТП 503-4-70.13.91-КЖ.И.К10...К14 Колонна К10...К14
ТП 503-4-70.13.91-КЖ.И.К15,К16 Колонна К15,К16
ТП 503-4-70.13.91-КЖ.И.К17...К22 Колонна К17...К22
ТП 503-4-70.13.91-КЖ.И.К25...К27 Колонна К25...К27
ТП 503-4-70.13.91-КЖ.И.К1...К27 Спецификация закладных изделий колонн
ТП 503-4-70.13.91-КЖ.И.К1...К27 Ведомость расхода стали на закладные изделия колонн
ТП 503-4-70.13.91-КЖ.И.К30 Колонна К30
ТП 503-4-70.13.91-КЖ.И.ФС1,ФС2 Ферма ФС1,ФС2
ТП 503-4-70.13.91-КЖ.И.ФС3,ФС4 Ферма ФС3,ФС4
ТП 503-4-70.13.91-КЖ.И.ФС5,ФС6 Ферма ФС5,ФС6
ТП 503-4-70.13.91-КЖ.И.ФС7,ФС8 Ферма ФС7,ФС8
ТП 503-4-70.13.91-КЖ.И.ФС1...ФС8 Спецификация дополнительных закладных изделий ферм. Ведомость расхода стали на дополнительные закладные изделия ферм
ТП 503-4-70.13.91-КЖ.И.П2,П3,П14...П17 Плита П2,П3,П14...П17
ТП 503-4-70.13.91-КЖ.И.П4...П9,П18,П20,П21 Плита П4...П9,П18,П20,П21
ТП 503-4-70.13.91-КЖ.И.П19 Плита П19
ТП 503-4-70.13.91-КЖ.И.П33...П36 Плита П33...П36
ТП 503-4-70.13.91-КЖ.И.П37,П38 Плита П37,П38
ТП 503-4-70.13.91-КЖ.И.ПС5...ПС8 Панель ПС5...ПС8
ТП 503-4-70.13.91-КЖ.И.ПС9...ПС12 Панель ПС9...ПС12
ТП 503-4-70.13.91-КЖ.И.ПС18...ПС21 Панель ПС18...ПС21
ТП 503-4-70.13.91-КЖ.И.ПС31...ПС36 Панель ПС31...ПС36
ТП 503-4-70.13.91-КЖ.И.ПС37...ПС44 Панель ПС37...ПС44
ТП 503-4-70.13.91-КЖ.И.ПС17 Панель ПС17
ТП 503-4-70.13.91-КЖ.И.ПС5...ПС44 Ведомость расхода стали на закладные изделия панелей
ТП 503-4-70.13.91-КЖ.И.ПС46 Панель ПС46
ТП 503-4-70.13.91-КЖ.И.ПС47....ПС49 Панель ПС47,ПС49
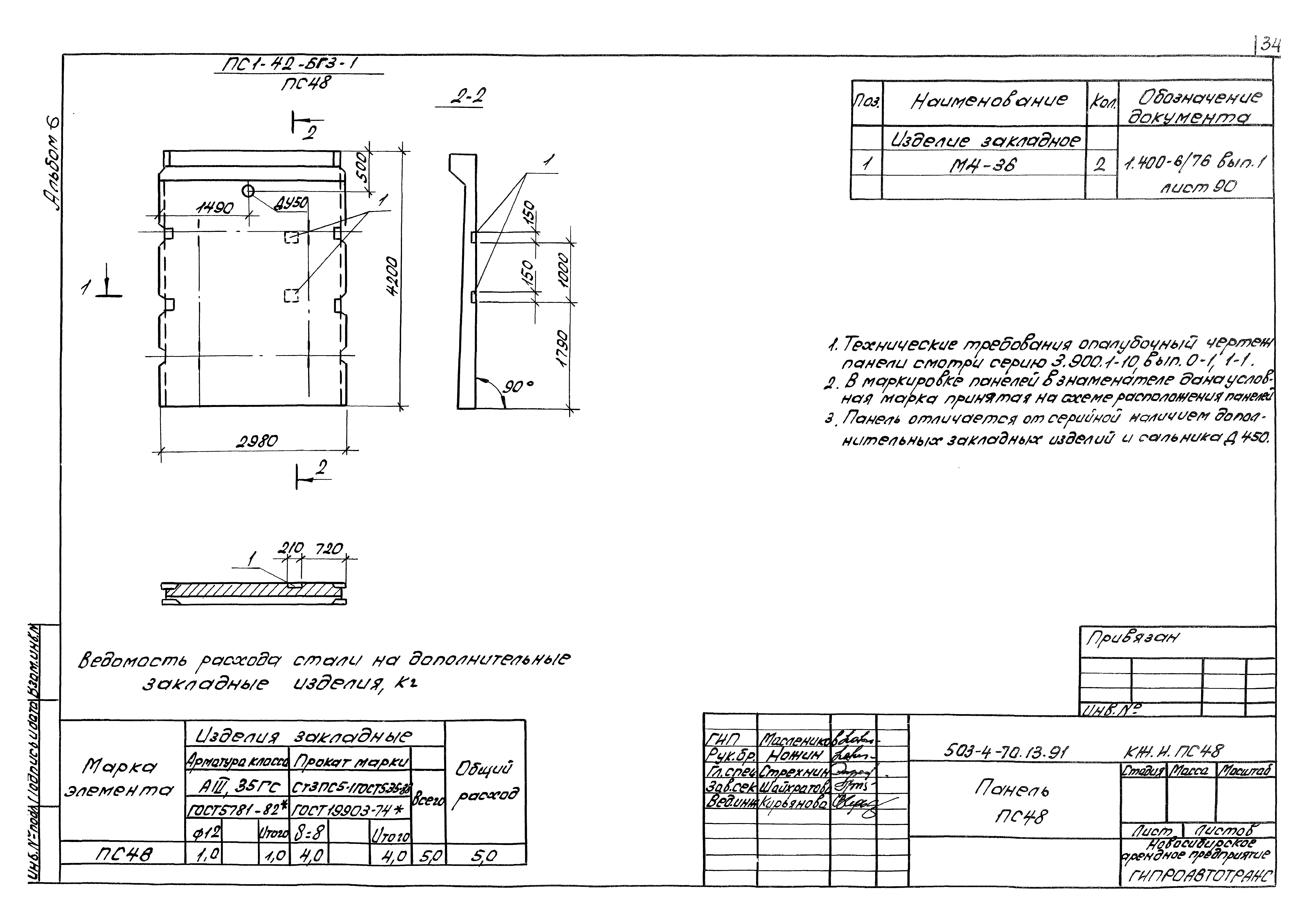
ТП 503-4-70.13.91-КЖ.И.ПС48 Панель ПС48
ТП 503-4-70.13.91-КЖ.И.БО1 Балка обвязочная БО1
ТП 503-4-70.13.91-КЖ.И.Нø1 Насадка Нø1
ТП 503-4-70.13.91-КЖ.И.МС1 Изделие соединительное МС1
ТП 503-4-70.13.91-КЖ.И.М1 Крышка колодца М1
ТП 503-4-70.13.91-КЖ.И.М2.М3 Приемник утечек М2. Крышка смотровой трубы М3
ТП 503-4-70.13.91-КЖ.И.М4 Крышка приямка М4
ТП 503-4-70.13.91-КЖ.И.С1 Сетка С1
ТП 503-4-70.13.91-КЖ.И.С2 Сетка С2
ТП 503-4-70.13.91-КЖ.И.КР1 Каркас КР1
ТП 503-4-70.13.91-КЖ.И.КР4 Каркас КР4
ТП 503-4-70.13.91-КЖ.И.КР2 Каркас КР2
ТП 503-4-70.13.91-КЖ.И.КР3 Каркас КР3
ТП 503-4-70.13.91-КЖ.И.КР5,КР6 Каркас КР5,КР6
ТП 503-4-70.13.91-КЖ.И.КР7 Каркас КР7
ТП 503-4-70.13.91-КЖ.И.КР8,КР9 Каркас КР8,КР9
ТП 503-4-70.13.91-КЖ.И.КР10,КР11 Каркас КР10,КР11
ТП 503-4-70.13.91-КЖ.И.КР13,КР14 Каркас КР13,КР14
ТП 503-4-70.13.91-КЖ.И.КР12 Каркас КР12
ТП 503-4-70.13.91-КЖ.И.МН1 Изделие закладное МН1
ТП 503-4-70.13.91-КЖ.И.МН2 Изделие закладное МН2
ТП 503-4-70.13.91-КЖ.И.МН3 Изделие закладное МН3
ТП 503-4-70.13.91-КЖ.И.МН4 Изделие закладное МН4
ТП 503-4-70.13.91-КЖ.И.МН5 Изделие закладное МН5
ТП 503-4-70.13.91-КЖ.И.МН6 Изделие закладное МН6
ТП 503-4-70.13.91-КЖ.И.МН7 Изделие закладное МН7
ТП 503-4-70.13.91-КЖ.И.МН8 Изделие закладное МН8
ТП 503-4-70.13.91-КЖ.И.МН9 Изделие закладное МН9
ТП 503-4-70.13.91-КЖ.И.МН10 Изделие закладное МН10
ТП 503-4-70.13.91-КЖ.И.МН11 Изделие закладное МН11
ТП 503-4-70.13.91-КЖ.И.МН12 Изделие закладное МН12
ТП 503-4-70.13.91-КЖ.И.МН13 Изделие закладное МН13
ТП 503-4-70.13.91-КЖ.И.МН14 Изделие закладное МН14
ТП 503-4-70.13.91-КЖ.И.МН15 Изделие закладное МН15
ТП 503-4-70.13.91-КЖ.И.МН16 Изделие закладное МН16
ТП 503-4-70.13.91-КЖ.И.МН17 Изделие закладное МН17
ТП 503-4-70.13.91-КЖ.И.МН18 Изделие закладное МН18
ТП 503-4-70.13.91-КЖ.И.МН19 Изделие закладное МН19
ТП 503-4-70.13.91-КЖ.И.МН20 Изделие закладное МН20
ТП 503-4-70.13.91-КЖ.И.МН21 Изделие закладное МН21
ТП 503-4-70.13.91-КЖ.И.МН22 Изделие закладное МН22
ТП 503-4-70.13.91-КЖ.И.МН23 Изделие закладное МН23
ТП 503-4-70.13.91-КЖ.И.МН24 Изделие закладное МН24
ТП 503-4-70.13.91-КЖ.И.МН25 Изделие закладное МН25
ТП 503-4-70.13.91-КЖ.И.МН26 Изделие закладное МН26
ТП 503-4-70.13.91-КЖ.И.Щ1 Щит Щ1
ТП 503-4-70.13.91-КЖ.И.Щ2 Щит Щ2
ТП 503-4-70.13.91-КЖ.И.Щ3 Щит Щ3
ТП 503-4-70.13.91-КЖ.И.Щ4 Щит Щ4
ТП 503-4-70.13.91-КЖ.И.Щ5 Щит Щ5
ТП 503-4-70.13.91-КЖ.И.Щ6 Щит Щ6
ТП 503-4-70.13.91-КЖ.И.Щ7,Щ8 Щит Щ7,Щ8
ТП 503-4-70.13.91-КЖ.И.РШ1 Решетка РШ1
ТП 503-4-70.13.91-КЖ.И.РШ2 Решетка РШ2
ТП 503-4-70.13.91-КЖ.И.РШ3,РШ4 Решетка РШ3,РШ4
ТП 503-4-70.13.91-КЖ.И.ОГ1 Ограждение ОГ1
ТП 503-4-70.13.91-КЖ.И.Л1 Лестница Л1
Разработан: Гипроавтотранс
Утверждён:22.11.1991 Новосибирский Облисполком (21)
Расположен в:Техническая документация Строительство Справочные документы Типовые строительные конструкции, изделия и узлы Общероссийский строительный каталог Промышленные предприятия, здания и сооружения Предприятия, здания и сооружения транспорта Транспорт автомобильный Корпуса производственные, станции технического обслуживания и ремонта грузовых и легковых автомобилей и автобусов
Типовой проект 503-4-70.13.91Типовой проект 503-4-70.13.91Типовой проект 503-4-70.13.91Типовой проект 503-4-70.13.91Типовой проект 503-4-70.13.91Типовой проект 503-4-70.13.91Типовой проект 503-4-70.13.91Типовой проект 503-4-70.13.91Типовой проект 503-4-70.13.91Типовой проект 503-4-70.13.91Типовой проект 503-4-70.13.91Типовой проект 503-4-70.13.91Типовой проект 503-4-70.13.91Типовой проект 503-4-70.13.91Типовой проект 503-4-70.13.91Типовой проект 503-4-70.13.91Типовой проект 503-4-70.13.91Типовой проект 503-4-70.13.91Типовой проект 503-4-70.13.91Типовой проект 503-4-70.13.91Типовой проект 503-4-70.13.91Типовой проект 503-4-70.13.91Типовой проект 503-4-70.13.91Типовой проект 503-4-70.13.91Типовой проект 503-4-70.13.91Типовой проект 503-4-70.13.91Типовой проект 503-4-70.13.91Типовой проект 503-4-70.13.91Типовой проект 503-4-70.13.91Типовой проект 503-4-70.13.91Типовой проект 503-4-70.13.91Типовой проект 503-4-70.13.91Типовой проект 503-4-70.13.91Типовой проект 503-4-70.13.91Типовой проект 503-4-70.13.91Типовой проект 503-4-70.13.91Типовой проект 503-4-70.13.91Типовой проект 503-4-70.13.91Типовой проект 503-4-70.13.91Типовой проект 503-4-70.13.91Типовой проект 503-4-70.13.91Типовой проект 503-4-70.13.91Типовой проект 503-4-70.13.91Типовой проект 503-4-70.13.91Типовой проект 503-4-70.13.91Типовой проект 503-4-70.13.91Типовой проект 503-4-70.13.91Типовой проект 503-4-70.13.91Типовой проект 503-4-70.13.91Типовой проект 503-4-70.13.91Типовой проект 503-4-70.13.91Типовой проект 503-4-70.13.91Типовой проект 503-4-70.13.91Типовой проект 503-4-70.13.91Типовой проект 503-4-70.13.91Типовой проект 503-4-70.13.91Типовой проект 503-4-70.13.91Типовой проект 503-4-70.13.91Типовой проект 503-4-70.13.91Типовой проект 503-4-70.13.91Типовой проект 503-4-70.13.91Типовой проект 503-4-70.13.91Типовой проект 503-4-70.13.91Типовой проект 503-4-70.13.91Типовой проект 503-4-70.13.91Типовой проект 503-4-70.13.91

© 2013 Ёшкин Кот :-) Карта сайта