Информационная система
«Ёшкин Кот»

Скачать базу одним архивом
Скачать обновления
История создания базы
Карта сайта

Скачать Типовой проект 503-3-17.87 Альбом I. Общая пояснительная записка. Технология производства. Отопление и вентиляция. Внутренний водопровод и канализация

Дата актуализации: 10.08.2017

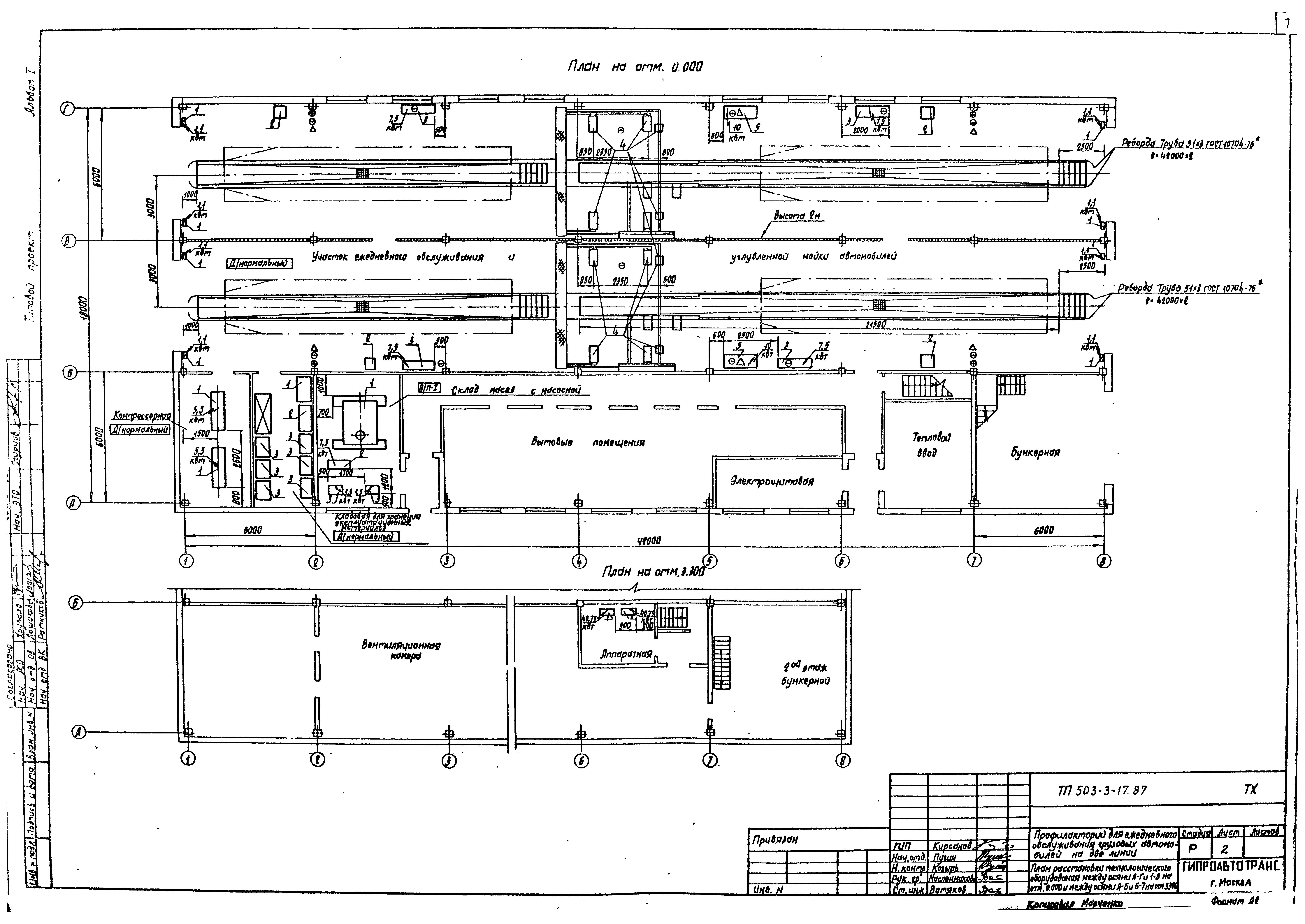
Типовой проект 503-3-17.87

Альбом I. Общая пояснительная записка. Технология производства. Отопление и вентиляция. Внутренний водопровод и канализация

Обозначение: Типовой проект 503-3-17.87
Обозначение англ: 503-3-17.87
Статус:не определен законодательством
Название рус.:Альбом I. Общая пояснительная записка. Технология производства. Отопление и вентиляция. Внутренний водопровод и канализация
Дата добавления в базу:01.09.2013
Дата актуализации:05.05.2017
Дата введения:01.05.1986
Разработан: Гипроавтотранс
Утверждён:11.02.1986 Минавтотранс РСФСР (Russian Federation Minavtotrans 5)
Расположен в:Техническая документация Строительство Справочные документы Типовые строительные конструкции, изделия и узлы Общероссийский строительный каталог Промышленные предприятия, здания и сооружения Предприятия, здания и сооружения транспорта Транспорт автомобильный Мойки и профилактории для грузовых и легковых автомобилей и автобусов
Типовой проект 503-3-17.87Типовой проект 503-3-17.87Типовой проект 503-3-17.87Типовой проект 503-3-17.87Типовой проект 503-3-17.87Типовой проект 503-3-17.87Типовой проект 503-3-17.87Типовой проект 503-3-17.87Типовой проект 503-3-17.87Типовой проект 503-3-17.87Типовой проект 503-3-17.87Типовой проект 503-3-17.87Типовой проект 503-3-17.87Типовой проект 503-3-17.87Типовой проект 503-3-17.87Типовой проект 503-3-17.87Типовой проект 503-3-17.87Типовой проект 503-3-17.87Типовой проект 503-3-17.87Типовой проект 503-3-17.87Типовой проект 503-3-17.87Типовой проект 503-3-17.87Типовой проект 503-3-17.87Типовой проект 503-3-17.87Типовой проект 503-3-17.87Типовой проект 503-3-17.87Типовой проект 503-3-17.87Типовой проект 503-3-17.87Типовой проект 503-3-17.87Типовой проект 503-3-17.87Типовой проект 503-3-17.87

© 2013 Ёшкин Кот :-) Карта сайта