Информационная система
«Ёшкин Кот»

Скачать базу одним архивом
Скачать обновления
История создания базы
Карта сайта

Скачать Типовой проект 902-1-122.87 Альбом VI. Силовое электрооборудование. Технологический контроль. Пожарная сигнализация. Задание заводу-изготовителю на щиты

Дата актуализации: 10.08.2017

Типовой проект 902-1-122.87

Альбом VI. Силовое электрооборудование. Технологический контроль. Пожарная сигнализация. Задание заводу-изготовителю на щиты

Обозначение: Типовой проект 902-1-122.87
Обозначение англ: 902-1-122.87
Статус:не определен законодательством
Название рус.:Альбом VI. Силовое электрооборудование. Технологический контроль. Пожарная сигнализация. Задание заводу-изготовителю на щиты
Дата добавления в базу:01.09.2013
Дата актуализации:05.05.2017
Дата введения:23.11.1987
Оглавление:ТП 902-1-122.87 Содержание альбома
ТП 902-1-122.87-ЭМ Основной комплект марки ЭМ
ТП 902-1-122.87-ЭМ-1,2 Общие данные
ТП 902-1-122.87-ЭМ-3 Схема электрическая принципиальная однолинейная распределительной сети ~380/220 В
ТП 902-1-122.87-ЭМ-4,5 Схема электрическая принципиальная АВР ~380/220 Вольт
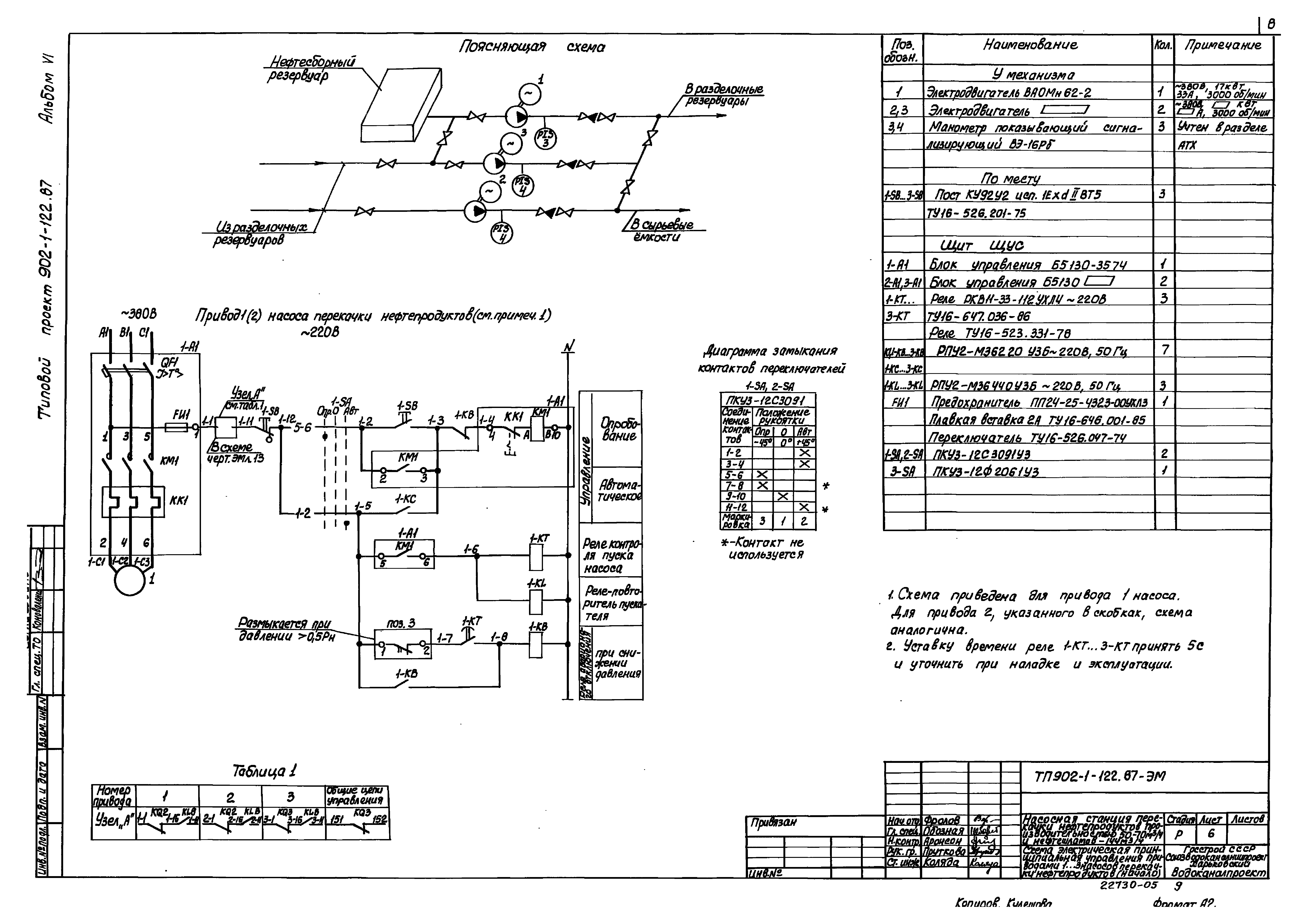
ТП 902-1-122.87-ЭМ-6,7 Схема электрическая принципиальная управления приводами 1...3 насосов перекачки нефтепродуктов
ТП 902-1-122.87-ЭМ-8 Схема электрическая принципиальная управления приводами 4,5 насосов перекачки нефтешлама
ТП 902-1-122.87-ЭМ-9 Схемы электрические принципиальные управления приводом 6 насоса гидроуплотнения и приводами 9,10 вентилей
ТП 902-1-122.87-ЭМ-10 Схемы электрические принципиальные управления приводами 7,8 дренажных насосов
ТП 902-1-122.87-ЭМ-11 Схемы электрические принципиальные управления приводами вытяжных вентустановок В1,1Р и АВ1
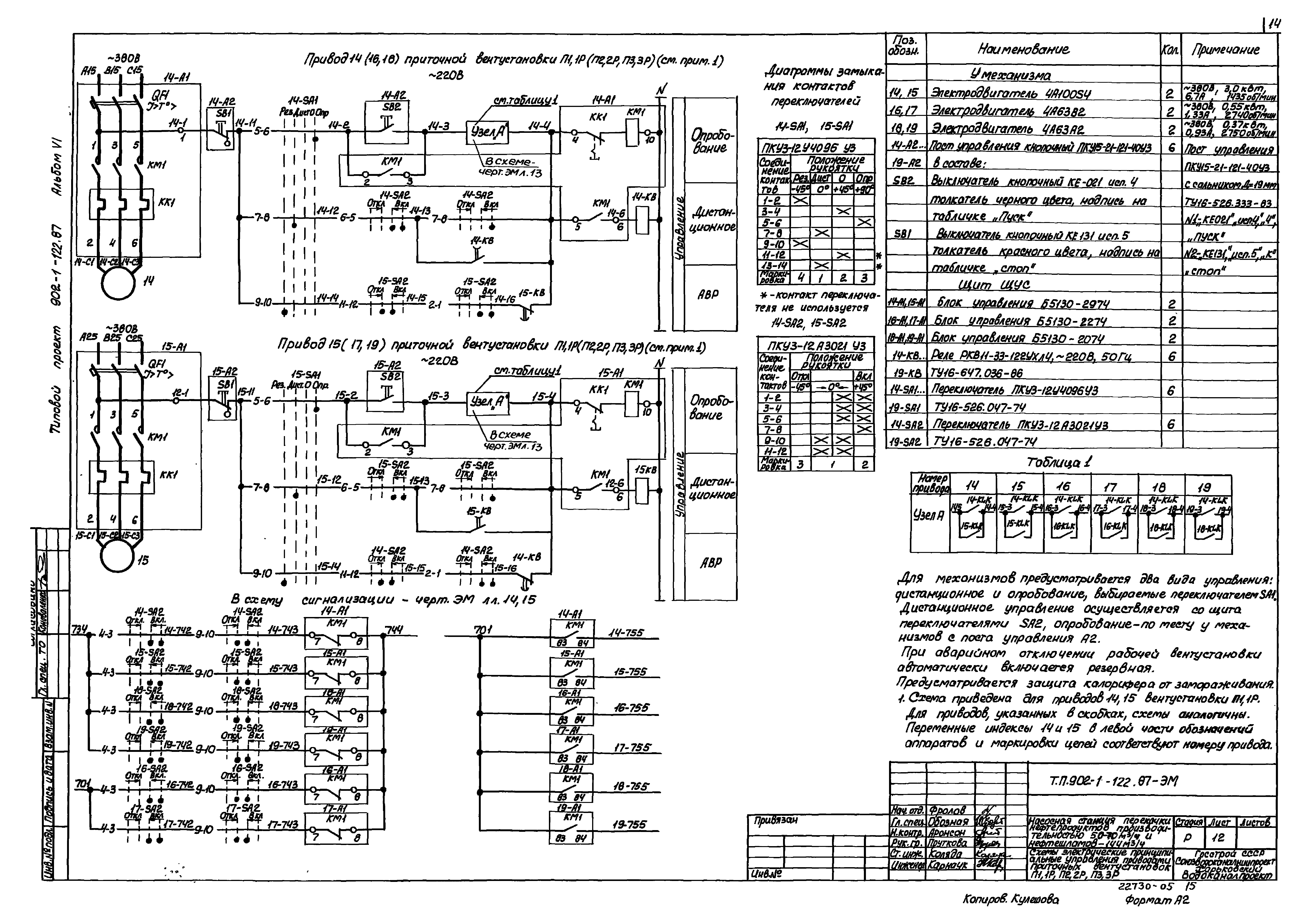
ТП 902-1-122.87-ЭМ-12 Схемы электрические принципиальные управления приводами приточный вентустановок П1,1Р,П2,2Р,П3,3Р
ТП 902-1-122.87-ЭМ-13 Схема электрическая принципиальная общих цепей управления
ТП 902-1-122.87-ЭМ-14,15 Схема электрическая принципиальная сигнализации
ТП 902-1-122.87-ЭМ-16,17 Схема подключения электрооборудования
ТП 902-1-122.87-ЭМ-18-20 Щит ЩУС. Схема подключения
ТП 902-1-122.87-ЭМ-21 Щит КИП. Схема подключения
ТП 902-1-122.87-ЭМ-22 Кабельный журнал
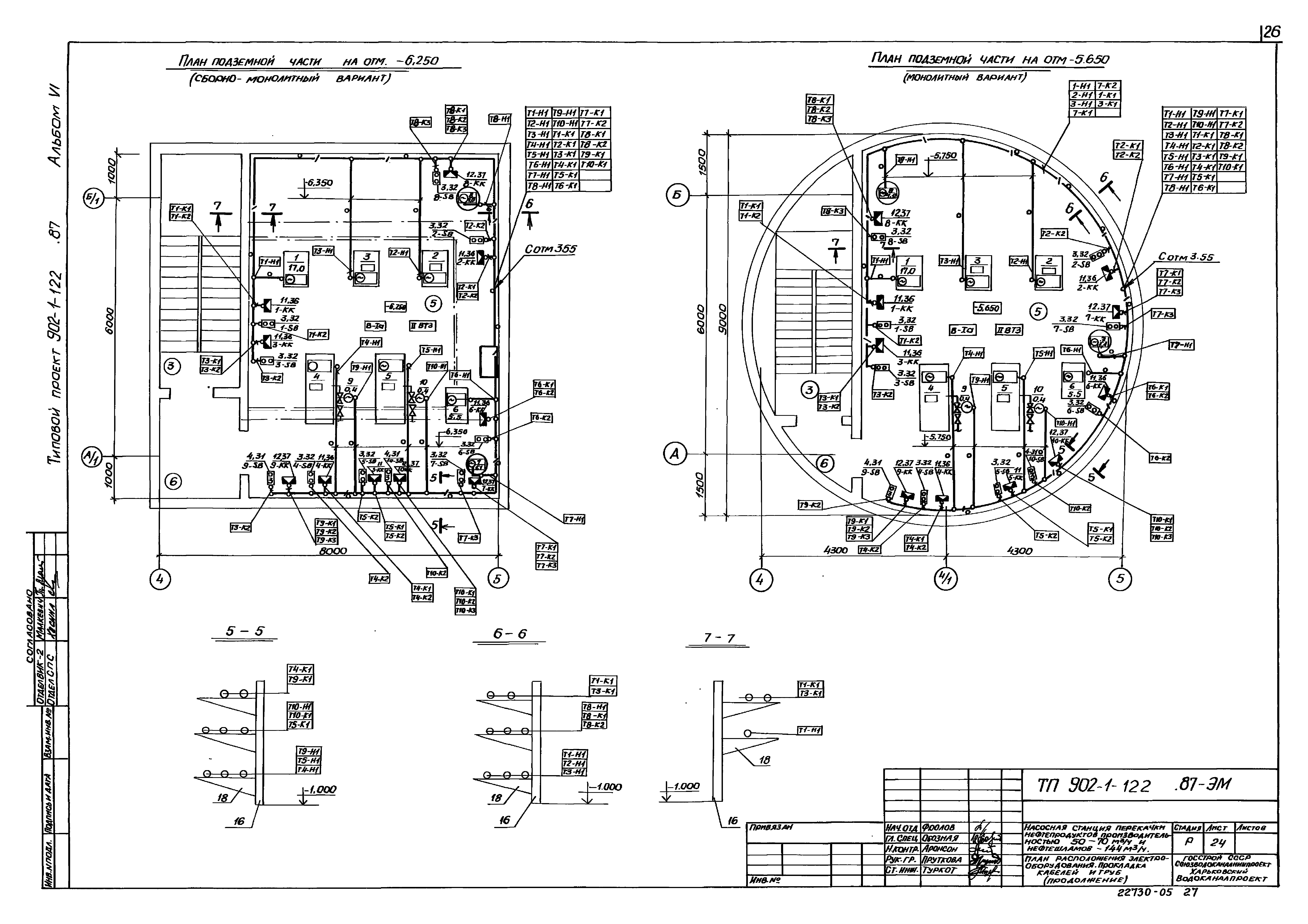
ТП 902-1-122.87-ЭМ-23-25 План расположения электрооборудования. Прокладка кабелей и труб
ТП 902-1-122.87-ЭМ-26 Зануление
ТП 902-1-122.87-ЭМ-27 Молниезащита
ТП 902-1-122.87-ЭМ-28 Электроосвещение
ТП 902-1-122.87-ЭМИ Задание МЭЗ марки ЭМИ
ТП 902-1-122.87-ЭМИ.ДО Ведомость чертежей раздела
ТП 902-1-122.87-ЭМИ.ВБ Ведомость электромонтажных конструкций, подлежащих изготовлению в МЭЗ
ТП 902-1-122.87-ЭМИ.ВА Ведомость изделий и материалов для изготовления электромонтажных конструкций в МЭЗ
ТП 902-1-122.87-ЭМИ.СБ Трубозаготовительная ведомость
ТП 902-1-122.87-АТХ Основной комплект марки АТХ
ТП 902-1-122.87-АТХ-1 Общие данные
ТП 902-1-122.87-АТХ-2 Схема автоматизации
ТП 902-1-122.87-АТХ-3 Схемы электрические принципиальные питания приборов и контроля уровня в нефтесборном резервуаре
ТП 902-1-122.87-АТХ-4 Схема электрическая принципиальная контроля уровней в илосборном резервуаре и баке разрыва струи
ТП 902-1-122.87-АТХ-5 Схема электрическая принципиальная контроля уровня в дренажных приямках и затопления машзала
ТП 902-1-122.87-АТХ-6 Схема электрическая принципиальная контроля довзрывоопасной концентрации паров бензина и ПДК сероводорода в воздухе машзала
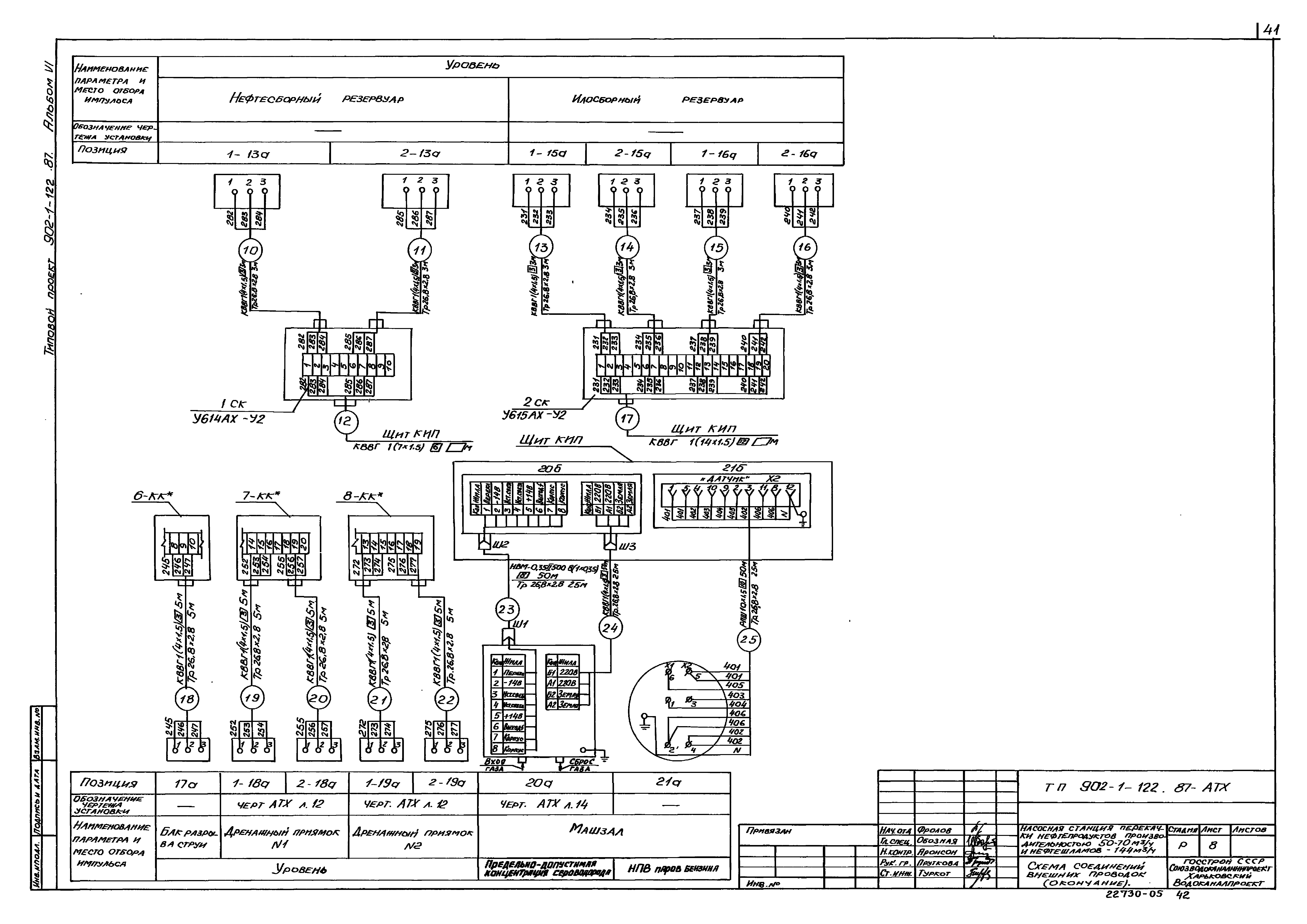
ТП 902-1-122.87-АТХ-7,8 Схема соединений внешних проводок
ТП 902-1-122.87-АТХ-9,10 План расположения
ТП 902-1-122.87-АТХ-11 Конструкция для установки датчиков уровня в дренажных приямках
ТП 902-1-122.87-АТХ-12 Установка датчиков уровня в дренажных приямках
ТП 902-1-122.87-АТХ-13 Конструкция для установки датчика газоанализатора "Сирена"
ТП 902-1-122.87-АТХ-14 Установка датчика газоанализатора "Сирена"
ТП 902-1-122.87-ЭМ.ЗЗИ Задание заводу-изготовителю марки ЭМ.ЗЗИ
ТП 902-1-122.87-ЭМ.ЗЗИ-1 Ведомость чертежей раздела
ТП 902-1-122.87-ЭМ.ЗЗИ-2 Перечень комплектных устройств
ТП 902-1-122.87-ЭМ.ЗЗИ-3.1 Щит ЩУС. Чертеж общего вида
ТП 902-1-122.87-ЭМ.ЗЗИ-3.2 Щит ЩУС. Таблица технических данных аппаратов
ТП 902-1-122.87-ЭМ.ЗЗИ-3.3-5.11 Щит ЩУС. Перечень надписей
ТП 902-1-122.87-ЭМ.ЗЗИ-7.1-7.5 Щит ЩУС. Таблица межпанельных соединений
ТП 902-1-122.87-ЭМ.ЗЗИ-6.1-6.7 Щит ЩУС. Схема электрическая соединений
ТП 902-1-122.87-ЭМ.ЗЗИ-8 Щит КИП. Чертеж общего вида
ТП 902-1-122.87-ЭМ.ЗЗИ-9.1 Щит КИП. Таблица технических данных аппаратов
ТП 902-1-122.87-ЭМ.ЗЗИ-10.1,10.2 Щит КИП. Перечень надписей
ТП 902-1-122.87-ЭМ.ЗЗИ-11.1,11.2 Щит КИП. Схема электрическая соединений
ТП 902-1-122.87-СС Основной комплект марки СС
ТП 902-1-122.87-СС-1 Общие данные. Схема расположения сети пожарной сигнализации
ТП 902-1-122.87-СС-2 Схема подключения. Кабельный журнал
ТП 902-1-122.87-СС-3 План защищаемых помещений и прокладка кабелей. Схема расположения сети защитных труб
Разработан: Харьковский Водоканалпроект
Утверждён:18.08.1987 Госстрой СССР (Государственный комитет Совета Министров СССР по делам строительства) (USSR Gosstroy 49)
Расположен в:Техническая документация Строительство Справочные документы Типовые строительные конструкции, изделия и узлы Общероссийский строительный каталог Промышленные предприятия, здания и сооружения Здания и сооружения санитарно-технические Канализация Станции насосные Насосные станции для перекачки производственных сточных вод
Типовой проект 902-1-122.87Типовой проект 902-1-122.87Типовой проект 902-1-122.87Типовой проект 902-1-122.87Типовой проект 902-1-122.87Типовой проект 902-1-122.87Типовой проект 902-1-122.87Типовой проект 902-1-122.87Типовой проект 902-1-122.87Типовой проект 902-1-122.87Типовой проект 902-1-122.87Типовой проект 902-1-122.87Типовой проект 902-1-122.87Типовой проект 902-1-122.87Типовой проект 902-1-122.87Типовой проект 902-1-122.87Типовой проект 902-1-122.87Типовой проект 902-1-122.87Типовой проект 902-1-122.87Типовой проект 902-1-122.87Типовой проект 902-1-122.87Типовой проект 902-1-122.87Типовой проект 902-1-122.87Типовой проект 902-1-122.87Типовой проект 902-1-122.87Типовой проект 902-1-122.87Типовой проект 902-1-122.87Типовой проект 902-1-122.87Типовой проект 902-1-122.87Типовой проект 902-1-122.87Типовой проект 902-1-122.87Типовой проект 902-1-122.87Типовой проект 902-1-122.87Типовой проект 902-1-122.87Типовой проект 902-1-122.87Типовой проект 902-1-122.87Типовой проект 902-1-122.87Типовой проект 902-1-122.87Типовой проект 902-1-122.87Типовой проект 902-1-122.87Типовой проект 902-1-122.87Типовой проект 902-1-122.87Типовой проект 902-1-122.87Типовой проект 902-1-122.87Типовой проект 902-1-122.87Типовой проект 902-1-122.87Типовой проект 902-1-122.87Типовой проект 902-1-122.87Типовой проект 902-1-122.87Типовой проект 902-1-122.87Типовой проект 902-1-122.87Типовой проект 902-1-122.87Типовой проект 902-1-122.87Типовой проект 902-1-122.87Типовой проект 902-1-122.87Типовой проект 902-1-122.87Типовой проект 902-1-122.87Типовой проект 902-1-122.87Типовой проект 902-1-122.87Типовой проект 902-1-122.87Типовой проект 902-1-122.87Типовой проект 902-1-122.87Типовой проект 902-1-122.87Типовой проект 902-1-122.87Типовой проект 902-1-122.87Типовой проект 902-1-122.87Типовой проект 902-1-122.87Типовой проект 902-1-122.87

© 2013 Ёшкин Кот :-) Карта сайта