Информационная система
«Ёшкин Кот»

Скачать базу одним архивом
Скачать обновления
История создания базы
Карта сайта

Скачать Типовой проект 902-1-122.87 Альбом III. Строительные решения. Подземная часть (сборно-монолитный вариант)

Дата актуализации: 10.08.2017

Типовой проект 902-1-122.87

Альбом III. Строительные решения. Подземная часть (сборно-монолитный вариант)

Обозначение: Типовой проект 902-1-122.87
Обозначение англ: 902-1-122.87
Статус:не определен законодательством
Название рус.:Альбом III. Строительные решения. Подземная часть (сборно-монолитный вариант)
Дата добавления в базу:01.09.2013
Дата актуализации:05.05.2017
Дата введения:23.11.1987
Оглавление:ТП 902-1-122.87 Содержание альбома
ТП 902-1-122.87-КЖ2 Основной комплект марки КЖ2
ТП 902-1-122.87-КЖ2-1 Общие данные (начало)
ТП 902-1-122.87-КЖ2-2 Общие данные (окончание)
ТП 902-1-122.87-КЖ2-3 Схема расположения стеновых панелей. Узел 1 (начало)
ТП 902-1-122.87-КЖ2-4 Схема расположения стеновых панелей. Узел 2 (продолжение)
ТП 902-1-122.87-КЖ2-5 Схема расположения стеновых панелей. Узел 3 (продолжение)
ТП 902-1-122.87-КЖ2-6 Схема расположения стеновых панелей. Узел 4,5 (окончание)
ТП 902-1-122.87-КЖ2-7 Пояс монолитный ПМ1. Общий вид и схема армирования
ТП 902-1-122.87-КЖ2-8 Схемы расположения балок и плит перекрытия на отм. -0.030 РКМ1, на отм. 1.500 РКМ2 (начало)
ТП 902-1-122.87-КЖ2-9 Схемы расположения балок и плит перекрытия на отм. -0.030 РКМ1, на отм. 1.500 РКМ2 (продолжение)
ТП 902-1-122.87-КЖ2-10 Схемы расположения балок и плит перекрытия на отм. -0.030 РКМ1, на отм. 1.500 РКМ2 (окончание)
ТП 902-1-122.87-КЖ2-11 Днище ПДМ1. Общий вид и схема армирования (начало)
ТП 902-1-122.87-КЖ2-12 Днище ПДМ1. Общий вид и схема армирования (окончание)
ТП 902-1-122.87-КЖ2-13 Днище ПДМ2. Общий вид и схема армирования (начало)
ТП 902-1-122.87-КЖ2-14 Днище ПДМ2. Общий вид и схема армирования (окончание)
ТП 902-1-122.87-КЖ2-15 Схема расположения фундаментов и фундаментных балок (начало)
ТП 902-1-122.87-КЖ2-16 Схема расположения фундаментов и фундаментных балок (продолжение 1)
ТП 902-1-122.87-КЖ2-17 Схема расположения фундаментов и фундаментных балок (продолжение 2)
ТП 902-1-122.87-КЖ2-18 Схема расположения фундаментов и фундаментных балок (окончание)
ТП 902-1-122.87-КЖ2-19 Схема расположения элементов лестницы в осях А-Б (начало)
ТП 902-1-122.87-КЖ2-20 Схема расположения элементов лестницы в осях А-Б (окончание)
ТП 902-1-122.87-КЖ2-21 Схема расположения элементов заземления
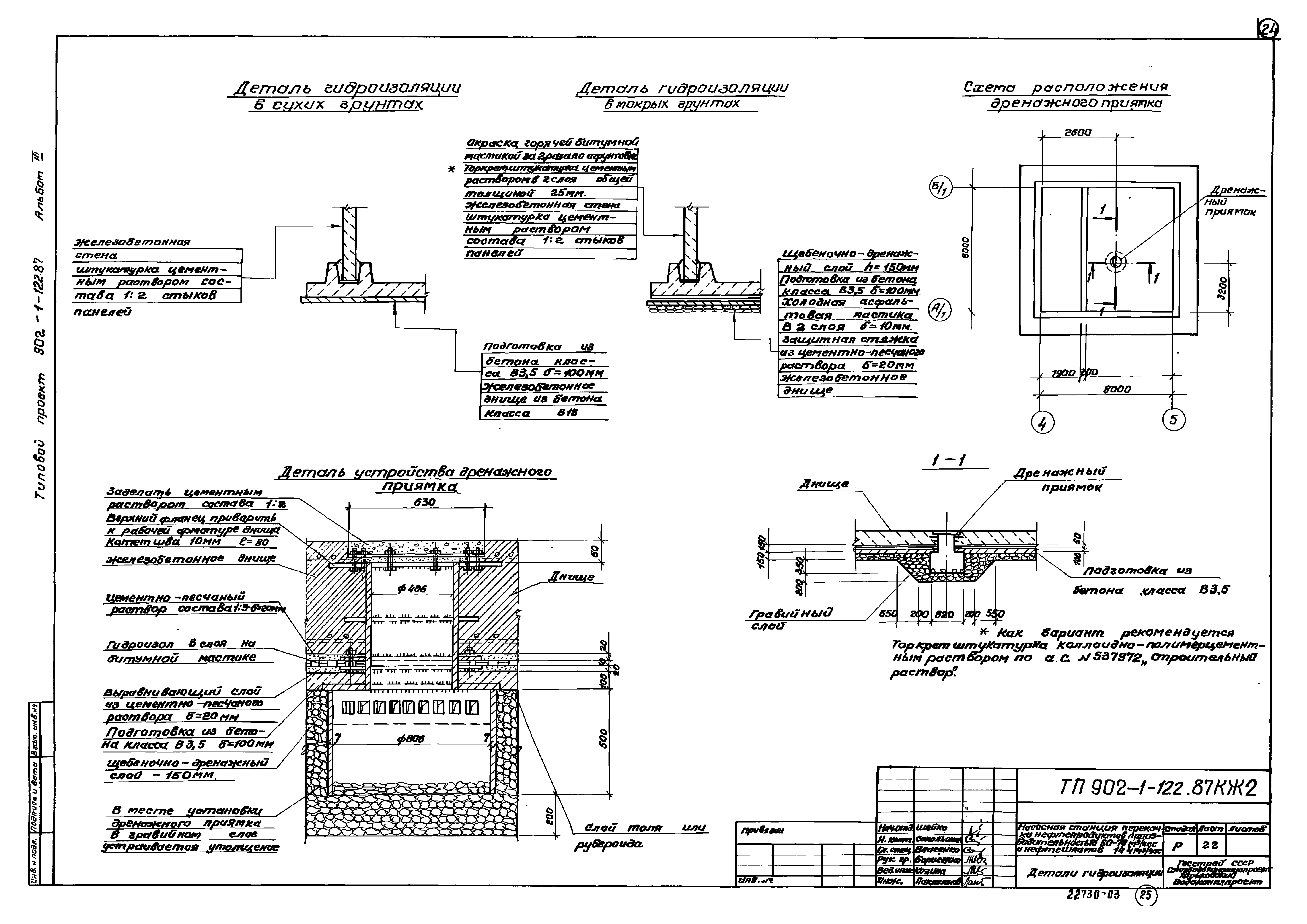
ТП 902-1-122.87-КЖ2-22 Детали гидроизоляции
Разработан: Харьковский Водоканалпроект
Утверждён:18.08.1987 Госстрой СССР (Государственный комитет Совета Министров СССР по делам строительства) (USSR Gosstroy 49)
Расположен в:Техническая документация Строительство Справочные документы Типовые строительные конструкции, изделия и узлы Общероссийский строительный каталог Промышленные предприятия, здания и сооружения Здания и сооружения санитарно-технические Канализация Станции насосные Насосные станции для перекачки производственных сточных вод
Типовой проект 902-1-122.87Типовой проект 902-1-122.87Типовой проект 902-1-122.87Типовой проект 902-1-122.87Типовой проект 902-1-122.87Типовой проект 902-1-122.87Типовой проект 902-1-122.87Типовой проект 902-1-122.87Типовой проект 902-1-122.87Типовой проект 902-1-122.87Типовой проект 902-1-122.87Типовой проект 902-1-122.87Типовой проект 902-1-122.87Типовой проект 902-1-122.87Типовой проект 902-1-122.87Типовой проект 902-1-122.87Типовой проект 902-1-122.87Типовой проект 902-1-122.87Типовой проект 902-1-122.87Типовой проект 902-1-122.87Типовой проект 902-1-122.87Типовой проект 902-1-122.87Типовой проект 902-1-122.87Типовой проект 902-1-122.87Типовой проект 902-1-122.87

© 2013 Ёшкин Кот :-) Карта сайта