Информационная система
«Ёшкин Кот»

Скачать базу одним архивом
Скачать обновления
История создания базы
Карта сайта

Скачать Типовой проект 901-3-233.87 Альбом VI. Часть 1. Строительные изделия. Отстойники и фильтры

Дата актуализации: 10.08.2017

Типовой проект 901-3-233.87

Альбом VI. Часть 1. Строительные изделия. Отстойники и фильтры

Обозначение: Типовой проект 901-3-233.87
Обозначение англ: 901-3-233.87
Статус:не определен законодательством
Название рус.:Альбом VI. Часть 1. Строительные изделия. Отстойники и фильтры
Дата добавления в базу:01.09.2013
Дата актуализации:05.05.2017
Дата введения:13.02.1985
Оглавление:ТП 901-3-233.87-КЖИ.01.00.00 Колонна (К84-8-1...К-84-8-4)
ТП 901-3-233.87-КЖИ.02.00.00 Колонна (К84-8-5...К-84-8-8)
ТП 901-3-233.87-КЖИ.03.00.00 Колонна (К84-8-6;К-84-8-7)
ТП 901-3-233.87-КЖИ.01.00.00 ВМС Ведомость расхода стали на дополнительные закладные изделия на элемент, кг
ТП 901-3-233.87-КЖИ.04.00.00 Колонна (К109-3АIIIВ-1)
ТП 901-3-233.87-КЖИ.05.00.00 Колонна (К115-1АIIIВ-1)
ТП 901-3-233.87-КЖИ.11.00.00 Ферма сегментная (2ФС24-3/4АIV-1)
ТП 901-3-233.87-КЖИ.12.00.00 Балка обвязочная (БОВ-3Т-1)
ТП 901-3-233.87-КЖИ.13.00.00 Балка стяжка (БСФ1)
ТП 901-3-233.87-КЖИ.21.00.00 Плита покрытия (ПГ-2АIVТ-1...ПГ-2АIVТ-3)
ТП 901-3-233.87-КЖИ.22.00.00 Плита покрытия (2П1-2АIVТ-1,2П1-2АIVТ-2)
ТП 901-3-233.87-КЖИ.23.00.00 Плита покрытия (2П1-5АIVТ-1,2П1-5АIVТ-2)
ТП 901-3-233.87-КЖИ.24.00.00 Плита (П23д-3-1;П23д-3-2)
ТП 901-3-233.87-КЖИ.25.00.00 Плита (П7-3-1)
ТП 901-3-233.87-КЖИ.26.00.00 Плита (П7д-3-1)
ТП 901-3-233.87-КЖИ.31.00.00 Панель стеновая (ПС1-48-Б3-1...ПС1-48-Б3-9)
ТП 901-3-233.87-КЖИ.31.00.00 СБ Панель стеновая (ПС1-48-Б3-1...ПС1-48-Б3-9). Сборочный чертеж
ТП 901-3-233.87-КЖИ.31.00.00 ВМС Ведомость расхода стали на дополнительные закладные изделия на элемент, кг
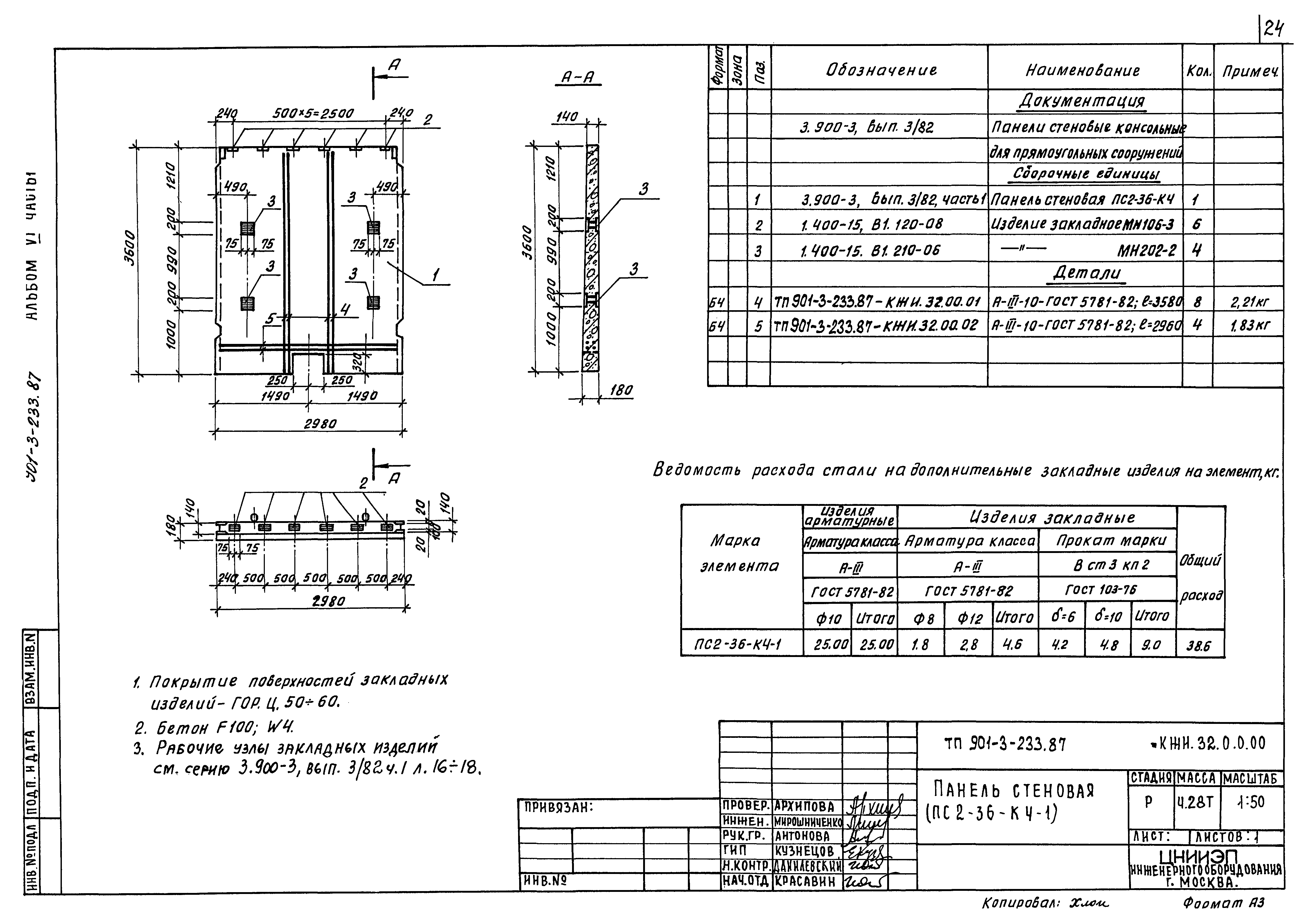
ТП 901-3-233.87-КЖИ.32.00.00 Панель стеновая (ПС2-36-К4-1)
ТП 901-3-233.87-КЖИ.33.00.00 Панель стеновая (ПС2-36-К4-2;ПС2-36-К4-3)
ТП 901-3-233.87-КЖИ.41.00.00 Панель стеновая (ПС1-54-Б2-1...ПС1-54-Б2-5,ПС1-54-Б2-8)
ТП 901-3-233.87-КЖИ.41.00.00 СБ Панель стеновая (ПС1-54-Б2-1...ПС1-54-Б2-5,ПС1-54-Б2-8). Сборочный чертеж
ТП 901-3-233.87-КЖИ.42.00.00 Панель стеновая (см. таблицу исполнений)
ТП 901-3-233.87-КЖИ.41.00.00 ВМС Ведомость расхода стали на дополнительные закладные изделия на элемент, кг
ТП 901-3-233.87-КЖИ.43.00.00 Панель стеновая (ПС1-54-Б2-11;ПС1-54-Б2-12)
ТП 901-3-233.87-КЖИ.43.00.00 СБ Панель стеновая (ПС1-54-Б2-11;ПС1-54-Б2-12). Сборочный чертеж
ТП 901-3-233.87-КЖИ.51.00.00 Элемент лотковый (ЛТ2-18-1)
ТП 901-3-233.87-КЖИ.52.00.00 Элемент лотковый (ЛТ2-18-2;ЛТ2-18-3)
ТП 901-3-233.87-КЖИ.53.00.00 Желоб (Ж1;Ж2)
ТП 901-3-233.87-КЖИ.54.00.00 Желоб (Ж3;Ж4)
ТП 901-3-233.87-КЖИ.55.00.00 Лоток (ЛВС1)
ТП 901-3-233.87-КЖИ.56.00.00 Желоб (ЖД1;ЖД2)
ТП 901-3-233.87-КЖИ.13.10.00 Каркас пространственный (КП1)
ТП 901-3-233.87-КЖИ.13.11.00 Каркас плоский (КР1)
ТП 901-3-233.87-КЖИ.43.10.00 Изделие закладное (МН-6а;МН-6б)
ТП 901-3-233.87-КЖИ.43.20.00 Изделие закладное (МН-15а;МН-16а)
ТП 901-3-233.87-КЖИ.43.11.00 Каркас плоский (КР-10а;КР-10б)
ТП 901-3-233.87-КЖИ.43.12.00 Каркас плоский (КР-12а)
ТП 901-3-233.87-КЖИ.43.01.00 Каркас плоский (КР-1а;КР-3а)
ТП 901-3-233.87-КЖИ.43.21.00 Каркас плоский (КР-18а)
ТП 901-3-233.87-КЖИ.43.02.00 Сетка арматурная (С34а)
ТП 901-3-233.87-КЖИ.43.03.00 Сетка арматурная (С35а)
ТП 901-3-233.87-КЖИ.43.04.00 Сетка арматурная (С38а)
ТП 901-3-233.87-КЖИ.55.01.00 Сетка арматурная (СЛ1)
ТП 901-3-233.87-КЖИ.52.01.00 Сетка арматурная (С47а;С48а)
ТП 901-3-233.87-КЖИ.52.02.00 Сетка арматурная (С47б;С48б)
ТП 901-3-233.87-КЖИ.52.03.00 Сетка арматурная (С49а)
ТП 901-3-233.87-КЖИ.53.01.00 Сетка арматурная (СЖ1...СЖ4)
ТП 901-3-233.87-КЖИ.56.01.00 Сетка арматурная (СЖ6)
ТП 901-3-233.87-КЖИ.56.02.00 Сетка арматурная (СЖ7)
ТП 901-3-233.87-КЖИ.60.01.00 Сетка арматурная (С1...С3)
ТП 901-3-233.87-КЖИ.60.02.00 Сетка арматурная (С4...С5)
ТП 901-3-233.87-КЖИ.70.10.00 Каркас пространственный (КПО1...КПО3)
ТП 901-3-233.87-КЖИ.70.20.00 Каркас пространственный (КПО4;КПО5)
ТП 901-3-233.87-КЖИ.70.01.00 Каркас плоский (КРО1;КРО2)
ТП 901-3-233.87-КЖИ.70.21.00 Каркас плоский (КРО3;КРО4)
ТП 901-3-233.87-КЖИ.70.02.00 Сетка арматурная (СО1)
ТП 901-3-233.87-КЖИ.70.03.00 Сетка арматурная (СО2)
ТП 901-3-233.87-КЖИ.70.04.00 Сетка арматурная (СО3;СО5...Со7;СО10)
ТП 901-3-233.87-КЖИ.70.05.00 Сетка арматурная (СО4;СО9;СО11)
ТП 901-3-233.87-КЖИ.70.06.00 Сетка арматурная (СО8)
ТП 901-3-233.87-КЖИ.70.11.00 Сетка арматурная (СКО1...СКО4)
ТП 901-3-233.87-КЖИ.80.10.00 Каркас пространственный (КПФ1...КПФ3)
ТП 901-3-233.87-КЖИ.80.01.00 Каркас плоский (КРФ1;КРФ2)
ТП 901-3-233.87-КЖИ.80.02.00 Сетка арматурная (СФ1)
ТП 901-3-233.87-КЖИ.80.03.00 Сетка арматурная (СФ4)
ТП 901-3-233.87-КЖИ.80.04.00 Сетка арматурная (СФ2;СФ3)
ТП 901-3-233.87-КЖИ.80.11.00 Сетка арматурная (СКФ1;СКФ3;СКФ5)
ТП 901-3-233.87-КЖИ.80.12.00 Сетка арматурная (СКФ2;СКФ4;СКФ6)
ТП 901-3-233.87-КЖИ.90.01.00 Каркас плоский (КРП1;КРП8)
ТП 901-3-233.87-КЖИ.90.02.00 Каркас плоский (КРП2;КРП3;КРП5;КРП9)
ТП 901-3-233.87-КЖИ.90.03.00 Каркас плоский (КРП4;КРП6;КРП7)
ТП 901-3-233.87-КЖИ.90.04.00 Сетка арматурная (СП1...СП3)
ТП 901-3-233.87-КЖИ.61.01.00 Щит стальной (Щ1;Щ2;Щ4)
ТП 901-3-233.87-КЖИ.61.03.00 Щит стальной (Щ3)
ТП 901-3-233.87-КЖИ.61.04.00 Изделие соединительное (МС1)
ТП 901-3-233.87-КЖИ.61.05.00 Изделие соединительное (МС3;МС4)
ТП 901-3-233.87-КЖИ.61.06.00 Изделие соединительное (МС5;МС6)
ТП 901-3-233.87-КЖИ.61.07.00 Изделие закладное (МК1)
ТП 901-3-233.87-КЖИ.61.08.00 Изделие закладное (МН1)
ТП 901-3-233.87-КЖИ.61.09.00 Изделие закладное (МН2)
ТП 901-3-233.87-КЖИ.21.01.00 Изделие закладное (М1)
ТП 901-3-233.87-КЖИ.54.01.00 Изделие закладное (М2)
Разработан: ЦНИИЭП иженерного оборудования
Утверждён:13.02.1985 Госгражданстрой (Gosgrazhdanstroy 43)
Расположен в:Техническая документация Строительство Справочные документы Типовые строительные конструкции, изделия и узлы Общероссийский строительный каталог Промышленные предприятия, здания и сооружения Здания и сооружения санитарно-технические Водоснабжение Очистные сооружения Станции очистки воды
Типовой проект 901-3-233.87Типовой проект 901-3-233.87Типовой проект 901-3-233.87Типовой проект 901-3-233.87Типовой проект 901-3-233.87Типовой проект 901-3-233.87Типовой проект 901-3-233.87Типовой проект 901-3-233.87Типовой проект 901-3-233.87Типовой проект 901-3-233.87Типовой проект 901-3-233.87Типовой проект 901-3-233.87Типовой проект 901-3-233.87Типовой проект 901-3-233.87Типовой проект 901-3-233.87Типовой проект 901-3-233.87Типовой проект 901-3-233.87Типовой проект 901-3-233.87Типовой проект 901-3-233.87Типовой проект 901-3-233.87Типовой проект 901-3-233.87Типовой проект 901-3-233.87Типовой проект 901-3-233.87Типовой проект 901-3-233.87Типовой проект 901-3-233.87Типовой проект 901-3-233.87Типовой проект 901-3-233.87Типовой проект 901-3-233.87Типовой проект 901-3-233.87Типовой проект 901-3-233.87Типовой проект 901-3-233.87Типовой проект 901-3-233.87Типовой проект 901-3-233.87Типовой проект 901-3-233.87Типовой проект 901-3-233.87Типовой проект 901-3-233.87Типовой проект 901-3-233.87Типовой проект 901-3-233.87Типовой проект 901-3-233.87Типовой проект 901-3-233.87Типовой проект 901-3-233.87Типовой проект 901-3-233.87Типовой проект 901-3-233.87Типовой проект 901-3-233.87Типовой проект 901-3-233.87Типовой проект 901-3-233.87Типовой проект 901-3-233.87Типовой проект 901-3-233.87Типовой проект 901-3-233.87Типовой проект 901-3-233.87Типовой проект 901-3-233.87Типовой проект 901-3-233.87Типовой проект 901-3-233.87Типовой проект 901-3-233.87Типовой проект 901-3-233.87Типовой проект 901-3-233.87Типовой проект 901-3-233.87Типовой проект 901-3-233.87Типовой проект 901-3-233.87Типовой проект 901-3-233.87Типовой проект 901-3-233.87Типовой проект 901-3-233.87Типовой проект 901-3-233.87Типовой проект 901-3-233.87Типовой проект 901-3-233.87Типовой проект 901-3-233.87Типовой проект 901-3-233.87Типовой проект 901-3-233.87Типовой проект 901-3-233.87Типовой проект 901-3-233.87Типовой проект 901-3-233.87Типовой проект 901-3-233.87Типовой проект 901-3-233.87Типовой проект 901-3-233.87Типовой проект 901-3-233.87Типовой проект 901-3-233.87Типовой проект 901-3-233.87

© 2013 Ёшкин Кот :-) Карта сайта