Скачать Типовой проект 291-8-21.87 Альбом III. Часть 2. Инженерное оборудование, отопление и вентиляция, внутренние водопровод и канализация, автоматизация сантехустройств, электрооборудование, связь и сигнализация, пожарная сигнализацияДата актуализации: 10.08.2017 Типовой проект 291-8-21.87
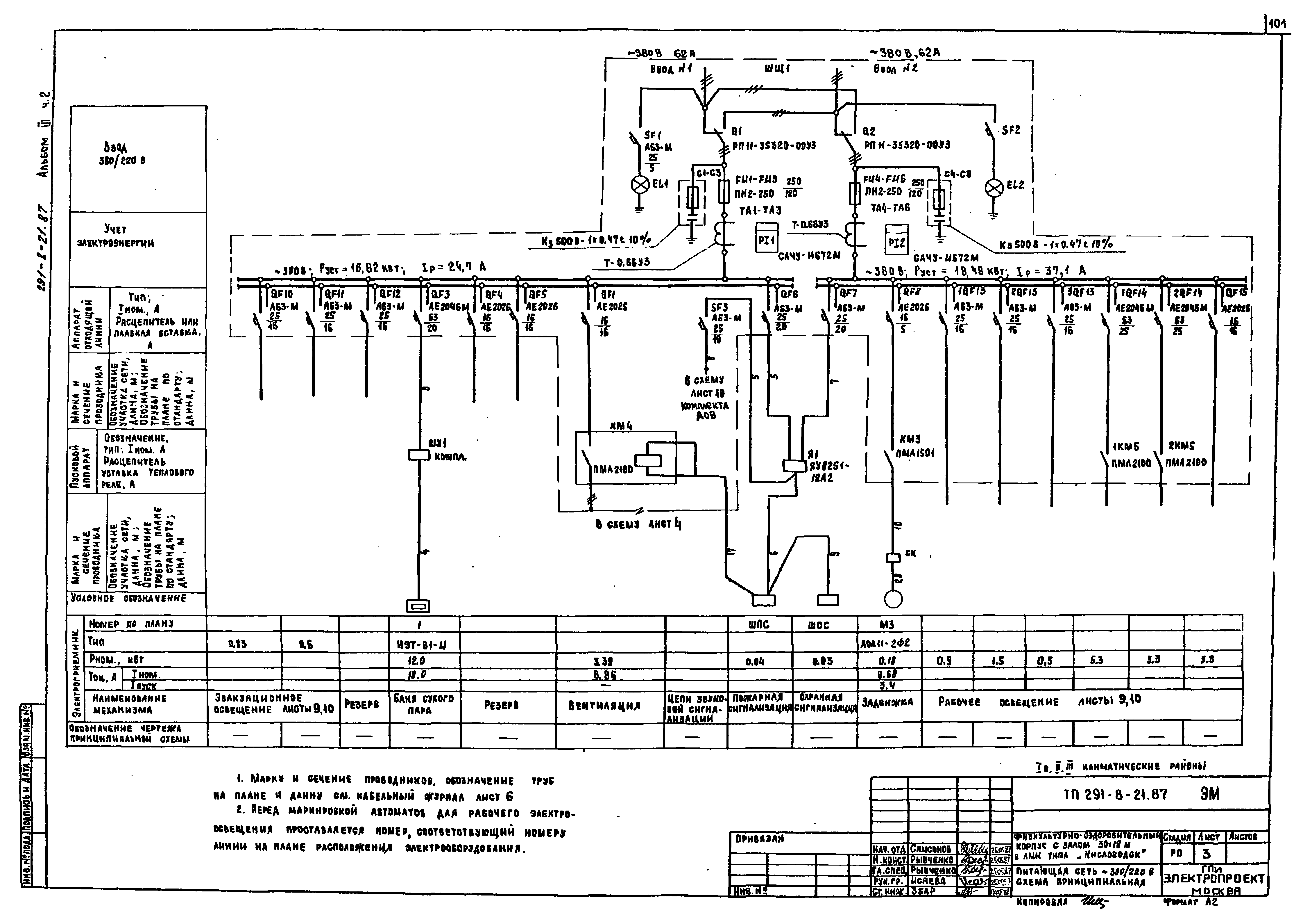
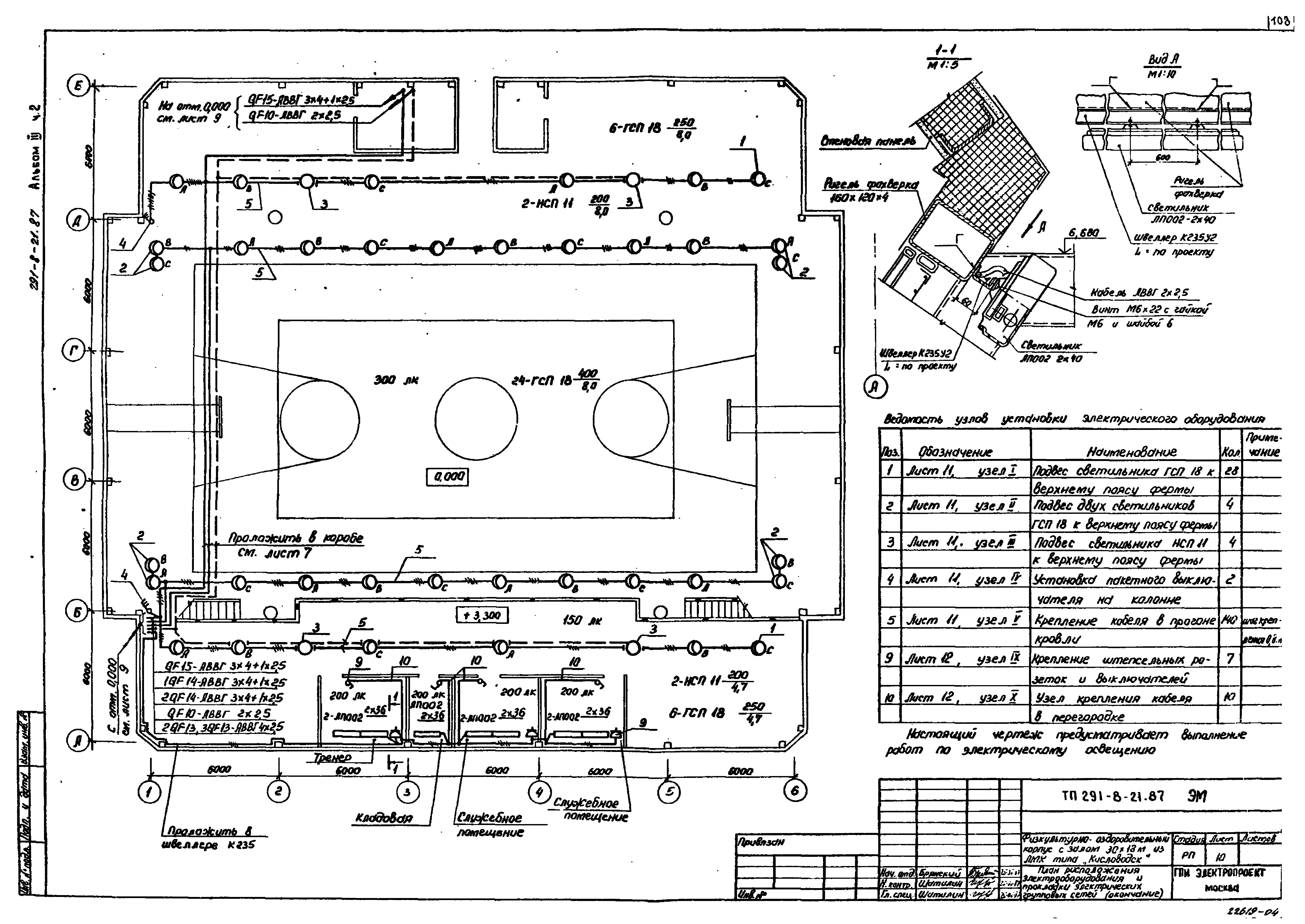
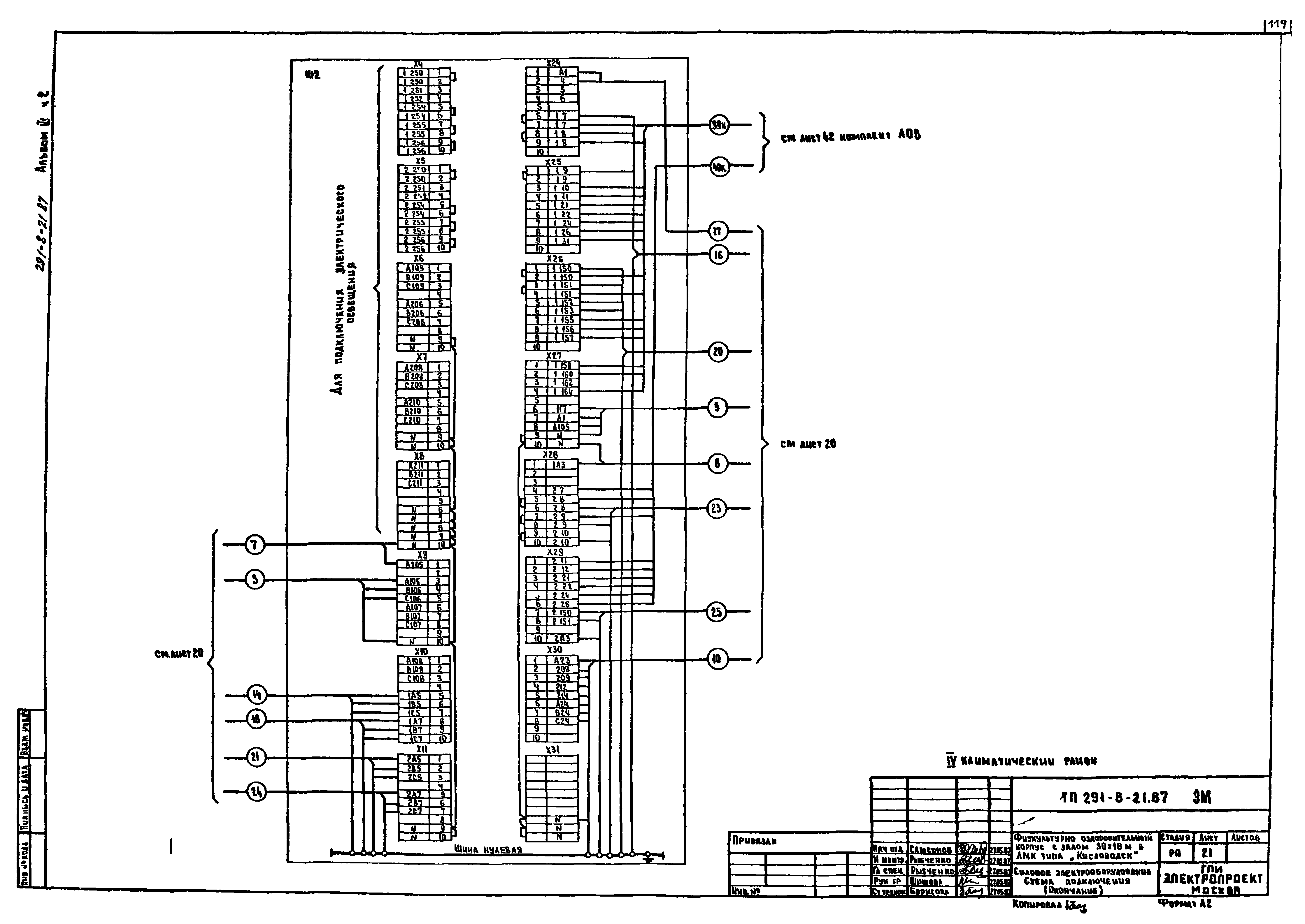
Альбом III. Часть 2. Инженерное оборудование, отопление и вентиляция, внутренние водопровод и канализация, автоматизация сантехустройств, электрооборудование, связь и сигнализация, пожарная сигнализацияОбозначение: | Типовой проект 291-8-21.87 | Обозначение англ: | 291-8-21.87 | Статус: | не определен законодательством | Название рус.: | Альбом III. Часть 2. Инженерное оборудование, отопление и вентиляция, внутренние водопровод и канализация, автоматизация сантехустройств, электрооборудование, связь и сигнализация, пожарная сигнализация | Дата добавления в базу: | 01.09.2013 | Дата актуализации: | 05.05.2017 | Дата введения: | 15.06.1987 | Оглавление: | Чертежи марки АОВ IV климатический район. Вытяжной вентилятор. Естественная вытяжка. Схема автоматизации IV климатический район. Приточная система П1. Схема электрическая принципиальная IV климатический район. Приточная система П2. Схема электрическая принципиальная IV климатический район. Вытяжной вентилятор В1. Схема электрическая принципиальная IV климатический район. Естественная вытяжка ВЕ1. Схема электрическая принципиальная IV климатический район. Приточная система П1. Схема соединений внешних проводок IV климатический район. Приточная система П2. Схема соединений внешних проводок IV климатический район. Кабельный журнал IV климатический район. План расположения электрооборудования, прокладки кабелей и проводов Узел ввода при tг = 150 градусов Цельсия. Схема автоматизации Узел ввода при tг = 150 градусов Цельсия. Схема соединений внешних проводок Узел ввода при tг = 95 градусов Цельсия. Схема автоматизации Узел ввода при tг = 95 градусов Цельсия. Схема соединений внешних проводок Узел ввода. Журнал трубных проводок Узел ввода при tг = 150 градусов Цельсия. Расположение приборов, прокладка трубных проводок Узел ввода при tг = 95 градусов Цельсия. Расположение приборов, прокладка трубных проводок IВ, II, III климатические районы. Щит автоматики ЩА1. Общий вид IВ, II, III климатические районы. Щит автоматики ЩА2. Общий вид IВ, II, III климатические районы. Щит автоматики ЩА3. Общий вид IV климатический район. Щит автоматики ЩА1. Общий вид IV климатический район. Щит автоматики ЩА2. Общий вид IV климатический район. Щит автоматики ЩА3. Общий вид IV климатический район. Щит автоматики ЩА4. Общий вид Чертежи марки ЭМ Общие данные IВ, II, III климатические районы. Питающая сеть 380/220 В. Схема принципиальная IВ, II, III климатические районы. Распределительная сеть 380/220 В. Схема принципиальная IВ, II, III климатические районы. Управление рабочим электрическим освещением зала. Схема общая IВ, II, III климатические районы. Кабельный журнал IВ, II, III климатические районы. Силовое электрооборудование. План расположения электрооборудования. Прокладки кабелей и проводов IВ, II, III климатические районы. План расположения электрооборудования. Прокладки электрических групповых сетей IВ, II, III климатические районы. Узлы установки электроосветительного оборудования IВ, II, III климатические районы. Силовое электрооборудование. Схема подключений IV климатический район. Питающая сеть 380/220 В. Схема принципиальная IV климатический район. Распределительная сеть 380/220 В. Схема принципиальная IV климатический район. Кабельный журнал IV климатический район. Силовое электрооборудование. План расположения электрооборудования. Прокладки кабелей и проводов IV климатический район. Силовое электрооборудование. Схема подключений IВ, II, III климатические районы. Щит защищенный ЩЩ1. Общий вид IV климатический район. Щит защищенный ЩЩ1. Общий вид Ведомость электромонтажных конструкций и деталей, подлежащих изготовлению в МЭЗ Чертежи марки СС Общие данные План на отм. 0.000. Сети связи и сигнализации. Схемы сетей Чертежи марки ПС Общие данные Сети на плане отм. 0.000 и 3.300 Схема сети пожарной сигнализации. Разрез 2-2 | Разработан: | ЦНИИЭП им. Б.С. Мезенцева Госгражданстроя
| Утверждён: | 15.06.1987 Госгражданстрой (Gosgrazhdanstroy 184)
| Издан: | ЦИТП Госстроя СССР (CITP, Gosstroy (USSR) 1987 г. )
| Расположен в: |
|
                                                              
|