Информационная система
«Ёшкин Кот»

Скачать базу одним архивом
Скачать обновления
История создания базы
Карта сайта

Скачать Типовой проект 291-8-21.87 Альбом II. Конструкции металлические

Дата актуализации: 10.08.2017

Типовой проект 291-8-21.87

Альбом II. Конструкции металлические

Обозначение: Типовой проект 291-8-21.87
Обозначение англ: 291-8-21.87
Статус:не определен законодательством
Название рус.:Альбом II. Конструкции металлические
Дата добавления в базу:01.09.2013
Дата актуализации:05.05.2017
Дата введения:15.06.1987
Оглавление:Общие данные
Техническая спецификация металла
Схема расположения секции
Узлы 1…4
Схема расположения прогонов
Узлы 5…13
Схема расположения профилированного настила
Узлы 14…20
Схема расположения элементов фахверка
Узлы 21…27
Узлы 28…31
Узлы 32…36
Схемы расположения стоек, балок, панелей и лестниц антресоли
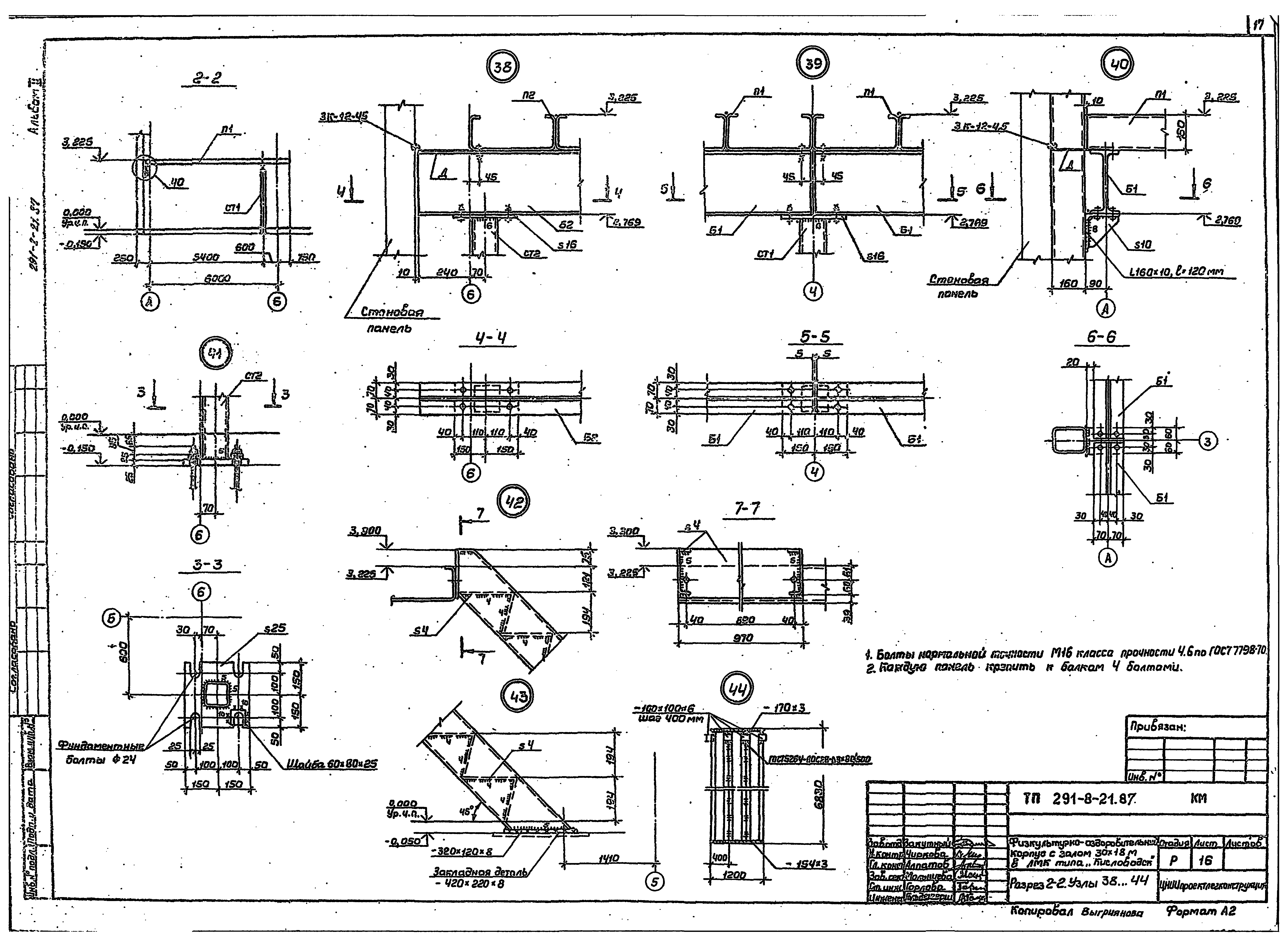
Разрез 2-2. Узлы 38…44
Схемы расположения стоек, балок и панелей перекрытия венткамеры и инвентарной на отм. 3.420 и 2.250
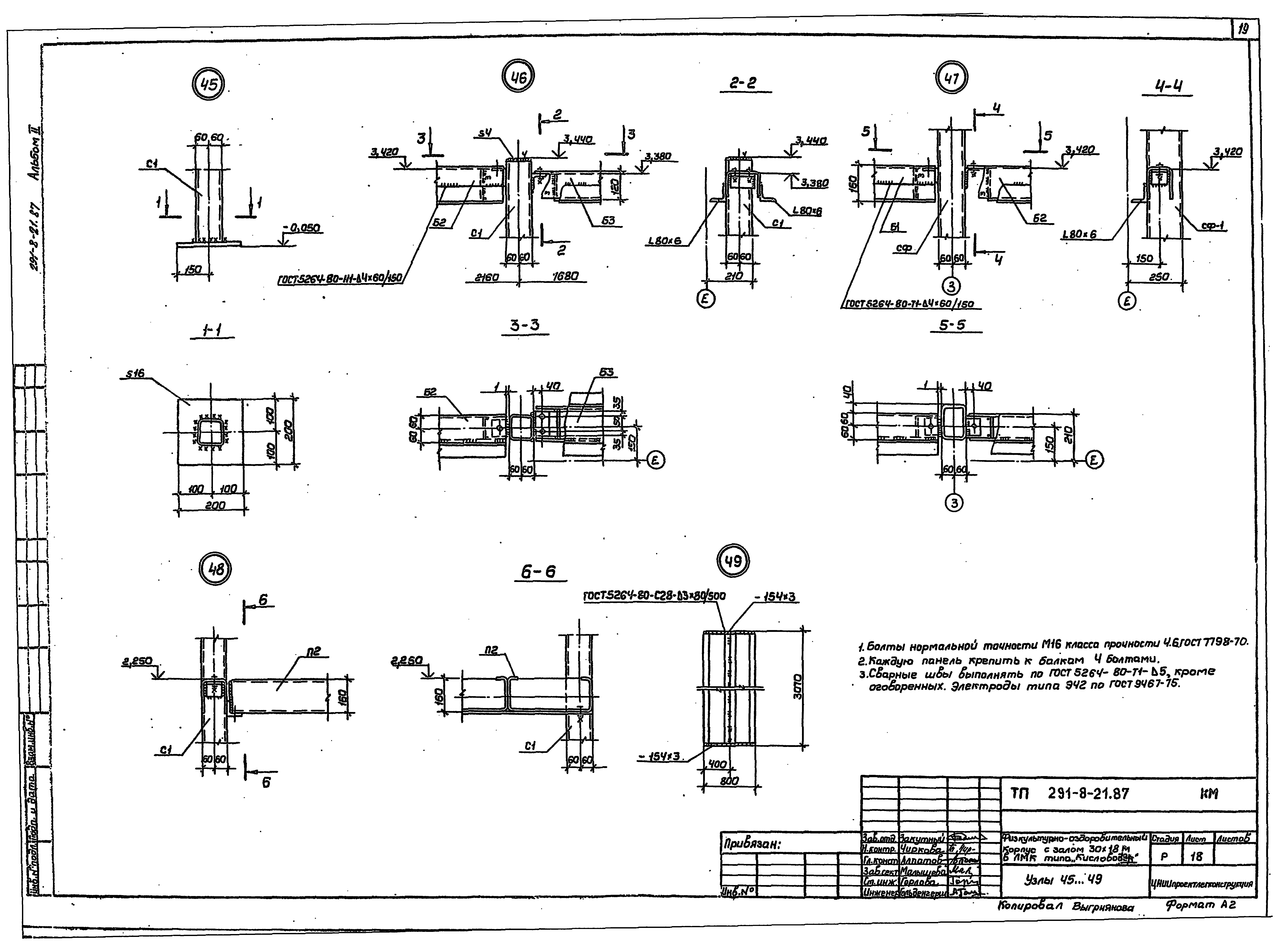
Узлы 45…49
Задание на проектирование фундаментов
Разработан: ЦНИИЭП им. Б.С. Мезенцева Госгражданстроя
Утверждён:15.06.1987 Госгражданстрой (Gosgrazhdanstroy 184)
Издан: ЦИТП Госстроя СССР (CITP, Gosstroy (USSR) 1987 г. )
Расположен в:Техническая документация Строительство Справочные документы Типовые строительные конструкции, изделия и узлы Общероссийский строительный каталог Общественные здания в городах и поселках городского типа Физкультурно-оздоровительные и спортивные здания и сооружения Физкультурно-оздоровительные и спортивные комплексы
Типовой проект 291-8-21.87Типовой проект 291-8-21.87Типовой проект 291-8-21.87Типовой проект 291-8-21.87Типовой проект 291-8-21.87Типовой проект 291-8-21.87Типовой проект 291-8-21.87Типовой проект 291-8-21.87Типовой проект 291-8-21.87Типовой проект 291-8-21.87Типовой проект 291-8-21.87Типовой проект 291-8-21.87Типовой проект 291-8-21.87Типовой проект 291-8-21.87Типовой проект 291-8-21.87Типовой проект 291-8-21.87Типовой проект 291-8-21.87Типовой проект 291-8-21.87Типовой проект 291-8-21.87Типовой проект 291-8-21.87Типовой проект 291-8-21.87

© 2013 Ёшкин Кот :-) Карта сайта