Информационная система
«Ёшкин Кот»

Скачать базу одним архивом
Скачать обновления
История создания базы
Карта сайта

Скачать Типовой проект 902-3-71.87 Альбом I. Технологические решения. Конструкции железобетонные

Дата актуализации: 10.08.2017

Типовой проект 902-3-71.87

Альбом I. Технологические решения. Конструкции железобетонные

Обозначение: Типовой проект 902-3-71.87
Обозначение англ: 902-3-71.87
Статус:не определен законодательством
Название рус.:Альбом I. Технологические решения. Конструкции железобетонные
Дата добавления в базу:01.09.2013
Дата актуализации:05.05.2017
Дата введения:04.09.1987
Оглавление:ТП 902-3-71.87 Содержание альбома
ТП 902-3-71.87-ТХ Технологические решения
ТП 902-3-71.87-ТХ-1 Общие данные (начало)
ТП 902-3-71.87-ТХ-2 Общие данные (продолжение)
ТП 902-3-71.87-ТХ-3 Общие данные (продолжение)
ТП 902-3-71.87-ТХ-4 Общие данные (окончание)
ТП 902-3-71.87-ТХ-5 План. Разрезы 1-1;2-2. Схемы трубопроводов М5,Х1
ТП 902-3-71.87-ТХ-6 Спецификация оборудования L=15000
ТП 902-3-71.87-ТХ-7 Спецификация оборудования L=9000
ТП 902-3-71.87-ТХ-8 Спецификация оборудования L=6000
ТП 902-3-71.87-КЖ Конструкции железобетонные
ТП 902-3-71.87-КЖ-1 Общие данные (начало)
ТП 902-3-71.87-КЖ-2 Общие данные (окончание)
ТП 902-3-71.87-КЖ-3 L=15000. Схема расположения стеновых панелей и лотков. Разрез 1-1
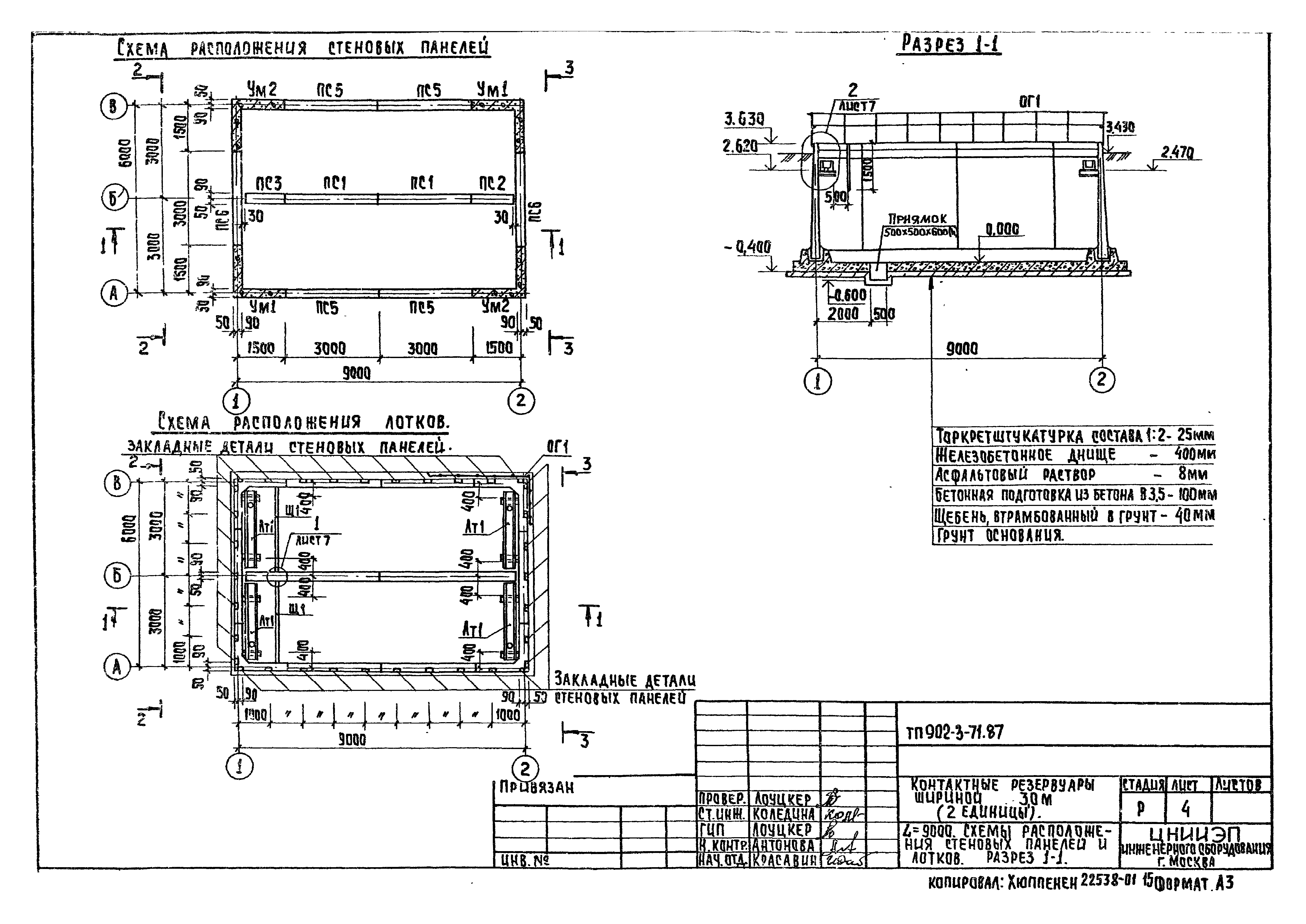
ТП 902-3-71.87-КЖ-4 L=9000. Схемы расположения стеновых панелей и лотков. Разрез 1-1
ТП 902-3-71.87-КЖ-5 L=6000. Схемы расположения стеновых панелей и лотков. Разрез 1-1
ТП 902-3-71.87-КЖ-6 Схемы расположения стеновых панелей и лотков. Разрезы 2-2;3-3. Спецификация
ТП 902-3-71.87-КЖ-7 Узлы 1,2. Монолитные участки. Опалубочный чертеж
ТП 902-3-71.87-КЖ-8 Днище. Опалубочный чертеж
ТП 902-3-71.87-КЖ-9 L=15000. Днище. Армирование. Схемы расположения каркасов и нижних сеток
ТП 902-3-71.87-КЖ-10 L=9000. Днище. Армирование. Схемы расположения каркасов и нижних сеток
ТП 902-3-71.87-КЖ-11 L=6000. Днище. Армирование. Схемы расположения каркасов и нижних сеток
ТП 902-3-71.87-КЖ-12 L=15000. Днище. Армирование. Схемы расположения каркасов и верхних сеток. Спецификация
ТП 902-3-71.87-КЖ-13 L=9000. Днище. Армирование. Схемы расположения каркасов и верхних сеток. Спецификация
ТП 902-3-71.87-КЖ-14 L=6000. Днище. Армирование. Схемы расположения каркасов и верхних сеток. Спецификация
ТП 902-3-71.87-КЖ-15 Днище. Армирование. Узел 1
ТП 902-3-71.87-КЖ-16 Днище. Армирование. Узел 2
ТП 902-3-71.87-КЖ-17 Монолитные участки УМ1,УМ2. Армирование
ТП 902-3-71.87-КЖ-18 Монолитные участки УМ1,УМ2. Спецификации
ТП 902-3-71.87-ОС Организация строительства
ТП 902-3-71.87-ОС-1 Пояснительная записка
ТП 902-3-71.87-ОС-2 График производства работ L=15000
ТП 902-3-71.87-ОС-3 График производства работ L=9000
ТП 902-3-71.87-ОС-4 График производства работ L=6000
Разработан: ЦНИИЭП иженерного оборудования
Утверждён:04.09.1987 Госгражданстрой (Gosgrazhdanstroy 277)
Расположен в:Техническая документация Строительство Справочные документы Типовые строительные конструкции, изделия и узлы Общероссийский строительный каталог Промышленные предприятия, здания и сооружения Здания и сооружения санитарно-технические Канализация Сооружения доочистки Установки очистные и контактные резервуары
Типовой проект 902-3-71.87Типовой проект 902-3-71.87Типовой проект 902-3-71.87Типовой проект 902-3-71.87Типовой проект 902-3-71.87Типовой проект 902-3-71.87Типовой проект 902-3-71.87Типовой проект 902-3-71.87Типовой проект 902-3-71.87Типовой проект 902-3-71.87Типовой проект 902-3-71.87Типовой проект 902-3-71.87Типовой проект 902-3-71.87Типовой проект 902-3-71.87Типовой проект 902-3-71.87Типовой проект 902-3-71.87Типовой проект 902-3-71.87Типовой проект 902-3-71.87Типовой проект 902-3-71.87Типовой проект 902-3-71.87Типовой проект 902-3-71.87Типовой проект 902-3-71.87Типовой проект 902-3-71.87Типовой проект 902-3-71.87Типовой проект 902-3-71.87Типовой проект 902-3-71.87Типовой проект 902-3-71.87Типовой проект 902-3-71.87Типовой проект 902-3-71.87Типовой проект 902-3-71.87Типовой проект 902-3-71.87Типовой проект 902-3-71.87

© 2013 Ёшкин Кот :-) Карта сайта