Информационная система
«Ёшкин Кот»

Скачать базу одним архивом
Скачать обновления
История создания базы
Карта сайта

Скачать Типовой проект 904-1-80.87 Альбом 2. Строительные решения

Дата актуализации: 10.08.2017

Типовой проект 904-1-80.87

Альбом 2. Строительные решения

Обозначение: Типовой проект 904-1-80.87
Обозначение англ: 904-1-80.87
Статус:отменен в рф
Название рус.:Альбом 2. Строительные решения
Дата добавления в базу:01.09.2013
Дата актуализации:05.05.2017
Дата введения:01.01.1990
Оглавление:ТП 904-1-80.87-АС.ПЗ Содержание альбома. Пояснительная записка.
ТП 904-1-80.87-АС1 Глушители шума всасывания ГШВ80, ГШВ120. Общие данные
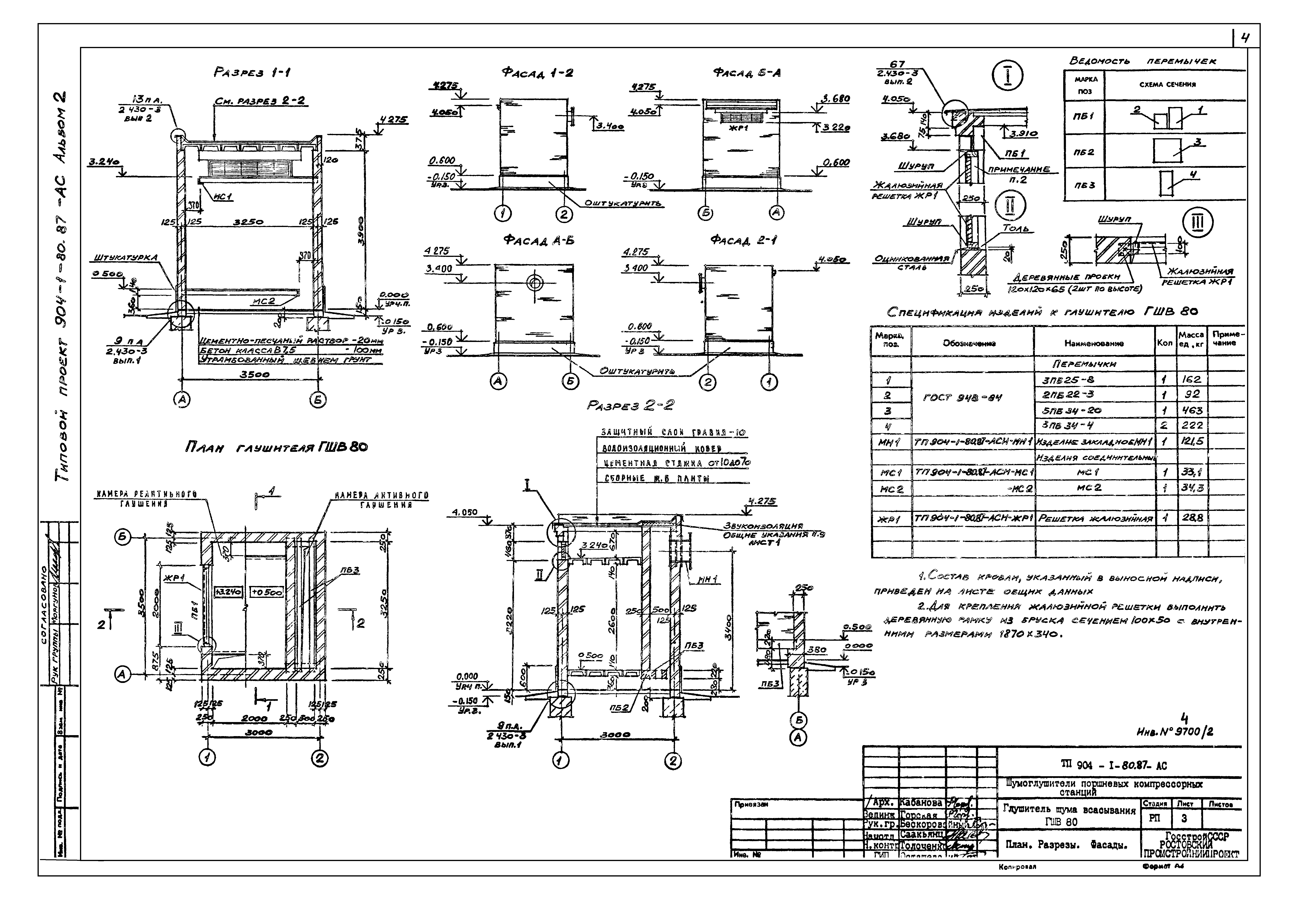
ТП 904-1-80.87-АС2 Глушитель шума всасывания ГШВ80. План. Разрезы. Фасады.
ТП 904-1-80.87-АС3 Глушитель шума всасывания ГШВ120. План. Разрезы. Фасады.
ТП 904-1-80.87-АС4 Глушители шума всасывания ГШВ80, ГШВ120. Схема расположения фундаментов, плит покрытия и перекрытия.
ТП 904-1-80.87-АСИ.МН1 Изделие закладное МН1
ТП 904-1-80.87-АСИ.МС1 Изделие соединительное МС1
ТП 904-1-80.87-АСИ.МС2 Изделие соединительное МС2
ТП 904-1-80.87-АСИ.ЖР12 Решетка жалюзийная ЖР1
Разработан: Ростовский Промстройниипроект Госстроя СССР
Утверждён:11.09.1987 Минстройдормаш (Minstroydormash 518)
Расположен в:Техническая документация Строительство Справочные документы Типовые строительные конструкции, изделия и узлы Общероссийский строительный каталог Промышленные предприятия, здания и сооружения Здания и сооружения санитарно-технические Воздухоснабжение, вентиляция и кондиционирование воздуха Воздухоснабжение
Заменяет собой:
Типовой проект 904-1-80.87Типовой проект 904-1-80.87Типовой проект 904-1-80.87Типовой проект 904-1-80.87Типовой проект 904-1-80.87Типовой проект 904-1-80.87Типовой проект 904-1-80.87Типовой проект 904-1-80.87Типовой проект 904-1-80.87

© 2013 Ёшкин Кот :-) Карта сайта