Скачать Типовой проект 903-2-34.90 Альбом 3. Мазутоснабжение (Q = 3,25/13 куб. м/ч)Дата актуализации: 10.08.2017 Типовой проект 903-2-34.90
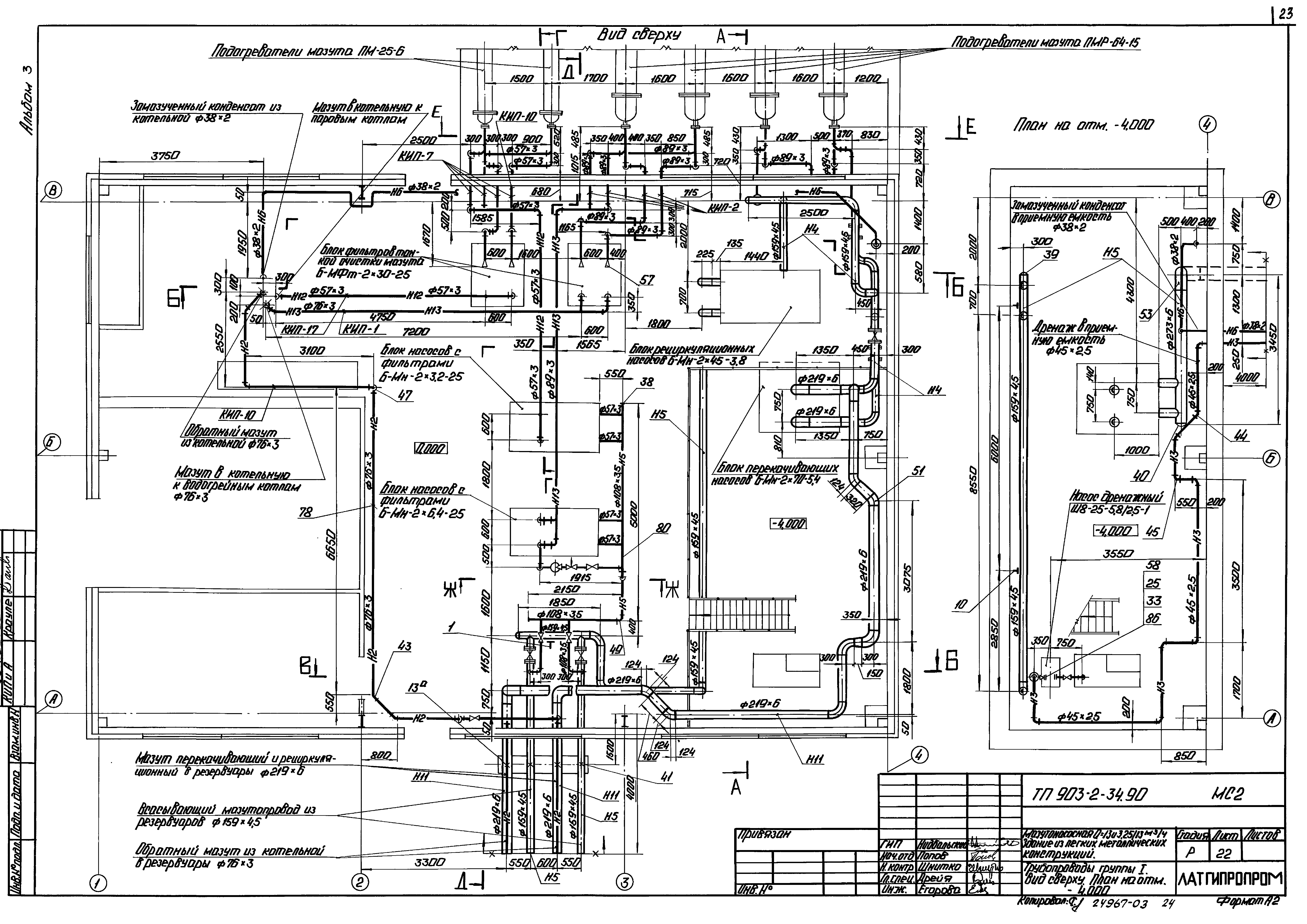
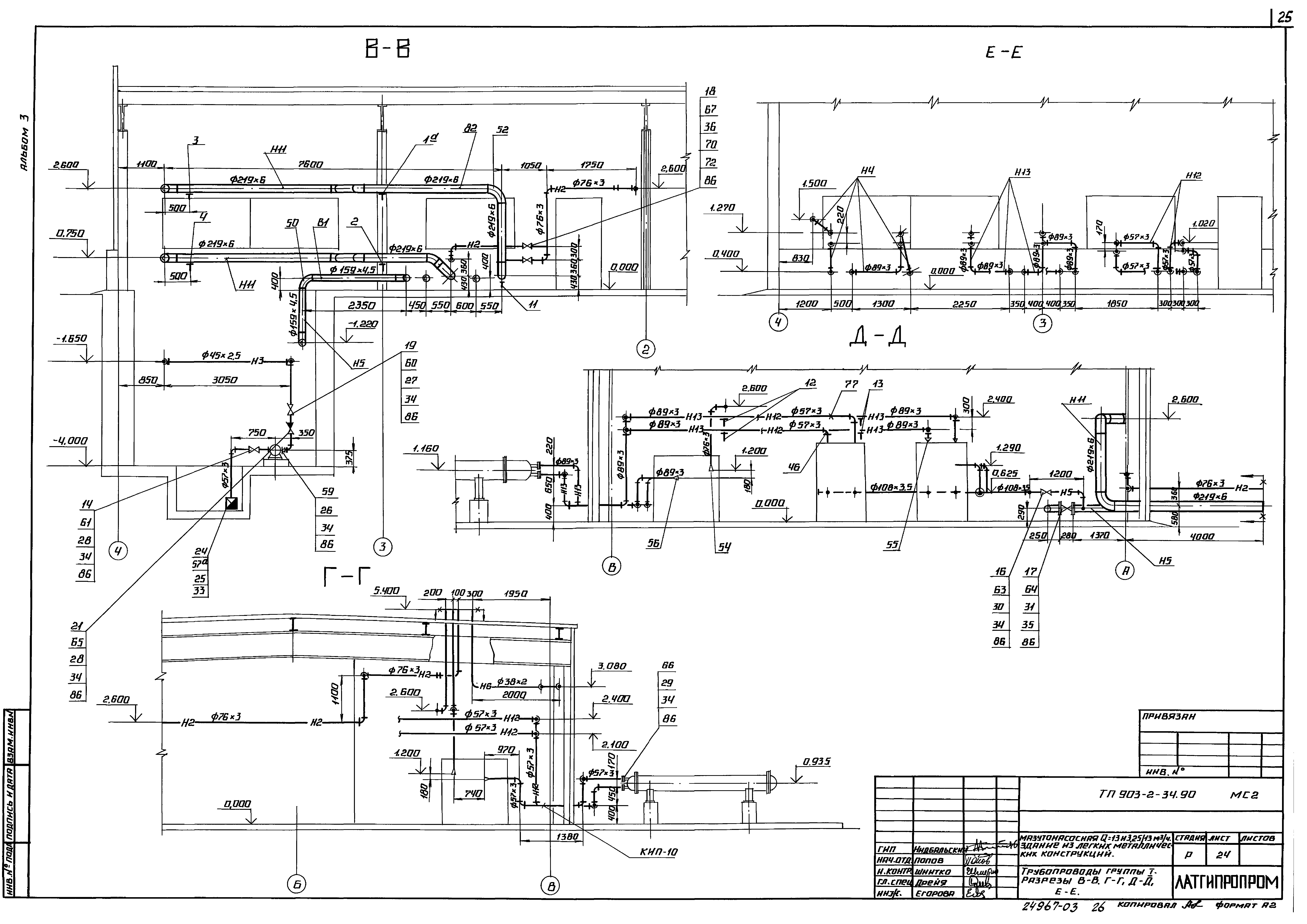
Альбом 3. Мазутоснабжение (Q = 3,25/13 куб. м/ч)Обозначение: | Типовой проект 903-2-34.90 | Обозначение англ: | 903-2-34.90 | Статус: | не определен законодательством | Название рус.: | Альбом 3. Мазутоснабжение (Q = 3,25/13 куб. м/ч) | Дата добавления в базу: | 01.09.2013 | Дата актуализации: | 05.05.2017 | Дата введения: | 01.04.1991 | Оглавление: | ТП 903-2-34.90-МС2-1 Общие данные (начало) ТП 903-2-34.90-МС2-2 Общие данные (продолжение) ТП 903-2-34.90-МС2-3 Общие данные (продолжение) ТП 903-2-34.90-МС2-4 Общие данные (продолжение) ТП 903-2-34.90-МС2-5 Общие данные (продолжение) ТП 903-2-34.90-МС2-6 Общие данные (продолжение) ТП 903-2-34.90-МС2-7 Общие данные (продолжение) ТП 903-2-34.90-МС2-8 Общие данные (продолжение) ТП 903-2-34.90-МС2-9 Общие данные (продолжение) ТП 903-2-34.90-МС2-10 Общие данные (продолжение) ТП 903-2-34.90-МС2-11 Общие данные (продолжение) ТП 903-2-34.90-МС2-12 Общие данные (продолжение) ТП 903-2-34.90-МС2-13 Общие данные (продолжение) ТП 903-2-34.90-МС2-14 Общие данные (продолжение) ТП 903-2-34.90-МС2-15 Общие данные (продолжение) ТП 903-2-34.90-МС2-16 Общие данные (продолжение) ТП 903-2-34.90-МС2-17 Общие данные (продолжение) ТП 903-2-34.90-МС2-18 Общие данные (окончание) ТП 903-2-34.90-МС2-19 Схема соединений установки мазутоснабжения Q=3.25/13м³/ч ТП 903-2-34.90-МС2-20 Компоновка оборудования. Планы на отм. 0.000 и -4.000 ТП 903-2-34.90-МС2-21 Компоновка оборудования. Разрез А-А;Б-Б. Вид В ТП 903-2-34.90-МС2-22 Трубопроводы группы 1. Вид сверху. План на отм. -4.000 ТП 903-2-34.90-МС2-23 Трубопроводы группы 1. Разрезы А-А;Б-Б;Ж-Ж. Узел прохода ТП 903-2-34.90-МС2-24 Трубопроводы группы 1. Разрезы В-В;Г-Г;Д-Д;Е-Е ТП 903-2-34.90-МС2-25 Трубопроводы группы 1. Спецификация ТП 903-2-34.90-МС2-26 Трубопроводы группы 1. Опоры № 1 и 7 ТП 903-2-34.90-МС2-27 Трубопроводы группы 1. Опора № 2 ТП 903-2-34.90-МС2-28 Трубопроводы группы 1. Опора № 3 ТП 903-2-34.90-МС2-29 Трубопроводы группы 1. Опора № 4 ТП 903-2-34.90-МС2-30 Трубопроводы группы 1. Опора № 6 ТП 903-2-34.90-МС2-31 Трубопроводы группы 1. Опора № 8 ТП 903-2-34.90-МС2-32 Трубопроводы группы 1. Опора № 5 и 9 ТП 903-2-34.90-МС2-33 Трубопроводы группы 1. Опора № 10 ТП 903-2-34.90-МС2-34 Трубопроводы группы 1. Опора № 11 ТП 903-2-34.90-МС2-35 Трубопроводы группы 1. Опора № 12 ТП 903-2-34.90-МС2-36 Схема дренажа и продувки трубопроводов группы 1 ТП 903-2-34.90-МС2-37 Схема дренажа и продувки трубопроводов группы 1. Спецификация ТП 903-2-34.90-МС2-38 Трубопроводы группы 2. Вид сверху ТП 903-2-34.90-МС2-39 Трубопроводы группы 2. План паропроводов. План конденсатопроводов. Разрез Е-Е. Узел ТП 903-2-34.90-МС2-40 Трубопроводы группы 2. Разрезы А-А;Б-Б;В-В;Г-Г ТП 903-2-34.90-МС2-41 Трубопроводы группы 2. Разрезы Д-Д;Ж-Ж ТП 903-2-34.90-МС2-42 Трубопроводы группы 2. Спецификация ТП 903-2-34.90-МС2-43 Схема дренажа и продувки трубопроводов группы 2 ТП 903-2-34.90-МС2-44 Схема дренажа и продувки трубопроводов группы 2. Спецификация ТП 903-2-34.90-МС2-45 Узел монтажа датчиков уровня ДУ. План. Разрезы А-А;Б-Б. Узел 1 ТП 903-2-34.90-МС2-46 Дренажное и продувочное устройство ТП 903-2-34.90-МС2-47 Таблица размеров крепежных изделий со спецификацией. Узлы. Детали | Разработан: | Латгипропром
| Утверждён: | 01.04.1991 ГПКНИИ Сантехниипроект (23)
| Расположен в: |
|
                                               
|