Информационная система
«Ёшкин Кот»

Скачать базу одним архивом
Скачать обновления
История создания базы
Карта сайта

Скачать Типовой проект 501-5-76.86 Альбом 3. Электроснабжение. Электрическое освещение. Силовое электрооборудование. Автоматизация отопления и вентиляции

Дата актуализации: 10.08.2017

Типовой проект 501-5-76.86

Альбом 3. Электроснабжение. Электрическое освещение. Силовое электрооборудование. Автоматизация отопления и вентиляции

Обозначение: Типовой проект 501-5-76.86
Обозначение англ: 501-5-76.86
Статус:не определен законодательством
Название рус.:Альбом 3. Электроснабжение. Электрическое освещение. Силовое электрооборудование. Автоматизация отопления и вентиляции
Дата добавления в базу:01.09.2013
Дата актуализации:05.05.2017
Дата введения:01.01.1987
Оглавление:ТП 501-5-76.86 Содержание
ТП 501-5-76.86-ЭС Электроснабжение
ТП 501-5-76.86-ЭС-1 Общие данные
ТП 501-5-76.86-ЭС-2 Размещение оборудования электростанции с агрегатом 2Э16А3
ТП 501-5-76.86-ЭС-3 Размещение оборудования электростанции с агрегатом ДГА-2-24м
ТП 501-5-76.86-ЭС-4 Схема топливо и маслоснабжения электростанции с агрегатом 2Э16А3
ТП 501-5-76.86-ЭС-5 Схема топливо и маслоснабжения электростанции с агрегатом ДГА-2-24м
ТП 501-5-76.86-ЭС-6 Топливо-масляный блок для агрегата ДГА-2-24м
ТП 501-5-76.86-ЭС-7 Бак для воды емкостью 60 л
ТП 501-5-76.86-ЭС-8 Схема электроснабжения поста ЭЦ при установке агрегата 2Э16А3 и панели ПВ1-ЭЦ
ТП 501-5-76.86-ЭС-9 Схема электроснабжения поста ЭЦ при установке агрегата ДГА-2-24м и панели ПВ1-ЭЦК
ТП 501-5-76.86-ЭС-10 Схема увязки и таблица электрических соединений при установке агрегата 2Э16А3 и панели ПВ1-ЭЦ
ТП 501-5-76.86-ЭС-11 Схема увязки питающих устройств при установке агрегата ДГА-2-24м и панели ПВ-ЭЦК
ТП 501-5-76.86-ЭС-12 Таблица электрических соединений при установке агрегата ДГА-2-24м и панели ПВ-ЭЦК
ТП 501-5-76.86-ЭС-13 План раскладки кабелей электростанции с агрегатом 2Э16А3
ТП 501-5-76.86-ЭС-14 План раскладки кабелей электростанции с агрегатом ДГА-2-24м
ТП 501-5-76.86-ЭО Электрическое освещение
ТП 501-5-76.86-ЭО-1 Общие данные
ТП 501-5-76.86-ЭО-2 Спецификация оборудования и материалов
ТП 501-5-76.86-ЭО-3 План осветительной сети 1 этажа
ТП 501-5-76.86-ЭО-4 План осветительной сети 2 этажа
ТП 501-5-76.86-ЭО-5 Расчетная схема гарантированного питания
ТП 501-5-76.86-ЭО-6 Расчетная схема негарантированного питания
ТП 501-5-76.86-ЭМ Силовое электрооборудование
ТП 501-5-76.86-ЭМ-1 Общие данные
ТП 501-5-76.86-ЭМ-2 План силовой сети
ТП 501-5-76.86-ЭМ-3 Кабельный журнал
ТП 501-5-76.86-ЭМ-4 Конструкция для установки аппаратов управления и защиты
ТП 501-5-76.86-ЭМ-5 План заземления электрооборудования и молниезащиты
ТП 501-5-76.86-АОВ Автоматизация отопления и вентиляции
ТП 501-5-76.86-АОВ-1 Общие данные
ТП 501-5-76.86-АОВ-2 Спецификация оборудования и материалов
ТП 501-5-76.86-АОВ-3 Функциональные схемы управления вентиляцией
ТП 501-5-76.86-АОВ-4 Схема электрическая принципиальная управления общей вентиляцией
ТП 501-5-76.86-АОВ-5 Схема электрическая принципиальная управления вентиляцией аккумуляторной и резервной электростанции
ТП 501-5-76.86-АОВ-6 Схема электрическая принципиальная и соединений управления вентиляцией котельной и местной вытяжкой
ТП 501-5-76.86-АОВ-7 Перечень элементов схем управления вентиляцией
ТП 501-5-76.86-АОВ-8 Схема электрическая соединений управления общей вентиляцией
ТП 501-5-76.86-АОВ-9 Схемы электрические соединений управления вентиляцией резервной электростанции и аккумуляторной
ТП 501-5-76.86-АОВ-10 Схема блокировки заряда батарей СЦБ с вентиляцией аккумуляторной
ТП 501-5-76.86-АОВ-11 Схема блокировки заряда батарей связи (±246) с вентиляцией аккумуляторной
ТП 501-5-76.86-АОВ-12 Схема электрическая принципиальная системы пожаротушения
ТП 501-5-76.86-АОВ-13 Схема электрическая соединений системы пожаротушения
ТП 501-5-76.86-АОВ-14 Шкаф управления пожаротушение. Схема электрическая соединений
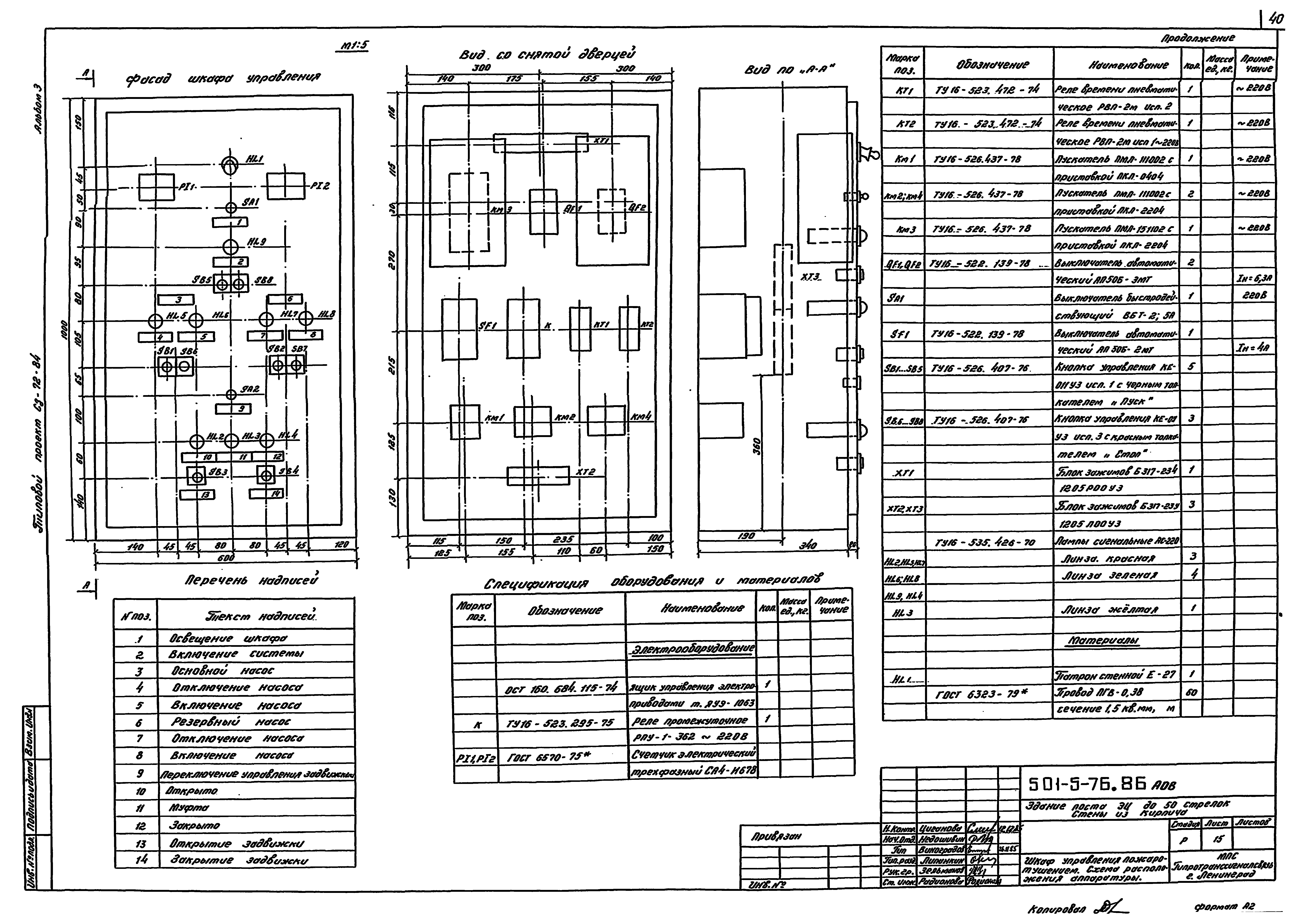
ТП 501-5-76.86-АОВ-15 Шкаф управления пожаротушение. Схема расположения аппаратуры
ТП 501-5-76.86-АОВ-16 План расположения средств автоматизации и прокладки контрольных кабелей
ТП 501-5-76.86-АОВ-17 Кабельный журнал
ТП 501-5-76.86-АОВ-18 Установка кнопки серии КЕ в стене
Разработан: Гипротранссигналсвязь
Утверждён:26.06.1986 Министерство путей сообщения СССР (USSR Ministry of Railroads Д-19496)
Расположен в:Техническая документация Строительство Справочные документы Типовые строительные конструкции, изделия и узлы Общероссийский строительный каталог Защитные сооружения гражданской обороны Типовые проекты защитных сооружений гражданской обороны для объектов промышленности, электроэнергетики, транспорта, связи и складского хозяйства Встроенные помещения, приспосабливаемые под противорадиационные укрытия Противорадиационные укрытия в зданиях и сооружениях транспорта Промышленные предприятия, здания и сооружения Предприятия, здания и сооружения транспорта Транспорт железнодорожный Сигнализация, централизация и блокировка, связь и радио
Типовой проект 501-5-76.86Типовой проект 501-5-76.86Типовой проект 501-5-76.86Типовой проект 501-5-76.86Типовой проект 501-5-76.86Типовой проект 501-5-76.86Типовой проект 501-5-76.86Типовой проект 501-5-76.86Типовой проект 501-5-76.86Типовой проект 501-5-76.86Типовой проект 501-5-76.86Типовой проект 501-5-76.86Типовой проект 501-5-76.86Типовой проект 501-5-76.86Типовой проект 501-5-76.86Типовой проект 501-5-76.86Типовой проект 501-5-76.86Типовой проект 501-5-76.86Типовой проект 501-5-76.86Типовой проект 501-5-76.86Типовой проект 501-5-76.86Типовой проект 501-5-76.86Типовой проект 501-5-76.86Типовой проект 501-5-76.86Типовой проект 501-5-76.86Типовой проект 501-5-76.86Типовой проект 501-5-76.86Типовой проект 501-5-76.86Типовой проект 501-5-76.86Типовой проект 501-5-76.86Типовой проект 501-5-76.86Типовой проект 501-5-76.86Типовой проект 501-5-76.86Типовой проект 501-5-76.86Типовой проект 501-5-76.86Типовой проект 501-5-76.86Типовой проект 501-5-76.86Типовой проект 501-5-76.86Типовой проект 501-5-76.86Типовой проект 501-5-76.86Типовой проект 501-5-76.86Типовой проект 501-5-76.86Типовой проект 501-5-76.86Типовой проект 501-5-76.86

© 2013 Ёшкин Кот :-) Карта сайта