Информационная система
«Ёшкин Кот»

Скачать базу одним архивом
Скачать обновления
История создания базы
Карта сайта

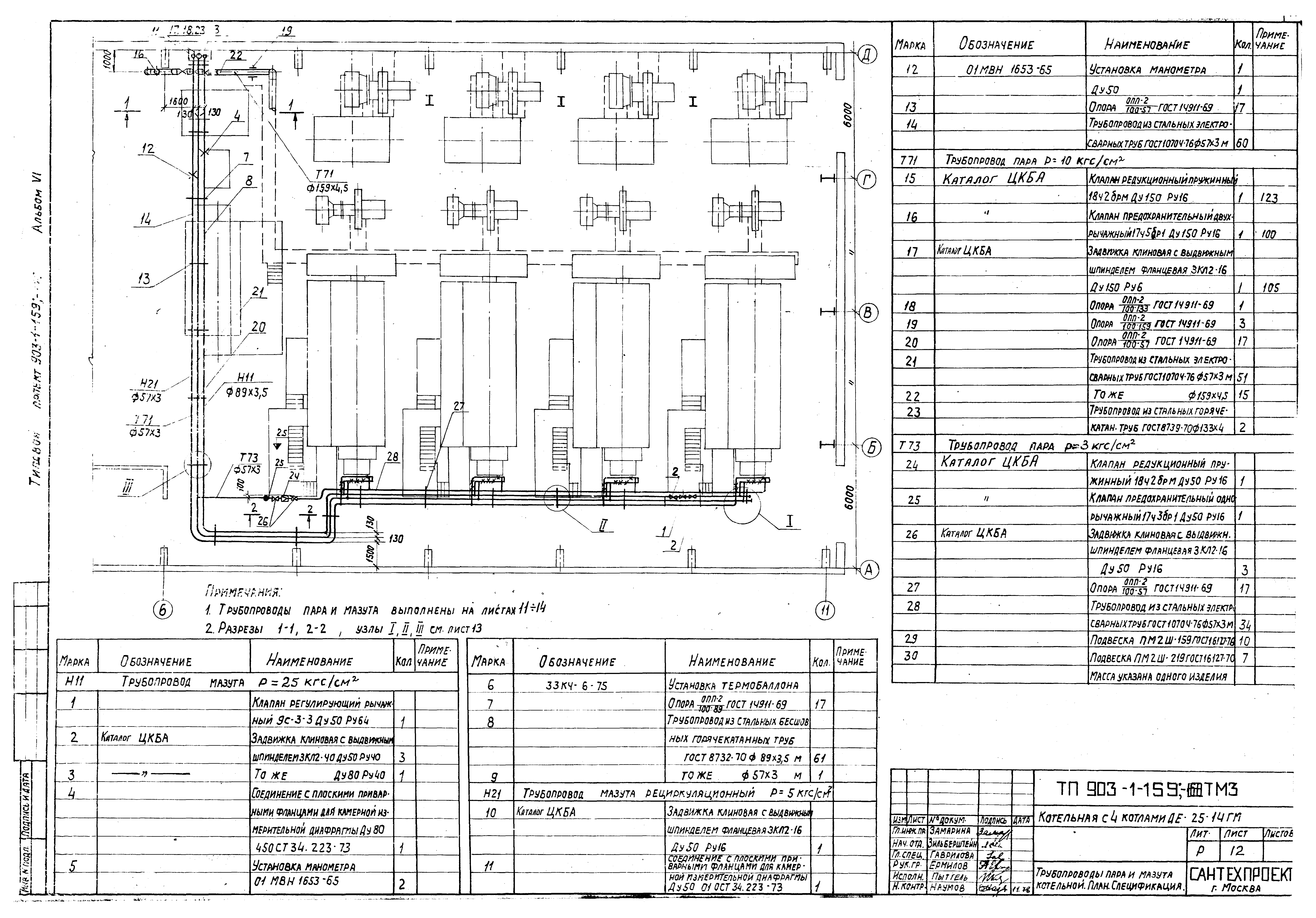
Скачать Типовой проект 903-1-159 Альбом VI. Газооборудование. Паромазутопроводы котельной

Дата актуализации: 10.08.2017

Типовой проект 903-1-159

Альбом VI. Газооборудование. Паромазутопроводы котельной

Обозначение: Типовой проект 903-1-159
Обозначение англ: 903-1-159
Статус:заменен
Название рус.:Альбом VI. Газооборудование. Паромазутопроводы котельной
Дата добавления в базу:01.09.2013
Дата актуализации:05.05.2017
Дата введения:01.07.1990
Разработан: Минмонтажспецстрой СССР
Сантехпроект Госстроя СССР
Проектный институт №2
ЦНИИпроектстальконструкция Госстроя
Утверждён:18.05.1979 Сантехниипроект (76)
Расположен в:Техническая документация Строительство Справочные документы Типовые строительные конструкции, изделия и узлы Общероссийский строительный каталог Промышленные предприятия, здания и сооружения Здания и сооружения санитарно-технические Теплоснабжение Котельные установки Открытые системы теплоснабжения Топливо - газ и мазут
Чем заменён:
Типовой проект 903-1-159Типовой проект 903-1-159Типовой проект 903-1-159Типовой проект 903-1-159Типовой проект 903-1-159Типовой проект 903-1-159Типовой проект 903-1-159Типовой проект 903-1-159Типовой проект 903-1-159Типовой проект 903-1-159Типовой проект 903-1-159Типовой проект 903-1-159Типовой проект 903-1-159Типовой проект 903-1-159Типовой проект 903-1-159Типовой проект 903-1-159Типовой проект 903-1-159

© 2013 Ёшкин Кот :-) Карта сайта