Информационная система
«Ёшкин Кот»

Скачать базу одним архивом
Скачать обновления
История создания базы
Карта сайта

Скачать Типовой проект 903-1-154 Альбом V. Сантехнические устройства. Тепловые сети

Дата актуализации: 10.08.2017

Типовой проект 903-1-154

Альбом V. Сантехнические устройства. Тепловые сети

Обозначение: Типовой проект 903-1-154
Обозначение англ: 903-1-154
Статус:действует
Название рус.:Альбом V. Сантехнические устройства. Тепловые сети
Дата добавления в базу:01.09.2013
Дата актуализации:05.05.2017
Оглавление:Содержание альбома
Отопление и вентиляция
   Общие данные
   Планы на отм. 0.000; 3.600 и 4.200. Разрез 1-1
   Схемы
   Отопительно-вентиляционные установки П1, В2
   Склад серной кислоты. План на отм. 0.000. Разрез 1-1
   Склад серной кислоты. Отопительно-вентиляционная установка П3
Водоснабжение и канализация
   Общие данные
   План на отм. 0.000 и - 0.150
   План на отм. 0.000 и - 0.150 (открытая и закрытая установка дымососов)
   План на отм. 0.000. План кровли (открытая и закрытая установка дымососов)
   План на отм. 0.000
   Схема системы В1
   Схема систем Т3, В5
   Схема системы В6
   Схема систем К1, К2
   Схема систем К2, К13, К14
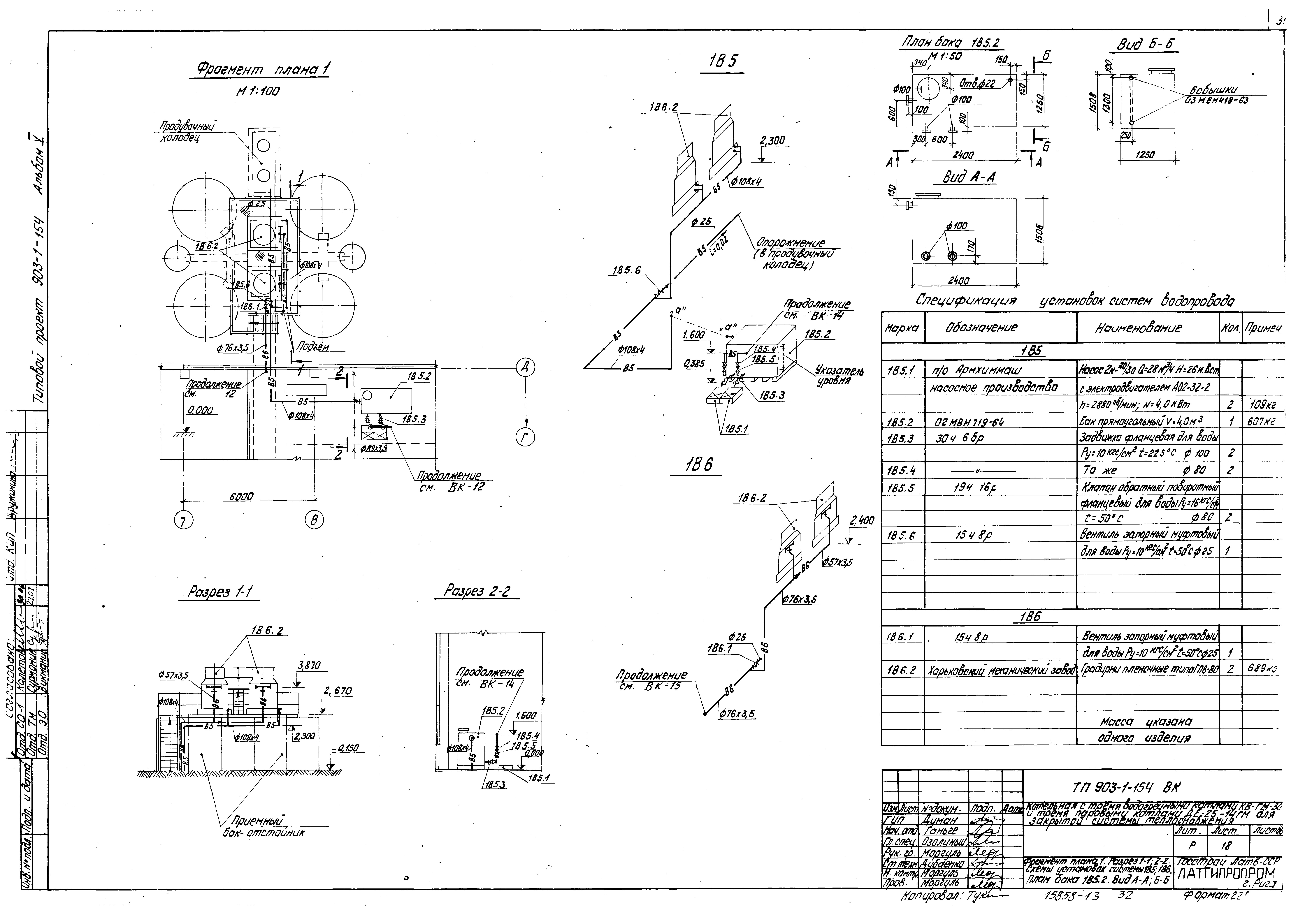
   Фрагмент плана 1. Разрез 1-1, 2-2. Схемы установок систем 1В5, 1В6. План бака 1В5.2. Вид А-А, Б-Б
Чертежи основного комплекта марки НВК
   Общие данные
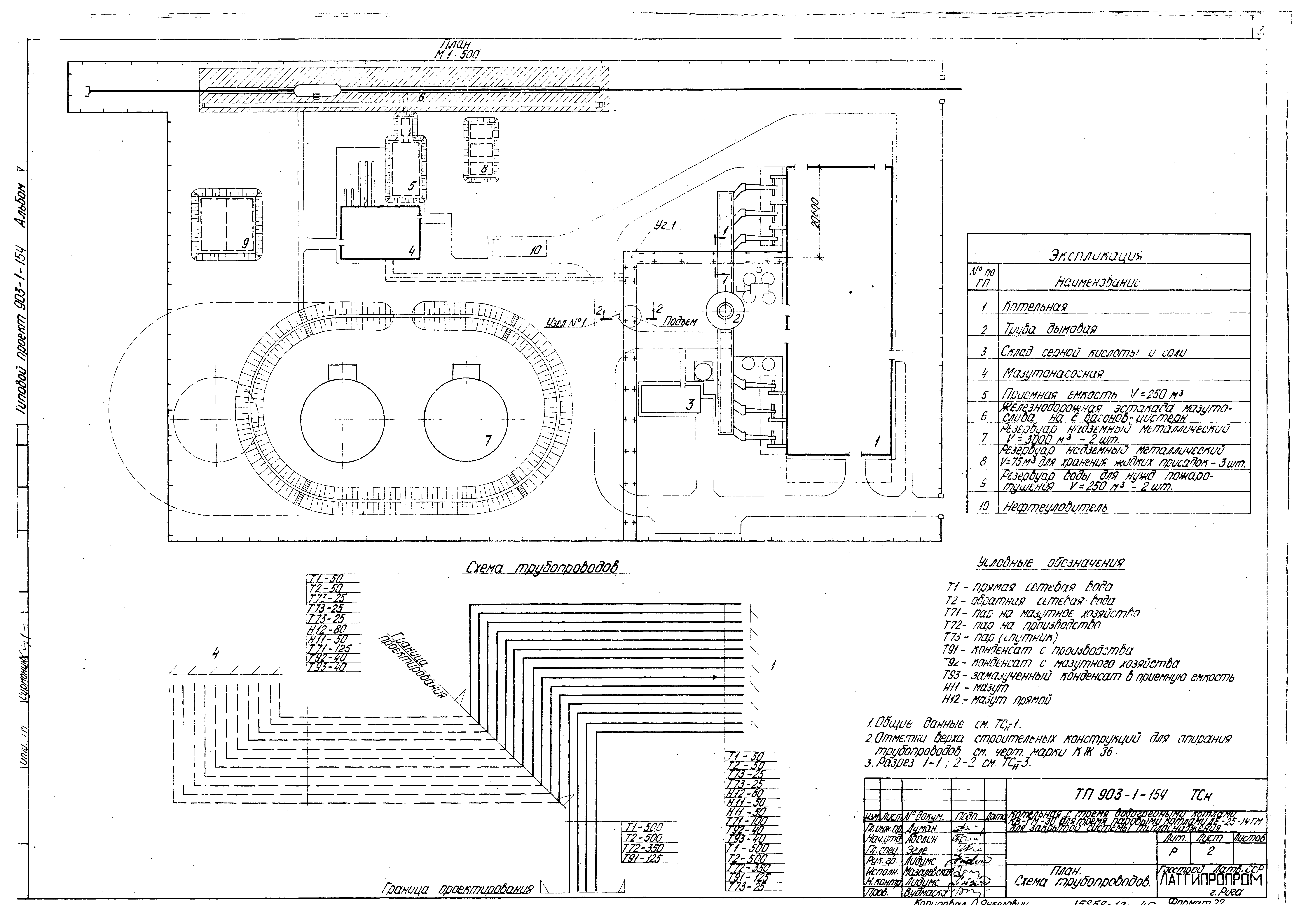
   Генплан с сетями водопровода и канализации
Внутренние тепловые сети
   Общие данные
   Тепловой узел в котельной. План. Разрез А-А. Подключение теплового узла
   Тепловой узел в котельной. Разрез Б-Б. Схема теплового узла. Монтажная спецификация
   Тепловой узел в складе серной кислоты. План. Разрез 1-1. Монтажная спецификация
Наружные тепловые сети
   Общие данные
   План
   Разрезы 1-1, 2-2. Узел №1
Разработан: Латгипропром
Утверждён:17.10.1977 Главпромстройпроект Госстроя СССР (71)
Расположен в:Техническая документация Строительство Справочные документы Типовые строительные конструкции, изделия и узлы Общероссийский строительный каталог Промышленные предприятия, здания и сооружения Здания и сооружения санитарно-технические Теплоснабжение Котельные установки Закрытые системы теплоснабжения Топливо - газ и мазут
Типовой проект 903-1-154Типовой проект 903-1-154Типовой проект 903-1-154Типовой проект 903-1-154Типовой проект 903-1-154Типовой проект 903-1-154Типовой проект 903-1-154Типовой проект 903-1-154Типовой проект 903-1-154Типовой проект 903-1-154Типовой проект 903-1-154Типовой проект 903-1-154Типовой проект 903-1-154Типовой проект 903-1-154Типовой проект 903-1-154Типовой проект 903-1-154Типовой проект 903-1-154Типовой проект 903-1-154Типовой проект 903-1-154Типовой проект 903-1-154Типовой проект 903-1-154Типовой проект 903-1-154Типовой проект 903-1-154Типовой проект 903-1-154Типовой проект 903-1-154Типовой проект 903-1-154Типовой проект 903-1-154Типовой проект 903-1-154Типовой проект 903-1-154Типовой проект 903-1-154Типовой проект 903-1-154Типовой проект 903-1-154Типовой проект 903-1-154Типовой проект 903-1-154Типовой проект 903-1-154Типовой проект 903-1-154Типовой проект 903-1-154Типовой проект 903-1-154Типовой проект 903-1-154Типовой проект 903-1-154

© 2013 Ёшкин Кот :-) Карта сайта