Информационная система
«Ёшкин Кот»

Скачать базу одним архивом
Скачать обновления
История создания базы
Карта сайта

Скачать Типовой проект 903-1-220.86 Альбом 4. Часть 2. Чертежи нетиповых технологических конструкций. Технологическое оборудование

Дата актуализации: 10.08.2017

Типовой проект 903-1-220.86

Альбом 4. Часть 2. Чертежи нетиповых технологических конструкций. Технологическое оборудование

Обозначение: Типовой проект 903-1-220.86
Обозначение англ: 903-1-220.86
Статус:действует
Название рус.:Альбом 4. Часть 2. Чертежи нетиповых технологических конструкций. Технологическое оборудование
Дата добавления в базу:01.09.2013
Дата актуализации:05.05.2017
Оглавление:ТП 903-1-220.86 Д21В.133.000 Воздуховод
ТП 903-1-220.86 Д21В.133.010 Короб
ТП 903-1-220.86 Д21В.133.015 Стенка
ТП 903-1-220.86 Д21В.133.000 ВП Воздуховод. Ведомость покупных изделий
ТП 903-1-220.86 Д21В.133.000 СБ Воздуховод
ТП 903-1-220.86 Д21В.133.010 СБ Короб
ТП 903-1-220.86 Д21В.133.020 СБ Короб
ТП 903-1-220.86 Д21В.133.020 Короб
ТП 903-1-220.86 Д21В.133.030 Короб
ТП 903-1-220.86 Д21В.133.022 Стенка
ТП 903-1-220.86 Д21В.133.023 Стенка
ТП 903-1-220.86 Д21В.133.030 СБ Короб
ТП 903-1-220.86 Д21В.133.024 Стенка
ТП 903-1-220.86 Д21В.133.025 Стенка
ТП 903-1-220.86 Д21В.133.040 Патрубок заборный
ТП 903-1-220.86 Д21В.133.029 Планка
ТП 903-1-220.86 Д21В.133.040 СБ Патрубок заборный
ТП 903-1-220.86 Д21В.133.050 Короб
ТП 903-1-220.86 Д21В.133.050 СБ Короб
ТП 903-1-220.86 Д21В.133.034 Стенка
ТП 903-1-220.86 Д21В.133.042 Стенка
ТП 903-1-220.86 Д21В.133.045 Диск
ТП 903-1-220.86 Д21В.133.046 Стенка
ТП 903-1-220.86 Д21В.133.060 Короб
ТП 903-1-220.86 Д21В.133.060 СБ Короб
ТП 903-1-220.86 Д21В.133.047 Стенка
ТП 903-1-220.86 Д21В.133.070 Патрубок заборный
ТП 903-1-220.86 Д21В.133.057 Вал
ТП 903-1-220.86 Д21В.133.070 СБ Патрубок заборный
ТП 903-1-220.86 Д21В.133.058 Планка
ТП 903-1-220.86 Д21В.133.080 Заслонка
ТП 903-1-220.86 Д21В.133.080 СБ Заслонка
ТП 903-1-220.86 Д21В.133.064 Накладка
ТП 903-1-220.86 Д21В.133.065 Ребро
ТП 903-1-220.86 Д21В.133.066 Лист
ТП 903-1-220.86 Д21В.133.090 Корпус
ТП 903-1-220.86 Д21В.133.090 СБ Корпус
ТП 903-1-220.86 Д21В.133.069 Стенка
ТП 903-1-220.86 Д21В.133.071 Ребро
ТП 903-1-220.86 Д21В.133.073 Ребро
ТП 903-1-220.86 Д21В.133.074 Ребро
ТП 903-1-220.86 Д21В.133.077 Стенка
ТП 903-1-220.86 Д21В.133.076 Стенка
ТП 903-1-220.86 Д21В.133.078 Стенка
ТП 903-1-220.86 Д21В.133.084 Накладка
ТП 903-1-220.86 Д21В.133.100 Короб
ТП 903-1-220.86 Д21В.133.091 Стенка
ТП 903-1-220.86 Д21В.133.093 Стенка
ТП 903-1-220.86 Д21В.133.100 СБ Короб
ТП 903-1-220.86 Д21В.133.110 Карман всасывающий
ТП 903-1-220.86 Д21В.133.120 Корпус
ТП 903-1-220.86 Д21В.133.099 Ребро
ТП 903-1-220.86 Д21В.133.110 СБ Карман всасывающий
ТП 903-1-220.86 Д21В.133.120 СБ Корпус
ТП 903-1-220.86 Д21В.133.097 Конус
ТП 903-1-220.86 Д21В.133.098 Вставка
ТП 903-1-220.86 Д21В.133.101 Стенка
ТП 903-1-220.86 Д21В.133.102 Стенка
ТП 903-1-220.86 Д21В.133.105 Стенка
ТП 903-1-220.86 Д21В.133.103 Ребро
ТП 903-1-220.86 Д21В.133.106 Ребро
ТП 903-1-220.86 Д21В.133.107 Труба
ТП 903-1-220.86 Д23Д.286.000 Опора
ТП 903-1-220.86 Д23Д.286.000 СБ Опора
ТП 903-1-220.86 Д23Д.286.002 Ребро
ТП 903-1-220.86 Д23Д.286.003 Ребро
ТП 903-1-220.86 Д22А.020.000 Люк к фильтру
ТП 903-1-220.86 Д22А.020.000 СБ Люк к фильтру
ТП 903-1-220.86 Д22А.020.001 Прокладка
ТП 903-1-220.86 Д22А.020.010 Крышка
ТП 903-1-220.86 Д22А.020.010 СБ Крышка
ТП 903-1-220.86 Д22А.020.003 Основание
ТП 903-1-220.86 Д22А.020.020 Патрубок
ТП 903-1-220.86 Д22А.020.020 СБ Патрубок
ТП 903-1-220.86 Д22А.020.004 Обечайка
ТП 903-1-220.86 Д22А.020.005 Фланец
ТП 903-1-220.86 Д22В.014.000 Стойки под бак-мерник кислоты
ТП 903-1-220.86 Д22В.014.000 СБ Стойки под бак-мерник кислоты
ТП 903-1-220.86 Д22В.014.002 Косынка
ТП 903-1-220.86 Д22Г.035.000 Шкаф для прибора давления
ТП 903-1-220.86 Д22Г.035.000 СБ Шкаф для прибора давления
ТП 903-1-220.86 Д22Г.035.001 Ушко
ТП 903-1-220.86 Д22Г.035.002 Петля
ТП 903-1-220.86 Д22Г.035.003 Ушко
ТП 903-1-220.86 Д22Г.035.010 Дверь
ТП 903-1-220.86 Д22Г.035.010 СБ Дверь
ТП 903-1-220.86 Д22Г.035.004 Каркас
ТП 903-1-220.86 Д22Г.035.020 Корпус
ТП 903-1-220.86 Д22Г.035.007 Лист
ТП 903-1-220.86 Д22Г.035.020 СБ Корпус
ТП 903-1-220.86 Д22Г.043.000 Стеллаж для бутылей кислоты
ТП 903-1-220.86 Д22Г.043.000 СБ Стеллаж для бутылей кислоты
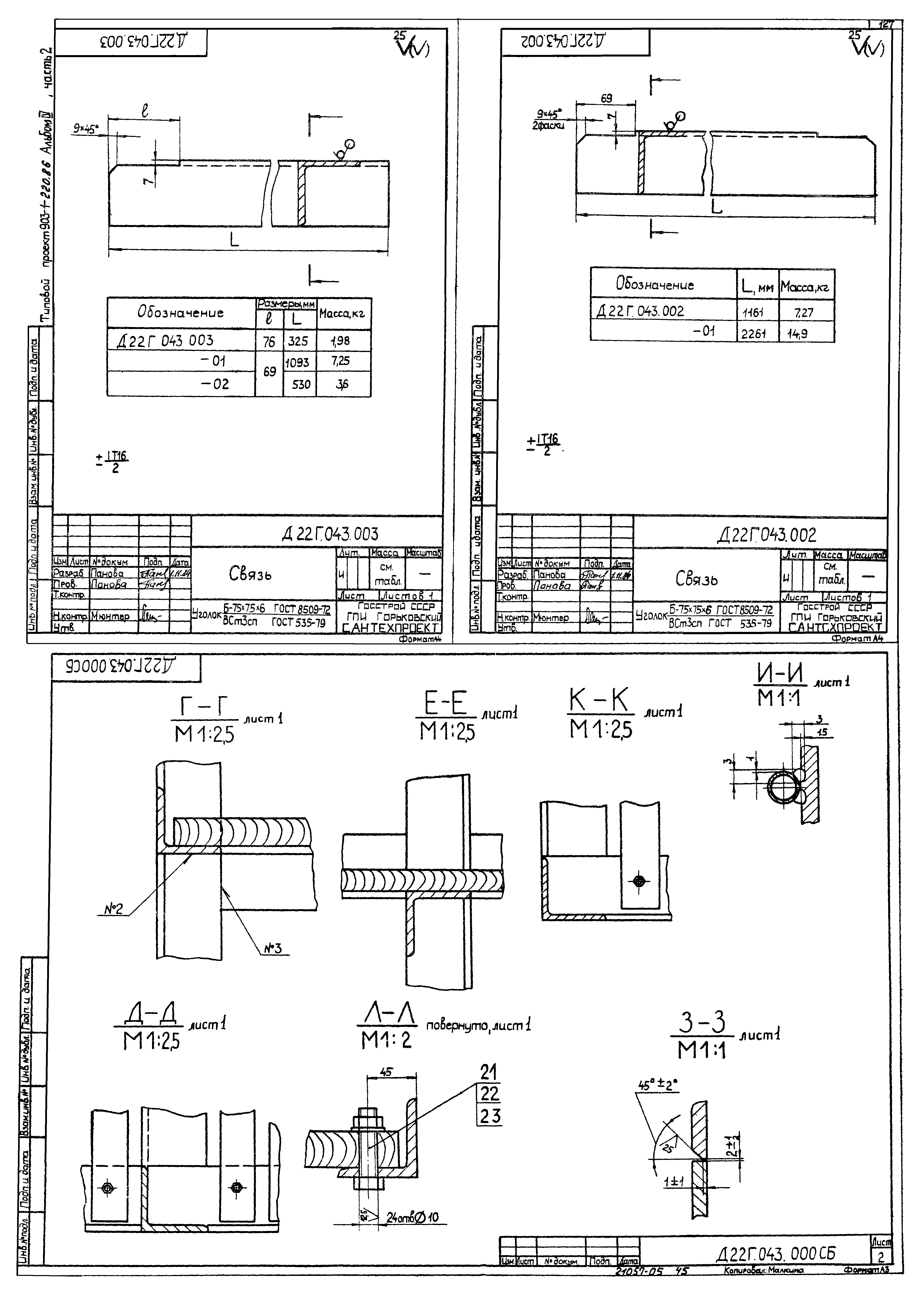
ТП 903-1-220.86 Д22Г.043.002 Связь
ТП 903-1-220.86 Д22Г.043.003 Связь
ТП 903-1-220.86 Д22Г.043.004 Связь
ТП 903-1-220.86 Д22Г.043.006 Связь
ТП 903-1-220.86 Д22Г.043.013 Доска
ТП 903-1-220.86 Д22Г.055.000 СБ Устройство для задержания герметика
ТП 903-1-220.86 Д22Г.055.000 Устройство для задержания герметика
ТП 903-1-220.86 Д22Г.055.007 Лист
ТП 903-1-220.86 Д23А.023.000 Смеситель воздуха
ТП 903-1-220.86 Д23А.023.000 СБ Смеситель воздуха
ТП 903-1-220.86 Д23А.023.000 ВП Смеситель воздуха. Ведомость покупных изделий
ТП 903-1-220.86 Д23А.023.010 Переход
ТП 903-1-220.86 Д23А.023.010 СБ Переход
ТП 903-1-220.86 Д23А.023.002 Конус
ТП 903-1-220.86 Д23А.023.020 Корпус
ТП 903-1-220.86 Д23А.023.020 СБ Корпус
ТП 903-1-220.86 Д23А.023.030 СБ Разделитель
ТП 903-1-220.86 Д23А.023.030 Разделитель
ТП 903-1-220.86 Д23А.023.006 Диск
ТП 903-1-220.86 Д23А.023.007 Стержень
ТП 903-1-220.86 Д23А.024.000 Смеситель кислоты
ТП 903-1-220.86 Д23А.024.000 СБ Смеситель кислоты
ТП 903-1-220.86 Д23А.024.001 Прокладка
ТП 903-1-220.86 Д23А.024.010 Заглушка с трубкой
ТП 903-1-220.86 Д23А.024.004 Фланец
ТП 903-1-220.86 Д23А.024.002 Трубка
ТП 903-1-220.86 Д23А.024.003 3аглушка
ТП 903-1-220.86 Д23А.024.020 Смеситель
ТП 903-1-220.86 Д23А.024.020 СБ Смеситель
ТП 903-1-220.86 Д23А.024.005 Труба
ТП 903-1-220.86 Д23А.024.006 Труба
ТП 903-1-220.86 Д23Б.014.000 Приспособление для очистки калорифера
ТП 903-1-220.86 Д23Б.014.002 Патрубок
ТП 903-1-220.86 Д23Б.014.000 СБ Приспособление для очистки калорифера
ТП 903-1-220.86 Д23Б.014.001 Сопло
ТП 903-1-220.86 Д23Б.014.003 Хомут
ТП 903-1-220.86 Д23Б.014.004 Вкладыш
ТП 903-1-220.86 Д23Б.014.005 Ниппель
ТП 903-1-220.86 Д23Б.014.010 Смеситель
ТП 903-1-220.86 Д23Б.014.010 СБ Смеситель
ТП 903-1-220.86 Д23Б.014.006 Трубка
ТП 903-1-220.86 Д23Б.014.007 Трубка
ТП 903-1-220.86 Д23Б.016.000 Декарбонизатор
ТП 903-1-220.86 Д23Б.016.000 СБ Декарбонизатор
ТП 903-1-220.86 Д23Б.016.000 ВС Декарбонизатор. Ведомость спецификации
ТП 903-1-220.86 Д23Б.016.000 ВП Декарбонизатор. Ведомость покупных изделий
ТП 903-1-220.86 Д23Б.016.001 Прокладка
ТП 903-1-220.86 Д23Б.016.003 Обечайка
ТП 903-1-220.86 Д23Б.016.010 Царга нижняя
ТП 903-1-220.86 Д23Б.016.004 Уголок
ТП 903-1-220.86 Д23Б.016.010 СБ Царга нижняя
ТП 903-1-220.86 Д23Б.016.002 Конус
ТП 903-1-220.86 Д23Б.016.011 Обечайка
ТП 903-1-220.86 Д23Б.016.005 Уголок
ТП 903-1-220.86 Д23Б.016.014 Накладка
ТП 903-1-220.86 Д23Б.016.016 Накладка
ТП 903-1-220.86 Д23Б.016.017 Труба
ТП 903-1-220.86 Д23Б.016.018 Патрубок
ТП 903-1-220.86 Д23Б.016.019 Накладка
ТП 903-1-220.86 Д23Б.016.021 Лист
ТП 903-1-220.86 Д23Б.016.022 Лист
ТП 903-1-220.86 Д23Б.016.023 Фланец
ТП 903-1-220.86 Д23Б.016.024 Косынка
ТП 903-1-220.86 Д23Б.016.026 Уголок
ТП 903-1-220.86 Д23Б.016.020 Царга
ТП 903-1-220.86 Д23Б.016.020 СБ Царга
ТП 903-1-220.86 Д23Б.016.030 Решетка
ТП 903-1-220.86 Д23Б.016.030 СБ Решетка
ТП 903-1-220.86 Д23Б.016.040 Коробка распределительная
ТП 903-1-220.86 Д23Б.016.034 Трубка
ТП 903-1-220.86 Д23Б.016.035 Трубка
ТП 903-1-220.86 Д23Б.016.040 СБ Коробка распределительная
ТП 903-1-220.86 Д23Б.016.036 Обечайка
ТП 903-1-220.86 Д23Б.016.050 Крышка
ТП 903-1-220.86 Д23Б.016.050 СБ Крышка
ТП 903-1-220.86 Д23Б.016.038 Крышка
Разработан: Горьковский Сантехпроект
Утверждён:07.09.1985 Минсельхозмаш СССР (USSR Minselkhozmash 60-ЭГ)
Расположен в:Техническая документация Строительство Справочные документы Типовые строительные конструкции, изделия и узлы Общероссийский строительный каталог Промышленные предприятия, здания и сооружения Здания и сооружения санитарно-технические Теплоснабжение Котельные установки Закрытые системы теплоснабжения Топливо - газ, резерв - мазут
Типовой проект 903-1-220.86Типовой проект 903-1-220.86Типовой проект 903-1-220.86Типовой проект 903-1-220.86Типовой проект 903-1-220.86Типовой проект 903-1-220.86Типовой проект 903-1-220.86Типовой проект 903-1-220.86Типовой проект 903-1-220.86Типовой проект 903-1-220.86Типовой проект 903-1-220.86Типовой проект 903-1-220.86Типовой проект 903-1-220.86Типовой проект 903-1-220.86Типовой проект 903-1-220.86Типовой проект 903-1-220.86Типовой проект 903-1-220.86Типовой проект 903-1-220.86Типовой проект 903-1-220.86Типовой проект 903-1-220.86Типовой проект 903-1-220.86Типовой проект 903-1-220.86Типовой проект 903-1-220.86Типовой проект 903-1-220.86Типовой проект 903-1-220.86Типовой проект 903-1-220.86Типовой проект 903-1-220.86Типовой проект 903-1-220.86Типовой проект 903-1-220.86Типовой проект 903-1-220.86Типовой проект 903-1-220.86Типовой проект 903-1-220.86Типовой проект 903-1-220.86Типовой проект 903-1-220.86Типовой проект 903-1-220.86Типовой проект 903-1-220.86Типовой проект 903-1-220.86Типовой проект 903-1-220.86Типовой проект 903-1-220.86Типовой проект 903-1-220.86Типовой проект 903-1-220.86Типовой проект 903-1-220.86Типовой проект 903-1-220.86Типовой проект 903-1-220.86Типовой проект 903-1-220.86Типовой проект 903-1-220.86Типовой проект 903-1-220.86Типовой проект 903-1-220.86Типовой проект 903-1-220.86Типовой проект 903-1-220.86Типовой проект 903-1-220.86Типовой проект 903-1-220.86Типовой проект 903-1-220.86Типовой проект 903-1-220.86Типовой проект 903-1-220.86Типовой проект 903-1-220.86Типовой проект 903-1-220.86Типовой проект 903-1-220.86Типовой проект 903-1-220.86Типовой проект 903-1-220.86Типовой проект 903-1-220.86Типовой проект 903-1-220.86Типовой проект 903-1-220.86Типовой проект 903-1-220.86Типовой проект 903-1-220.86Типовой проект 903-1-220.86Типовой проект 903-1-220.86Типовой проект 903-1-220.86Типовой проект 903-1-220.86Типовой проект 903-1-220.86Типовой проект 903-1-220.86Типовой проект 903-1-220.86Типовой проект 903-1-220.86Типовой проект 903-1-220.86

© 2013 Ёшкин Кот :-) Карта сайта