Информационная система
«Ёшкин Кот»

Скачать базу одним архивом
Скачать обновления
История создания базы
Карта сайта

Скачать Типовой проект 903-1-204 Альбом 9.6. Котельная. Автоматизация

Дата актуализации: 10.08.2017

Типовой проект 903-1-204

Альбом 9.6. Котельная. Автоматизация

Обозначение: Типовой проект 903-1-204
Обозначение англ: 903-1-204
Статус:действует
Название рус.:Альбом 9.6. Котельная. Автоматизация
Дата добавления в базу:01.09.2013
Дата актуализации:05.05.2017
Дата введения:01.07.1984
Оглавление:ТП 903-1-204 Содержание альбома
ТП 903-1-204-АТМ10-1 Общие данные (начало)
ТП 903-1-204-АТМ10-1 Общие данные (окончание)
ТП 903-1-204-АТМ10-2 Вспомогательное оборудование водогрейной части. Схема функциональная автоматизации
ТП 903-1-204-АТМ10-3 Вспомогательное оборудование водогрейной части. Схема электрическая принципиальная регулятора температуры
ТП 903-1-204-АТМ10-4 Вспомогательное оборудование водогрейной части. Схема электрическая принципиальная регулятора подпитки
ТП 903-1-204-АТМ10-5 Вспомогательное оборудование водогрейной части. Схема электрическая принципиальная регулятора уровня
ТП 903-1-204-АТМ10-6 Вспомогательное оборудование водогрейной части. Схема электрическая принципиальная питания
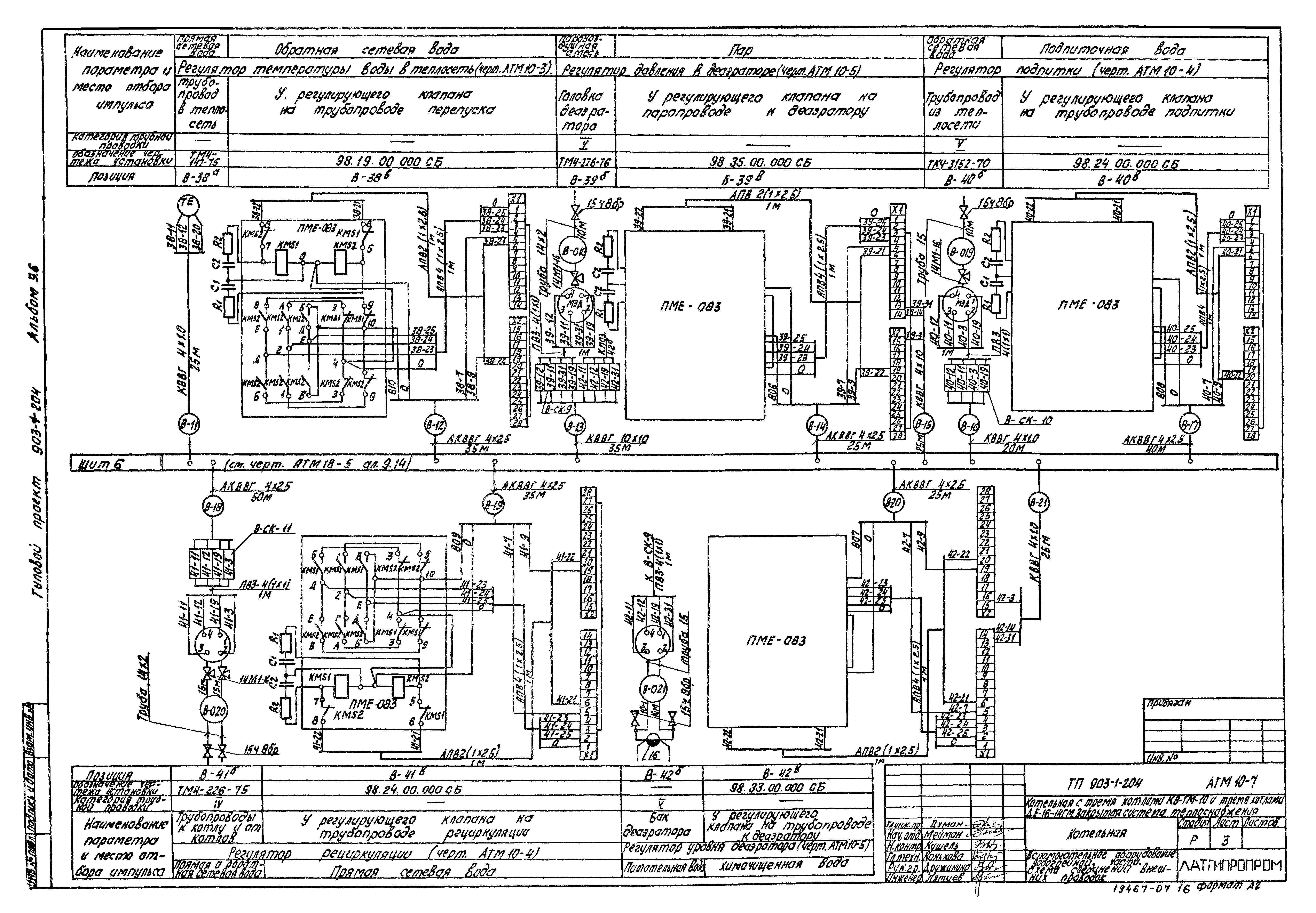
ТП 903-1-204-АТМ10-7 Вспомогательное оборудование водогрейной части. Схема соединений внешних проводок
ТП 903-1-204-АТМ10-8 Вспомогательное оборудование водогрейной части. Схема подключения внешних проводок
ТП 903-1-204-АТМ10-9 Вспомогательное оборудование паровой части. Схема функциональная автоматизации
ТП 903-1-204-АТМ10-10 Вспомогательное оборудование паровой части. Схема электрическая принципиальная технологической сигнализации
ТП 903-1-204-АТМ10-11 Вспомогательное оборудование паровой части. Схема электрическая принципиальная питания
ТП 903-1-204-АТМ10-12 Вспомогательное оборудование паровой части. Схема электрическая принципиальная питания щитов КИП
ТП 903-1-204-АТМ10-13 Вспомогательное оборудование паровой части. Схема соединений внешних проводок
ТП 903-1-204-АТМ10-14 Вспомогательное оборудование паровой части. Схема подключения внешних проводок
ТП 903-1-204-АТМ10-15 Общие газомазутопроводы котельной. Схема функциональная автоматизации
ТП 903-1-204-АТМ10-16 Общие газомазутопроводы котельной. Схема соединений внешних проводок
ТП 903-1-204-АТМ10-17 ГРУ. Схемы функциональная соединений внешних проводок
ТП 903-1-204-АТМ10-18 Насосная оборотного водоснабжения. Схемы автоматизации
ТП 903-1-204-АТМ10-19 Приточная установка П1. Схема функциональная и соединений внешних проводок
ТП 903-1-204-АТМ10-20 Приточная установка П1. Схема электрическая принципиальная управления
ТП 903-1-204-АТМ10-21 Пожарная сигнализация. Схема внешних проводок
ТП 903-1-204-АТМ10-22 Пожарная сигнализация. План расположения
ТП 903-1-204-АТМ10-23 План расположения
Разработан: Латгипропром
Утверждён:10.11.1983 Главпромстройпроект Госстроя СССР (41)
Расположен в:Техническая документация Строительство Справочные документы Типовые строительные конструкции, изделия и узлы Общероссийский строительный каталог Промышленные предприятия, здания и сооружения Здания и сооружения санитарно-технические Теплоснабжение Котельные установки Закрытые системы теплоснабжения Топливо - газ и мазут
Типовой проект 903-1-204Типовой проект 903-1-204Типовой проект 903-1-204Типовой проект 903-1-204Типовой проект 903-1-204Типовой проект 903-1-204Типовой проект 903-1-204Типовой проект 903-1-204Типовой проект 903-1-204Типовой проект 903-1-204Типовой проект 903-1-204Типовой проект 903-1-204Типовой проект 903-1-204Типовой проект 903-1-204Типовой проект 903-1-204Типовой проект 903-1-204Типовой проект 903-1-204Типовой проект 903-1-204Типовой проект 903-1-204Типовой проект 903-1-204Типовой проект 903-1-204Типовой проект 903-1-204Типовой проект 903-1-204Типовой проект 903-1-204Типовой проект 903-1-204Типовой проект 903-1-204Типовой проект 903-1-204Типовой проект 903-1-204Типовой проект 903-1-204Типовой проект 903-1-204Типовой проект 903-1-204Типовой проект 903-1-204Типовой проект 903-1-204Типовой проект 903-1-204Типовой проект 903-1-204Типовой проект 903-1-204Типовой проект 903-1-204Типовой проект 903-1-204Типовой проект 903-1-204Типовой проект 903-1-204

© 2013 Ёшкин Кот :-) Карта сайта