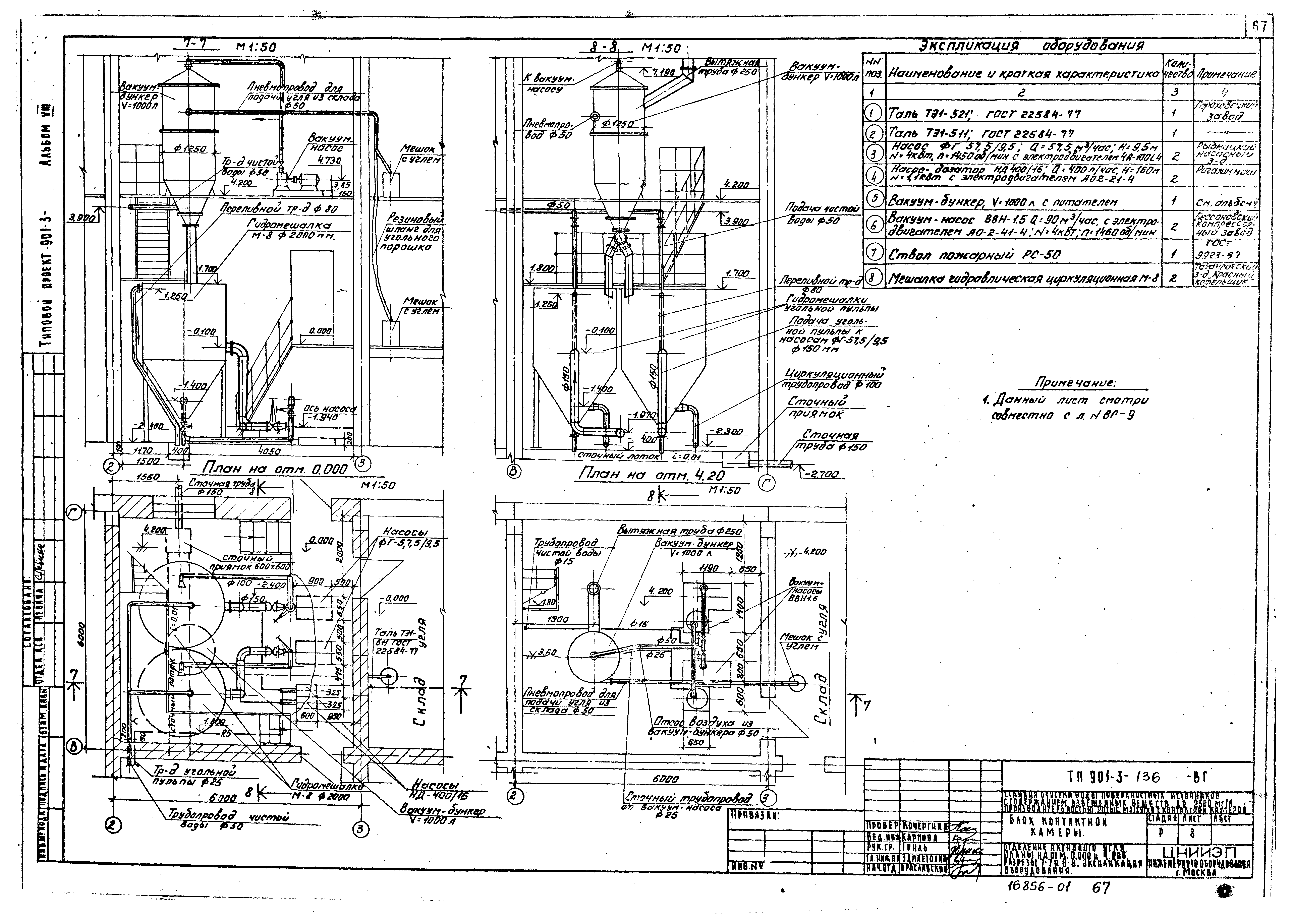
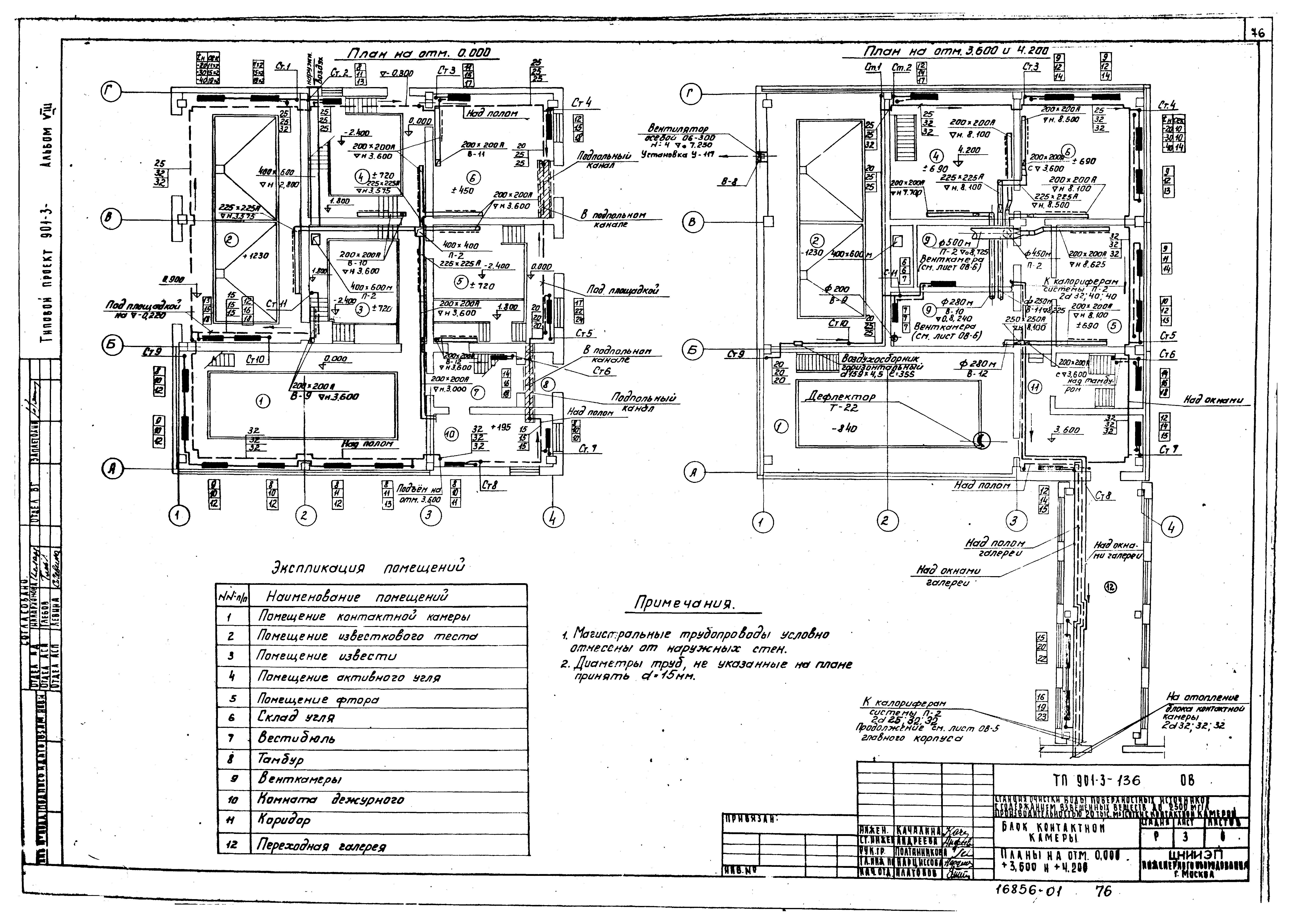
Скачать Типовой проект 901-3-136 Альбом VIII. Архитектурно-строительная, технологическая, санитарно-техническая и электротехническая части, связь и сигнализацияДата актуализации: 10.08.2017 Типовой проект 901-3-136
Альбом VIII. Архитектурно-строительная, технологическая, санитарно-техническая и электротехническая части, связь и сигнализацияОбозначение: | Типовой проект 901-3-136 | Обозначение англ: | 901-3-136 | Статус: | не действует | Название рус.: | Альбом VIII. Архитектурно-строительная, технологическая, санитарно-техническая и электротехническая части, связь и сигнализация | Дата добавления в базу: | 01.09.2013 | Дата актуализации: | 05.05.2017 | Разработан: | ЦНИИЭП иженерного оборудования
| Утверждён: | 27.05.1976 Госгражданстрой (Gosgrazhdanstroy 118)
| Расположен в: |
| Чем заменён: | |
                                                                                                  
|