Информационная система
«Ёшкин Кот»

Скачать базу одним архивом
Скачать обновления
История создания базы
Карта сайта

Скачать Типовой проект 904-1-3/69 Альбом IV. Архитектурно-строительная и сантехническая части

Дата актуализации: 10.08.2017

Типовой проект 904-1-3/69

Альбом IV. Архитектурно-строительная и сантехническая части

Обозначение: Типовой проект 904-1-3/69
Обозначение англ: 904-1-3/69
Статус:не действует
Название рус.:Альбом IV. Архитектурно-строительная и сантехническая части
Дата добавления в базу:01.09.2013
Дата актуализации:05.05.2017
Оглавление:I Архитектурно-строительная часть
ТП 904-1-3/69 Содержание альбома
ТП 904-1-3/69 Пояснительная записка
ТП 904-1-3/69-АР Чертежи марки АР
ТП 904-1-3/69-АР-1 Заглавный лист
ТП 904-1-3/69-АР-2 План на отм. ±0.000;-3.000;3.600. Экспликация проемов ворот и дверей
ТП 904-1-3/69-АР-3 Элемент плана №1. Разрезы 1-1÷3-3
ТП 904-1-3/69-АР-4 Фасады. План кровли. Монтажная схема заполнения оконных проемов. Спецификация перемычек и изделий на ограду
ТП 904-1-3/69-АР-5 Экспликация полов
ТП 904-1-3/69-АР-6 Таблица внутренних отделочных работ
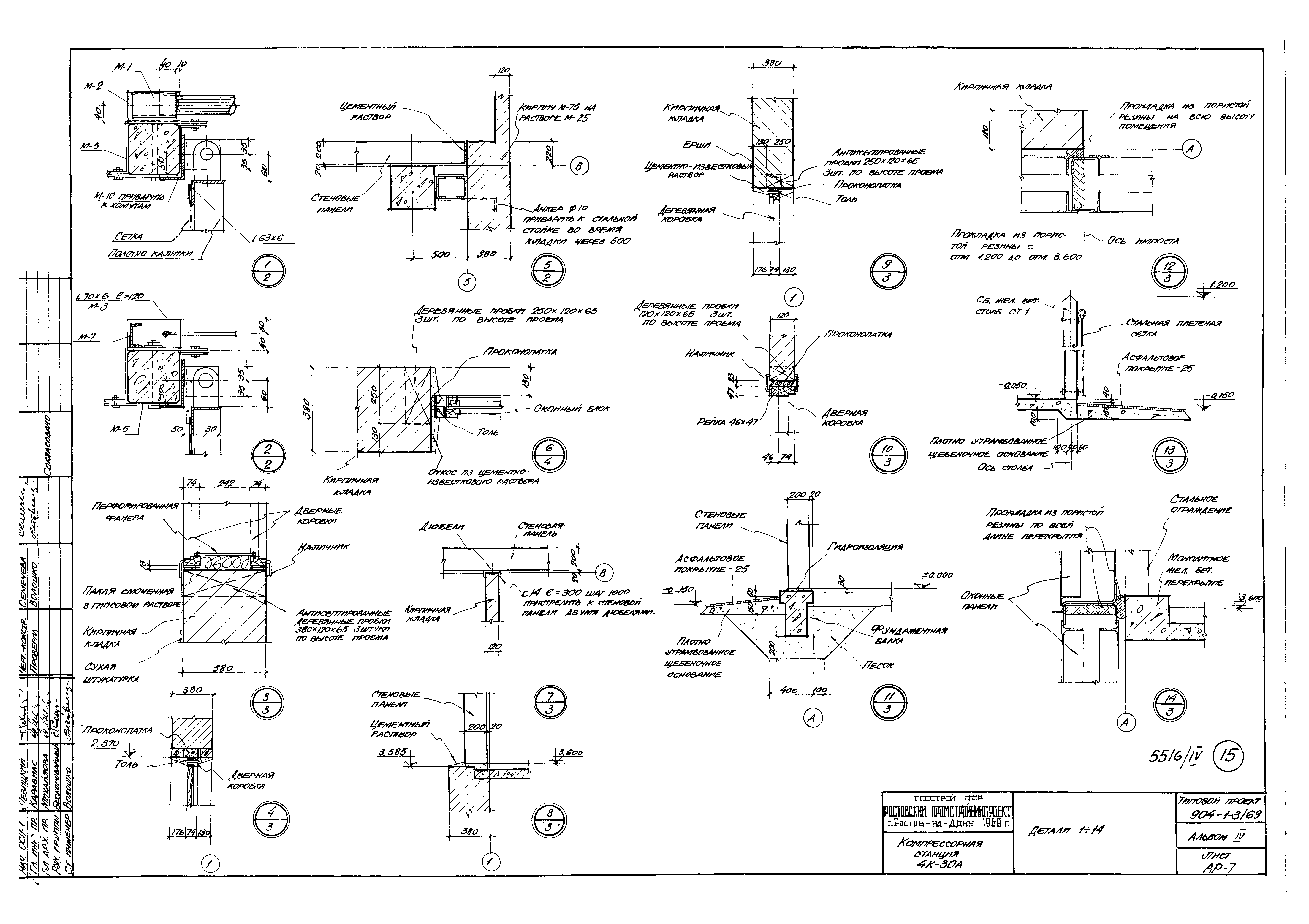
ТП 904-1-3/69-АР-7 Детали 1-14
ТП 904-1-3/69-АР-8 Детали 15-23
ТП 904-1-3/69-АР-9 План на отм. 0.250. Виды по стрелкам А,Б,В. Спецификация изделий на ограду
ТП 904-1-3/69-АР-10 План подземного хозяйства. Сечения 1-1÷3-3. Спецификация закладных элементов
ТП 904-1-3/69-АР-11 Сечения 4-4÷7-7. Закладные элементы ЗЭ-1÷ЗЭ-22. Спецификация стали на один закладной элемент
ТП 904-1-3/69-АР-12 План подземного хозяйства
ТП 904-1-3/69-АР-13 Сечения 1-1÷14-14
ТП 904-1-3/69-АР-14 План подземного хозяйства на отм. -3.000. Сечения 15-15÷29-29
ТП 904-1-3/69-АР-15 Детали 26-31. Закладные элементы ЗЭ-1÷ЗЭ-11. Спецификации
ТП 904-1-3/69-КЖ Чертежи марки КЖ
ТП 904-1-3/69-КЖ-1 Перечень листов марки КЖ. Перечень примененных в чертежах марки КЖ стандартов и типовых чертежей
ТП 904-1-3/69-КЖ-2 Спецификация сборных и монолитных железобетонных и бетонных элементов. Расход бетона и стали на здание
ТП 904-1-3/69-КЖ-3 План фундаментов. Сечения. Спецификации
ТП 904-1-3/69-КЖ-4 Элементы плана фундаментов. Сечения
ТП 904-1-3/69-КЖ-5 Фундаменты Ф1-Ф3
ТП 904-1-3/69-КЖ-6 Фундаменты Ф4,Ф5
ТП 904-1-3/69-КЖ-7 Спецификация арматуры к листам КД-5,КЖ-6
ТП 904-1-3/69-КЖ-8 Фундаменты МФ1,МФ2
ТП 904-1-3/69-КЖ-9 Плита подвала МПП1
ТП 904-1-3/69-КЖ-10 Подпорные стенки МПС1,МПС2
ТП 904-1-3/69-КЖ-11 Подпорные стенки МПС3,МПС4
ТП 904-1-3/69-КЖ-12 Спецификация арматур к листам КЖ-8÷КЖ-10
ТП 904-1-3/69-КЖ-13 Монтажные схемы колонн, рам проемов ворот, стоек фахверка, балок покрытия, плит покрытия и карнизных плит
ТП 904-1-3/69-КЖ-14 Монтажные схемы опорных столиков. Спецификации
ТП 904-1-3/69-КЖ-15 Узлы "1"-"5"
ТП 904-1-3/69-КЖ-16 Монтажные схемы стеновых панелей
ТП 904-1-3/69-КЖ-17 Монтажные детали 1,2
ТП 904-1-3/69-КЖ-18 Монтажные детали 3-6
ТП 904-1-3/69-КЖ-19 Колонны КПII-13-а,КПII-13-б,КФ-5-2-а. Балка 1Б8-12-3-а
ТП 904-1-3/69-КЖ-20 Сборные элементы МСЯ20-1/12х6-а;ПСЯ20-1/12х6-б;ПСЯ20-1/12х6-в;ПНС-2/3х6-а;ПНС-3/3х6-а;ПНС-4/3х6-а;ПНС-2(Д-1000)/3х6-а;ПНС-3(Д-1000)/3х6-а;ПНС-4(Д-1000)/3х6-а;ПК-5-а
ТП 904-1-3/69-КЖ-21 Сборные железобетонные плиты П1,П2,П3. Стакан НСШ1. Угловые блоки НБУ1,НБУ2
ТП 904-1-3/69-КЖ-22 Плита перекрытия МП1 на отм. 3.580. План. Сечения 1-1÷4-4
ТП 904-1-3/69-КЖ-23 Балки МБ1-МБ3. Сечения 5-5ć÷10-10. Спецификация и выборка арматуры
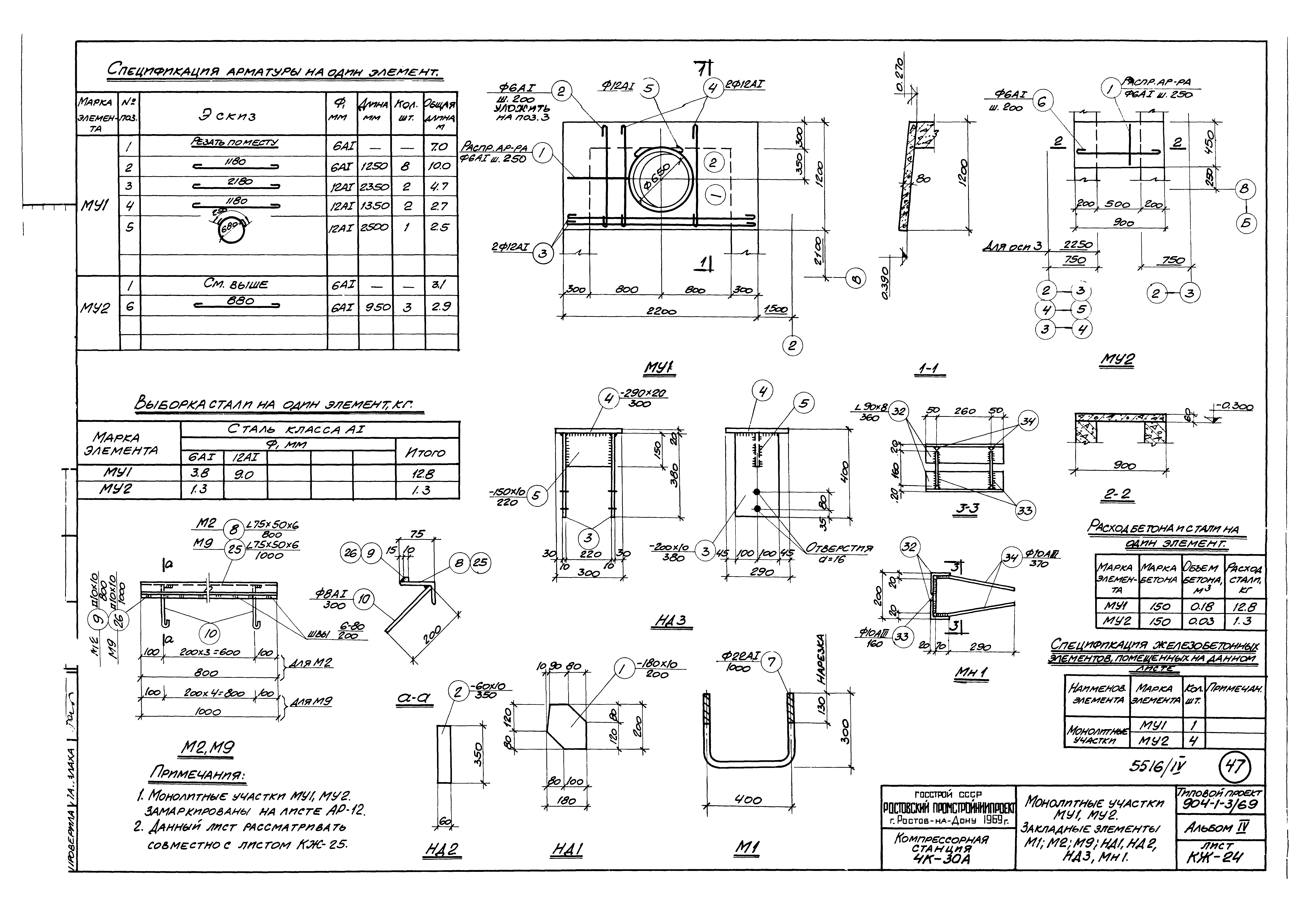
ТП 904-1-3/69-КЖ-24 Монолитные участки МУ1;МУ2. Закладные элементы М1,М2,М9,НД1,НД2,НД3,МН1
ТП 904-1-3/69-КЖ-25 Закладные элементы М3-М8,М10,М11,МН2
ТП 904-1-3/69-КЖ-26 Монолитный резервуар МР1. Опалубочный чертеж
ТП 904-1-3/69-КЖ-27 Монолитный резервуар МР1. Арматурный чертеж
ТП 904-1-3/69-КЖ-28 Монолитный резервуар МР2
ТП 904-1-3/69-КЖ-29 Закладные элементы М1-М7
ТП 904-1-3/69-КЖ-30 Фундамент под компрессор ФО1. Опалубочный чертеж
ТП 904-1-3/69-КЖ-31 Фундамент под компрессор ФО1. Арматурный чертеж
ТП 904-1-3/69-КЖ-32 Фундамент под компрессор ФО1. Арматурный чертеж
ТП 904-1-3/69-КЖ-33 Фундамент под компрессор ФО1. Стальные изделия и спецификация арматуры
ТП 904-1-3/69-КМ Чертежи марки КМ
ТП 904-1-3/69-КМ-1 Заглавный лист
ТП 904-1-3/69-КМ-2 Монтажная схема заполнения оконных проемов
ТП 904-1-3/69-КМ-3 План подвесного пути кран-балки
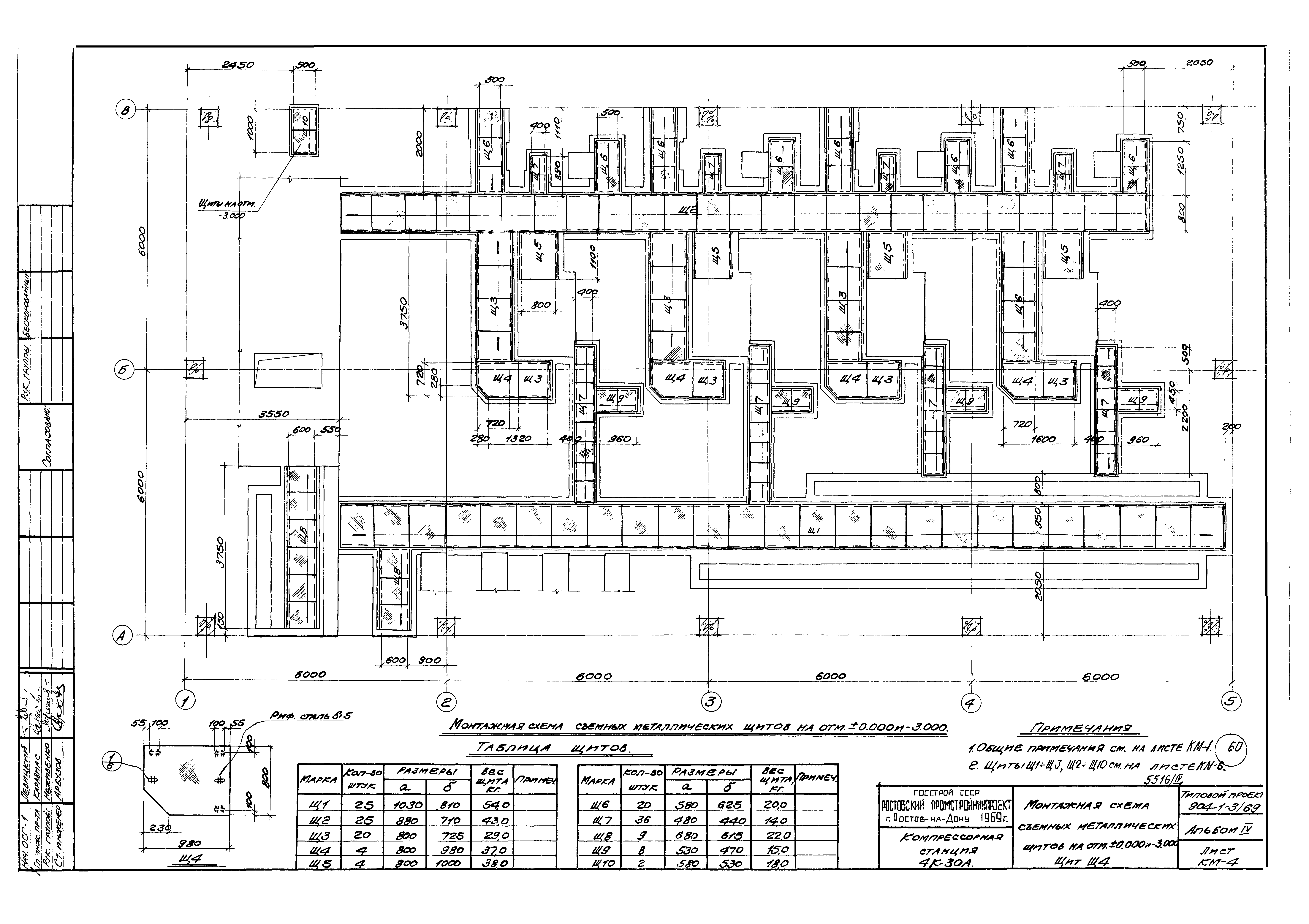
ТП 904-1-3/69-КМ-4 Монтажная схема металлических щитов на отм. ±0.000 и -3.000
ТП 904-1-3/69-КМ-5 Пожарная лестница
ТП 904-1-3/69-КМ-6 Лестницы и ограждения на отм. ±0.000 и 3.600. Деталь ограждения кровли. Щиты
II Санитарно-техническая часть
ТП 904-1-3/69-ОВ а. Отопление и вентиляция
ТП 904-1-3/69-ОВ-1 Заглавный лист
ТП 904-1-3/69-ОВ-2 Характеристика основного отопительно-вентиляционного оборудования. Таблица воздушно-тепловых балансов помещений
ТП 904-1-3/69-ОВ-3 Объем работ
ТП 904-1-3/69-ОВ-4 Планы отопления и вентиляции на отм. 3.600,±0.000,-3.000. Разрезы 1-1,2-2
ТП 904-1-3/69-ОВ-5 Схема трубопроводов отопления. Узел водяного ввода. Схема воздуховодов систем вентиляции
ТП 904-1-3/69-ОВ-6 Схема трубопроводов производственного пароснабжения. Узел парового ввода. Установка оборудования системы В-3
ТП 904-1-3/69-ОВ-7 Спецификация на оборудование и типовую арматуру
ТП 904-1-3/69-ВК Водоснабжение и канализация
ТП 904-1-3/69-ВК-1 Заглавный лист
ТП 904-1-3/69-ВК-2 Пояснительная записка
ТП 904-1-3/69-ВК-3 Пояснительная записка (продолжение). Планы здания с вводами водопроводов и выпуски канализации
ТП 904-1-3/69-ВК-4 Расчетные схемы сетей и вертикальная схема сооружений оборотного водопровода
ТП 904-1-3/69-ВК-5 Планы канализации сети горячего водоснабжения и 1 варианта хозяйственно-питьевого и производственного водопроводов. Схемы и спецификации 1 варианта водопроводов
ТП 904-1-3/69-ВК-6 Планы канализации сети горячего водоснабжения и 2 варианта хозяйственно-питьевого и производственного водопроводов. Схема и спецификация 2 варианта водопроводов
ТП 904-1-3/69-ВК-7 Разрезы и спецификация канализации. Схема и спецификация сети горячего водоснабжения
ТП 904-1-3/69-ВК-8 План и разрезы оборотного водопровода
ТП 904-1-3/69-ВК-9 Схемы и спецификации оборотного водопровода
ТП 904-1-3/69-ВК-10 Заказная спецификация на типовую арматуру и основное оборудование
Утверждён:04.12.1969 Гипростройдормаш (126-П)
Расположен в:Техническая документация Строительство Справочные документы Типовые строительные конструкции, изделия и узлы Общероссийский строительный каталог Промышленные предприятия, здания и сооружения Здания и сооружения санитарно-технические Воздухоснабжение, вентиляция и кондиционирование воздуха Воздухоснабжение
Типовой проект 904-1-3/69Типовой проект 904-1-3/69Типовой проект 904-1-3/69Типовой проект 904-1-3/69Типовой проект 904-1-3/69Типовой проект 904-1-3/69Типовой проект 904-1-3/69Типовой проект 904-1-3/69Типовой проект 904-1-3/69Типовой проект 904-1-3/69Типовой проект 904-1-3/69Типовой проект 904-1-3/69Типовой проект 904-1-3/69Типовой проект 904-1-3/69Типовой проект 904-1-3/69Типовой проект 904-1-3/69Типовой проект 904-1-3/69Типовой проект 904-1-3/69Типовой проект 904-1-3/69Типовой проект 904-1-3/69Типовой проект 904-1-3/69Типовой проект 904-1-3/69Типовой проект 904-1-3/69Типовой проект 904-1-3/69Типовой проект 904-1-3/69Типовой проект 904-1-3/69Типовой проект 904-1-3/69Типовой проект 904-1-3/69Типовой проект 904-1-3/69Типовой проект 904-1-3/69Типовой проект 904-1-3/69Типовой проект 904-1-3/69Типовой проект 904-1-3/69Типовой проект 904-1-3/69Типовой проект 904-1-3/69Типовой проект 904-1-3/69Типовой проект 904-1-3/69Типовой проект 904-1-3/69Типовой проект 904-1-3/69Типовой проект 904-1-3/69Типовой проект 904-1-3/69Типовой проект 904-1-3/69Типовой проект 904-1-3/69Типовой проект 904-1-3/69Типовой проект 904-1-3/69Типовой проект 904-1-3/69Типовой проект 904-1-3/69Типовой проект 904-1-3/69Типовой проект 904-1-3/69Типовой проект 904-1-3/69Типовой проект 904-1-3/69Типовой проект 904-1-3/69Типовой проект 904-1-3/69Типовой проект 904-1-3/69Типовой проект 904-1-3/69Типовой проект 904-1-3/69Типовой проект 904-1-3/69Типовой проект 904-1-3/69Типовой проект 904-1-3/69Типовой проект 904-1-3/69Типовой проект 904-1-3/69Типовой проект 904-1-3/69Типовой проект 904-1-3/69Типовой проект 904-1-3/69Типовой проект 904-1-3/69Типовой проект 904-1-3/69Типовой проект 904-1-3/69Типовой проект 904-1-3/69Типовой проект 904-1-3/69Типовой проект 904-1-3/69Типовой проект 904-1-3/69Типовой проект 904-1-3/69Типовой проект 904-1-3/69Типовой проект 904-1-3/69Типовой проект 904-1-3/69Типовой проект 904-1-3/69Типовой проект 904-1-3/69Типовой проект 904-1-3/69Типовой проект 904-1-3/69

© 2013 Ёшкин Кот :-) Карта сайта