Информационная система
«Ёшкин Кот»

Скачать базу одним архивом
Скачать обновления
История создания базы
Карта сайта

Скачать Типовой проект 904-1-56.84 Альбом 5. Автоматизация и КИП. Задание заводу-изготовителю для 3 компрессоров

Дата актуализации: 10.08.2017

Типовой проект 904-1-56.84

Альбом 5. Автоматизация и КИП. Задание заводу-изготовителю для 3 компрессоров

Обозначение: Типовой проект 904-1-56.84
Обозначение англ: 904-1-56.84
Статус:действует
Название рус.:Альбом 5. Автоматизация и КИП. Задание заводу-изготовителю для 3 компрессоров
Дата добавления в базу:01.09.2013
Дата актуализации:05.05.2017
Дата введения:30.12.1983
Оглавление:ТП 904-1-56.84 Содержание альбома
ТП 904-1-56.84-АО.ДЩ Указание к решению выпуска
ТП 904-1-56.84-АО.ДЩ Щит оператора
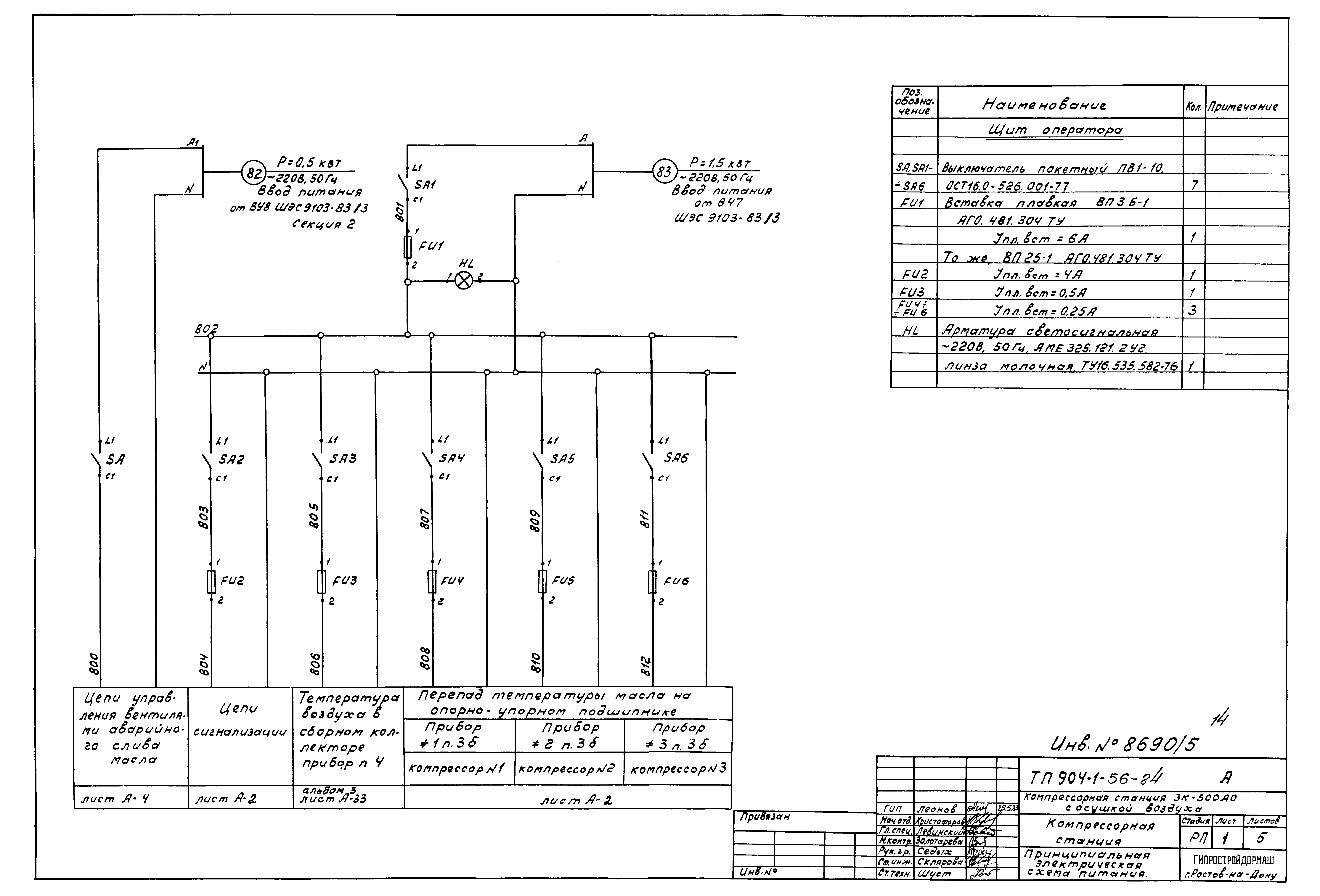
ТП 904-1-56.84-А-1 Компрессорная станция. Принципиальная электрическая схема питания
ТП 904-1-56.84-А-2 Компрессорная станция. Принципиальная электрическая схема сигнализации
ТП 904-1-56.84-А-3 Установка осушки. Принципиальная электрическая схема сигнализации
ТП 904-1-56.84-А-4 Компрессорная станция. Принципиальная электрическая схема управления вентиляции аварийного слива масла из маслобаков
ТП 904-1-56.84-А-5 Вентсистема 2. Электрические схемы
Разработан: Гипростройдормаш
Утверждён:01.11.1983 Минстройдормаш (Minstroydormash 20/83)
Расположен в:Техническая документация Строительство Справочные документы Типовые строительные конструкции, изделия и узлы Общероссийский строительный каталог Промышленные предприятия, здания и сооружения Здания и сооружения санитарно-технические Воздухоснабжение, вентиляция и кондиционирование воздуха Воздухоснабжение
Типовой проект 904-1-56.84Типовой проект 904-1-56.84Типовой проект 904-1-56.84Типовой проект 904-1-56.84Типовой проект 904-1-56.84Типовой проект 904-1-56.84Типовой проект 904-1-56.84Типовой проект 904-1-56.84Типовой проект 904-1-56.84Типовой проект 904-1-56.84Типовой проект 904-1-56.84Типовой проект 904-1-56.84Типовой проект 904-1-56.84Типовой проект 904-1-56.84Типовой проект 904-1-56.84Типовой проект 904-1-56.84Типовой проект 904-1-56.84Типовой проект 904-1-56.84Типовой проект 904-1-56.84Типовой проект 904-1-56.84

© 2013 Ёшкин Кот :-) Карта сайта