Информационная система
«Ёшкин Кот»

Скачать базу одним архивом
Скачать обновления
История создания базы
Карта сайта

Скачать Типовой проект 904-1-56.84 Альбом 2. Электротехническая часть

Дата актуализации: 10.08.2017

Типовой проект 904-1-56.84

Альбом 2. Электротехническая часть

Обозначение: Типовой проект 904-1-56.84
Обозначение англ: 904-1-56.84
Статус:действует
Название рус.:Альбом 2. Электротехническая часть
Дата добавления в базу:01.09.2013
Дата актуализации:05.05.2017
Дата введения:30.12.1983
Оглавление:ТП 904-1-56.84 Титульный лист
ТП 904-1-56.84 Содержание альбома
ТП 904-1-56.84-ЭС-1 Общие данные
ТП 904-1-56.84-ЭС-2 Размещение электрооборудования. Элементы планов на отм. 0.000 и 3.800
ТП 904-1-56.84-ЭС-3 Размещение электрооборудования. Элементы планов на отм. 0.000 и 3.800
ТП 904-1-56.84-ЭС-4 Прокладка кабелей на отм. 0.000. Элементы плана
ТП 904-1-56.84-ЭС-5 Прокладка кабелей на отм. 0.000. Элементы плана
ТП 904-1-56.84-ЭС-6-7 Распредустройство 6(10)кВ. Принципиальная однолинейная схема
ТП 904-1-56.84-ЭС-8-9 Распредустройство 6(10)кВ. Принципиальная однолинейная схема
ТП 904-1-56.84-ЭС-10-11 Схема электрическая принципиальная камер синхронного электродвигателя
ТП 904-1-56.84-ЭС-12 Схема электрическая принципиальная камер 6(12) ввода 1(2). Начало
ТП 904-1-56.84-ЭС-13 Схема электрическая принципиальная камеры 8 секционного выключателя. Начало
ТП 904-1-56.84-ЭС-14 Схема электрическая принципиальная камер 6(12) ввода 1(2). Окончание
ТП 904-1-56.84-ЭС-15 Схема электрическая принципиальная камеры 8 секционного выключателя. Окончание
ТП 904-1-56.84-ЭС-16 Схема электрическая принципиальная камеры 5 трансформатора оперативных цепей 1. Начало
ТП 904-1-56.84-ЭС-17 Схема электрическая принципиальная камер 7(10) трансформатора напряжения. Начало
ТП 904-1-56.84-ЭС-18 Схема электрическая принципиальная камеры 5 трансформатора оперативных цепей 1. Окончание
ТП 904-1-56.84-ЭС-19 Схема электрическая принципиальная камер 7(10) трансформатора напряжения. Окончание
ТП 904-1-56.84-ЭС-20 Схема электрическая принципиальная камеры 9 секционного разъединителя
ТП 904-1-56.84-ЭС-21 Цепи оперативной блокировки
ТП 904-1-56.84-ЭС-22-23 Схема электрическая принципиальная камеры трансформатора
ТП 904-1-56.84-ЭС-24 Дооборудование камеры 9 секционного разъединителя. Схема соединений
ТП 904-1-56.84-ЭС-25 Дооборудование камер синхронного электродвигателя. Схема соединений
ТП 904-1-56.84-ЭС-26 Камеры КРУ2,3,4. Схема подключений
ТП 904-1-56.84-ЭС-27 Камеры КРУ3,4. Схема подключений
ТП 904-1-56.84-ЭС-28 Камеры КРУ5,6,7,8. Схема подключения
ТП 904-1-56.84-ЭС-29 Камеры КРУ9,10,11,12. Схема подключения
ТП 904-1-56.84-ЭС-30 Камеры КРУ13,14,15. Схема подключения
ТП 904-1-56.84-ЭС-31 Расчет релейных защит
ТП 904-1-56.84-ЭС-32 Опросный лист для заказа камер КРУ2-10-20
ТП 904-1-56.84-ЭС-33 Опросный лист для заказа камер КРУ2-10-20
ТП 904-1-56.84-ЭМ Силовое электрооборудование
ТП 904-1-56.84-ЭМ-1-2 Общие данные
ТП 904-1-56.84-ЭМ-3-4 Технические данные электроприемников
ТП 904-1-56.84-ЭМ-5 Прокладка кабелей на отм. 3.800. План
ТП 904-1-56.84-ЭМ-6 Прокладка кабелей на отм. 3.800. План
ТП 904-1-56.84-ЭМ-7 Прокладка кабелей одного компрессорного агрегата
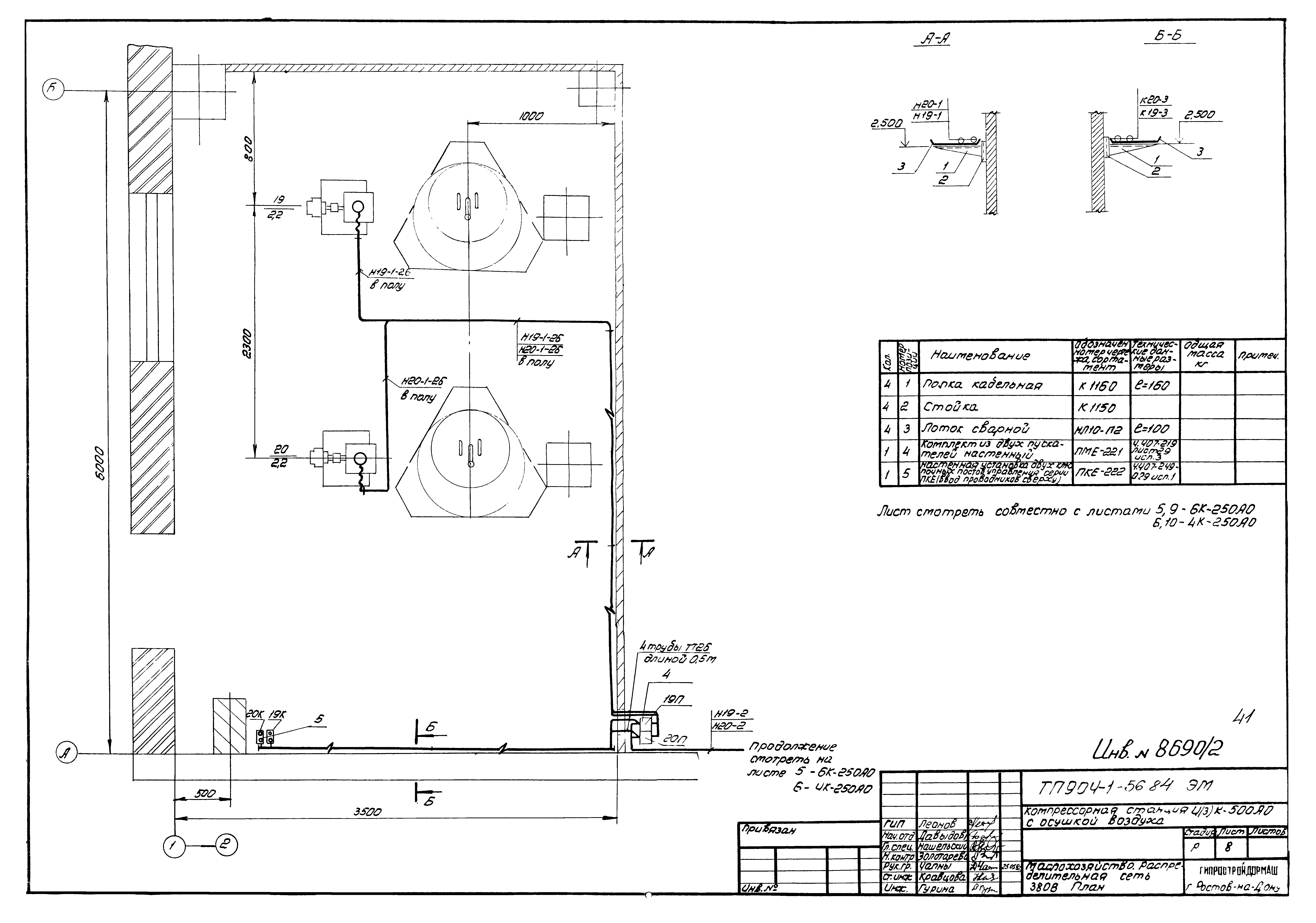
ТП 904-1-56.84-ЭМ-8 Маслохозяйство. Распределительная сеть 380 В. План
ТП 904-1-56.84-ЭМ-9 Прокладка кабелей. Разрезы
ТП 904-1-56.84-ЭМ-10 Прокладка кабелей. Разрезы
ТП 904-1-56.84-ЭМ-11-14 Кабельный журнал
ТП 904-1-56.84-ЭМ-15-18 Кабельный журнал
ТП 904-1-56.84-ЭМ-19 Шкаф управления 1ШУ турбокомпрессорным агрегатом. Расчетная схема
ТП 904-1-56.84-ЭМ-20-21 Шкаф управления вспомприводами. Расчетная схема
ТП 904-1-56.84-ЭМ-22 Комплектная трансформаторная подстанция 1КТП. Принципиальная однолинейная схема
ТП 904-1-56.84-ЭМ-23 Комплектная трансформаторная подстанция 2КТП. Принципиальная однолинейная схема
ТП 904-1-56.84-ЭМ-24 Схема подключения контрольных цепей шкафа тиристорного возбудительного устройства
ТП 904-1-56.84-ЭМ-25 Схема подключения силовых цепей привода компрессорного агрегата
ТП 904-1-56.84-ЭМ-26 Шкаф управления турбокомпрессорным агрегатом 1ШУ(2ШУ,3ШУ,4ШУ,5ШУ,6ШУ). Схема подключения силовых цепей
ТП 904-1-56.84-ЭМ-27 Шкаф управления турбокомпрессорным агрегатом 1ШУ(2ШУ,3ШУ,4ШУ). Схема подключения силовых цепей
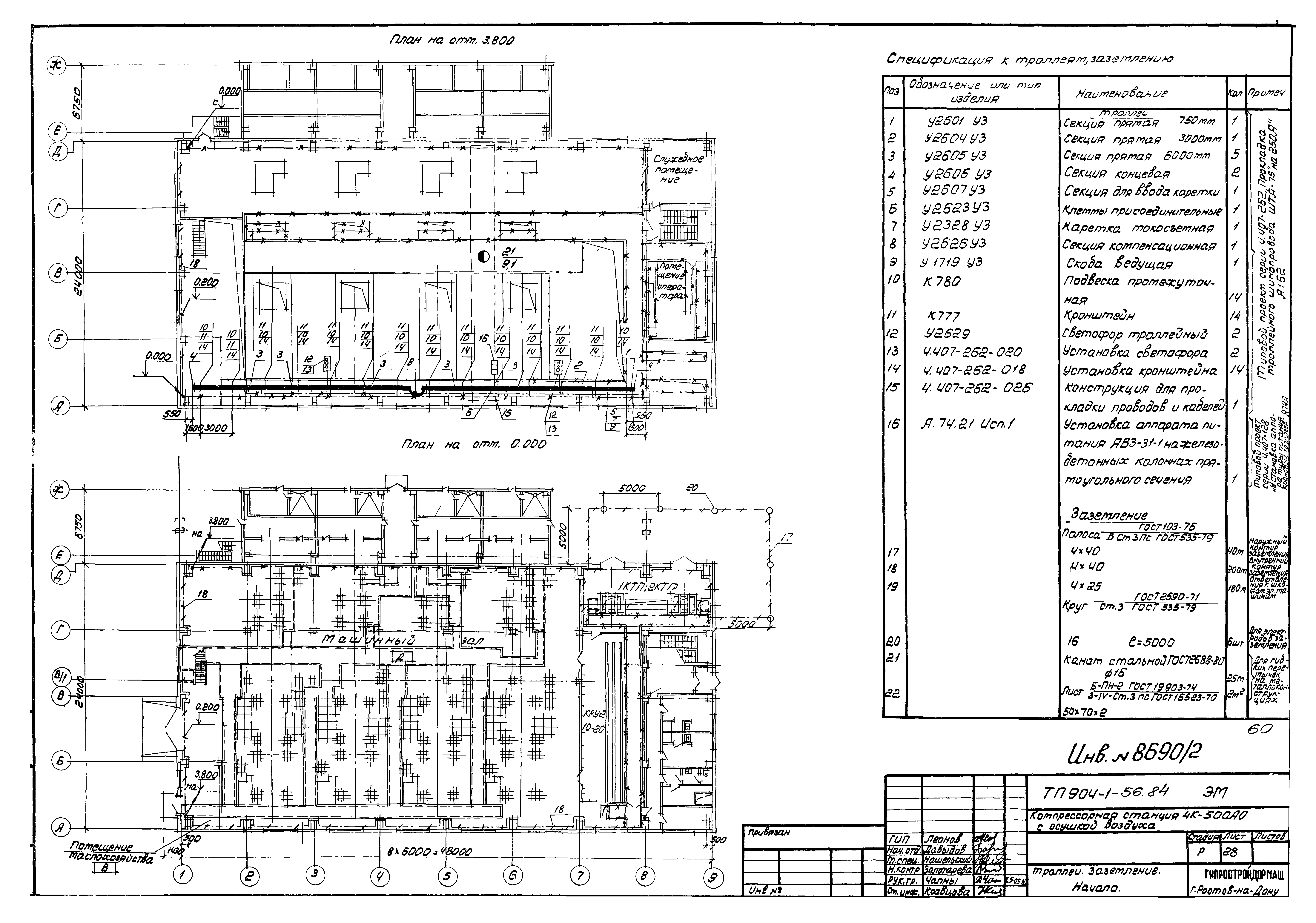
ТП 904-1-56.84-ЭМ-28 Заземление. Троллеи. Начало
ТП 904-1-56.84-ЭМ-29 Заземление. Троллеи. Начало
ТП 904-1-56.84-ЭМ-30 Заземление. Троллеи. Окончание
ТП 904-1-56.84-ЭМ-31 Установка осушки воздуха. Схема электрическая подключения
ТП 904-1-56.84-ЭМ-32 Комплектная трансформаторная подстанция 1КТП-1х630. Опросный лист
ТП 904-1-56.84-ЭМ-33 Комплектная трансформаторная подстанция 2КТП-1х630. Опросный лист
ТП 904-1-56.84-ЭМ-34 Ведомость потребности в кабелях и проводах с использованием меди
ТП 904-1-56.84-ЭМ-35 Ведомость потребности в кабелях и проводах с использованием меди
ТП 904-1-56.84-ЭМ-36-37 Ведомость объемов строительных и монтажных работ
ТП 904-1-56.84-ЭМ-38-39 Ведомость объемов строительных и монтажных работ
ТП 904-1-56.84-ЭО Электроосвещение
ТП 904-1-56.84-ЭО-1 Общие данные
ТП 904-1-56.84-ЭО-2 Рабочее электрическое освещение. План на отм. 0.000
ТП 904-1-56.84-ЭО-3 Рабочее электрическое освещение. План на отм. 0.000
ТП 904-1-56.84-ЭО-4 Рабочее электрическое освещение. План на отм. 3.800
ТП 904-1-56.84-ЭО-5 Рабочее электрическое освещение. План на отм. 3.800
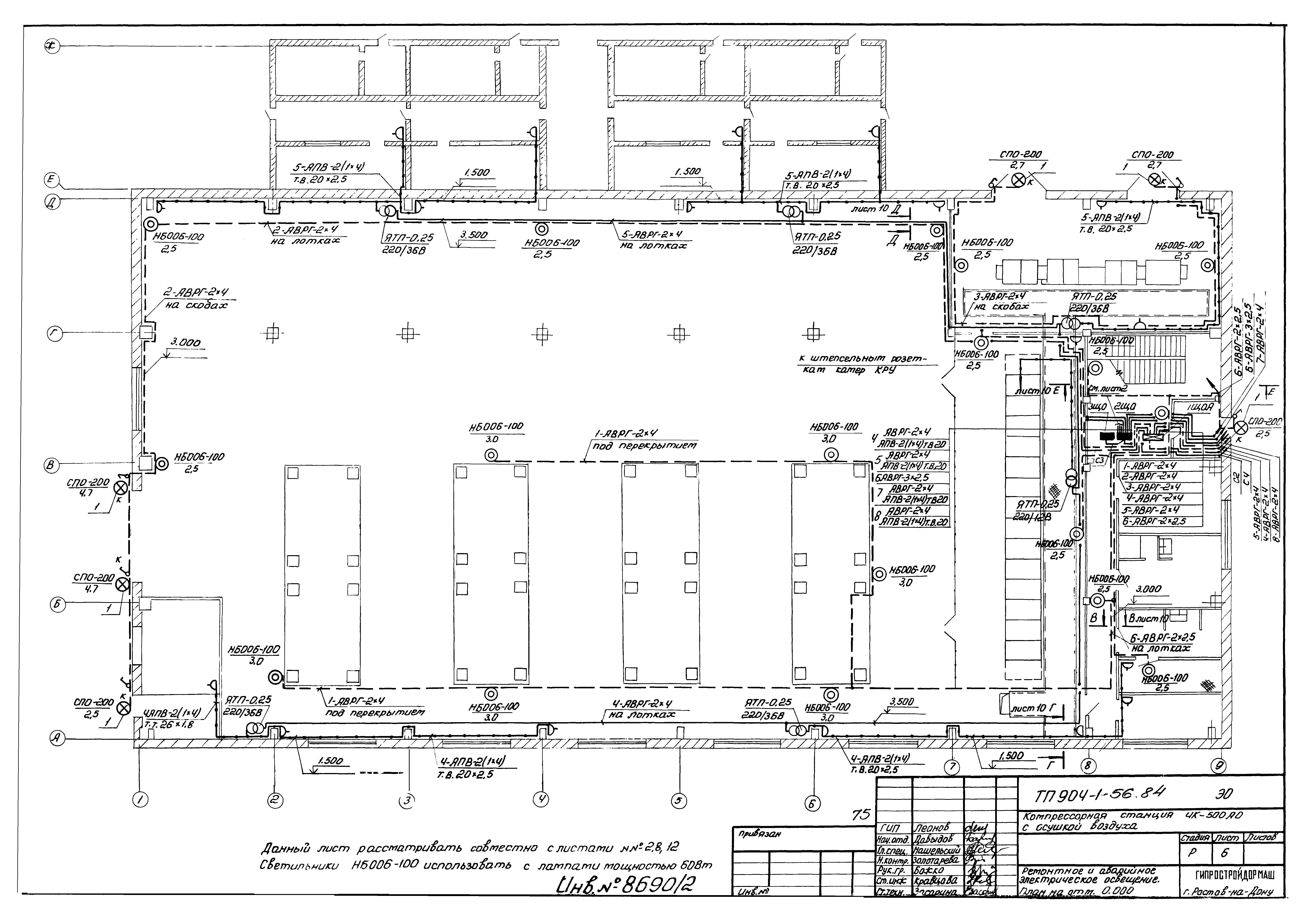
ТП 904-1-56.84-ЭО-6 Ремонтное и аварийное электрическое освещение. План на отм. 0.000
ТП 904-1-56.84-ЭО-7 Ремонтное и аварийное электрическое освещение. План на отм. 0.000
ТП 904-1-56.84-ЭО-8 Ремонтное и аварийное электрическое освещение. План на отм. 3.800
ТП 904-1-56.84-ЭО-9 Ремонтное и аварийное электрическое освещение. План на отм. 3.800
ТП 904-1-56.84-ЭО-10 Электрическое освещение. Разрезы
ТП 904-1-56.84-ЭО-11 Электрическое освещение. Разрезы
ТП 904-1-56.84-ЭО-12 Электрическое освещение. Питательная сеть 380 В. Принципиальная однолинейная схема
ТП 904-1-56.84-ЭО-13 Электрическое освещение. Питательная сеть 380 В. Принципиальная однолинейная схема
ТП 904-1-56.84-ЭО-14 Ведомость объемов монтажных работ
ТП 904-1-56.84-ЭО-15 Ведомость объемов монтажных работ
ТП 904-1-56.84-СС Связь и сигнализация
ТП 904-1-56.84-СС-1-3 Общие данные
ТП 904-1-56.84-СС-4 План расположения сети
ТП 904-1-56.84-СС-5 Схема расположения сетей
ТП 904-1-56.84-СС-6 Схема расположения сети пожарно-охранной сигнализации
ТП 904-1-56.84-СС-7 Ведомость объемов монтажных работ
ТП 904-1-56.84-СС Вызывная сигнализация
ТП 904-1-56.84-СС-8 План расположения сети
ТП 904-1-56.84-СС-9 Схема вызывной сигнализации
ТП 904-1-56.84-СС-7 Ведомость объемов монтажных работ
ТП 904-1-56.84-СС Связь и сигнализация
ТП 904-1-56.84-СС-1-3 Общие данные
ТП 904-1-56.84-СС-4 План расположения сети
ТП 904-1-56.84-СС-5 Схемы расположения сети
ТП 904-1-56.84-СС-6 Схемы расположения сети пожарно-охранной сигнализации
ТП 904-1-56.84-СС-7 Ведомость объемов монтажных работ
ТП 904-1-56.84-СС Вызывная сигнализация
ТП 904-1-56.84-СС-8 План расположения сети
ТП 904-1-56.84-СС-9 Схема вызывной сигнализации
ТП 904-1-56.84-СС-7 Ведомость объемов монтажных работ
Разработан: Гипростройдормаш
Утверждён:01.11.1983 Минстройдормаш (Minstroydormash 20/83)
Расположен в:Техническая документация Строительство Справочные документы Типовые строительные конструкции, изделия и узлы Общероссийский строительный каталог Промышленные предприятия, здания и сооружения Здания и сооружения санитарно-технические Воздухоснабжение, вентиляция и кондиционирование воздуха Воздухоснабжение
Типовой проект 904-1-56.84Типовой проект 904-1-56.84Типовой проект 904-1-56.84Типовой проект 904-1-56.84Типовой проект 904-1-56.84Типовой проект 904-1-56.84Типовой проект 904-1-56.84Типовой проект 904-1-56.84Типовой проект 904-1-56.84Типовой проект 904-1-56.84Типовой проект 904-1-56.84Типовой проект 904-1-56.84Типовой проект 904-1-56.84Типовой проект 904-1-56.84Типовой проект 904-1-56.84Типовой проект 904-1-56.84Типовой проект 904-1-56.84Типовой проект 904-1-56.84Типовой проект 904-1-56.84Типовой проект 904-1-56.84Типовой проект 904-1-56.84Типовой проект 904-1-56.84Типовой проект 904-1-56.84Типовой проект 904-1-56.84Типовой проект 904-1-56.84Типовой проект 904-1-56.84Типовой проект 904-1-56.84Типовой проект 904-1-56.84Типовой проект 904-1-56.84Типовой проект 904-1-56.84Типовой проект 904-1-56.84Типовой проект 904-1-56.84Типовой проект 904-1-56.84Типовой проект 904-1-56.84Типовой проект 904-1-56.84Типовой проект 904-1-56.84Типовой проект 904-1-56.84Типовой проект 904-1-56.84Типовой проект 904-1-56.84Типовой проект 904-1-56.84Типовой проект 904-1-56.84Типовой проект 904-1-56.84Типовой проект 904-1-56.84Типовой проект 904-1-56.84Типовой проект 904-1-56.84Типовой проект 904-1-56.84Типовой проект 904-1-56.84Типовой проект 904-1-56.84Типовой проект 904-1-56.84Типовой проект 904-1-56.84Типовой проект 904-1-56.84Типовой проект 904-1-56.84Типовой проект 904-1-56.84Типовой проект 904-1-56.84Типовой проект 904-1-56.84Типовой проект 904-1-56.84Типовой проект 904-1-56.84Типовой проект 904-1-56.84Типовой проект 904-1-56.84Типовой проект 904-1-56.84Типовой проект 904-1-56.84Типовой проект 904-1-56.84Типовой проект 904-1-56.84Типовой проект 904-1-56.84Типовой проект 904-1-56.84Типовой проект 904-1-56.84Типовой проект 904-1-56.84Типовой проект 904-1-56.84Типовой проект 904-1-56.84Типовой проект 904-1-56.84Типовой проект 904-1-56.84Типовой проект 904-1-56.84Типовой проект 904-1-56.84Типовой проект 904-1-56.84Типовой проект 904-1-56.84Типовой проект 904-1-56.84Типовой проект 904-1-56.84Типовой проект 904-1-56.84Типовой проект 904-1-56.84Типовой проект 904-1-56.84Типовой проект 904-1-56.84Типовой проект 904-1-56.84Типовой проект 904-1-56.84Типовой проект 904-1-56.84Типовой проект 904-1-56.84Типовой проект 904-1-56.84Типовой проект 904-1-56.84Типовой проект 904-1-56.84Типовой проект 904-1-56.84Типовой проект 904-1-56.84Типовой проект 904-1-56.84Типовой проект 904-1-56.84Типовой проект 904-1-56.84Типовой проект 904-1-56.84Типовой проект 904-1-56.84Типовой проект 904-1-56.84Типовой проект 904-1-56.84Типовой проект 904-1-56.84Типовой проект 904-1-56.84Типовой проект 904-1-56.84Типовой проект 904-1-56.84Типовой проект 904-1-56.84Типовой проект 904-1-56.84Типовой проект 904-1-56.84

© 2013 Ёшкин Кот :-) Карта сайта