| ||||||||||||||||||||||||
Скачать Типовые проектные решения 407-03-260 Альбом II. Подстанции с упрощенными схемами на стороне ВНДата актуализации: 10.08.2017
|
| Обозначение: | Типовые проектные решения 407-03-260 |
| Обозначение англ: | 407-03-260 |
| Статус: | cправочные материалы, мп, тпр |
| Название рус.: | Альбом II. Подстанции с упрощенными схемами на стороне ВН |
| Дата добавления в базу: | 01.09.2013 |
| Дата актуализации: | 05.05.2017 |
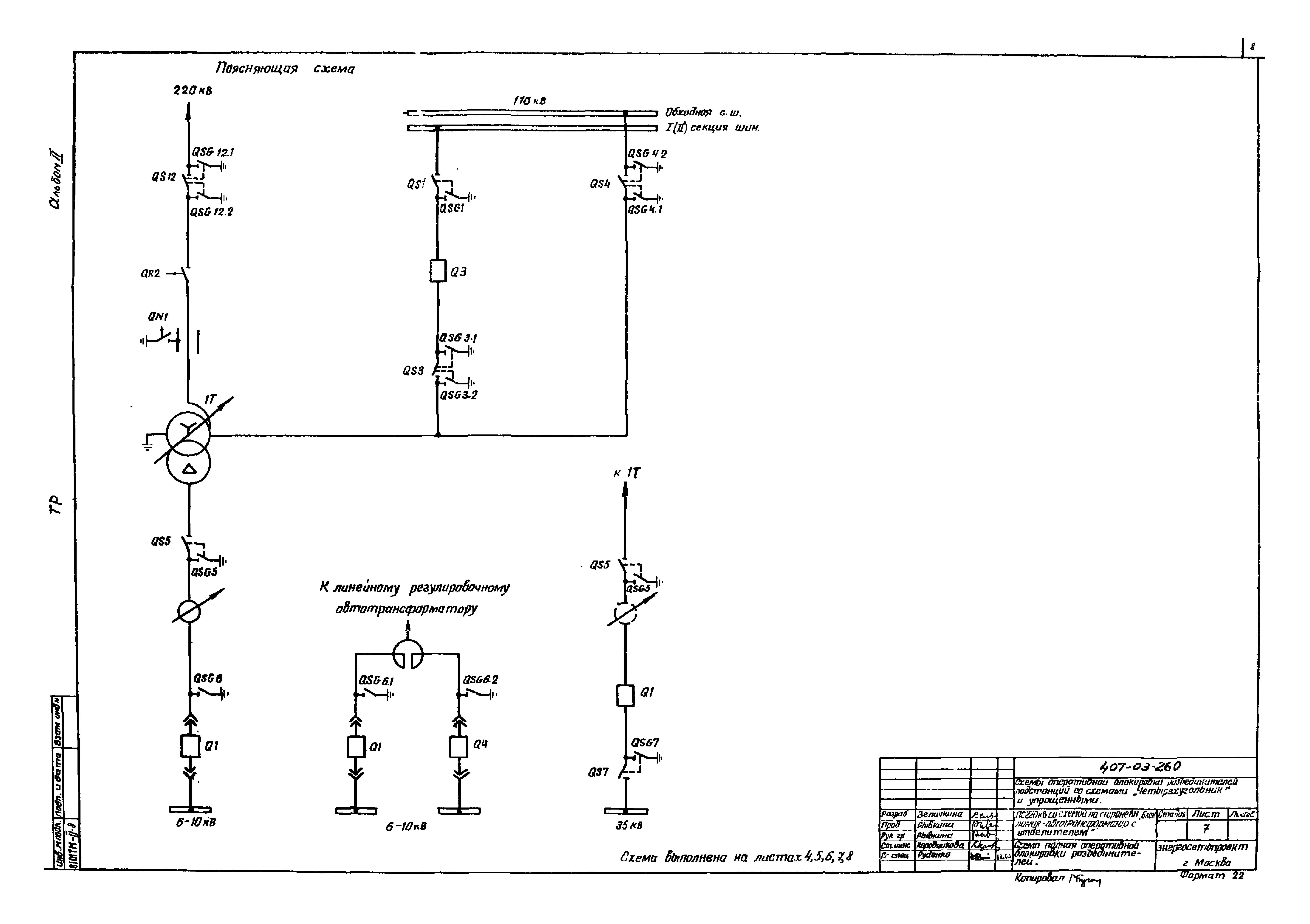
| Оглавление: | ТП 407-03-260 Перечень листов. Таблица выбора схем ТП 407-03-260 Пояснительная записка ТП 407-03-260 ПС 220 кВ со схемой на стороне ВН "Блок линия-автотрансформатор с отделителем". Схема полная оперативной блокировки разъединителей ТП 407-03-260 ПС 110-220 кВ со схемой на стороне ВН "Блок линия-трансформатор с отделителем". Схема полная оперативной блокировки разъединителей ТП 407-03-260 ПС 35 кВ со схемой на стороне ВН "Блок линия-трансформатор с отделителем". Схема полная оперативной блокировки разъединителей ТП 407-03-260 ПС 220 кВ со схемой на стороне ВН "Два блока с неавтоматической перемычкой". Автотрансформатор 1Т(2Т). Схема полная оперативной блокировки разъединителей ТП 407-03-260 ПС 220 кВ со схемой на стороне ВН "Два блока с неавтоматической перемычкой". Трансформатор 1Т(2Т). Схема полная оперативной блокировки разъединителей ТП 407-03-260 ПС 35-110 кВ со схемой на стороне ВН "Два блока с неавтоматической перемычкой". Трансформатор 1Т(2Т). Схема полная оперативной блокировки разъединителей ТП 407-03-260 ПС 220 кВ со схемой на стороне ВН "Мостик с выключателем в перемычке и отделителями в цепях автотрансформаторов". Схема полная оперативной блокировки разъединителей ТП 407-03-260 ПС 220 кВ со схемой на стороне ВН "Мостик с выключателем в перемычке и отделителями в цепях трансформаторов". Схема полная оперативной блокировки разъединителей ТП 407-03-260 ПС 110 кВ со схемой на стороне ВН "Мостик с выключателем в перемычке и отделителями в цепях трансформаторов". Схема полная оперативной блокировки разъединителей ТП 407-03-260 ПС 35 кВ со схемой на стороне ВН "Мостик с выключателем в перемычке и отделителями в цепях трансформаторов". Схема полная оперативной блокировки разъединителей |
| Разработан: | Энергосетьпроект |
| Утверждён: | 13.12.1979 Минэнерго СССР (USSR Minenergo 86) |
| Расположен в: |







































