Скачать Типовой проект 903-1-212.84 Альбом IV. Индустриальные строительные конструкции и изделияДата актуализации: 10.08.2017 Типовой проект 903-1-212.84
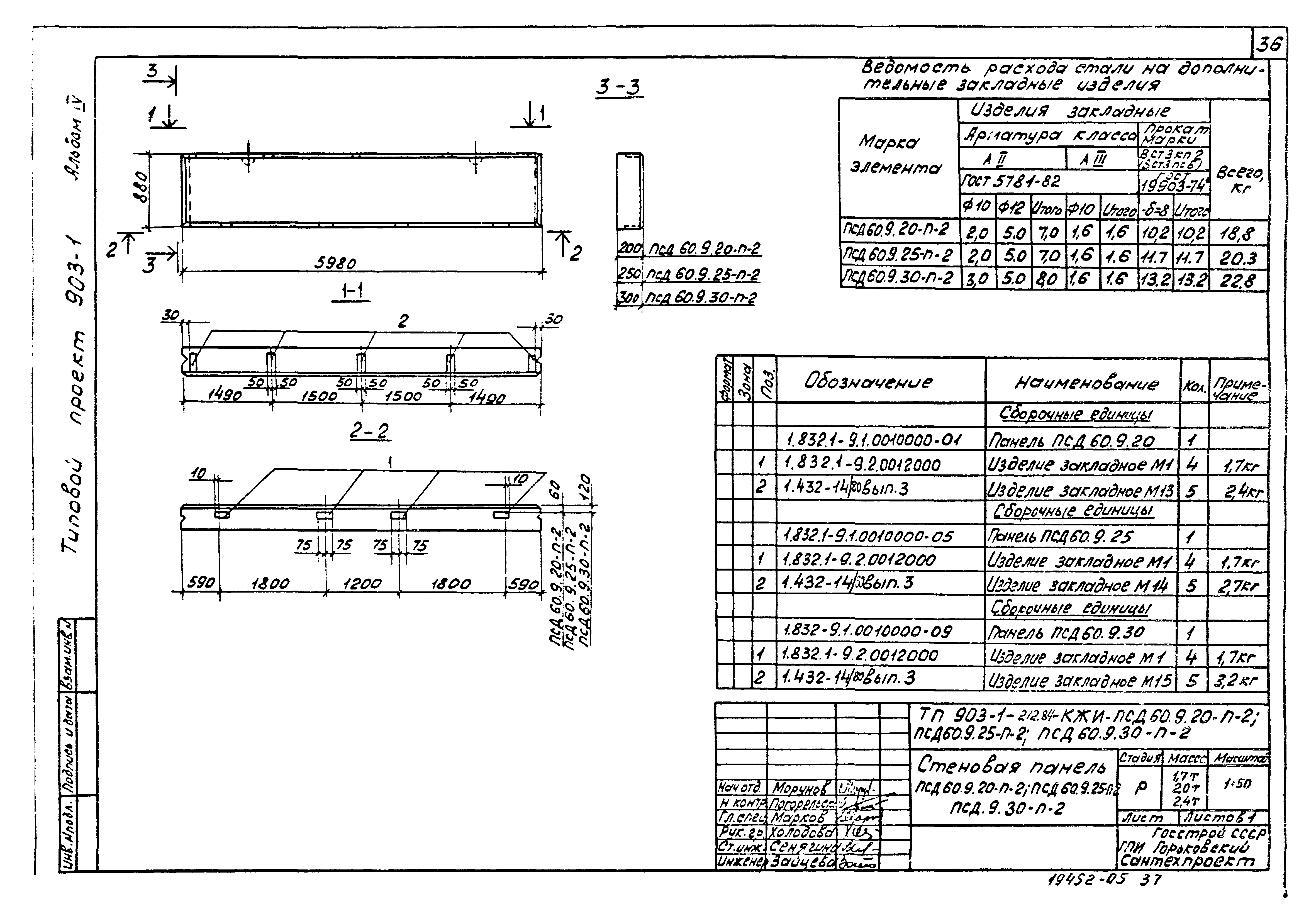
Альбом IV. Индустриальные строительные конструкции и изделияОбозначение: | Типовой проект 903-1-212.84 | Обозначение англ: | 903-1-212.84 | Статус: | не определен законодательством | Название рус.: | Альбом IV. Индустриальные строительные конструкции и изделия | Дата добавления в базу: | 01.10.2014 | Дата актуализации: | 05.05.2017 | Дата введения: | 24.05.1984 | Оглавление: | Содержание КЖИ-ТТ1 Технические требования к изготовлению сборных железобетонных изделий КЖИ-ТТ2 Технические требования к изготовлению арматурных закладных и соединительных изделий КЖИ-СК3-54-3-1(2) Колонна СК3-54-3-1(2) КЖИ-СК3-54-3-1(2)а Колонна СК3-54-3-1(2)а КЖИ-СК3-54-3-1(2)б Колонна СК3-54-3-1(2)б КЖИ-СК3-54-3-1(2)в Колонна СК3-54-3-1(2)в КЖИ-СК3-54-3-1(2)г Колонна СК3-54-3-1(2)г КЖИ-СК3-60-4(5)а Колонна СК3-60-4(5)а КЖИ-СК3-60-4(5)б Колонна СК3-60-4(5)б КЖИ-СК3-60-4(5)в Колонна СК3-60-4(5)в КЖИ-СК3-60-4(5)г Колонна СК3-60-4(5)г КЖИ-СК3-60-4(5)д Колонна СК3-60-4(5)д КЖИ-СК3-60-4(5)е Колонна СК3-60-4(5)е КЖИ-СК3-54-3-2д Колонна СК3-54-3-2д КЖИ-2Б012-3(4)в-а Балка 2Б012-3(4)в-а КЖИ-1ПГ-4(5)АIVТ-а Плита 1ПГ-4(5)АIVТ-а КЖИ-1ПГ-4(5)АIVТ-б Плита 1ПГ-4(5)АIVТ-б КЖИ-1ПГ-4(5)АIVТ-в Плита 1ПГ-4(5)АIVТ-в КЖИ-1ПВ4-4(5)АIVТ-а Плита 1ПВ4-4(5)АIVТ-а КЖИ-1ПВ7-4(5)АIVТ-а Плита 1ПВ7-4(5)АIVТ-а КЖИ-ПСД60.12.20-п-1; ПСД60.12.25-п-1; ПСД60.12.30-п-1; ПСД60.12.40-п-1 Стеновая панель ПСД60.12.20-п-1; ПСД60.12.25-п-1; ПСД60.12.30-п-1; ПСД60.12.40-п-1 КЖИ-ПСД60.9.20-п-1; ПСД60.9.25-п-1; ПСД60.9.30-п-1; ПСД60.9.40-п-1 Стеновая панель ПСД60.9.20-п-1; ПСД60.9.25-п-1; ПСД60.9.30-п-1; ПСД60.9.40-п-1 КЖИ-ПСД60.12.20-п-2; ПСД60.12.25-п-2; ПСД60.12.30-п-2; ПСД60.12.40-п-2 Стеновая панель ПСД60.12.20-п-2; ПСД60.12.25-п-2; ПСД60.12.30-п-2; ПСД60.12.40-п-2 КЖИ-ПСД60.12.20-п-3; ПСД60.12.25-п-3; ПСД60.12.30-п-3; ПСД60.12.40-п-3 Стеновая панель ПСД60.12.20-п-3; ПСД60.12.25-п-3; ПСД60.12.30-п-3; ПСД60.12.40-п-3 КЖИ-ПСД12.12.20-п-1; ПСД12.12.25-п-1; ПСД12.12.30-п-1; ПСД12.12.40-п-1 Стеновая панель ПСД12.12.20-п-1; ПСД12.12.25-п-1; ПСД12.12.30-п-1; ПСД12.12.40-п-1 КЖИ-ПСД6.12.20-п-1; ПСД6.12.25-п-1; ПСД6.12.30-п-1; ПСД6.12.40-п-1 Стеновая панель ПСД6.12.20-п-1; ПСД6.12.25-п-1; ПСД6.12.30-п-1; ПСД6.12.40-п-1 КЖИ-ПСД60.12.20-п-4; ПСД60.12.25-п-4; ПСД60.12.30-п-4 Стеновая панель ПСД60.12.20-п-4; ПСД60.12.25-п-4; ПСД60.12.30-п-4 КЖИ-ПСД60.12.20-п-5; ПСД60.12.25-п-5; ПСД60.12.30-п-5 Стеновая панель ПСД60.12.20-п-5; ПСД60.12.25-п-5; ПСД60.12.30-п-5 КЖИ-ПСД60.12.20-п-6; ПСД60.12.25-п-6; ПСД60.12.30-п-6 Стеновая панель ПСД60.12.20-п-6; ПСД60.12.25-п-6; ПСД60.12.30-п-6 КЖИ-ПСД60.12.20-п-8; ПСД60.12.25-п-8; ПСД60.12.30-п-8 Стеновая панель ПСД60.12.20-п-8; ПСД60.12.25-п-8; ПСД60.12.30-п-8 КЖИ-ПСД60.12.20-п-7; ПСД60.12.25-п-7; ПСД60.12.30-п-7 Стеновая панель ПСД60.12.20-п-7; ПСД60.12.25-п-7; ПСД60.12.30-п-7 КЖИ-ПСД60.12.30-п-УП-1; ПСД60.12.40-п-УП-1 Стеновая панель КЖИ-ПСД60.12.30-п-УП-1; ПСД60.12.40-п-УП-1 КЖИ-ПСД60.9.20-п-2; ПСД60.9.25-п-2; ПСД60.9.30-п-2 Стеновая панель ПСД60.9.20-п-2; ПСД60.9.25-п-2; ПСД60.9.30-п-2 КЖИ-ПСД60.9.20-п-3; ПСД60.9.25-п-3; ПСД60.9.30-п-3 Стеновая панель ПСД60.9.20-п-3; ПСД60.9.25-п-3; ПСД60.9.30-п-3 КЖИ-ПСД15.12.30-п-УП-1; ПСД15.12.40-п-УП-1 Стеновая панель КЖИ-ПСД15.12.30-п-УП-1; ПСД15.12.40-п-УП-1 КЖИ-ЛД Ларь деревянный ЛД КЖИ-КП1 Каркас пространственный КП1 КЖИ-КП2 Каркас пространственный КП2 КЖИ-КП3, КП4, КП5 Каркас пространственный КП3, КП4, КП5 КЖИ-КП6, КП7, КП8 Каркас пространственный КП6, КП7, КП8 КЖИ-КР1 Каркас плоский КР1 КЖИ-КР2 Каркас плоский КР2 КЖИ-КР3 - КР17 Каркас плоский КР3 - КР17 КЖИ-С1 Сетка арматурная С1 КЖИ-С2 Сетка арматурная С2 КЖИ-МН1 Изделие закладное МН1 КЖИ-МН2 Изделие закладное МН2 КЖИ-МН3 Изделие закладное МН3 КЖИ-МН4 Изделие закладное МН4 КЖИ-МН5 Изделие закладное МН5 КЖИ-МН6 Изделие закладное МН6 КЖИ-МН7 Изделие закладное МН7 КЖИ-МН8 Изделие закладное МН8 КЖИ-МН9 Изделие закладное МН9 КЖИ-МС1, МС2 Изделие соединительное МС1, МС2 КЖИ-МС3 Изделие соединительное МС3 КЖИ-МС4 Изделие соединительное МС4 КЖИ-МС5 Изделие соединительное МС5 КЖИ-СТ1 Стойка СТ1 КЖИ-РМ1 Рама металлическая РМ1 КЖИ-РМ2 Рама металлическая РМ2 | Разработан: | Горьковский Сантехпроект
| Утверждён: | 13.03.1984 МСХ СССР Главное управление лугов, кормов и пастбищ (11-ЭГ)
| Расположен в: |
|
                                                     
|