Информационная система
«Ёшкин Кот»

Скачать базу одним архивом
Скачать обновления
История создания базы
Карта сайта

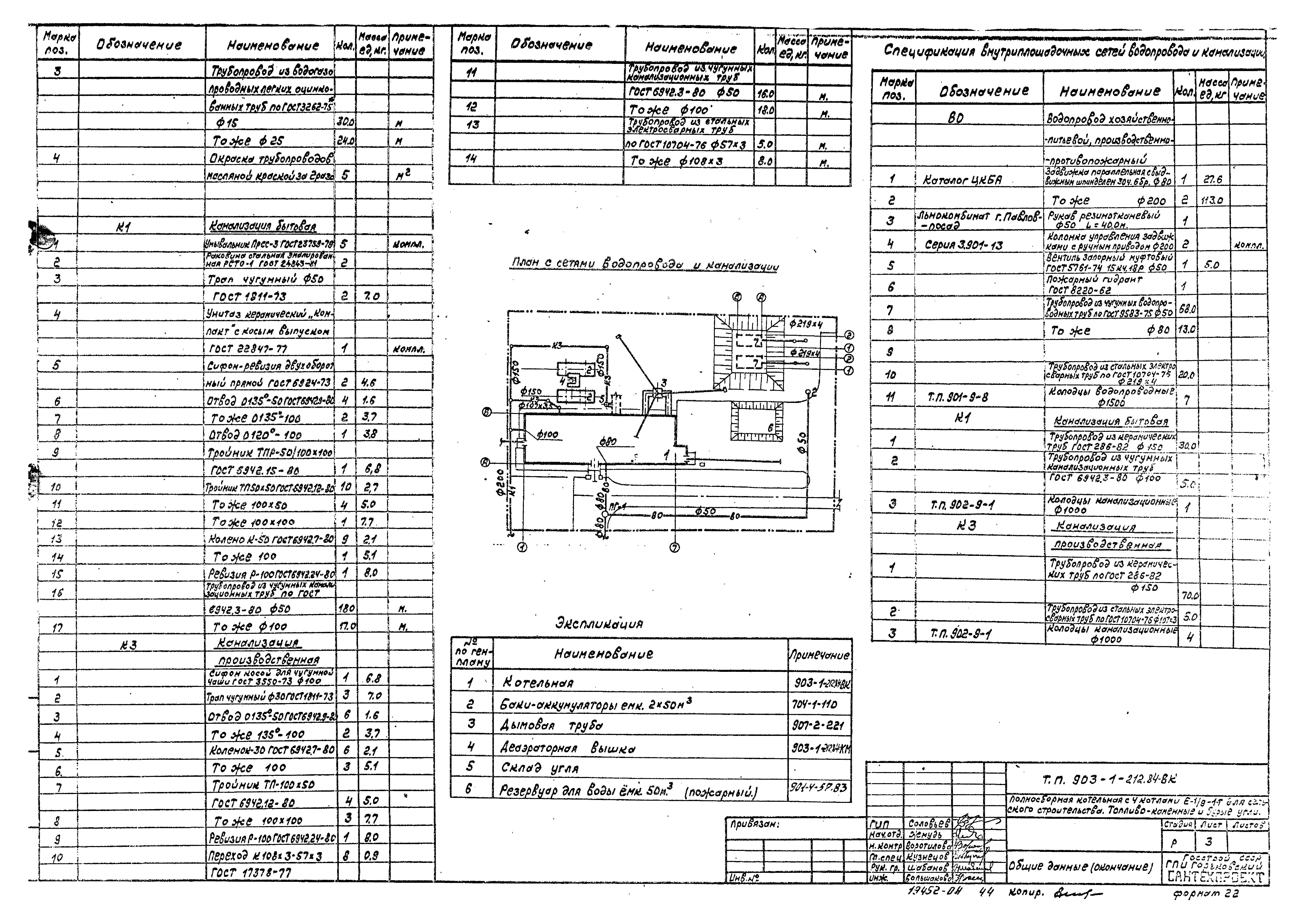
Скачать Типовой проект 903-1-212.84 Альбом III. Архитектурно-строительная и санитарно-техническая части

Дата актуализации: 10.08.2017

Типовой проект 903-1-212.84

Альбом III. Архитектурно-строительная и санитарно-техническая части

Обозначение: Типовой проект 903-1-212.84
Обозначение англ: 903-1-212.84
Статус:не определен законодательством
Название рус.:Альбом III. Архитектурно-строительная и санитарно-техническая части
Дата добавления в базу:01.09.2013
Дата актуализации:05.05.2017
Дата введения:24.05.1984
Разработан: Горьковское отделение Сантехпроекта
Утверждён:13.03.1984 Министерство сельского хозяйства СССР (USSR Ministry of Agriculture 11-ЭГ)
Расположен в:Техническая документация Строительство Справочные документы Типовые строительные конструкции, изделия и узлы Общероссийский строительный каталог Промышленные предприятия, здания и сооружения Здания и сооружения санитарно-технические Теплоснабжение Котельные установки Котельные для объектов сельского хозяйства Топливо - каменные и бурые угли
Типовой проект 903-1-212.84Типовой проект 903-1-212.84Типовой проект 903-1-212.84Типовой проект 903-1-212.84Типовой проект 903-1-212.84Типовой проект 903-1-212.84Типовой проект 903-1-212.84Типовой проект 903-1-212.84Типовой проект 903-1-212.84Типовой проект 903-1-212.84Типовой проект 903-1-212.84Типовой проект 903-1-212.84Типовой проект 903-1-212.84Типовой проект 903-1-212.84Типовой проект 903-1-212.84Типовой проект 903-1-212.84Типовой проект 903-1-212.84Типовой проект 903-1-212.84Типовой проект 903-1-212.84Типовой проект 903-1-212.84Типовой проект 903-1-212.84Типовой проект 903-1-212.84Типовой проект 903-1-212.84Типовой проект 903-1-212.84Типовой проект 903-1-212.84Типовой проект 903-1-212.84Типовой проект 903-1-212.84Типовой проект 903-1-212.84Типовой проект 903-1-212.84Типовой проект 903-1-212.84Типовой проект 903-1-212.84Типовой проект 903-1-212.84Типовой проект 903-1-212.84Типовой проект 903-1-212.84Типовой проект 903-1-212.84Типовой проект 903-1-212.84Типовой проект 903-1-212.84Типовой проект 903-1-212.84Типовой проект 903-1-212.84Типовой проект 903-1-212.84Типовой проект 903-1-212.84Типовой проект 903-1-212.84Типовой проект 903-1-212.84Типовой проект 903-1-212.84Типовой проект 903-1-212.84Типовой проект 903-1-212.84Типовой проект 903-1-212.84

© 2013 Ёшкин Кот :-) Карта сайта