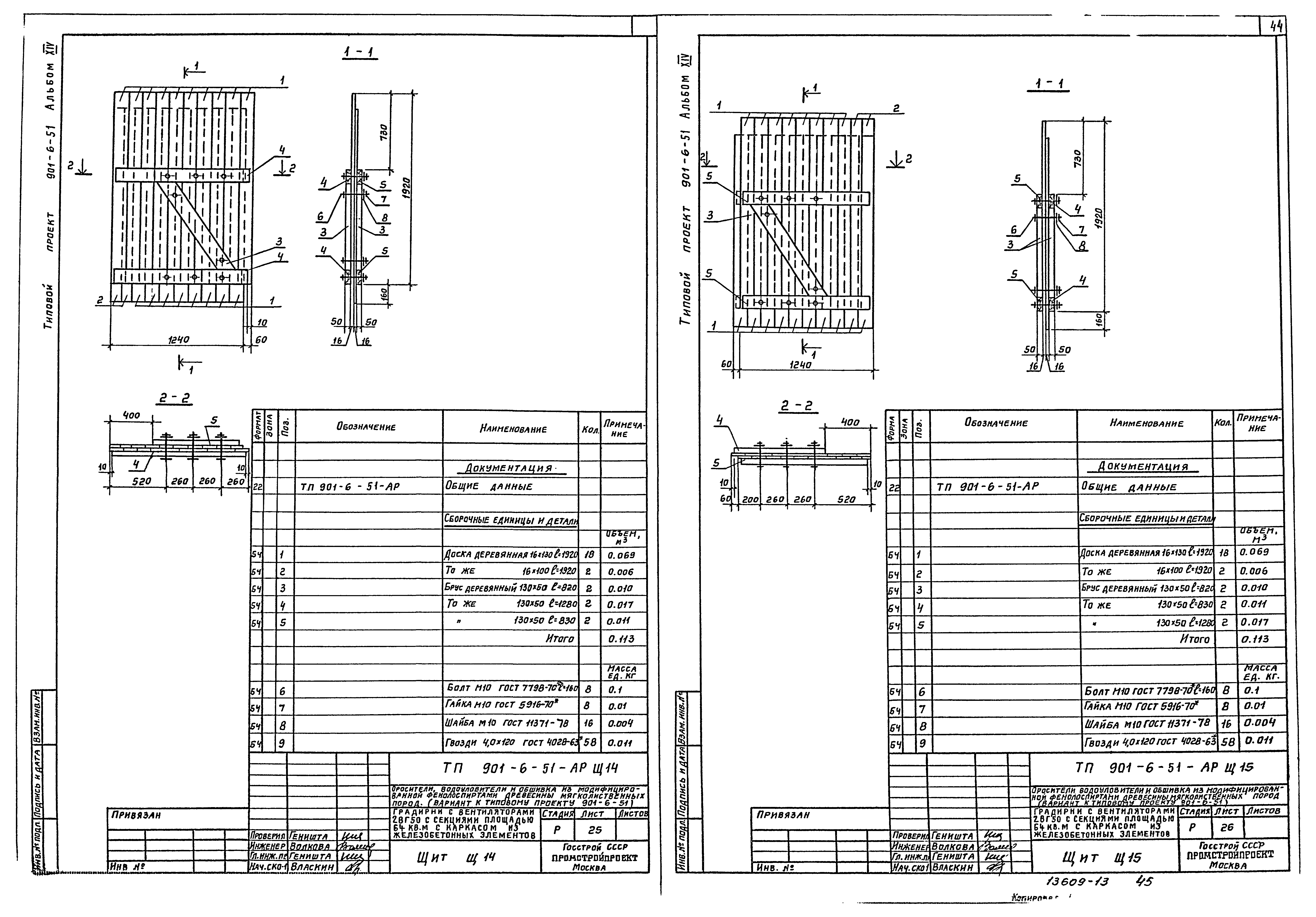
Скачать Типовой проект 901-6-51 Альбом XIV. Оросители, водоуловители и обшивка из модифицированной фенолоспиртами древесины мягколиственных породДата актуализации: 10.08.2017 Типовой проект 901-6-51
Альбом XIV. Оросители, водоуловители и обшивка из модифицированной фенолоспиртами древесины мягколиственных породОбозначение: | Типовой проект 901-6-51 | Обозначение англ: | 901-6-51 | Статус: | отменен | Название рус.: | Альбом XIV. Оросители, водоуловители и обшивка из модифицированной фенолоспиртами древесины мягколиственных пород | Дата добавления в базу: | 12.02.2016 | Дата актуализации: | 05.05.2017 | Дата введения: | 01.07.1996 | Разработан: | Союзводоканалпроект Промстройпроект Белорусское отделение ЦНИИПроектстальконструкция им. Мельникова
| Утверждён: | 30.11.1979 Союзводоканалпроект (Soyuzvodokanalproject 72)
| Расположен в: |
| Заменяет собой: | |
                                                                 
|